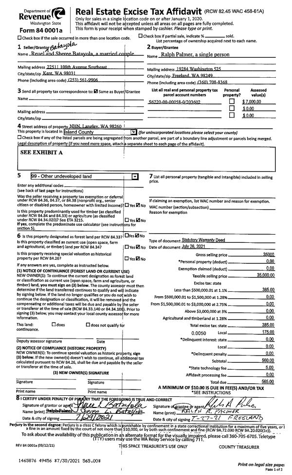
Property
Account |
| Property ID: | 491907 | Abbreviated Legal Description: | REPLACES 297-2900 IN SW NE: BG SECR NE SEC 31 N88*W2315.75' TPB N2*E645 .65' N89*W341.31' S2*W643 .07' S88*E341.25' TPB FR 330-3390 (LOT 10 V4 SUR P398 AF#352744) |
| Geographic ID: | R33031-290-3150 | Agent Code: | |
| Type: | Real | | |
| Tax Area: | 712 - APPRAISER-S Whid Schl Dist, outside Langley, improved, greater than 1 acre | Land Use Code | 11 |
| Open Space: | N | DFL | N |
| Historic Property: | N | Remodel Property: | N |
| Multi-Family Redevelopment: | N | | |
| Township: | 30 | Section: | 31 |
| Range: | R3 |
Location |
| Address: | 2620 DREAMLAND WAY LANGLEY, WA 98260 | Mapsco: | |
| Neighborhood: | Cycle 4 | Map ID: | 903 |
| Neighborhood CD: | 4 |
Owner |
| Name: | FOREST, JOAN M | Owner ID: | 94684 |
| Mailing Address: | 2620 DREAMLAND LN LANGLEY, WA 98260 | % Ownership: | 100.0000000000% |
| | | Exemptions: | |
Taxes and Assessment Details
Values
| (+) Improvement Homesite Value: | + | $0 | |
| (+) Improvement Non-Homesite Value: | + | $71,443 | |
| (+) Land Homesite Value: | + | $0 | |
| (+) Land Non-Homesite Value: | + | $380,000 | |
| (+) Curr Use (HS): | + | $0 | $0 |
| (+) Curr Use (NHS): | + | $0 | $0 |
| | | -------------------------- | |
| (=) Market Value: | = | $451,443 | |
| (–) Productivity Loss: | – | $0 | |
| | | -------------------------- | |
| (=) Subtotal: | = | $451,443 | |
| (+) Senior Appraised Value: | + | $0 | |
| (+) Non-Senior Appraised Value: | + | $451,443 | |
| | | -------------------------- | |
| (=) Total Appraised Value: | = | $451,443 | |
| (–) Senior Exemption Loss: | – | $0 | |
| (–) Exemption Loss: | – | $0 | |
| | | -------------------------- | |
| (=) Taxable Value: | = | $451,443 | |
Taxing Jurisdiction
| Owner: | FOREST, JOAN M | | |
| % Ownership: | 100.0000000000% | | |
| Total Value: | $451,443 | | |
| Tax Area: | 712 - APPRAISER-S Whid Schl Dist, outside Langley, improved, greater than 1 acre |
| CF | Conservation Futures | 0.0316035091 | $451,443 | $451,443 | $14.27 | | |
| FIRE3 | Fire & Rescue Dist #3 S Whidbey GEN | 1.2004855531 | $451,443 | $451,443 | $541.95 | | |
| HOBOND | Hospital BOND | 0.1910887512 | $451,443 | $451,443 | $86.27 | | |
| HOGEN | Hospital GEN | 0.3902502903 | $451,443 | $451,443 | $176.18 | | |
| CE | County Current Expense | 0.3708482477 | $451,443 | $451,443 | $167.42 | | |
| CR | County Roads | 0.4584763726 | $451,443 | $451,443 | $206.98 | | |
| ISLANDEMS | Hospital GEN (EMS) | 0.5000000000 | $451,443 | $451,443 | $225.72 | | |
| LIB | Library Sno-Isle GEN | 0.3153421757 | $451,443 | $451,443 | $142.36 | | |
| PORTWHID | Port of S Whidbey GEN | 0.1094540357 | $451,443 | $451,443 | $49.41 | | |
| SCH206BOND | School 206 BOND | 0.3161759235 | $451,443 | $451,443 | $142.74 | | |
| SCH206MO | School 206 Enrichment | 0.4547169547 | $451,443 | $451,443 | $205.28 | | |
| ST | State School | 1.3035497053 | $451,443 | $451,443 | $588.48 | | |
| ST2 | State School Part 2 | 0.8169543533 | $451,443 | $451,443 | $368.81 | | |
| SWHIDPRBD | P & R S Whidbey BOND | 0.0152817568 | $451,443 | $451,443 | $6.90 | | |
| SWHIDPRBD2 | P & R S Whidbey BOND2 | 0.0138911264 | $451,443 | $451,443 | $6.27 | | |
| SWHIDPRMT | P & R S Whidbey GEN | 0.2053334452 | $451,443 | $451,443 | $92.70 | | |
| | Total Tax Rate: | 6.6934522006 | | | | | |
| | | | | Taxes w/Current Exemptions: | $3,021.74 | | |
| | | | | Taxes w/o Exemptions: | $3,021.74 | | |
Improvement / Building
| Improvement #1: | MANUFACTURED HOME | State Code: | Y | 918.0 sqft | Value: | $71,443 |
| Bathrooms: | 0 | Bedrooms: | 0 | | Ceiling: | PLASTER PAINTED | Cooling: | EVAP NO DUCT | | Exterior Wall/Cover: | VINYL | Floor Covering: | CARPET 100% | | Floor Structure: | SLAB ON GRADE | Foundation: | SLAB | | Heating: | FHA ELECTRIC | Interior Finish: | PLASTER | | Plumbing Fixture Cnt: | 1 | Roof Slope: | FLAT | | Roof Structure/Cover: | CJ ALUMINIUM HEAVY |   |   |
|
| | Type | Description | Class CD | Sub Class CD | Year Built | Area |
| | BAS | BASE/MAIN FLOOR | 4 | 0 | 1997 | 918.0 |
| | oOBD | Out Buildings | 4 | 0 | 1997 | 2400.0 |
| | CPD | OPEN CARPORT DIRT FLOOR | 4 | 0 | 1997 | 324.0 |
Sketch
Property Image
Land
| 1 | 32 | AC (03.01-09.99) | 5.0500 | 0.00 | 0.00 | 0.00 | 1.00 | $380,000 | $0 |
Roll Value History
| 2026 | N/A | N/A | N/A | N/A | N/A |
| 2025 | $71,443 | $380,000 | $0 | $451,443 | $451,443 |
| 2024 | $72,781 | $350,000 | $0 | $422,781 | $422,781 |
| 2023 | $69,145 | $330,000 | $0 | $399,145 | $399,145 |
| 2022 | $67,592 | $290,000 | $0 | $357,592 | $357,592 |
| 2021 | $64,390 | $230,000 | $0 | $294,390 | $294,390 |
| 2020 | $53,451 | $190,000 | $0 | $243,451 | $243,451 |
| 2019 | $48,111 | $250,000 | $0 | $298,111 | $298,111 |
| 2018 | $48,812 | $210,000 | $0 | $258,812 | $258,812 |
| 2017 | $49,513 | $190,000 | $0 | $239,513 | $239,513 |
| 2016 | $50,212 | $135,000 | $0 | $185,212 | $185,212 |
| 2015 | $50,563 | $135,000 | $0 | $185,563 | $185,563 |
| 2014 | $48,633 | $136,350 | $0 | $184,983 | $184,983 |
| 2013 | $49,156 | $136,350 | $0 | $185,506 | $185,506 |
| 2012 | $49,678 | $136,350 | $0 | $186,028 | $186,028 |
| 2011 | $50,201 | $136,350 | $0 | $186,551 | $186,551 |
| 2010 | $50,394 | $136,350 | $0 | $186,744 | $186,744 |
| 2009 | $53,346 | $222,200 | $0 | $275,546 | $275,546 |
| 2008 | $117,113 | $239,875 | $0 | $356,988 | $356,988 |
| 2007 | $118,629 | $239,875 | $0 | $358,504 | $358,504 |
Deed and Sales History
| 1 | 05/29/2014 | EZ | Easement | FOREST, JOAN M | FOREST, JOAN M | | | $2,000.00 | 15471 | 4360223 |
| 2 | 07/01/1996 | DECREE | Divorce Decree/Legal Separation | FOREST, JOAN M | FOREST, JOAN M | | | $0.00 | 67050 | 96011772 |
| 3 | 06/01/1996 | DECREE | Divorce Decree/Legal Separation | BENNETT, RICHARD A | FOREST, JOAN M | | | $0.00 | 67004 | 96010104 |
| 4 | 01/01/1995 | WD | Warranty Deed | KIRPALANI, JAIKISHAN D | BENNETT, RICHARD A | | | $36,000.00 | 50228 | 95001065 |
| 5 | 03/01/1980 | EXECUTORD | Executor Deed | FOREST, JOAN M | KIRPALANI, JAIKISHAN D | | | $38,500.00 | 982 | 366688 |
| 6 | 01/01/1900 | OTHER | Other - Misc. Documents | Unknown | FOREST, JOAN M | | | $0.00 | 0 | 0 |
Payout Agreement
| No payout information available.. |