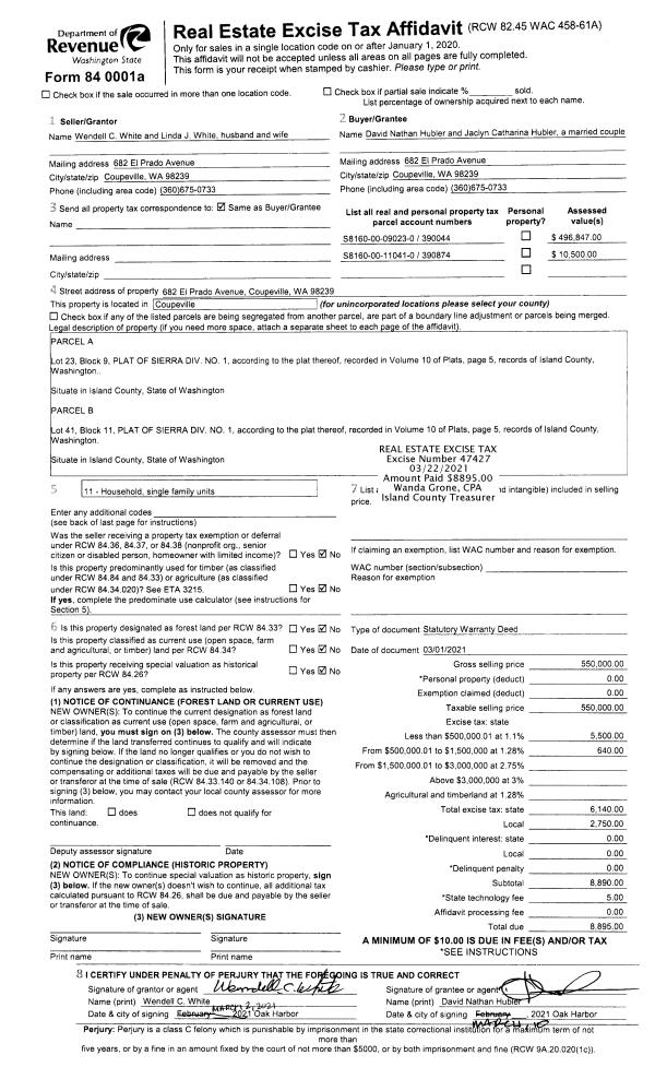
Property
Account |
| Property ID: | 492176 | Abbreviated Legal Description: | REPLACES 325 1050 E85' OF THAT PTN GL4 BG 990 E SW CR GL4 N505' TPB N155' W310' S155' E310' M/L TPB TGW EZ FR 3440940 |
| Geographic ID: | R32902-340-1160 | Agent Code: | |
| Type: | Real | | |
| Tax Area: | 700 - APPRAISER-S Whid Schl Dist, in town of Langley | Land Use Code | 11 |
| Open Space: | N | DFL | N |
| Historic Property: | N | Remodel Property: | N |
| Multi-Family Redevelopment: | N | | |
| Township: | 29 | Section: | 02 |
| Range: | R3 |
Location |
| Address: | 834 FURMAN AVE LANGLEY, WA 98260 | Mapsco: | |
| Neighborhood: | City of Langley | Map ID: | 721 |
| Neighborhood CD: | 04-L |
Owner |
| Name: | FRENCH, ROBERT T | Owner ID: | 92061 |
| Mailing Address: | BERNITA M SANSTAD PO BOX 155 LANGLEY, WA 98260 | % Ownership: | 100.0000000000% |
| | | Exemptions: | |
Taxes and Assessment Details
Values
| (+) Improvement Homesite Value: | + | $0 | |
| (+) Improvement Non-Homesite Value: | + | $210,557 | |
| (+) Land Homesite Value: | + | $0 | |
| (+) Land Non-Homesite Value: | + | $270,000 | |
| (+) Curr Use (HS): | + | $0 | $0 |
| (+) Curr Use (NHS): | + | $0 | $0 |
| | | -------------------------- | |
| (=) Market Value: | = | $480,557 | |
| (–) Productivity Loss: | – | $0 | |
| | | -------------------------- | |
| (=) Subtotal: | = | $480,557 | |
| (+) Senior Appraised Value: | + | $0 | |
| (+) Non-Senior Appraised Value: | + | $480,557 | |
| | | -------------------------- | |
| (=) Total Appraised Value: | = | $480,557 | |
| (–) Senior Exemption Loss: | – | $0 | |
| (–) Exemption Loss: | – | $0 | |
| | | -------------------------- | |
| (=) Taxable Value: | = | $480,557 | |
Taxing Jurisdiction
| Owner: | FRENCH, ROBERT T | | |
| % Ownership: | 100.0000000000% | | |
| Total Value: | $480,557 | | |
| Tax Area: | 700 - APPRAISER-S Whid Schl Dist, in town of Langley |
| CF | Conservation Futures | 0.0316035091 | $480,557 | $480,557 | $15.19 | | |
| LANG | City of Langley | 1.0093520762 | $480,557 | $480,557 | $485.05 | | |
| LANGBOND | City of Langley BOND | 1.0326110892 | $480,557 | $480,557 | $496.23 | | |
| FIRE3 | Fire & Rescue Dist #3 S Whidbey GEN | 1.2004855531 | $480,557 | $480,557 | $576.90 | | |
| HOBOND | Hospital BOND | 0.1910887512 | $480,557 | $480,557 | $91.83 | | |
| HOGEN | Hospital GEN | 0.3902502903 | $480,557 | $480,557 | $187.54 | | |
| CE | County Current Expense | 0.3708482477 | $480,557 | $480,557 | $178.21 | | |
| ISLANDEMS | Hospital GEN (EMS) | 0.5000000000 | $480,557 | $480,557 | $240.28 | | |
| LIB | Library Sno-Isle GEN | 0.3153421757 | $480,557 | $480,557 | $151.54 | | |
| PORTWHID | Port of S Whidbey GEN | 0.1094540357 | $480,557 | $480,557 | $52.60 | | |
| SCH206BOND | School 206 BOND | 0.3161759235 | $480,557 | $480,557 | $151.94 | | |
| SCH206MO | School 206 Enrichment | 0.4547169547 | $480,557 | $480,557 | $218.52 | | |
| ST | State School | 1.3035497053 | $480,557 | $480,557 | $626.43 | | |
| ST2 | State School Part 2 | 0.8169543533 | $480,557 | $480,557 | $392.59 | | |
| SWHIDPRBD | P & R S Whidbey BOND | 0.0152817568 | $480,557 | $480,557 | $7.34 | | |
| SWHIDPRBD2 | P & R S Whidbey BOND2 | 0.0138911264 | $480,557 | $480,557 | $6.68 | | |
| SWHIDPRMT | P & R S Whidbey GEN | 0.2053334452 | $480,557 | $480,557 | $98.67 | | |
| | Total Tax Rate: | 8.2769389934 | | | | | |
| | | | | Taxes w/Current Exemptions: | $3,977.54 | | |
| | | | | Taxes w/o Exemptions: | $3,977.54 | | |
Improvement / Building
| Improvement #1: | RESIDENTIAL | State Code: | Y | 1304.0 sqft | Value: | $210,557 |
| Bathrooms: | 1.5 | Bedrooms: | 3 | | Ceiling: | TONGUE & GROOVE | Exterior Wall/Cover: | SHINGLE | | Floor Covering: | HARDWOOD 100% | Floor Structure: | WOOD W/SUBFLOOR | | Foundation: | CONCRETE | Heating: | BASEBOARD ELECTRIC | | Interior Finish: | DRYWALL PAINT | Plumbing Fixture Cnt: | 6 | | Roof Slope: | 12" IN 12" | Roof Structure/Cover: | CJ ALUMINIUM HEAVY |
|
| | Type | Description | Class CD | Sub Class CD | Year Built | Area |
| | BAS | BASE/MAIN FLOOR | 3 | 0 | 1983 | 856.0 |
| | OP4 | OPEN PORCH W/CEILING-ROOF | 3 | 0 | 1983 | 40.0 |
| | CPD | OPEN CARPORT DIRT FLOOR | 3 | 0 | 1983 | 112.0 |
| | UPH | HALF STORY | 3 | 0 | 1983 | 448.0 |
| | DGR | DETACHED GARAGE | 3 | 0 | 1983 | 320.0 |
Sketch
Property Image
Land
| 1 | 15 | SQ (12001-21780) | 0.0000 | 0.00 | 0.00 | 0.00 | 1.00 | $270,000 | $0 |
Roll Value History
| 2026 | N/A | N/A | N/A | N/A | N/A |
| 2025 | $210,557 | $270,000 | $0 | $480,557 | $480,557 |
| 2024 | $217,397 | $270,000 | $0 | $487,397 | $487,397 |
| 2023 | $220,325 | $270,000 | $0 | $490,325 | $490,325 |
| 2022 | $202,156 | $210,000 | $0 | $412,156 | $412,156 |
| 2021 | $178,097 | $180,000 | $0 | $358,097 | $358,097 |
| 2020 | $174,163 | $180,000 | $0 | $354,163 | $354,163 |
| 2019 | $126,663 | $200,000 | $0 | $326,663 | $326,663 |
| 2018 | $127,061 | $160,000 | $0 | $287,061 | $287,061 |
| 2017 | $127,861 | $160,000 | $0 | $287,861 | $287,861 |
| 2016 | $120,633 | $130,000 | $0 | $250,633 | $250,633 |
| 2015 | $122,200 | $130,000 | $0 | $252,200 | $252,200 |
| 2014 | $110,011 | $139,500 | $0 | $249,511 | $249,511 |
| 2013 | $111,550 | $139,500 | $0 | $251,050 | $251,050 |
| 2012 | $113,088 | $139,500 | $0 | $252,588 | $252,588 |
| 2011 | $114,628 | $155,000 | $0 | $269,628 | $269,628 |
| 2010 | $119,603 | $155,000 | $0 | $274,603 | $274,603 |
| 2009 | $125,005 | $100,000 | $0 | $225,005 | $225,005 |
| 2008 | $127,044 | $145,000 | $0 | $272,044 | $272,044 |
| 2007 | $127,485 | $145,000 | $0 | $272,485 | $272,485 |
Deed and Sales History
| 1 | 10/01/1986 | QCD | Quit Claim Deed | SANSTAD, BERNITA M | FRENCH, ROBERT T | | | $0.00 | 63180 | 86014303 |
| 2 | 05/01/1986 | QCD | Quit Claim Deed | SANSTAD, BERNITA & | SANSTAD, BERNITA M | | | $0.00 | 61326 | 86006235 |
| 3 | 05/01/1984 | WD | Warranty Deed | WALLIN, CRAIG | SANSTAD, BERNITA & | | | $57,800.00 | 41502 | 425169 |
| 4 | 11/01/1980 | CD | DNU - Correction Deed | WALLIN, CRAIG | WALLIN, CRAIG | | | $0.00 | 3731 | 376050 |
| 5 | 02/01/1980 | EXECUTORD | Executor Deed | Unknown | WALLIN, CRAIG | | | $9,500.00 | 735 | 365915 |
| 6 | 02/01/1980 | EXECUTORD | Executor Deed | WALLIN, CRAIG | WALLIN, CRAIG | | | $9,500.00 | 735 | 365915 |
Payout Agreement
| No payout information available.. |