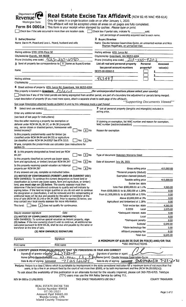
Property
Account |
| Property ID: | 492194 | Abbreviated Legal Description: | REPLACES 297-3250 BG SECR NE N88*W1962.65' TPB N2*E648.33' N89*W353.16 S2*W645.65' S88*E353.10' TPB FR 330-3390 (LOT 9 PARKWOOD V4 SUR P398 AF#352744) |
| Geographic ID: | R33031-290-3500 | Agent Code: | |
| Type: | Real | | |
| Tax Area: | 712 - APPRAISER-S Whid Schl Dist, outside Langley, improved, greater than 1 acre | Land Use Code | 11 |
| Open Space: | N | DFL | N |
| Historic Property: | N | Remodel Property: | N |
| Multi-Family Redevelopment: | N | | |
| Township: | 30 | Section: | 31 |
| Range: | R3 |
Location |
| Address: | 2638 DREAMLAND WAY LANGLEY, WA 98260 | Mapsco: | |
| Neighborhood: | Cycle 4 | Map ID: | 903 |
| Neighborhood CD: | 4 |
Owner |
| Name: | PATTERSON, KEVIN M | Owner ID: | 94685 |
| Mailing Address: | 2638 DREAMLAND LN LANGLEY, WA 98260-8108 | % Ownership: | 100.0000000000% |
| | | Exemptions: | |
Taxes and Assessment Details
Values
| (+) Improvement Homesite Value: | + | $0 | |
| (+) Improvement Non-Homesite Value: | + | $311,545 | |
| (+) Land Homesite Value: | + | $0 | |
| (+) Land Non-Homesite Value: | + | $380,000 | |
| (+) Curr Use (HS): | + | $0 | $0 |
| (+) Curr Use (NHS): | + | $0 | $0 |
| | | -------------------------- | |
| (=) Market Value: | = | $691,545 | |
| (–) Productivity Loss: | – | $0 | |
| | | -------------------------- | |
| (=) Subtotal: | = | $691,545 | |
| (+) Senior Appraised Value: | + | $0 | |
| (+) Non-Senior Appraised Value: | + | $691,545 | |
| | | -------------------------- | |
| (=) Total Appraised Value: | = | $691,545 | |
| (–) Senior Exemption Loss: | – | $0 | |
| (–) Exemption Loss: | – | $0 | |
| | | -------------------------- | |
| (=) Taxable Value: | = | $691,545 | |
Taxing Jurisdiction
| Owner: | PATTERSON, KEVIN M | | |
| % Ownership: | 100.0000000000% | | |
| Total Value: | $691,545 | | |
| Tax Area: | 712 - APPRAISER-S Whid Schl Dist, outside Langley, improved, greater than 1 acre |
| CF | Conservation Futures | 0.0316035091 | $691,545 | $691,545 | $21.86 | | |
| FIRE3 | Fire & Rescue Dist #3 S Whidbey GEN | 1.2004855531 | $691,545 | $691,545 | $830.19 | | |
| HOBOND | Hospital BOND | 0.1910887512 | $691,545 | $691,545 | $132.15 | | |
| HOGEN | Hospital GEN | 0.3902502903 | $691,545 | $691,545 | $269.88 | | |
| CE | County Current Expense | 0.3708482477 | $691,545 | $691,545 | $256.46 | | |
| CR | County Roads | 0.4584763726 | $691,545 | $691,545 | $317.06 | | |
| ISLANDEMS | Hospital GEN (EMS) | 0.5000000000 | $691,545 | $691,545 | $345.77 | | |
| LIB | Library Sno-Isle GEN | 0.3153421757 | $691,545 | $691,545 | $218.07 | | |
| PORTWHID | Port of S Whidbey GEN | 0.1094540357 | $691,545 | $691,545 | $75.69 | | |
| SCH206BOND | School 206 BOND | 0.3161759235 | $691,545 | $691,545 | $218.65 | | |
| SCH206MO | School 206 Enrichment | 0.4547169547 | $691,545 | $691,545 | $314.46 | | |
| ST | State School | 1.3035497053 | $691,545 | $691,545 | $901.46 | | |
| ST2 | State School Part 2 | 0.8169543533 | $691,545 | $691,545 | $564.96 | | |
| SWHIDPRBD | P & R S Whidbey BOND | 0.0152817568 | $691,545 | $691,545 | $10.57 | | |
| SWHIDPRBD2 | P & R S Whidbey BOND2 | 0.0138911264 | $691,545 | $691,545 | $9.61 | | |
| SWHIDPRMT | P & R S Whidbey GEN | 0.2053334452 | $691,545 | $691,545 | $142.00 | | |
| | Total Tax Rate: | 6.6934522006 | | | | | |
| | | | | Taxes w/Current Exemptions: | $4,628.84 | | |
| | | | | Taxes w/o Exemptions: | $4,628.84 | | |
Improvement / Building
| Improvement #1: | RESIDENTIAL | State Code: | Y | 1536.0 sqft | Value: | $311,545 |
| Bathrooms: | 2 | Bedrooms: | 2 | | Ceiling: | DRYWALL PAINTED | Cooling: | HEAT PUMP/CONV/V | | Exterior Wall/Cover: | WOOD SIDING | Floor Covering: | CARPET/VINYL 80-20 | | Floor Structure: | WOOD W/SUBFLOOR | Foundation: | CONCRETE | | Interior Finish: | DRYWALL PAINT | Plumbing Fixture Cnt: | 10 | | Roof Slope: | 4" IN 12" | Roof Structure/Cover: | CJ ASPHALT |
|
| | Type | Description | Class CD | Sub Class CD | Year Built | Area |
| | BAS | BASE/MAIN FLOOR | 3 | 0 | 1996 | 1536.0 |
| | DGR | DETACHED GARAGE | 3 | 0 | 1996 | 440.0 |
| | OCP | OPEN CARPORT | 3 | 0 | 1996 | 240.0 |
| | UTY | STORAGE/UTILITY | 3 | 0 | 1996 | 32.0 |
| | OWP | OPEN WOOD PORCH W/STEPS | 3 | 0 | 1996 | 340.0 |
| | OWC | OPEN WOOD PORCH W/STEPS/ROOF/C | 3 | 0 | 1996 | 184.0 |
| | oPOL | POLE BARN | 3 | 0 | 1996 | 1920.0 |
Sketch
Property Image
Land
| 1 | 32 | AC (03.01-09.99) | 5.2400 | 0.00 | 0.00 | 0.00 | 1.00 | $380,000 | $0 |
Roll Value History
| 2026 | N/A | N/A | N/A | N/A | N/A |
| 2025 | $311,545 | $380,000 | $0 | $691,545 | $691,545 |
| 2024 | $315,259 | $350,000 | $0 | $665,259 | $665,259 |
| 2023 | $318,974 | $330,000 | $0 | $648,974 | $648,974 |
| 2022 | $295,229 | $290,000 | $0 | $585,229 | $585,229 |
| 2021 | $263,845 | $230,000 | $0 | $493,845 | $493,845 |
| 2020 | $255,141 | $190,000 | $0 | $445,141 | $445,141 |
| 2019 | $193,858 | $250,000 | $0 | $443,858 | $443,858 |
| 2018 | $194,355 | $210,000 | $0 | $404,355 | $404,355 |
| 2017 | $195,350 | $190,000 | $0 | $385,350 | $385,350 |
| 2016 | $197,341 | $135,000 | $0 | $332,341 | $332,341 |
| 2015 | $199,331 | $135,000 | $0 | $334,331 | $334,331 |
| 2014 | $198,976 | $141,480 | $0 | $340,456 | $340,456 |
| 2013 | $201,032 | $141,480 | $0 | $342,512 | $342,512 |
| 2012 | $203,095 | $141,480 | $0 | $344,575 | $344,575 |
| 2011 | $205,155 | $141,480 | $0 | $346,635 | $346,635 |
| 2010 | $213,418 | $141,480 | $0 | $354,898 | $354,898 |
| 2009 | $221,907 | $230,560 | $0 | $452,467 | $452,467 |
| 2008 | $224,529 | $262,838 | $0 | $487,367 | $487,367 |
| 2007 | $193,682 | $262,838 | $0 | $456,520 | $456,520 |
Deed and Sales History
| 1 | 09/01/1996 | WD | Warranty Deed | GODDEN, RICHARD | PATTERSON, KEVIN M | | | $185,000.00 | 63523 | 96017234 |
| 2 | 11/01/1995 | WD | Warranty Deed | MIDDLEWART, BRENT D | GODDEN, RICHARD | | | $32,000.00 | 54232 | 95019542 |
| 3 | 05/01/1980 | CD | DNU - Correction Deed | COOMES, VANCE S | OMNI, GROUP | | | $0.00 | 1829 | 369325 |
| 4 | 05/01/1980 | EXECUTORD | Executor Deed | OMNI, GROUP | MIDDLEWART, BRENT D | | | $28,900.00 | 1830 | 369326 |
| 5 | 05/01/1979 | EXECUTORD | Executor Deed | Unknown | COOMES, VANCE S | | | $0.00 | 92541 | 353017 |
Payout Agreement
| No payout information available.. |