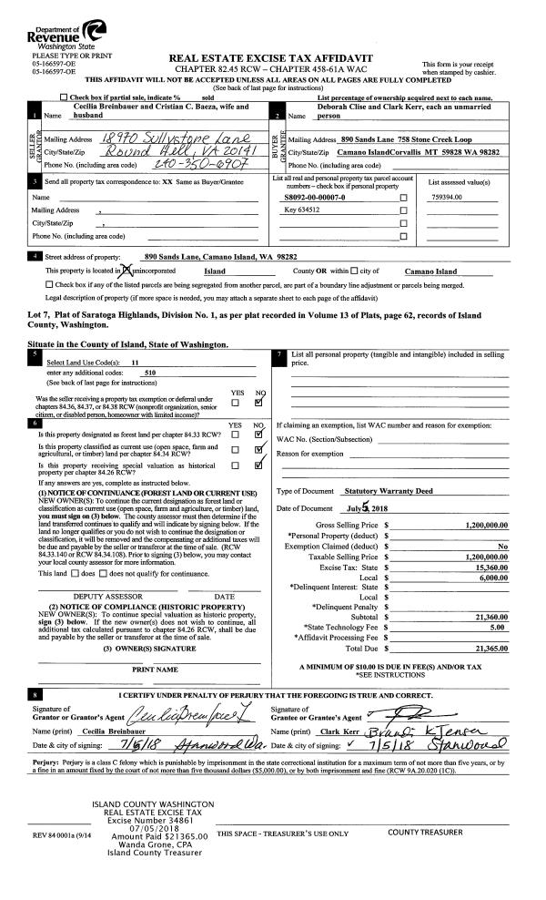
Property
Account |
| Property ID: | 49227 | Abbreviated Legal Description: | 43 - IN GL1: BG NWCR GL1 S500' E650' TPB E60' S TO ML W ALG ML TP S OF TPB N TPB TGW EZ INCL ADJ TIDES |
| Geographic ID: | R22909-069-0680 | Agent Code: | |
| Type: | Real | | |
| Tax Area: | 710 - APPRAISER-S Whid Schl Dist, outside Langley, improved & 1 acre or less | Land Use Code | 11 |
| Open Space: | N | DFL | N |
| Historic Property: | N | Remodel Property: | N |
| Multi-Family Redevelopment: | N | | |
| Township: | 29 | Section: | 09 |
| Range: | R2 |
Location |
| Address: | 852 OLD BEACH RD FREELAND, WA 98249 | Mapsco: | |
| Neighborhood: | Cycle 3 | Map ID: | 305 |
| Neighborhood CD: | 3 |
Owner |
| Name: | RASMUSSEN II TTEE, RICHARD C | Owner ID: | 305710 |
| Mailing Address: | 3211 W. LAURELHURT DR., NE SEATTLE, WA 98105 | % Ownership: | 100.0000000000% |
| | | Exemptions: | |
Taxes and Assessment Details
Values
| (+) Improvement Homesite Value: | + | $0 | |
| (+) Improvement Non-Homesite Value: | + | $300,683 | |
| (+) Land Homesite Value: | + | $0 | |
| (+) Land Non-Homesite Value: | + | $1,005,600 | |
| (+) Curr Use (HS): | + | $0 | $0 |
| (+) Curr Use (NHS): | + | $0 | $0 |
| | | -------------------------- | |
| (=) Market Value: | = | $1,306,283 | |
| (–) Productivity Loss: | – | $0 | |
| | | -------------------------- | |
| (=) Subtotal: | = | $1,306,283 | |
| (+) Senior Appraised Value: | + | $0 | |
| (+) Non-Senior Appraised Value: | + | $1,306,283 | |
| | | -------------------------- | |
| (=) Total Appraised Value: | = | $1,306,283 | |
| (–) Senior Exemption Loss: | – | $0 | |
| (–) Exemption Loss: | – | $0 | |
| | | -------------------------- | |
| (=) Taxable Value: | = | $1,306,283 | |
Taxing Jurisdiction
| Owner: | RASMUSSEN II TTEE, RICHARD C | | |
| % Ownership: | 100.0000000000% | | |
| Total Value: | $1,306,283 | | |
| Tax Area: | 710 - APPRAISER-S Whid Schl Dist, outside Langley, improved & 1 acre or less |
| CF | Conservation Futures | 0.0316035091 | $1,306,283 | $1,306,283 | $41.28 | | |
| FIRE3 | Fire & Rescue Dist #3 S Whidbey GEN | 1.2004855531 | $1,306,283 | $1,306,283 | $1,568.17 | | |
| HOBOND | Hospital BOND | 0.1910887512 | $1,306,283 | $1,306,283 | $249.62 | | |
| HOGEN | Hospital GEN | 0.3902502903 | $1,306,283 | $1,306,283 | $509.78 | | |
| CE | County Current Expense | 0.3708482477 | $1,306,283 | $1,306,283 | $484.43 | | |
| CR | County Roads | 0.4584763726 | $1,306,283 | $1,306,283 | $598.90 | | |
| ISLANDEMS | Hospital GEN (EMS) | 0.5000000000 | $1,306,283 | $1,306,283 | $653.14 | | |
| LIB | Library Sno-Isle GEN | 0.3153421757 | $1,306,283 | $1,306,283 | $411.93 | | |
| PORTWHID | Port of S Whidbey GEN | 0.1094540357 | $1,306,283 | $1,306,283 | $142.98 | | |
| SCH206BOND | School 206 BOND | 0.3161759235 | $1,306,283 | $1,306,283 | $413.02 | | |
| SCH206MO | School 206 Enrichment | 0.4547169547 | $1,306,283 | $1,306,283 | $593.99 | | |
| ST | State School | 1.3035497053 | $1,306,283 | $1,306,283 | $1,702.80 | | |
| ST2 | State School Part 2 | 0.8169543533 | $1,306,283 | $1,306,283 | $1,067.17 | | |
| SWHIDPRBD | P & R S Whidbey BOND | 0.0152817568 | $1,306,283 | $1,306,283 | $19.96 | | |
| SWHIDPRBD2 | P & R S Whidbey BOND2 | 0.0138911264 | $1,306,283 | $1,306,283 | $18.15 | | |
| SWHIDPRMT | P & R S Whidbey GEN | 0.2053334452 | $1,306,283 | $1,306,283 | $268.22 | | |
| | Total Tax Rate: | 6.6934522006 | | | | | |
| | | | | Taxes w/Current Exemptions: | $8,743.54 | | |
| | | | | Taxes w/o Exemptions: | $8,743.54 | | |
Improvement / Building
| Improvement #1: | RESIDENTIAL | State Code: | Y | 1908.0 sqft | Value: | $300,683 |
| Bathrooms: | 2 | Bedrooms: | 3 | | Ceiling: | DRYWALL PAINTED | Exterior Wall/Cover: | STUCCO | | Floor Covering: | CARPET/VINYL 80-20 | Floor Structure: | WOOD W/SUBFLOOR | | Foundation: | CONCRETE BLOCKS | Heating: | BASEBOARD ELECTRIC | | Interior Finish: | DRYWALL PAINT | Plumbing Fixture Cnt: | 9 | | Roof Slope: | 4" IN 12" | Roof Structure/Cover: | CJ CLAY TILE |
|
| | Type | Description | Class CD | Sub Class CD | Year Built | Area |
| | BAS | BASE/MAIN FLOOR | 3 | 0 | 1963 | 1204.8 |
| | UTY | STORAGE/UTILITY | 3 | 0 | 1963 | 240.0 |
| | OP4 | OPEN PORCH W/CEILING-ROOF | 3 | 0 | 1963 | 160.8 |
| | BIG | BUILT IN GARAGE | 3 | 0 | 1963 | 703.2 |
| | UPS | UPPER STORY | 3 | 0 | 1963 | 703.2 |
| | OWP | OPEN WOOD PORCH W/STEPS | 3 | 0 | 1963 | 540.0 |
Sketch
Property Image
Land
| 1 | LB | LOW BANK | 0.5500 | 23958.00 | 60.00 | 0.00 | 1.00 | $1,005,000 | $0 |
| 2 | 55 | TIDES | 0.0000 | 0.00 | 60.00 | 0.00 | 1.00 | $600 | $0 |
Roll Value History
| 2026 | N/A | N/A | N/A | N/A | N/A |
| 2025 | $300,683 | $1,005,600 | $0 | $1,306,283 | $1,306,283 |
| 2024 | $311,105 | $1,005,600 | $0 | $1,316,705 | $1,316,705 |
| 2023 | $315,410 | $1,005,600 | $0 | $1,321,010 | $1,321,010 |
| 2022 | $226,544 | $960,600 | $0 | $1,187,144 | $1,187,144 |
| 2021 | $200,062 | $800,600 | $0 | $1,000,662 | $1,000,662 |
| 2020 | $195,955 | $800,600 | $0 | $996,555 | $996,555 |
| 2019 | $110,178 | $800,600 | $0 | $910,778 | $910,778 |
| 2018 | $110,706 | $725,600 | $0 | $836,306 | $836,306 |
| 2017 | $111,717 | $600,600 | $0 | $712,317 | $712,317 |
| 2016 | $113,829 | $600,600 | $0 | $714,429 | $714,429 |
| 2015 | $115,942 | $600,600 | $0 | $716,542 | $716,542 |
| 2014 | $118,055 | $550,600 | $0 | $668,655 | $668,655 |
| 2013 | $121,463 | $518,422 | $0 | $639,885 | $639,885 |
| 2012 | $123,582 | $518,422 | $0 | $642,004 | $642,004 |
| 2011 | $125,701 | $518,422 | $0 | $644,123 | $644,123 |
| 2010 | $136,214 | $518,422 | $0 | $654,636 | $654,636 |
| 2009 | $142,407 | $617,055 | $0 | $759,462 | $759,462 |
| 2008 | $144,568 | $617,055 | $0 | $761,623 | $761,623 |
| 2007 | $144,283 | $616,635 | $0 | $760,918 | $760,918 |
Deed and Sales History
| 1 | 08/29/2022 | WD | Warranty Deed | MLTD ASSOCIATES, LLC | RASMUSSEN II TTEE, RICHARD C | | | $1,970,000.00 | 54393 | 4550587 |
| 2 | 05/14/2018 | QCD | Quit Claim Deed | MLTD ASSOCIATES, | MLTD ASSOCIATES, LLC | | | $0.00 | 34173 | 4444750 |
| 3 | 05/11/2018 | QCD | Quit Claim Deed | MLTD ASSOCIATES, LLC | MLTD ASSOCIATES, | | | $0.00 | 34054 | 4444213 |
| 4 | 05/02/2018 | QCD | Quit Claim Deed | MLTD ASSOCIATES | MLTD ASSOCIATES, LLC | | | $0.00 | 33995 | 4443947 |
| 5 | 12/01/1994 | QCD | Quit Claim Deed | LEE, TOBIAS T | MLTD, ASSOCIATES | | | $0.00 | 50010 | 95000044 |
| 6 | 03/01/1992 | WD | Warranty Deed | SCOTT, GENE E | LEE, TOBIAS T | | | $360,000.00 | 21117 | 92005518 |
| 7 | 06/01/1991 | QCD | Quit Claim Deed | SCOTT, GENE E | SCOTT, GENE E | | | $0.00 | 12194 | 91009330 |
| 8 | 10/01/1973 | TRUSTEED | Trustee's Deed | SCOTT, GENE E | SCOTT, GENE E | | | $0.00 | 57153 | 0 |
| 9 | 01/01/1900 | OTHER | Other - Misc. Documents | Unknown | SCOTT, GENE E | | | $0.00 | 0 | 0 |
Payout Agreement
| No payout information available.. |