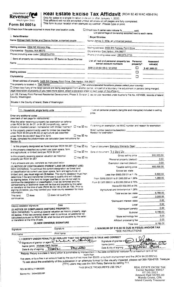
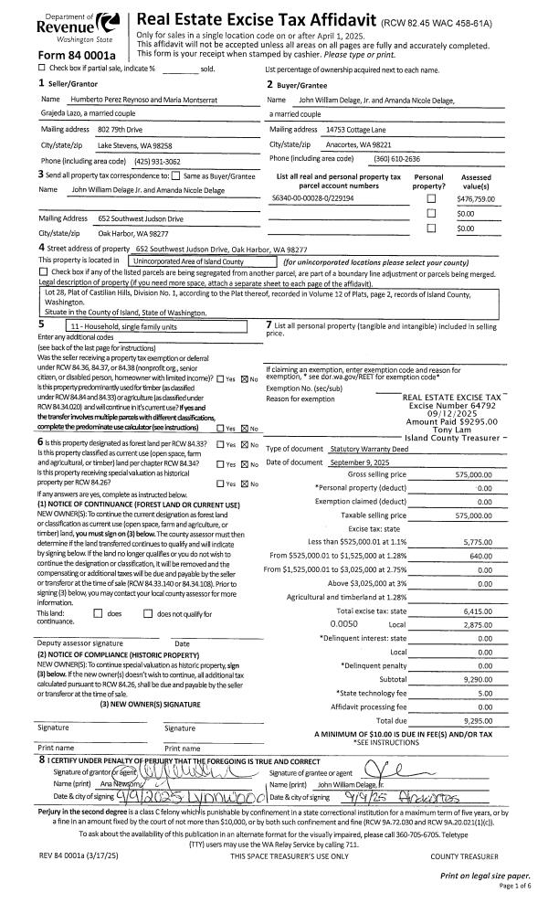
Property
Account |
| Property ID: | 492381 | Abbreviated Legal Description: | REPLACES 3652900 BG SE CR NE N2*E1326.24' N89*W2318.41' TPB N89*W335. 61' S2*W654.65' S89*E335.66 N2*E655.73' TPB FR 3303390 |
| Geographic ID: | R33031-355-3150 | Agent Code: | |
| Type: | Real | | |
| Tax Area: | 719 - APPRAISER-S Whid Schl Dist, outside Langley, vacant & 50 acres or less | Land Use Code | 91 |
| Open Space: | N | DFL | N |
| Historic Property: | N | Remodel Property: | N |
| Multi-Family Redevelopment: | N | | |
| Township: | 30 | Section: | 31 |
| Range: | R3 |
Location |
| Address: | 2625 DREAMLAND LN LANGLEY, WA 98260 | Mapsco: | |
| Neighborhood: | Cycle 4 | Map ID: | 903 |
| Neighborhood CD: | 4 |
Owner |
| Name: | HILL, ALLISON FAITH | Owner ID: | 315176 |
| Mailing Address: | 10414 22ND AVE SW SEATTLE, WA 98136 | % Ownership: | 100.0000000000% |
| | | Exemptions: | |
Taxes and Assessment Details
Values
| (+) Improvement Homesite Value: | + | $0 | |
| (+) Improvement Non-Homesite Value: | + | $0 | |
| (+) Land Homesite Value: | + | $0 | |
| (+) Land Non-Homesite Value: | + | $240,000 | |
| (+) Curr Use (HS): | + | $0 | $0 |
| (+) Curr Use (NHS): | + | $0 | $0 |
| | | -------------------------- | |
| (=) Market Value: | = | $240,000 | |
| (–) Productivity Loss: | – | $0 | |
| | | -------------------------- | |
| (=) Subtotal: | = | $240,000 | |
| (+) Senior Appraised Value: | + | $0 | |
| (+) Non-Senior Appraised Value: | + | $240,000 | |
| | | -------------------------- | |
| (=) Total Appraised Value: | = | $240,000 | |
| (–) Senior Exemption Loss: | – | $0 | |
| (–) Exemption Loss: | – | $0 | |
| | | -------------------------- | |
| (=) Taxable Value: | = | $240,000 | |
Taxing Jurisdiction
| Owner: | HILL, ALLISON FAITH | | |
| % Ownership: | 100.0000000000% | | |
| Total Value: | $240,000 | | |
| Tax Area: | 719 - APPRAISER-S Whid Schl Dist, outside Langley, vacant & 50 acres or less |
| CF | Conservation Futures | 0.0316035091 | $240,000 | $240,000 | $7.58 | | |
| HOBOND | Hospital BOND | 0.1910887512 | $240,000 | $240,000 | $45.86 | | |
| HOGEN | Hospital GEN | 0.3902502903 | $240,000 | $240,000 | $93.66 | | |
| CE | County Current Expense | 0.3708482477 | $240,000 | $240,000 | $89.00 | | |
| CR | County Roads | 0.4584763726 | $240,000 | $240,000 | $110.03 | | |
| ISLANDEMS | Hospital GEN (EMS) | 0.5000000000 | $240,000 | $240,000 | $120.00 | | |
| LIB | Library Sno-Isle GEN | 0.3153421757 | $240,000 | $240,000 | $75.68 | | |
| PORTWHID | Port of S Whidbey GEN | 0.1094540357 | $240,000 | $240,000 | $26.27 | | |
| SCH206BOND | School 206 BOND | 0.3161759235 | $240,000 | $240,000 | $75.88 | | |
| SCH206MO | School 206 Enrichment | 0.4547169547 | $240,000 | $240,000 | $109.13 | | |
| ST | State School | 1.3035497053 | $240,000 | $240,000 | $312.85 | | |
| ST2 | State School Part 2 | 0.8169543533 | $240,000 | $240,000 | $196.07 | | |
| SWHIDPRBD | P & R S Whidbey BOND | 0.0152817568 | $240,000 | $240,000 | $3.67 | | |
| SWHIDPRBD2 | P & R S Whidbey BOND2 | 0.0138911264 | $240,000 | $240,000 | $3.33 | | |
| SWHIDPRMT | P & R S Whidbey GEN | 0.2053334452 | $240,000 | $240,000 | $49.28 | | |
| | Total Tax Rate: | 5.4929666475 | | | | | |
| | | | | Taxes w/Current Exemptions: | $1,318.29 | | |
| | | | | Taxes w/o Exemptions: | $1,318.29 | | |
Improvement / Building
Sketch
| No sketches available for this property. |
Property Image
Land
| 1 | 32 | AC (03.01-09.99) | 5.0400 | 0.00 | 0.00 | 0.00 | 1.00 | $240,000 | $0 |
Roll Value History
| 2026 | N/A | N/A | N/A | N/A | N/A |
| 2025 | $0 | $240,000 | $0 | $240,000 | $240,000 |
| 2024 | $0 | $230,000 | $0 | $230,000 | $230,000 |
| 2023 | $0 | $200,000 | $0 | $200,000 | $200,000 |
| 2022 | $0 | $170,000 | $0 | $170,000 | $170,000 |
| 2021 | $0 | $150,000 | $0 | $150,000 | $150,000 |
| 2020 | $0 | $150,000 | $0 | $150,000 | $150,000 |
| 2019 | $0 | $135,000 | $0 | $135,000 | $135,000 |
| 2018 | $0 | $130,000 | $0 | $130,000 | $130,000 |
| 2017 | $0 | $130,000 | $0 | $130,000 | $130,000 |
| 2016 | $0 | $85,000 | $0 | $85,000 | $85,000 |
| 2015 | $0 | $100,000 | $0 | $100,000 | $100,000 |
| 2014 | $0 | $101,600 | $0 | $101,600 | $101,600 |
| 2013 | $0 | $126,000 | $0 | $126,000 | $126,000 |
| 2012 | $0 | $126,000 | $0 | $126,000 | $126,000 |
| 2011 | $0 | $126,000 | $0 | $126,000 | $126,000 |
| 2010 | $0 | $126,000 | $0 | $126,000 | $126,000 |
| 2009 | $0 | $171,360 | $0 | $171,360 | $171,360 |
| 2008 | $0 | $287,280 | $0 | $287,280 | $287,280 |
| 2007 | $0 | $287,280 | $0 | $287,280 | $287,280 |
Deed and Sales History
| 1 | 01/15/2025 | WD | Warranty Deed | SANTINI, LOUIS ANTHONY | HILL, ALLISON FAITH | | | $359,900.00 | 62349 | 4581428 |
| 2 | 09/10/2020 | WD | Warranty Deed | DRURY, GEOFF W | SANTINI, LOUIS ANTHONY | | | $265,000.00 | 44748 | 4496575 |
| 3 | 08/28/2020 | QCD | Quit Claim Deed | DRURY, WAYNE W | DRURY, GEOFF W | | | $0.00 | 44552 | 4495439 |
| 4 | 01/31/2019 | OTHER | Other - Misc. Documents | DRURY, WAYNE W | DRURY, GEOFF W | | | | 87960 | |
| 5 | 04/02/1998 | QCD | Quit Claim Deed | DRURY, WAYNE W | DRURY, WAYNE W | | | $0.00 | 81340 | 98008023 |
| 6 | 09/01/1980 | EXECUTORD | Executor Deed | OMNI, GROUP, I | DRURY, WAYNE W | | | $29,900.00 | 3033 | 373594 |
| 7 | 05/01/1979 | EXECUTORD | Executor Deed | Unknown | WILLIAMS, GEORGE E | | | $45,000.00 | 92542 | 353018 |
| 8 | 05/01/1979 | EXECUTORD | Executor Deed | WILLIAMS, GEORGE E | OMNI, GROUP, I | | | $0.00 | 3032 | 373595 |
| 9 | 01/01/1900 | OTHER | Other - Misc. Documents | DRURY, WAYNE W | DRURY, WAYNE W | | | $0.00 | 81340 | 98008023 |
Payout Agreement
| No payout information available.. |