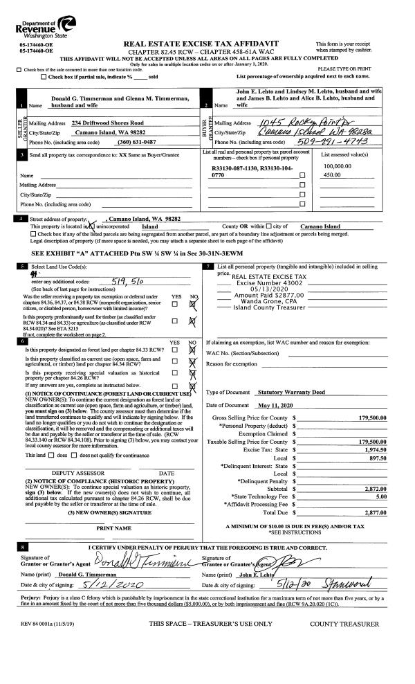
Property
Account |
| Property ID: | 492443 | Abbreviated Legal Description: | BG MC TO FRAC SEC 19-29-4E & FRAC SEC 24-29-3E N42*W 757' TPB S47*W340' N42*W150 N47*E340' S42*E150' TPB INCL ADJ TIDES FR 336-4580 & 324-4460 |
| Geographic ID: | R32924-330-4500 | Agent Code: | |
| Type: | Real | | |
| Tax Area: | 722 - APPRAISER-S Whid Schl Dist, Special District, improved, greater than 1 acre | Land Use Code | 11 |
| Open Space: | N | DFL | N |
| Historic Property: | N | Remodel Property: | N |
| Multi-Family Redevelopment: | N | | |
| Township: | 29 | Section: | 24 |
| Range: | R3 |
Location |
| Address: | 6180 BRIGHTON BEACH RD CLINTON, WA 98236 | Mapsco: | |
| Neighborhood: | Cycle 4 | Map ID: | 810 |
| Neighborhood CD: | 4 |
Owner |
| Name: | NORLING JTWROS, MARGARET S | Owner ID: | 292783 |
| Mailing Address: | DALLAS L SALISBURY, JTWROS 3311 GRAND AVE EVERETT, WA 98201-4212 | % Ownership: | 100.0000000000% |
| | | Exemptions: | |
Taxes and Assessment Details
Values
| (+) Improvement Homesite Value: | + | $0 | |
| (+) Improvement Non-Homesite Value: | + | $405,482 | |
| (+) Land Homesite Value: | + | $0 | |
| (+) Land Non-Homesite Value: | + | $826,500 | |
| (+) Curr Use (HS): | + | $0 | $0 |
| (+) Curr Use (NHS): | + | $0 | $0 |
| | | -------------------------- | |
| (=) Market Value: | = | $1,231,982 | |
| (–) Productivity Loss: | – | $0 | |
| | | -------------------------- | |
| (=) Subtotal: | = | $1,231,982 | |
| (+) Senior Appraised Value: | + | $0 | |
| (+) Non-Senior Appraised Value: | + | $1,231,982 | |
| | | -------------------------- | |
| (=) Total Appraised Value: | = | $1,231,982 | |
| (–) Senior Exemption Loss: | – | $0 | |
| (–) Exemption Loss: | – | $0 | |
| | | -------------------------- | |
| (=) Taxable Value: | = | $1,231,982 | |
Taxing Jurisdiction
| Owner: | NORLING JTWROS, MARGARET S | | |
| % Ownership: | 100.0000000000% | | |
| Total Value: | $1,231,982 | | |
| Tax Area: | 722 - APPRAISER-S Whid Schl Dist, Special District, improved, greater than 1 acre |
| CF | Conservation Futures | 0.0316035091 | $1,231,982 | $1,231,982 | $38.93 | | |
| FIRE3 | Fire & Rescue Dist #3 S Whidbey GEN | 1.2004855531 | $1,231,982 | $1,231,982 | $1,478.98 | | |
| HOBOND | Hospital BOND | 0.1910887512 | $1,231,982 | $1,231,982 | $235.42 | | |
| HOGEN | Hospital GEN | 0.3902502903 | $1,231,982 | $1,231,982 | $480.78 | | |
| CE | County Current Expense | 0.3708482477 | $1,231,982 | $1,231,982 | $456.88 | | |
| CR | County Roads | 0.4584763726 | $1,231,982 | $1,231,982 | $564.83 | | |
| ISLANDEMS | Hospital GEN (EMS) | 0.5000000000 | $1,231,982 | $1,231,982 | $615.99 | | |
| LIB | Library Sno-Isle GEN | 0.3153421757 | $1,231,982 | $1,231,982 | $388.50 | | |
| PORTWHID | Port of S Whidbey GEN | 0.1094540357 | $1,231,982 | $1,231,982 | $134.85 | | |
| SCH206BOND | School 206 BOND | 0.3161759235 | $1,231,982 | $1,231,982 | $389.52 | | |
| SCH206MO | School 206 Enrichment | 0.4547169547 | $1,231,982 | $1,231,982 | $560.20 | | |
| ST | State School | 1.3035497053 | $1,231,982 | $1,231,982 | $1,605.95 | | |
| ST2 | State School Part 2 | 0.8169543533 | $1,231,982 | $1,231,982 | $1,006.47 | | |
| SWHIDPRBD | P & R S Whidbey BOND | 0.0152817568 | $1,231,982 | $1,231,982 | $18.83 | | |
| SWHIDPRBD2 | P & R S Whidbey BOND2 | 0.0138911264 | $1,231,982 | $1,231,982 | $17.11 | | |
| SWHIDPRMT | P & R S Whidbey GEN | 0.2053334452 | $1,231,982 | $1,231,982 | $252.97 | | |
| | Total Tax Rate: | 6.6934522006 | | | | | |
| | | | | Taxes w/Current Exemptions: | $8,246.21 | | |
| | | | | Taxes w/o Exemptions: | $8,246.21 | | |
Improvement / Building
| Improvement #1: | RESIDENTIAL | State Code: | Y | 2733.0 sqft | Value: | $405,482 |
| Bathrooms: | 2 | Bedrooms: | 4 | | Ceiling: | DRYWALL PAINTED | Exterior Wall/Cover: | WOOD SIDING | | Floor Covering: | CARPET/VINYL 80-20 | Floor Structure: | WOOD W/SUBFLOOR | | Foundation: | PEIRS | Heating: | WALL HEAT ELECTRIC | | Interior Finish: | DRYWALL PAINT | Plumbing Fixture Cnt: | 10 | | Roof Slope: | 3" IN 12" | Roof Structure/Cover: | BEAM ASPHALT |
|
| | Type | Description | Class CD | Sub Class CD | Year Built | Area |
| | BAS | BASE/MAIN FLOOR | 4 | 0 | 1906 | 1329.0 |
| | UTY | STORAGE/UTILITY | 4 | 0 | 1906 | 238.0 |
| | UPS | UPPER STORY | 4 | 0 | 1906 | 1208.0 |
| | OWC | OPEN WOOD PORCH W/STEPS/ROOF/C | 4 | 0 | 1906 | 64.0 |
| | OWP | OPEN WOOD PORCH W/STEPS | 4 | 0 | 1906 | 107.0 |
| | OWP | OPEN WOOD PORCH W/STEPS | 4 | 0 | 1906 | 451.0 |
| | OWP | OPEN WOOD PORCH W/STEPS | 4 | 0 | 1906 | 1014.0 |
| | UPH | HALF STORY | 4 | 0 | 1906 | 196.0 |
Sketch
Property Image
Land
| 1 | LB | LOW BANK | 1.1600 | 50529.60 | 150.00 | 0.00 | 1.00 | $825,000 | $0 |
| 2 | 55 | TIDES | 0.0000 | 0.00 | 150.00 | 0.00 | 1.00 | $1,500 | $0 |
Roll Value History
| 2026 | N/A | N/A | N/A | N/A | N/A |
| 2025 | $405,482 | $826,500 | $0 | $1,231,982 | $1,231,982 |
| 2024 | $411,173 | $801,500 | $0 | $1,212,673 | $1,212,673 |
| 2023 | $416,864 | $801,500 | $0 | $1,218,364 | $1,218,364 |
| 2022 | $382,633 | $776,500 | $0 | $1,159,133 | $1,159,133 |
| 2021 | $337,196 | $701,500 | $0 | $1,038,696 | $1,038,696 |
| 2020 | $219,800 | $651,500 | $0 | $871,300 | $871,300 |
| 2019 | $171,364 | $601,500 | $0 | $772,864 | $772,864 |
| 2018 | $172,201 | $601,500 | $0 | $773,701 | $773,701 |
| 2017 | $173,871 | $601,500 | $0 | $775,371 | $775,371 |
| 2016 | $177,215 | $601,500 | $0 | $778,715 | $778,715 |
| 2015 | $180,559 | $601,500 | $0 | $782,059 | $782,059 |
| 2014 | $197,441 | $601,500 | $0 | $798,941 | $798,941 |
| 2013 | $200,668 | $618,465 | $0 | $819,133 | $819,133 |
| 2012 | $203,893 | $618,465 | $0 | $822,358 | $822,358 |
| 2011 | $207,120 | $727,341 | $0 | $934,461 | $934,461 |
| 2010 | $225,229 | $727,341 | $0 | $952,570 | $952,570 |
| 2009 | $235,567 | $908,800 | $0 | $1,144,367 | $246,656 |
| 2008 | $174,957 | $908,800 | $0 | $1,083,757 | $246,656 |
| 2007 | $173,760 | $912,239 | $0 | $1,085,999 | $246,656 |
Deed and Sales History
| 1 | 11/25/2019 | QCD | Quit Claim Deed | SALISBURY, DALLAS L | NORLING JTWROS, MARGARET S | | | $0.00 | 41344 | 4476866 |
| 2 | 10/25/2018 | QCD | Quit Claim Deed | SALISBURY, DALLAS L | SALISBURY, DALLAS L | | | $0.00 | 36765 | 4455548 |
| 3 | 01/07/2016 | QCD | Quit Claim Deed | SALISBURY, DALLAS L | SALISBURY, DALLAS L | | | $0.00 | 22818 | 4392474 |
| 4 | 10/15/2015 | QCD | Quit Claim Deed | NORLING, MARGARET S | SALISBURY, DALLAS L | | | $0.00 | 21926 | 4388457 |
| 5 | 01/09/2014 | QCD | Quit Claim Deed | NORLING, MARGARET S | NORLING, MARGARET S | | | $0.00 | 13995 | 4353853 |
| 6 | 09/17/2013 | QCD | Quit Claim Deed | NORLING, MARGARET S | NORLING, MARGARET S | | | $0.00 | 13751 | 4352753 |
| 7 | 09/10/2012 | QCD | Quit Claim Deed | SALISBURY, ISABELLE R | NORLING, MARGARET S | | | $0.00 | 8877 | 4323272 |
| 8 | 04/28/2008 | OTHER | Other - Misc. Documents | SALISBURY, JONATHAN C | SALISBURY, ISABELLE R | | | $0.00 | 80715 | 0 |
| 9 | 03/01/1995 | QCD | Quit Claim Deed | SALISBURY, JONATHAN C | SALISBURY, JONATHAN C | | | $0.00 | 50835 | 95004139 |
| 10 | 02/01/1992 | QCD | Quit Claim Deed | SALISBURY, JONATHAN C | SALISBURY, JONATHAN C | | | $0.00 | 20601 | 92002921 |
| 11 | 02/01/1992 | QCD | Quit Claim Deed | SALISBURY, JONATHAN C | SALISBURY, JONATHAN C | | | $0.00 | 20602 | 92002920 |
| 12 | 02/01/1992 | QCD | Quit Claim Deed | SALISBURY, JONATHAN C | SALISBURY, JONATHAN C | | | $0.00 | 20603 | 92002919 |
| 13 | 02/01/1980 | TRUSTEED | Trustee's Deed | SALISBURY, J C | SALISBURY, JONATHAN C | | | $0.00 | 497 | 365092 |
| 14 | 01/01/1900 | OTHER | Other - Misc. Documents | Unknown | SALISBURY, J C | | | $0.00 | 0 | 0 |
Payout Agreement
| No payout information available.. |