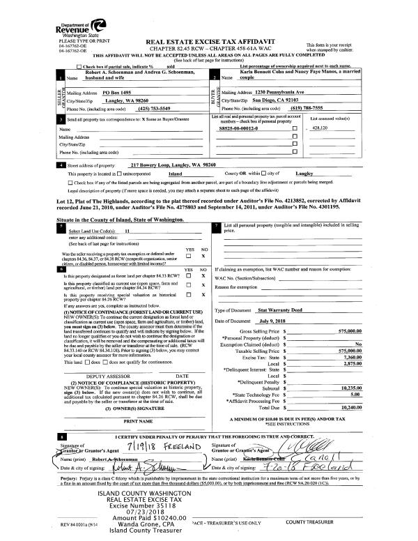
Property
Account |
| Property ID: | 492498 | Abbreviated Legal Description: | REPLACES 5004450 BG NWCR NE NE S89*E135.62' TPB S89*E475.59' S51*E62.69 ALG CUR/R .99' S2*W456.31' N89*W528.03' N2*E495.64' TPB TGW SUB EZ FR 4614450 (LOT 19 SUR V4 P398 AF#352744) |
| Geographic ID: | R33031-490-4700 | Agent Code: | |
| Type: | Real | | |
| Tax Area: | 712 - APPRAISER-S Whid Schl Dist, outside Langley, improved, greater than 1 acre | Land Use Code | 11 |
| Open Space: | N | DFL | N |
| Historic Property: | N | Remodel Property: | N |
| Multi-Family Redevelopment: | N | | |
| Township: | 30 | Section: | 31 |
| Range: | R3 |
Location |
| Address: | 4402 LONE LAKE RD LANGLEY, WA 98260 | Mapsco: | |
| Neighborhood: | Cycle 4 | Map ID: | 903 |
| Neighborhood CD: | 4 |
Owner |
| Name: | ALEY, WILLIAM ROBERT | Owner ID: | 307417 |
| Mailing Address: | 4402 LONE LAKE RD LANGLEY, WA 98260 | % Ownership: | 100.0000000000% |
| | | Exemptions: | |
Taxes and Assessment Details
Values
| (+) Improvement Homesite Value: | + | $0 | |
| (+) Improvement Non-Homesite Value: | + | $317,704 | |
| (+) Land Homesite Value: | + | $0 | |
| (+) Land Non-Homesite Value: | + | $380,000 | |
| (+) Curr Use (HS): | + | $0 | $0 |
| (+) Curr Use (NHS): | + | $0 | $0 |
| | | -------------------------- | |
| (=) Market Value: | = | $697,704 | |
| (–) Productivity Loss: | – | $0 | |
| | | -------------------------- | |
| (=) Subtotal: | = | $697,704 | |
| (+) Senior Appraised Value: | + | $0 | |
| (+) Non-Senior Appraised Value: | + | $697,704 | |
| | | -------------------------- | |
| (=) Total Appraised Value: | = | $697,704 | |
| (–) Senior Exemption Loss: | – | $0 | |
| (–) Exemption Loss: | – | $0 | |
| | | -------------------------- | |
| (=) Taxable Value: | = | $697,704 | |
Taxing Jurisdiction
| Owner: | ALEY, WILLIAM ROBERT | | |
| % Ownership: | 100.0000000000% | | |
| Total Value: | $697,704 | | |
| Tax Area: | 712 - APPRAISER-S Whid Schl Dist, outside Langley, improved, greater than 1 acre |
| CF | Conservation Futures | 0.0316035091 | $697,704 | $697,704 | $22.05 | | |
| FIRE3 | Fire & Rescue Dist #3 S Whidbey GEN | 1.2004855531 | $697,704 | $697,704 | $837.58 | | |
| HOBOND | Hospital BOND | 0.1910887512 | $697,704 | $697,704 | $133.32 | | |
| HOGEN | Hospital GEN | 0.3902502903 | $697,704 | $697,704 | $272.28 | | |
| CE | County Current Expense | 0.3708482477 | $697,704 | $697,704 | $258.74 | | |
| CR | County Roads | 0.4584763726 | $697,704 | $697,704 | $319.88 | | |
| ISLANDEMS | Hospital GEN (EMS) | 0.5000000000 | $697,704 | $697,704 | $348.85 | | |
| LIB | Library Sno-Isle GEN | 0.3153421757 | $697,704 | $697,704 | $220.02 | | |
| PORTWHID | Port of S Whidbey GEN | 0.1094540357 | $697,704 | $697,704 | $76.37 | | |
| SCH206BOND | School 206 BOND | 0.3161759235 | $697,704 | $697,704 | $220.60 | | |
| SCH206MO | School 206 Enrichment | 0.4547169547 | $697,704 | $697,704 | $317.26 | | |
| ST | State School | 1.3035497053 | $697,704 | $697,704 | $909.49 | | |
| ST2 | State School Part 2 | 0.8169543533 | $697,704 | $697,704 | $569.99 | | |
| SWHIDPRBD | P & R S Whidbey BOND | 0.0152817568 | $697,704 | $697,704 | $10.66 | | |
| SWHIDPRBD2 | P & R S Whidbey BOND2 | 0.0138911264 | $697,704 | $697,704 | $9.69 | | |
| SWHIDPRMT | P & R S Whidbey GEN | 0.2053334452 | $697,704 | $697,704 | $143.26 | | |
| | Total Tax Rate: | 6.6934522006 | | | | | |
| | | | | Taxes w/Current Exemptions: | $4,670.04 | | |
| | | | | Taxes w/o Exemptions: | $4,670.04 | | |
Improvement / Building
| Improvement #1: | RESIDENTIAL | State Code: | Y | 1861.1 sqft | Value: | $317,704 |
| Bathrooms: | 3 | Bedrooms: | 3 | | Ceiling: | DRYWALL PAINTED | Exterior Wall/Cover: | WOOD SIDING | | Floor Covering: | CARPET/VINYL 80-20 | Floor Structure: | WOOD W/SUBFLOOR | | Foundation: | CONCRETE | Heating: | FHA GAS | | Interior Finish: | DRYWALL PAINT | Plumbing Fixture Cnt: | 12 | | Roof Slope: | 5" IN 12" | Roof Structure/Cover: | CJ ASPHALT |
|
| | Type | Description | Class CD | Sub Class CD | Year Built | Area |
| | BAS | BASE/MAIN FLOOR | 3 | 0 | 1990 | 1087.1 |
| | UB8 | BASEMENT UNFINISHED 8" | 3 | 0 | 1990 | 663.6 |
| | AGR | ATTACHED GARAGE | 3 | 0 | 1990 | 54.0 |
| | BIG | BUILT IN GARAGE | 3 | 0 | 1990 | 498.0 |
| | UPS | UPPER STORY | 3 | 0 | 1990 | 774.0 |
| | OWP | OPEN WOOD PORCH W/STEPS | 3 | 0 | 1990 | 62.1 |
| | OWP | OPEN WOOD PORCH W/STEPS | 3 | 0 | 1990 | 441.9 |
| | OWC | OPEN WOOD PORCH W/STEPS/ROOF/C | 3 | 0 | 1990 | 37.6 |
| | DGR | DETACHED GARAGE | 3 | 0 | 1990 | 1920.0 |
| | CPD | OPEN CARPORT DIRT FLOOR | 3 | 0 | 1990 | 1200.0 |
| | CPD | OPEN CARPORT DIRT FLOOR | 3 | 0 | 1990 | 864.0 |
Sketch
Property Image
Land
| 1 | 32 | AC (03.01-09.99) | 5.9800 | 0.00 | 0.00 | 0.00 | 1.00 | $380,000 | $0 |
Roll Value History
| 2026 | N/A | N/A | N/A | N/A | N/A |
| 2025 | $317,704 | $380,000 | $0 | $697,704 | $697,704 |
| 2024 | $321,811 | $350,000 | $0 | $671,811 | $671,811 |
| 2023 | $325,919 | $330,000 | $0 | $655,919 | $655,919 |
| 2022 | $299,666 | $290,000 | $0 | $589,666 | $589,666 |
| 2021 | $264,932 | $230,000 | $0 | $494,932 | $494,932 |
| 2020 | $241,678 | $190,000 | $0 | $431,678 | $431,678 |
| 2019 | $180,838 | $250,000 | $0 | $430,838 | $430,838 |
| 2018 | $181,408 | $210,000 | $0 | $391,408 | $391,408 |
| 2017 | $182,563 | $190,000 | $0 | $372,563 | $372,563 |
| 2016 | $189,081 | $135,000 | $0 | $324,081 | $324,081 |
| 2015 | $191,365 | $135,000 | $0 | $326,365 | $326,365 |
| 2014 | $202,921 | $161,460 | $0 | $364,381 | $364,381 |
| 2013 | $205,247 | $161,460 | $0 | $366,707 | $366,707 |
| 2012 | $207,576 | $161,460 | $0 | $369,036 | $369,036 |
| 2011 | $209,902 | $161,460 | $0 | $371,362 | $371,362 |
| 2010 | $220,676 | $161,460 | $0 | $382,136 | $382,136 |
| 2009 | $230,840 | $263,120 | $0 | $493,960 | $493,960 |
| 2008 | $235,423 | $299,957 | $0 | $535,380 | $535,380 |
| 2007 | $239,749 | $299,957 | $0 | $539,706 | $539,706 |
Deed and Sales History
| 1 | 01/30/2023 | WD | Warranty Deed | ALEY TTEE, WILLIAM D | ALEY, WILLIAM ROBERT | | | $547,000.00 | 55736 | 4556246 |
| 2 | 03/14/2018 | QCD | Quit Claim Deed | ALEY, WILLIAM D | ALEY TTEE, WILLIAM D | | | $0.00 | 33309 | 4440855 |
| 3 | 05/01/1989 | WD | Warranty Deed | WESTALL, RONALD E | ALEY, WILLIAM D | | | $24,800.00 | 92726 | 89009241 |
| 4 | 08/01/1982 | EZ | Easement | CROCKETT, ISABELL M | WESTALL, RONALD E | | | $0.00 | 21988 | 399665 |
| 5 | 08/01/1982 | PACD | Purchaser's Assignment | WESTALL, RONALD E | WESTALL, RONALD E | | | $0.00 | 92714 | 89009200 |
| 6 | 07/01/1980 | EXECUTORD | Executor Deed | OMNI, GROUP I | CROCKETT, ISABELL M | | | $33,900.00 | 2422 | 371330 |
| 7 | 01/01/1900 | OTHER | Other - Misc. Documents | Unknown | OMNI, GROUP I | | | $0.00 | 0 | 0 |
Payout Agreement
| No payout information available.. |