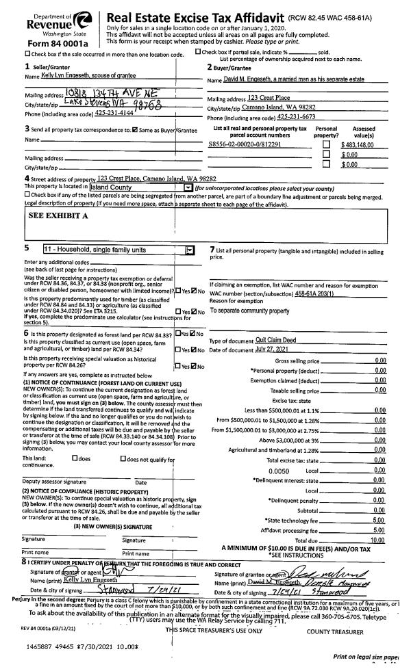
Property
Account |
| Property ID: | 492719 | Abbreviated Legal Description: | REPLACES 365-4650 BG SECR NE N2*E1326.24' N89*W486.26' TPB N89*W388' S6*W663.96' S89*E332.12' N11*E673.46' TPB FR 330-4430 (TR 16 V4 SUR P398 AF#352744) |
| Geographic ID: | R33031-355-4950 | Agent Code: | |
| Type: | Real | | |
| Tax Area: | 712 - APPRAISER-S Whid Schl Dist, outside Langley, improved, greater than 1 acre | Land Use Code | 11 |
| Open Space: | N | DFL | N |
| Historic Property: | N | Remodel Property: | N |
| Multi-Family Redevelopment: | N | | |
| Township: | 30 | Section: | 31 |
| Range: | R3 |
Location |
| Address: | 2744 PARKWOOD DR LANGLEY, WA 98260 | Mapsco: | |
| Neighborhood: | Cycle 4 | Map ID: | 903 |
| Neighborhood CD: | 4 |
Owner |
| Name: | TRISLER, DANA B | Owner ID: | 284712 |
| Mailing Address: | ANDREA K TRISLER 2744 PARKWOOD DR LANGLEY, WA 98260 | % Ownership: | 100.0000000000% |
| | | Exemptions: | |
Taxes and Assessment Details
Values
| (+) Improvement Homesite Value: | + | $0 | |
| (+) Improvement Non-Homesite Value: | + | $388,955 | |
| (+) Land Homesite Value: | + | $0 | |
| (+) Land Non-Homesite Value: | + | $380,000 | |
| (+) Curr Use (HS): | + | $0 | $0 |
| (+) Curr Use (NHS): | + | $0 | $0 |
| | | -------------------------- | |
| (=) Market Value: | = | $768,955 | |
| (–) Productivity Loss: | – | $0 | |
| | | -------------------------- | |
| (=) Subtotal: | = | $768,955 | |
| (+) Senior Appraised Value: | + | $0 | |
| (+) Non-Senior Appraised Value: | + | $768,955 | |
| | | -------------------------- | |
| (=) Total Appraised Value: | = | $768,955 | |
| (–) Senior Exemption Loss: | – | $0 | |
| (–) Exemption Loss: | – | $0 | |
| | | -------------------------- | |
| (=) Taxable Value: | = | $768,955 | |
Taxing Jurisdiction
| Owner: | TRISLER, DANA B | | |
| % Ownership: | 100.0000000000% | | |
| Total Value: | $768,955 | | |
| Tax Area: | 712 - APPRAISER-S Whid Schl Dist, outside Langley, improved, greater than 1 acre |
| CF | Conservation Futures | 0.0316035091 | $768,955 | $768,955 | $24.30 | | |
| FIRE3 | Fire & Rescue Dist #3 S Whidbey GEN | 1.2004855531 | $768,955 | $768,955 | $923.12 | | |
| HOBOND | Hospital BOND | 0.1910887512 | $768,955 | $768,955 | $146.94 | | |
| HOGEN | Hospital GEN | 0.3902502903 | $768,955 | $768,955 | $300.08 | | |
| CE | County Current Expense | 0.3708482477 | $768,955 | $768,955 | $285.17 | | |
| CR | County Roads | 0.4584763726 | $768,955 | $768,955 | $352.55 | | |
| ISLANDEMS | Hospital GEN (EMS) | 0.5000000000 | $768,955 | $768,955 | $384.48 | | |
| LIB | Library Sno-Isle GEN | 0.3153421757 | $768,955 | $768,955 | $242.48 | | |
| PORTWHID | Port of S Whidbey GEN | 0.1094540357 | $768,955 | $768,955 | $84.17 | | |
| SCH206BOND | School 206 BOND | 0.3161759235 | $768,955 | $768,955 | $243.13 | | |
| SCH206MO | School 206 Enrichment | 0.4547169547 | $768,955 | $768,955 | $349.66 | | |
| ST | State School | 1.3035497053 | $768,955 | $768,955 | $1,002.37 | | |
| ST2 | State School Part 2 | 0.8169543533 | $768,955 | $768,955 | $628.20 | | |
| SWHIDPRBD | P & R S Whidbey BOND | 0.0152817568 | $768,955 | $768,955 | $11.75 | | |
| SWHIDPRBD2 | P & R S Whidbey BOND2 | 0.0138911264 | $768,955 | $768,955 | $10.68 | | |
| SWHIDPRMT | P & R S Whidbey GEN | 0.2053334452 | $768,955 | $768,955 | $157.89 | | |
| | Total Tax Rate: | 6.6934522006 | | | | | |
| | | | | Taxes w/Current Exemptions: | $5,146.97 | | |
| | | | | Taxes w/o Exemptions: | $5,146.97 | | |
Improvement / Building
| Improvement #1: | RESIDENTIAL | State Code: | Y | 1541.8 sqft | Value: | $388,955 |
| Bathrooms: | 2 | Bedrooms: | 2 | | Ceiling: | DRYWALL PAINTED | Cooling: | HEAT PUMP/CONV/V | | Exterior Wall/Cover: | CEMENT FIBER | Floor Covering: | HARDWOOD/CARP 20-80 | | Floor Structure: | WOOD W/SUBFLOOR | Foundation: | CONCRETE | | Interior Finish: | DRYWALL PAINT | Plumbing Fixture Cnt: | 11 | | Roof Slope: | 3" IN 12" | Roof Structure/Cover: | CJ ALUMINIUM HEAVY |
|
| | Type | Description | Class CD | Sub Class CD | Year Built | Area |
| | BAS | BASE/MAIN FLOOR | 4 | 0 | 2019 | 1541.8 |
| | OWC | OPEN WOOD PORCH W/STEPS/ROOF/C | 4 | 0 | 2019 | 96.0 |
| | OWP | OPEN WOOD PORCH W/STEPS | 4 | 0 | 2019 | 64.0 |
| | OWP | OPEN WOOD PORCH W/STEPS | 4 | 0 | 2019 | 112.0 |
Sketch
Property Image
Land
| 1 | 32 | AC (03.01-09.99) | 5.4600 | 0.00 | 0.00 | 0.00 | 1.00 | $380,000 | $0 |
Roll Value History
| 2026 | N/A | N/A | N/A | N/A | N/A |
| 2025 | $388,955 | $380,000 | $0 | $768,955 | $768,955 |
| 2024 | $392,093 | $350,000 | $0 | $742,093 | $742,093 |
| 2023 | $395,229 | $330,000 | $0 | $725,229 | $725,229 |
| 2022 | $360,720 | $290,000 | $0 | $650,720 | $650,720 |
| 2021 | $316,961 | $230,000 | $0 | $546,961 | $546,961 |
| 2020 | $254,581 | $190,000 | $0 | $444,581 | $444,581 |
| 2019 | $13,830 | $135,000 | $0 | $148,830 | $148,830 |
| 2018 | $0 | $130,000 | $0 | $130,000 | $130,000 |
| 2017 | $0 | $130,000 | $0 | $130,000 | $130,000 |
| 2016 | $0 | $85,000 | $0 | $85,000 | $85,000 |
| 2015 | $0 | $100,000 | $0 | $100,000 | $100,000 |
| 2014 | $0 | $109,200 | $0 | $109,200 | $109,200 |
| 2013 | $0 | $136,500 | $0 | $136,500 | $136,500 |
| 2012 | $0 | $136,500 | $0 | $136,500 | $136,500 |
| 2011 | $0 | $136,500 | $0 | $136,500 | $136,500 |
| 2010 | $0 | $136,500 | $0 | $136,500 | $136,500 |
| 2009 | $0 | $185,640 | $0 | $185,640 | $185,640 |
| 2008 | $0 | $294,038 | $0 | $294,038 | $294,038 |
| 2007 | $0 | $294,038 | $0 | $294,038 | $294,038 |
Deed and Sales History
| 1 | 04/17/2018 | WD | Warranty Deed | LODHOLM, VALDEMAR | TRISLER, DANA B | | | $137,500.00 | 33786 | 4443095 |
| 2 | 07/19/2017 | WD | Warranty Deed | STANDAL, PAMELA J | LODHOLM, VALDEMAR | | | $135,000.00 | 30310 | 4426816 |
| 3 | 08/01/1991 | WD | Warranty Deed | STANDAL, ROBERT S | STANDAL, PAMELA J | | | $0.00 | 13054 | 91013068 |
| 4 | 07/01/1980 | CD | DNU - Correction Deed | WILLIAMS, GEORGE E | OMNI, GROUP I | | | $0.00 | 2273 | 370811 |
| 5 | 07/01/1980 | EXECUTORD | Executor Deed | OMNI, GROUP I | STANDAL, ROBERT S | | | $28,900.00 | 2274 | 370810 |
| 6 | 05/01/1979 | CD | DNU - Correction Deed | Unknown | WILLIAMS, GEORGE E | | | $45,000.00 | 92176 | 352125 |
Payout Agreement
| No payout information available.. |