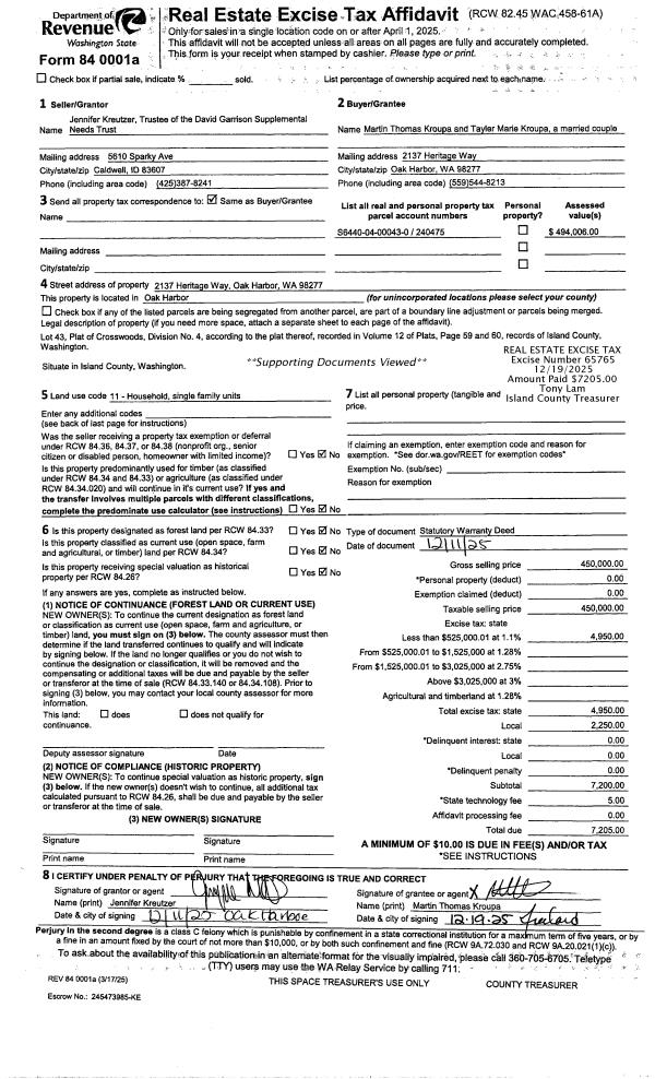
Property
Account |
| Property ID: | 49272 | Abbreviated Legal Description: | 90 - IN GL1:BG 500'S & 410' E OF NW CR GL1 E40' S346.76 TO ML N77*W61.57' N90' N3* E243.62' TPB TGW ADJ TIDE LANDS |
| Geographic ID: | R22909-072-0420 | Agent Code: | |
| Type: | Real | | |
| Tax Area: | 710 - APPRAISER-S Whid Schl Dist, outside Langley, improved & 1 acre or less | Land Use Code | 11 |
| Open Space: | N | DFL | N |
| Historic Property: | N | Remodel Property: | N |
| Multi-Family Redevelopment: | N | | |
| Township: | 29 | Section: | 09 |
| Range: | R2 |
Location |
| Address: | 5535 SHORE MEADOW RD FREELAND, WA 98249 | Mapsco: | |
| Neighborhood: | Cycle 3 | Map ID: | 305 |
| Neighborhood CD: | 3 |
Owner |
| Name: | RICHARDS, ELAINE E | Owner ID: | 186179 |
| Mailing Address: | 19002 KENLAKE PL NE KENMORE, WA 98028-3239 | % Ownership: | 100.0000000000% |
| | | Exemptions: | |
Taxes and Assessment Details
Values
| (+) Improvement Homesite Value: | + | $0 | |
| (+) Improvement Non-Homesite Value: | + | $32,501 | |
| (+) Land Homesite Value: | + | $0 | |
| (+) Land Non-Homesite Value: | + | $1,005,510 | |
| (+) Curr Use (HS): | + | $0 | $0 |
| (+) Curr Use (NHS): | + | $0 | $0 |
| | | -------------------------- | |
| (=) Market Value: | = | $1,038,011 | |
| (–) Productivity Loss: | – | $0 | |
| | | -------------------------- | |
| (=) Subtotal: | = | $1,038,011 | |
| (+) Senior Appraised Value: | + | $0 | |
| (+) Non-Senior Appraised Value: | + | $1,038,011 | |
| | | -------------------------- | |
| (=) Total Appraised Value: | = | $1,038,011 | |
| (–) Senior Exemption Loss: | – | $0 | |
| (–) Exemption Loss: | – | $0 | |
| | | -------------------------- | |
| (=) Taxable Value: | = | $1,038,011 | |
Taxing Jurisdiction
| Owner: | RICHARDS, ELAINE E | | |
| % Ownership: | 100.0000000000% | | |
| Total Value: | $1,038,011 | | |
| Tax Area: | 710 - APPRAISER-S Whid Schl Dist, outside Langley, improved & 1 acre or less |
| CF | Conservation Futures | 0.0316035091 | $1,038,011 | $1,038,011 | $32.80 | | |
| FIRE3 | Fire & Rescue Dist #3 S Whidbey GEN | 1.2004855531 | $1,038,011 | $1,038,011 | $1,246.12 | | |
| HOBOND | Hospital BOND | 0.1910887512 | $1,038,011 | $1,038,011 | $198.35 | | |
| HOGEN | Hospital GEN | 0.3902502903 | $1,038,011 | $1,038,011 | $405.08 | | |
| CE | County Current Expense | 0.3708482477 | $1,038,011 | $1,038,011 | $384.94 | | |
| CR | County Roads | 0.4584763726 | $1,038,011 | $1,038,011 | $475.90 | | |
| ISLANDEMS | Hospital GEN (EMS) | 0.5000000000 | $1,038,011 | $1,038,011 | $519.01 | | |
| LIB | Library Sno-Isle GEN | 0.3153421757 | $1,038,011 | $1,038,011 | $327.33 | | |
| PORTWHID | Port of S Whidbey GEN | 0.1094540357 | $1,038,011 | $1,038,011 | $113.61 | | |
| SCH206BOND | School 206 BOND | 0.3161759235 | $1,038,011 | $1,038,011 | $328.19 | | |
| SCH206MO | School 206 Enrichment | 0.4547169547 | $1,038,011 | $1,038,011 | $472.00 | | |
| ST | State School | 1.3035497053 | $1,038,011 | $1,038,011 | $1,353.10 | | |
| ST2 | State School Part 2 | 0.8169543533 | $1,038,011 | $1,038,011 | $848.01 | | |
| SWHIDPRBD | P & R S Whidbey BOND | 0.0152817568 | $1,038,011 | $1,038,011 | $15.86 | | |
| SWHIDPRBD2 | P & R S Whidbey BOND2 | 0.0138911264 | $1,038,011 | $1,038,011 | $14.42 | | |
| SWHIDPRMT | P & R S Whidbey GEN | 0.2053334452 | $1,038,011 | $1,038,011 | $213.14 | | |
| | Total Tax Rate: | 6.6934522006 | | | | | |
| | | | | Taxes w/Current Exemptions: | $6,947.86 | | |
| | | | | Taxes w/o Exemptions: | $6,947.86 | | |
Improvement / Building
| Improvement #1: | MANUFACTURED HOME | State Code: | Y | 924.0 sqft | Value: | $32,501 |
| Bathrooms: | 0 | Bedrooms: | 0 | | Ceiling: | PLASTER PAINTED | Cooling: | EVAP NO DUCT | | Exterior Wall/Cover: | VINYL | Floor Covering: | CARPET 100% | | Floor Structure: | SLAB ON GRADE | Foundation: | SLAB | | Heating: | FHA ELECTRIC | Interior Finish: | PLASTER | | Plumbing Fixture Cnt: | 1 | Roof Slope: | FLAT | | Roof Structure/Cover: | CJ ALUMINIUM HEAVY |   |   |
|
| | Type | Description | Class CD | Sub Class CD | Year Built | Area |
| | BAS | BASE/MAIN FLOOR | 3 | 0 | 1975 | 924.0 |
| | DGR | DETACHED GARAGE | 3 | 0 | 1975 | 768.0 |
| | UTY | STORAGE/UTILITY | 3 | 0 | 1975 | 96.0 |
| | OWP | OPEN WOOD PORCH W/STEPS | 3 | 0 | 1975 | 1183.0 |
Sketch
Property Image
Land
| 1 | LB | LOW BANK | 0.0000 | 0.00 | 51.00 | 0.00 | 1.00 | $1,005,000 | $0 |
| 2 | 55 | TIDES | 0.0000 | 0.00 | 51.00 | 0.00 | 1.00 | $510 | $0 |
Roll Value History
| 2026 | N/A | N/A | N/A | N/A | N/A |
| 2025 | $32,501 | $1,005,510 | $0 | $1,038,011 | $1,038,011 |
| 2024 | $33,501 | $1,005,510 | $0 | $1,039,011 | $1,039,011 |
| 2023 | $34,501 | $1,005,510 | $0 | $1,040,011 | $1,040,011 |
| 2022 | $33,821 | $960,510 | $0 | $994,331 | $994,331 |
| 2021 | $33,131 | $800,510 | $0 | $833,641 | $833,641 |
| 2020 | $33,202 | $800,510 | $0 | $833,712 | $833,712 |
| 2019 | $30,081 | $700,510 | $0 | $730,591 | $730,591 |
| 2018 | $30,342 | $625,510 | $0 | $655,852 | $655,852 |
| 2017 | $30,864 | $500,510 | $0 | $531,374 | $531,374 |
| 2016 | $31,125 | $500,510 | $0 | $531,635 | $531,635 |
| 2015 | $31,647 | $500,510 | $0 | $532,157 | $532,157 |
| 2014 | $32,169 | $453,864 | $0 | $486,033 | $486,033 |
| 2013 | $38,294 | $453,864 | $0 | $492,158 | $492,158 |
| 2012 | $38,703 | $453,864 | $0 | $492,567 | $492,567 |
| 2011 | $39,111 | $453,864 | $0 | $492,975 | $492,975 |
| 2010 | $37,590 | $453,864 | $0 | $491,454 | $491,454 |
| 2009 | $38,574 | $540,216 | $0 | $578,790 | $578,790 |
| 2008 | $39,100 | $540,216 | $0 | $579,316 | $579,316 |
| 2007 | $40,106 | $539,860 | $0 | $579,966 | $579,966 |
Deed and Sales History
| 1 | 09/04/2001 | QCD | Quit Claim Deed | RICHARDS, GEORGE O | RICHARDS, ELAINE E | | | $0.00 | 13576 | 20042999 |
| 2 | 01/01/1900 | OTHER | Other - Misc. Documents | Unknown | RICHARDS, GEORGE O | | | $0.00 | 0 | 0 |
Payout Agreement
| No payout information available.. |