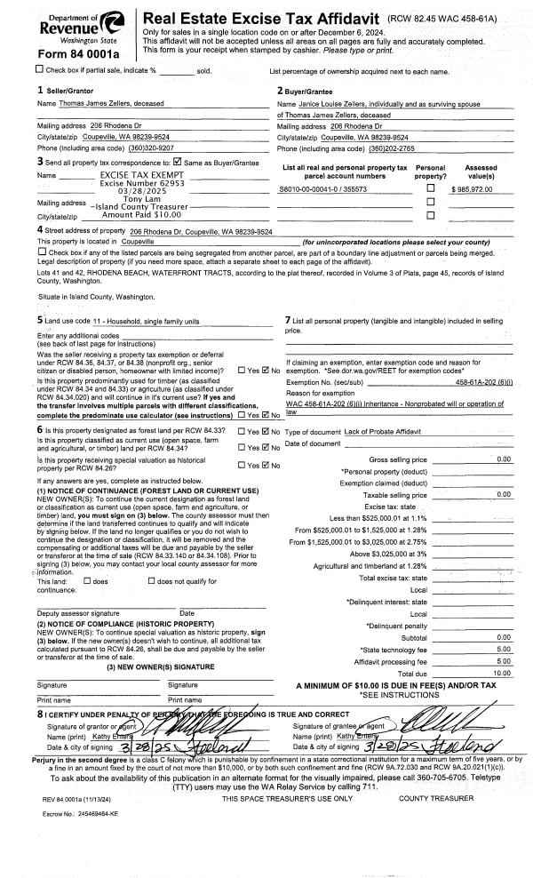
Property
Account |
| Property ID: | 493 | Abbreviated Legal Description: | 19 - IN GL4:BG SE CR SW SE N88*W1961.22' TPB N14*E430. 27' S88*E471.42' TO WLN EL CINE ST PROJ NLY FR SIERRA #3 S ALG SD ST 419.56' N88* W566.81' TPB TGW EZ |
| Geographic ID: | R03224-021-2360 | Agent Code: | |
| Type: | Real | | |
| Tax Area: | 332 - APPRAISER-Cpvl Schl Dist, Special Dist, improved, greater than 1 acre | Land Use Code | 11 |
| Open Space: | N | DFL | N |
| Historic Property: | N | Remodel Property: | N |
| Multi-Family Redevelopment: | N | | |
| Township: | 32 | Section: | 24 |
| Range: | R0 |
Location |
| Address: | 815 EL CINE ST COUPEVILLE, WA 98239 | Mapsco: | |
| Neighborhood: | Area 2 Waterfront Westside Res | Map ID: | 3 |
| Neighborhood CD: | 2WFTW01R |
Owner |
| Name: | MORSE JTWROS, MICHAEL W | Owner ID: | 264348 |
| Mailing Address: | CAROLINE J MORSE JTWROS 815 EL CINE ST COUPEVILLE, WA 98239 | % Ownership: | 100.0000000000% |
| | | Exemptions: | |
Taxes and Assessment Details
Values
| (+) Improvement Homesite Value: | + | $0 | |
| (+) Improvement Non-Homesite Value: | + | $486,871 | |
| (+) Land Homesite Value: | + | $0 | |
| (+) Land Non-Homesite Value: | + | $331,428 | |
| (+) Curr Use (HS): | + | $0 | $0 |
| (+) Curr Use (NHS): | + | $0 | $0 |
| | | -------------------------- | |
| (=) Market Value: | = | $818,299 | |
| (–) Productivity Loss: | – | $0 | |
| | | -------------------------- | |
| (=) Subtotal: | = | $818,299 | |
| (+) Senior Appraised Value: | + | $0 | |
| (+) Non-Senior Appraised Value: | + | $818,299 | |
| | | -------------------------- | |
| (=) Total Appraised Value: | = | $818,299 | |
| (–) Senior Exemption Loss: | – | $0 | |
| (–) Exemption Loss: | – | $0 | |
| | | -------------------------- | |
| (=) Taxable Value: | = | $818,299 | |
Taxing Jurisdiction
| Owner: | MORSE JTWROS, MICHAEL W | | |
| % Ownership: | 100.0000000000% | | |
| Total Value: | $818,299 | | |
| Tax Area: | 332 - APPRAISER-Cpvl Schl Dist, Special Dist, improved, greater than 1 acre |
| CF | Conservation Futures | 0.0316035091 | $818,299 | $818,299 | $25.86 | | |
| CEM2 | Cemetery #2 | 0.0095056933 | $818,299 | $818,299 | $7.78 | | |
| FIRE2 | Fire & Rescue Dist #2 N Whidbey GEN | 0.5475949600 | $818,299 | $818,299 | $448.10 | | |
| HOBOND | Hospital BOND | 0.1910887512 | $818,299 | $818,299 | $156.37 | | |
| HOGEN | Hospital GEN | 0.3902502903 | $818,299 | $818,299 | $319.34 | | |
| CE | County Current Expense | 0.3708482477 | $818,299 | $818,299 | $303.46 | | |
| CR | County Roads | 0.4584763726 | $818,299 | $818,299 | $375.17 | | |
| ISLANDEMS | Hospital GEN (EMS) | 0.5000000000 | $818,299 | $818,299 | $409.15 | | |
| LIB | Library Sno-Isle GEN | 0.3153421757 | $818,299 | $818,299 | $258.04 | | |
| LIBCAP | Library Sno-Isle BOND (Cap Fac Imp Area) | 0.0543427938 | $818,299 | $818,299 | $44.47 | | |
| POCOUP | Port of Coupeville GEN | 0.1093371703 | $818,299 | $818,299 | $89.47 | | |
| POCOUPIDD | Port of Coupeville IDD | 0.3409740022 | $818,299 | $818,299 | $279.02 | | |
| COUPSDTECH | School 204 CP (TECH) | 0.7545480007 | $818,299 | $818,299 | $617.45 | | |
| SCH204MO | School 204 Enrichment | 0.6716186034 | $818,299 | $818,299 | $549.58 | | |
| ST | State School | 1.3035497053 | $818,299 | $818,299 | $1,066.69 | | |
| ST2 | State School Part 2 | 0.8169543533 | $818,299 | $818,299 | $668.51 | | |
| | Total Tax Rate: | 6.8660346289 | | | | | |
| | | | | Taxes w/Current Exemptions: | $5,618.46 | | |
| | | | | Taxes w/o Exemptions: | $5,618.46 | | |
Improvement / Building
| Improvement #1: | RESIDENTIAL | State Code: | Y | 2052.3 sqft | Value: | $486,871 |
| Bathrooms: | 2 | Bedrooms: | 2 | | Ceiling: | DRYWALL PAINTED | Exterior Wall/Cover: | CEMENT FIBER | | Floor Covering: | CARPET/VINYL 80-20 | Floor Structure: | WOOD W/SUBFLOOR | | Foundation: | CONCRETE | Heating: | FHA GAS | | Interior Finish: | DRYWALL PAINT | Plumbing Fixture Cnt: | 11 | | Roof Slope: | 10" IN 12" | Roof Structure/Cover: | CJ ASPHALT |
|
| | Type | Description | Class CD | Sub Class CD | Year Built | Area |
| | BAS | BASE/MAIN FLOOR | 3 | 0 | 2003 | 2052.3 |
| | OP1 | OPEN PORCH SLAB | 3 | 0 | 2003 | 1710.4 |
| | OP2 | OPEN PORCH W/STEPS | 3 | 0 | 2003 | 73.6 |
| | AGR | ATTACHED GARAGE | 3 | 0 | 2003 | 758.4 |
| | OWP | OPEN WOOD PORCH W/STEPS | 3 | 0 | 2003 | 70.5 |
| | OWC | OPEN WOOD PORCH W/STEPS/ROOF/C | 3 | 0 | 2003 | 180.6 |
| | DGR | DETACHED GARAGE | 3 | 0 | 2003 | 1680.0 |
Sketch
Property Image
Land
| 1 | HS | HOMESITE | 1.0000 | 43560.00 | 0.00 | 0.00 | 1.00 | $270,000 | $0 |
| 2 | 91 | UNDEVELOPED LAND-METES AND BOUNDS | 4.0000 | 174240.00 | 0.00 | 0.00 | 1.00 | $61,428 | $0 |
Roll Value History
| 2026 | N/A | N/A | N/A | N/A | N/A |
| 2025 | $486,871 | $331,428 | $0 | $818,299 | $818,299 |
| 2024 | $470,505 | $320,000 | $0 | $790,505 | $790,505 |
| 2023 | $475,961 | $310,000 | $0 | $785,961 | $785,961 |
| 2022 | $435,924 | $290,000 | $0 | $725,924 | $725,924 |
| 2021 | $383,378 | $220,000 | $0 | $603,378 | $603,378 |
| 2020 | $372,539 | $200,000 | $0 | $572,539 | $572,539 |
| 2019 | $284,925 | $250,000 | $0 | $534,925 | $534,925 |
| 2018 | $264,637 | $240,000 | $0 | $504,637 | $504,637 |
| 2017 | $265,875 | $175,000 | $0 | $440,875 | $440,875 |
| 2016 | $268,470 | $175,000 | $0 | $443,470 | $443,470 |
| 2015 | $271,067 | $175,000 | $0 | $446,067 | $446,067 |
| 2014 | $273,663 | $166,500 | $0 | $440,163 | $440,163 |
| 2013 | $276,259 | $166,500 | $0 | $442,759 | $442,759 |
| 2012 | $281,518 | $166,500 | $0 | $448,018 | $448,018 |
| 2011 | $284,152 | $185,000 | $0 | $469,152 | $469,152 |
| 2010 | $287,329 | $155,000 | $0 | $442,329 | $442,329 |
| 2009 | $299,100 | $160,000 | $0 | $459,100 | $459,100 |
| 2008 | $305,543 | $190,000 | $0 | $495,543 | $495,543 |
| 2007 | $306,667 | $180,000 | $0 | $486,667 | $486,667 |
Deed and Sales History
| 1 | 11/21/2013 | WD | Warranty Deed | MORSE, MICHAEL W | MORSE JTWROS, MICHAEL W | | | $0.00 | 13508 | 4351673 |
| 2 | 08/09/2002 | WD | Warranty Deed | MORSE, MICHAEL W | MORSE, MICHAEL W | | | $0.00 | 31550 | 4055136 |
| 3 | 08/09/2002 | WD | Warranty Deed | BROWN, CHARLES A | MORSE, MICHAEL W | | | $161,000.00 | 23264 | 4028913 |
| 4 | 01/01/1900 | OTHER | Other - Misc. Documents | Unknown | BROWN, CHARLES A | | | $0.00 | 0 | 0 |
Payout Agreement
| No payout information available.. |