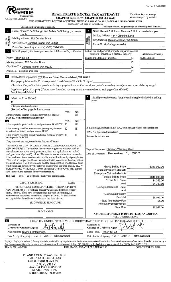
Property
Account |
| Property ID: | 493175 | Abbreviated Legal Description: | REPLACES 2420090 31 - IN GL 1: S50'OF N160' OF GL 1 MEAS ALG WLN INCL ADJ TIDES |
| Geographic ID: | R32813-501-0090 | Agent Code: | |
| Type: | Real | | |
| Tax Area: | 710 - APPRAISER-S Whid Schl Dist, outside Langley, improved & 1 acre or less | Land Use Code | 11 |
| Open Space: | N | DFL | N |
| Historic Property: | N | Remodel Property: | N |
| Multi-Family Redevelopment: | N | | |
| Township: | 28 | Section: | 13 |
| Range: | R3 |
Location |
| Address: | 8014 POSSESSION RD CLINTON, WA 98236 | Mapsco: | |
| Neighborhood: | Cycle 4 | Map ID: | 707 |
| Neighborhood CD: | 4 |
Owner |
| Name: | PERKINS, AARON J | Owner ID: | 282961 |
| Mailing Address: | KIMBERLY S PERKINS 2419 8TH AVE W SEATTLE, WA 98119-2516 | % Ownership: | 100.0000000000% |
| | | Exemptions: | |
Taxes and Assessment Details
Values
| (+) Improvement Homesite Value: | + | $0 | |
| (+) Improvement Non-Homesite Value: | + | $323,073 | |
| (+) Land Homesite Value: | + | $0 | |
| (+) Land Non-Homesite Value: | + | $400,510 | |
| (+) Curr Use (HS): | + | $0 | $0 |
| (+) Curr Use (NHS): | + | $0 | $0 |
| | | -------------------------- | |
| (=) Market Value: | = | $723,583 | |
| (–) Productivity Loss: | – | $0 | |
| | | -------------------------- | |
| (=) Subtotal: | = | $723,583 | |
| (+) Senior Appraised Value: | + | $0 | |
| (+) Non-Senior Appraised Value: | + | $723,583 | |
| | | -------------------------- | |
| (=) Total Appraised Value: | = | $723,583 | |
| (–) Senior Exemption Loss: | – | $0 | |
| (–) Exemption Loss: | – | $0 | |
| | | -------------------------- | |
| (=) Taxable Value: | = | $723,583 | |
Taxing Jurisdiction
| Owner: | PERKINS, AARON J | | |
| % Ownership: | 100.0000000000% | | |
| Total Value: | $723,583 | | |
| Tax Area: | 710 - APPRAISER-S Whid Schl Dist, outside Langley, improved & 1 acre or less |
| CF | Conservation Futures | 0.0316035091 | $723,583 | $723,583 | $22.87 | | |
| FIRE3 | Fire & Rescue Dist #3 S Whidbey GEN | 1.2004855531 | $723,583 | $723,583 | $868.65 | | |
| HOBOND | Hospital BOND | 0.1910887512 | $723,583 | $723,583 | $138.27 | | |
| HOGEN | Hospital GEN | 0.3902502903 | $723,583 | $723,583 | $282.38 | | |
| CE | County Current Expense | 0.3708482477 | $723,583 | $723,583 | $268.34 | | |
| CR | County Roads | 0.4584763726 | $723,583 | $723,583 | $331.75 | | |
| ISLANDEMS | Hospital GEN (EMS) | 0.5000000000 | $723,583 | $723,583 | $361.79 | | |
| LIB | Library Sno-Isle GEN | 0.3153421757 | $723,583 | $723,583 | $228.18 | | |
| PORTWHID | Port of S Whidbey GEN | 0.1094540357 | $723,583 | $723,583 | $79.20 | | |
| SCH206BOND | School 206 BOND | 0.3161759235 | $723,583 | $723,583 | $228.78 | | |
| SCH206MO | School 206 Enrichment | 0.4547169547 | $723,583 | $723,583 | $329.03 | | |
| ST | State School | 1.3035497053 | $723,583 | $723,583 | $943.23 | | |
| ST2 | State School Part 2 | 0.8169543533 | $723,583 | $723,583 | $591.13 | | |
| SWHIDPRBD | P & R S Whidbey BOND | 0.0152817568 | $723,583 | $723,583 | $11.06 | | |
| SWHIDPRBD2 | P & R S Whidbey BOND2 | 0.0138911264 | $723,583 | $723,583 | $10.05 | | |
| SWHIDPRMT | P & R S Whidbey GEN | 0.2053334452 | $723,583 | $723,583 | $148.58 | | |
| | Total Tax Rate: | 6.6934522006 | | | | | |
| | | | | Taxes w/Current Exemptions: | $4,843.29 | | |
| | | | | Taxes w/o Exemptions: | $4,843.29 | | |
Improvement / Building
| Improvement #1: | RESIDENTIAL | State Code: | Y | 1788.0 sqft | Value: | $323,073 |
| Bathrooms: | 3 | Bedrooms: | 2 | | Ceiling: | DRYWALL PAINTED | Cooling: | HEAT PUMP/CONV/V | | Exterior Wall/Cover: | PLY/HARDBOARD T-111 | Floor Covering: | CARPET/VINYL 60-40 | | Floor Structure: | WOOD W/SUBFLOOR | Foundation: | CONCRETE | | Interior Finish: | DRYWALL PAINT | Plumbing Fixture Cnt: | 15 | | Roof Slope: | 6" IN 12" | Roof Structure/Cover: | CJ ASPHALT |
|
| | Type | Description | Class CD | Sub Class CD | Year Built | Area |
| | BAS | BASE/MAIN FLOOR | 3 | 0 | 1932 | 1156.0 |
| | UPS | UPPER STORY | 3 | 0 | 1932 | 632.0 |
| | OWP | OPEN WOOD PORCH W/STEPS | 3 | 0 | 1932 | 42.0 |
| | OWR | OPEN WOOD PORCH W/STEPS/ROOF | 3 | 0 | 1932 | 28.0 |
| | DGR | DETACHED GARAGE | 3 | 0 | 1932 | 503.0 |
| | OWP | OPEN WOOD PORCH W/STEPS | 3 | 0 | 1932 | 112.0 |
Sketch
| No sketches available for this property. |
Property Image
Land
| 1 | LB | LOW BANK | 0.2800 | 12196.80 | 50.00 | 0.00 | 1.00 | $400,000 | $0 |
| 2 | 55 | TIDES | 0.0000 | 0.00 | 51.00 | 0.00 | 1.00 | $510 | $0 |
Roll Value History
| 2026 | N/A | N/A | N/A | N/A | N/A |
| 2025 | $323,073 | $400,510 | $0 | $723,583 | $723,583 |
| 2024 | $326,862 | $350,510 | $0 | $677,372 | $677,372 |
| 2023 | $330,653 | $300,510 | $0 | $631,163 | $631,163 |
| 2022 | $299,315 | $300,510 | $0 | $599,825 | $599,825 |
| 2021 | $263,232 | $275,510 | $0 | $538,742 | $538,742 |
| 2020 | $249,458 | $275,510 | $0 | $524,968 | $524,968 |
| 2019 | $183,939 | $300,510 | $0 | $484,449 | $484,449 |
| 2018 | $184,444 | $250,510 | $0 | $434,954 | $434,954 |
| 2017 | $154,652 | $230,510 | $0 | $385,162 | $385,162 |
| 2016 | $156,634 | $230,510 | $0 | $387,144 | $387,144 |
| 2015 | $158,618 | $230,510 | $0 | $389,128 | $389,128 |
| 2014 | $154,235 | $230,510 | $0 | $384,745 | $384,745 |
| 2013 | $156,047 | $215,342 | $0 | $371,389 | $371,389 |
| 2012 | $157,861 | $215,342 | $0 | $373,203 | $373,203 |
| 2011 | $159,674 | $215,342 | $0 | $375,016 | $375,016 |
| 2010 | $167,758 | $215,342 | $0 | $383,100 | $383,100 |
| 2009 | $174,448 | $215,342 | $0 | $389,790 | $389,790 |
| 2008 | $167,373 | $215,342 | $0 | $382,715 | $382,715 |
| 2007 | $169,324 | $214,997 | $0 | $384,321 | $384,321 |
Deed and Sales History
| 1 | 10/24/2017 | WD | Warranty Deed | PADGETT, DAVID | PERKINS, AARON J | | | $548,880.00 | 31961 | 4434368 |
| 2 | 10/30/2001 | WD | Warranty Deed | PADGETT, DAVID L | PADGETT, DAVID | | | $0.00 | 14336 | 4002602 |
| 3 | 10/30/2001 | WD | Warranty Deed | COBB, WILLIAM D | PADGETT, DAVID L | | | $279,076.00 | 14251 | 4001824 |
| 4 | 11/01/1985 | WD | Warranty Deed | FREES, JAY F | COBB, WILLIAM D | | | $89,100.00 | 53231 | 85012799 |
| 5 | 10/01/1985 | QCD | Quit Claim Deed | FREES, JAY F | FREES, JAY F | | | $0.00 | 53230 | 85012798 |
| 6 | 08/01/1985 | QCD | Quit Claim Deed | FREES, JAY F | FREES, JAY F | | | $0.00 | 52570 | 0 |
| 7 | 01/01/1900 | OTHER | Other - Misc. Documents | Unknown | FREES, JAY F | | | $0.00 | 0 | 0 |
Payout Agreement
| No payout information available.. |