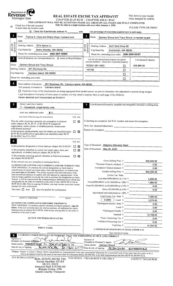
Property
Account |
| Property ID: | 49441 | Abbreviated Legal Description: | 27 - IN NW SW |
| Geographic ID: | R22909-183-0200 | Agent Code: | |
| Type: | Real | | |
| Tax Area: | 712 - APPRAISER-S Whid Schl Dist, outside Langley, improved, greater than 1 acre | Land Use Code | 11 |
| Open Space: | N | DFL | N |
| Historic Property: | N | Remodel Property: | N |
| Multi-Family Redevelopment: | N | | |
| Township: | 29 | Section: | 09 |
| Range: | R2 |
Location |
| Address: | 5457 SHORE MEADOW RD FREELAND, WA 98249 | Mapsco: | |
| Neighborhood: | Cycle 3 | Map ID: | 305 |
| Neighborhood CD: | 3 |
Owner |
| Name: | BURT, CHRISTOPHER BRIAN | Owner ID: | 317462 |
| Mailing Address: | 5957 SHORE MEADOW RD FREELAND, WA 98249 | % Ownership: | 100.0000000000% |
| | | Exemptions: | |
Taxes and Assessment Details
Values
| (+) Improvement Homesite Value: | + | $0 | |
| (+) Improvement Non-Homesite Value: | + | $321,964 | |
| (+) Land Homesite Value: | + | $0 | |
| (+) Land Non-Homesite Value: | + | $410,000 | |
| (+) Curr Use (HS): | + | $0 | $0 |
| (+) Curr Use (NHS): | + | $0 | $0 |
| | | -------------------------- | |
| (=) Market Value: | = | $731,964 | |
| (–) Productivity Loss: | – | $0 | |
| | | -------------------------- | |
| (=) Subtotal: | = | $731,964 | |
| (+) Senior Appraised Value: | + | $0 | |
| (+) Non-Senior Appraised Value: | + | $731,964 | |
| | | -------------------------- | |
| (=) Total Appraised Value: | = | $731,964 | |
| (–) Senior Exemption Loss: | – | $0 | |
| (–) Exemption Loss: | – | $0 | |
| | | -------------------------- | |
| (=) Taxable Value: | = | $731,964 | |
Taxing Jurisdiction
| Owner: | BURT, CHRISTOPHER BRIAN | | |
| % Ownership: | 100.0000000000% | | |
| Total Value: | $731,964 | | |
| Tax Area: | 712 - APPRAISER-S Whid Schl Dist, outside Langley, improved, greater than 1 acre |
| CF | Conservation Futures | 0.0316035091 | $731,964 | $731,964 | $23.13 | | |
| FIRE3 | Fire & Rescue Dist #3 S Whidbey GEN | 1.2004855531 | $731,964 | $731,964 | $878.71 | | |
| HOBOND | Hospital BOND | 0.1910887512 | $731,964 | $731,964 | $139.87 | | |
| HOGEN | Hospital GEN | 0.3902502903 | $731,964 | $731,964 | $285.65 | | |
| CE | County Current Expense | 0.3708482477 | $731,964 | $731,964 | $271.45 | | |
| CR | County Roads | 0.4584763726 | $731,964 | $731,964 | $335.59 | | |
| ISLANDEMS | Hospital GEN (EMS) | 0.5000000000 | $731,964 | $731,964 | $365.98 | | |
| LIB | Library Sno-Isle GEN | 0.3153421757 | $731,964 | $731,964 | $230.82 | | |
| PORTWHID | Port of S Whidbey GEN | 0.1094540357 | $731,964 | $731,964 | $80.12 | | |
| SCH206BOND | School 206 BOND | 0.3161759235 | $731,964 | $731,964 | $231.43 | | |
| SCH206MO | School 206 Enrichment | 0.4547169547 | $731,964 | $731,964 | $332.84 | | |
| ST | State School | 1.3035497053 | $731,964 | $731,964 | $954.15 | | |
| ST2 | State School Part 2 | 0.8169543533 | $731,964 | $731,964 | $597.98 | | |
| SWHIDPRBD | P & R S Whidbey BOND | 0.0152817568 | $731,964 | $731,964 | $11.19 | | |
| SWHIDPRBD2 | P & R S Whidbey BOND2 | 0.0138911264 | $731,964 | $731,964 | $10.17 | | |
| SWHIDPRMT | P & R S Whidbey GEN | 0.2053334452 | $731,964 | $731,964 | $150.30 | | |
| | Total Tax Rate: | 6.6934522006 | | | | | |
| | | | | Taxes w/Current Exemptions: | $4,899.38 | | |
| | | | | Taxes w/o Exemptions: | $4,899.38 | | |
Improvement / Building
| Improvement #1: | RESIDENTIAL | State Code: | Y | 1416.0 sqft | Value: | $321,964 |
| Bathrooms: | 1 | Bedrooms: | 2 | | Ceiling: | TONGUE & GROOVE | Exterior Wall/Cover: | SHINGLE | | Floor Covering: | SOFTWOOD 100% | Floor Structure: | WOOD W/SUBFLOOR | | Foundation: | CONCRETE | Heating: | FHA GAS | | Interior Finish: | DRYWALL PAINT | Plumbing Fixture Cnt: | 6 | | Roof Slope: | 8" IN 12" | Roof Structure/Cover: | CJ ASPHALT |
|
| | Type | Description | Class CD | Sub Class CD | Year Built | Area |
| | BAS | BASE/MAIN FLOOR | 3 | 0 | 1930 | 896.0 |
| | UB6 | BASEMENT UNFINISHED 6" | 3 | 0 | 1930 | 896.0 |
| | OWP | OPEN WOOD PORCH W/STEPS | 3 | 0 | 1930 | 870.0 |
| | ENP | ENCLOSED PORCH | 3 | 0 | 1930 | 182.0 |
| | UPH | HALF STORY | 3 | 0 | 1930 | 520.0 |
| | UTY | STORAGE/UTILITY | 3 | 0 | 1930 | 48.0 |
| | UTY | STORAGE/UTILITY | 3 | 0 | 1930 | 864.0 |
| | CPD | OPEN CARPORT DIRT FLOOR | 3 | 0 | 1930 | 1600.0 |
Sketch
Property Image
Land
| 1 | 32 | AC (03.01-09.99) | 5.3000 | 0.00 | 0.00 | 0.00 | 1.00 | $410,000 | $0 |
Roll Value History
| 2026 | N/A | N/A | N/A | N/A | N/A |
| 2025 | $321,964 | $410,000 | $0 | $731,964 | $731,964 |
| 2024 | $326,132 | $390,000 | $0 | $716,132 | $716,132 |
| 2023 | $330,299 | $350,000 | $0 | $680,299 | $680,299 |
| 2022 | $302,862 | $350,000 | $0 | $652,862 | $652,862 |
| 2021 | $266,657 | $275,000 | $0 | $541,657 | $541,657 |
| 2020 | $260,563 | $240,000 | $0 | $500,563 | $500,563 |
| 2019 | $171,114 | $300,000 | $0 | $471,114 | $471,114 |
| 2018 | $171,591 | $230,000 | $0 | $401,591 | $401,591 |
| 2017 | $172,544 | $200,000 | $0 | $372,544 | $372,544 |
| 2016 | $174,451 | $200,000 | $0 | $374,451 | $374,451 |
| 2015 | $176,359 | $200,000 | $0 | $376,359 | $376,359 |
| 2014 | $178,264 | $200,000 | $0 | $378,264 | $378,264 |
| 2013 | $80,635 | $222,600 | $0 | $303,235 | $303,235 |
| 2012 | $82,321 | $222,600 | $0 | $304,921 | $304,921 |
| 2011 | $84,007 | $222,600 | $0 | $306,607 | $306,607 |
| 2010 | $99,103 | $222,600 | $0 | $321,703 | $321,703 |
| 2009 | $103,426 | $265,000 | $0 | $368,426 | $368,426 |
| 2008 | $105,199 | $371,000 | $0 | $476,199 | $476,199 |
| 2007 | $100,212 | $238,500 | $0 | $338,712 | $338,712 |
Deed and Sales History
| 1 | 05/06/2025 | QCD | Quit Claim Deed | GELSTON, JACQUELINE ELAINO | BURT, CHRISTOPHER BRIAN | | | $0.00 | 64228 | 4588599 |
| 2 | 03/25/2004 | WD | Warranty Deed | GILDOW, BERNICE J | BURT, CHRISTOPHER | | | $291,000.00 | 41196 | 4095536 |
| 3 | 01/01/1900 | OTHER | Other - Misc. Documents | Unknown | GILDOW, BERNICE J | | | $0.00 | 0 | 0 |
Payout Agreement
| No payout information available.. |