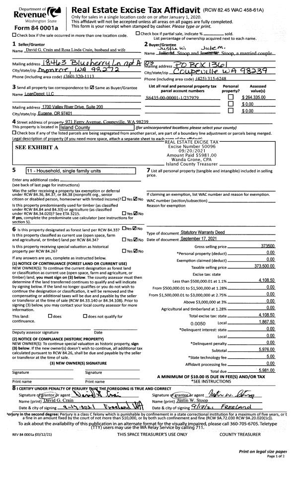
Property
Account |
| Property ID: | 494744 | Abbreviated Legal Description: | W/2 SE NW LY N OF SWAN RD EX HEGENES RD FR 3201470 TGW: BG @ INTER PT OF ELN SD E/2 SWNW & NLN SWAN RD NLY ALG ELN E/2 SWNW 150' WLY 150' SELY TPB FR 319 0930 TGW & SUB EZ AF#88013743 |
| Geographic ID: | R32925-345-1500 | Agent Code: | |
| Type: | Real | | |
| Tax Area: | 722 - APPRAISER-S Whid Schl Dist, Special District, improved, greater than 1 acre | Land Use Code | 11 |
| Open Space: | N | DFL | N |
| Historic Property: | N | Remodel Property: | N |
| Multi-Family Redevelopment: | N | | |
| Township: | 29 | Section: | 25 |
| Range: | R3 |
Location |
| Address: | 4513 SWAN RD CLINTON, WA 98236 | Mapsco: | |
| Neighborhood: | Cycle 4 | Map ID: | 814 |
| Neighborhood CD: | 4 |
Owner |
| Name: | OLKONEN, EVERT E | Owner ID: | 18941 |
| Mailing Address: | PO BOX 12 CLINTON, WA 98236-0012 | % Ownership: | 100.0000000000% |
| | | Exemptions: | SNR/DSBL |
Taxes and Assessment Details
Values
| (+) Improvement Homesite Value: | + | $173,120 | |
| (+) Improvement Non-Homesite Value: | + | $0 | |
| (+) Land Homesite Value: | + | $191,560 | |
| (+) Land Non-Homesite Value: | + | $208,440 | |
| (+) Curr Use (HS): | + | $0 | $0 |
| (+) Curr Use (NHS): | + | $0 | $0 |
| | | -------------------------- | |
| (=) Market Value: | = | $573,120 | |
| (–) Productivity Loss: | – | $0 | |
| | | -------------------------- | |
| (=) Subtotal: | = | $573,120 | |
| (+) Senior Appraised Value: | + | $265,089 | |
| (+) Non-Senior Appraised Value: | + | $208,440 | |
| | | -------------------------- | |
| (=) Total Appraised Value: | = | $473,529 | |
| (–) Senior Exemption Loss: | – | $159,053 | |
| (–) Exemption Loss: | – | $0 | |
| | | -------------------------- | |
| (=) Taxable Value: | = | $314,476 | |
Taxing Jurisdiction
| Owner: | OLKONEN, EVERT E | | |
| % Ownership: | 100.0000000000% | | |
| Total Value: | $573,120 | | |
| Tax Area: | 722 - APPRAISER-S Whid Schl Dist, Special District, improved, greater than 1 acre |
| CF | Conservation Futures | 0.0316035091 | $573,120 | $314,476 | $9.94 | | |
| FIRE3 | Fire & Rescue Dist #3 S Whidbey GEN | 1.2004855531 | $573,120 | $314,476 | $377.52 | | |
| HOBOND | Hospital BOND | 0.0000000000 | $573,120 | $208,440 | $39.83 | | |
| HOGEN | Hospital GEN | 0.3902502903 | $573,120 | $314,476 | $122.72 | | |
| CE | County Current Expense | 0.3708482477 | $573,120 | $314,476 | $116.62 | | |
| CR | County Roads | 0.4584763726 | $573,120 | $314,476 | $144.18 | | |
| ISLANDEMS | Hospital GEN (EMS) | 0.5000000000 | $573,120 | $314,476 | $157.24 | | |
| LIB | Library Sno-Isle GEN | 0.3153421757 | $573,120 | $314,476 | $99.17 | | |
| PORTWHID | Port of S Whidbey GEN | 0.1094540357 | $573,120 | $314,476 | $34.42 | | |
| SCH206BOND | School 206 BOND | 0.3161759235 | $573,120 | $314,476 | $99.43 | | |
| SCH206MO | School 206 Enrichment | 0.0000000000 | $573,120 | $208,440 | $94.78 | | |
| ST | State School | 1.3035497053 | $573,120 | $314,476 | $409.94 | | |
| ST2 | State School Part 2 | 0.0000000000 | $573,120 | $208,440 | $170.29 | | |
| SWHIDPRBD | P & R S Whidbey BOND | 0.0000000000 | $573,120 | $208,440 | $3.19 | | |
| SWHIDPRBD2 | P & R S Whidbey BOND2 | 0.0000000000 | $573,120 | $208,440 | $2.90 | | |
| SWHIDPRMT | P & R S Whidbey GEN | 0.2053334452 | $573,120 | $314,476 | $64.57 | | |
| | Total Tax Rate: | 5.2015192582 | | | | | |
| | | | | Taxes w/Current Exemptions: | $1,946.74 | | |
| | | | | Taxes w/o Exemptions: | $3,836.15 | | |
Improvement / Building
| Improvement #1: | RESIDENTIAL | State Code: | Y | 1612.0 sqft | Value: | $173,120 |
| Bathrooms: | 1 | Bedrooms: | 4 | | Ceiling: | ACOUSTIC FURRED | Exterior Wall/Cover: | WOOD SIDING | | Floor Covering: | CARPET/VINYL 60-40 | Floor Structure: | WOOD W/SUBFLOOR | | Foundation: | CONCRETE | Heating: | (NONE) | | Interior Finish: | DRYWALL PAINT | Plumbing Fixture Cnt: | 6 | | Roof Slope: | 6" IN 12" | Roof Structure/Cover: | CJ ASPHALT |
|
| | Type | Description | Class CD | Sub Class CD | Year Built | Area |
| | BAS | BASE/MAIN FLOOR | 3 | 0 | 1920 | 1068.0 |
| | OWP | OPEN WOOD PORCH W/STEPS | 3 | 0 | 1920 | 80.0 |
| | OWP | OPEN WOOD PORCH W/STEPS | 3 | 0 | 1920 | 16.0 |
| | OWC | OPEN WOOD PORCH W/STEPS/ROOF/C | 3 | 0 | 1920 | 24.0 |
| | ENP | ENCLOSED PORCH | 3 | 0 | 1920 | 72.0 |
| | UPH | HALF STORY | 3 | 0 | 1920 | 544.0 |
Sketch
Property Image
Land
| 1 | 35 | AC (10.00-30.99) | 10.4400 | 454766.40 | 0.00 | 0.00 | 1.00 | $400,000 | $0 |
Roll Value History
| 2026 | N/A | N/A | N/A | N/A | N/A |
| 2025 | $173,120 | $400,000 | $0 | $573,120 | $314,476 |
| 2024 | $175,994 | $360,000 | $0 | $535,994 | $293,632 |
| 2023 | $178,867 | $360,000 | $0 | $538,867 | $293,632 |
| 2022 | $164,569 | $350,000 | $0 | $514,569 | $288,421 |
| 2021 | $145,364 | $250,000 | $0 | $395,364 | $236,311 |
| 2020 | $142,517 | $250,000 | $0 | $392,517 | $392,517 |
| 2019 | $106,213 | $300,000 | $0 | $406,213 | $406,213 |
| 2018 | $106,614 | $245,000 | $0 | $351,614 | $351,614 |
| 2017 | $107,416 | $200,000 | $0 | $307,416 | $307,416 |
| 2016 | $109,019 | $200,000 | $0 | $309,019 | $309,019 |
| 2015 | $110,621 | $200,000 | $0 | $310,621 | $310,621 |
| 2014 | $92,730 | $250,000 | $0 | $342,730 | $342,730 |
| 2013 | $94,393 | $250,000 | $0 | $344,393 | $344,393 |
| 2012 | $96,056 | $250,000 | $0 | $346,056 | $346,056 |
| 2011 | $97,717 | $250,000 | $0 | $347,717 | $347,717 |
| 2010 | $108,542 | $250,000 | $0 | $358,542 | $358,542 |
| 2009 | $113,618 | $280,800 | $0 | $394,418 | $394,418 |
| 2008 | $59,052 | $350,000 | $0 | $409,052 | $409,052 |
| 2007 | $60,235 | $200,000 | $0 | $260,235 | $260,235 |
Deed and Sales History
| 1 | 08/01/1983 | OTHER | Other - Misc. Documents | FLYNN, INEZ | FLYNN, INEZ | | | $0.00 | 32179 | 413050 |
| 2 | 08/01/1983 | REC | Real Estate Contract | FLYNN, INEZ | OLKONEN, EVERT E | | | $50,000.00 | 33660 | 418798 |
| 3 | 01/01/1900 | OTHER | Other - Misc. Documents | Unknown | FLYNN, INEZ | | | $0.00 | 0 | 0 |
Payout Agreement
| No payout information available.. |