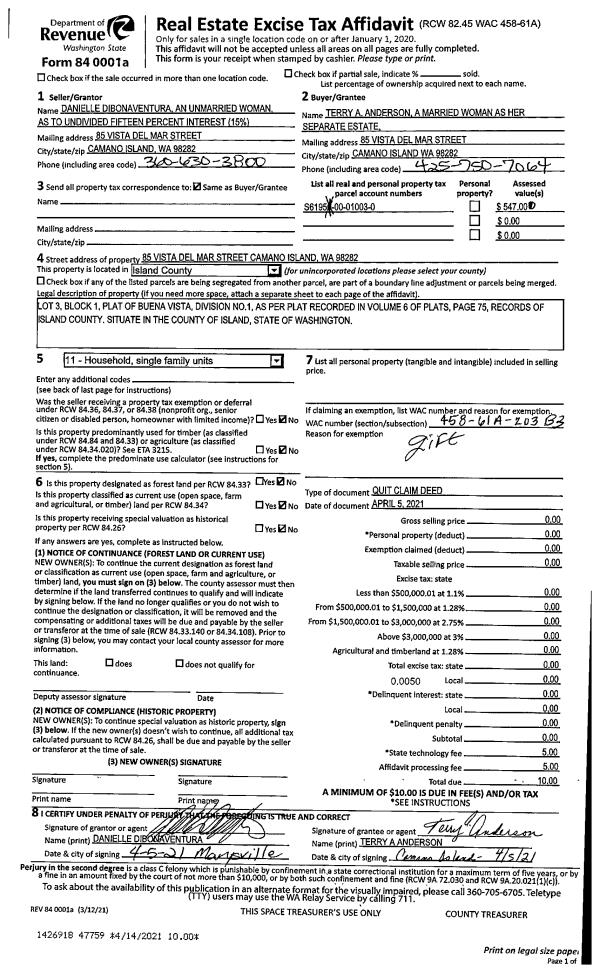
Property
Account |
| Property ID: | 494824 | Abbreviated Legal Description: | REPLACES 4050160 54 - S150' GL3 TGW ADJ TIDES EX CO RD |
| Geographic ID: | R32813-135-0160 | Agent Code: | |
| Type: | Real | | |
| Tax Area: | 712 - APPRAISER-S Whid Schl Dist, outside Langley, improved, greater than 1 acre | Land Use Code | 11 |
| Open Space: | N | DFL | N |
| Historic Property: | N | Remodel Property: | N |
| Multi-Family Redevelopment: | N | | |
| Township: | 28 | Section: | 13 |
| Range: | R3 |
Location |
| Address: | 8289 FRANKLIN RD CLINTON, WA 98236 | Mapsco: | |
| Neighborhood: | Cycle 4 | Map ID: | 707 |
| Neighborhood CD: | 4 |
Owner |
| Name: | HSIAO, MARTHA Y | Owner ID: | 268666 |
| Mailing Address: | 900 UNIVERSTIY ST #12KL SEATTLE, WA 98101 | % Ownership: | 100.0000000000% |
| | | Exemptions: | |
Taxes and Assessment Details
Values
| (+) Improvement Homesite Value: | + | $409,355 | |
| (+) Improvement Non-Homesite Value: | + | $277,721 | |
| (+) Land Homesite Value: | + | $0 | |
| (+) Land Non-Homesite Value: | + | $676,540 | |
| (+) Curr Use (HS): | + | $0 | $0 |
| (+) Curr Use (NHS): | + | $0 | $0 |
| | | -------------------------- | |
| (=) Market Value: | = | $1,363,616 | |
| (–) Productivity Loss: | – | $0 | |
| | | -------------------------- | |
| (=) Subtotal: | = | $1,363,616 | |
| (+) Senior Appraised Value: | + | $0 | |
| (+) Non-Senior Appraised Value: | + | $1,363,616 | |
| | | -------------------------- | |
| (=) Total Appraised Value: | = | $1,363,616 | |
| (–) Senior Exemption Loss: | – | $0 | |
| (–) Exemption Loss: | – | $0 | |
| | | -------------------------- | |
| (=) Taxable Value: | = | $1,363,616 | |
Taxing Jurisdiction
| Owner: | HSIAO, MARTHA Y | | |
| % Ownership: | 100.0000000000% | | |
| Total Value: | $1,363,616 | | |
| Tax Area: | 712 - APPRAISER-S Whid Schl Dist, outside Langley, improved, greater than 1 acre |
| CF | Conservation Futures | 0.0316035091 | $1,363,616 | $1,363,616 | $43.10 | | |
| FIRE3 | Fire & Rescue Dist #3 S Whidbey GEN | 1.2004855531 | $1,363,616 | $1,363,616 | $1,637.00 | | |
| HOBOND | Hospital BOND | 0.1910887512 | $1,363,616 | $1,363,616 | $260.57 | | |
| HOGEN | Hospital GEN | 0.3902502903 | $1,363,616 | $1,363,616 | $532.15 | | |
| CE | County Current Expense | 0.3708482477 | $1,363,616 | $1,363,616 | $505.69 | | |
| CR | County Roads | 0.4584763726 | $1,363,616 | $1,363,616 | $625.19 | | |
| ISLANDEMS | Hospital GEN (EMS) | 0.5000000000 | $1,363,616 | $1,363,616 | $681.81 | | |
| LIB | Library Sno-Isle GEN | 0.3153421757 | $1,363,616 | $1,363,616 | $430.01 | | |
| PORTWHID | Port of S Whidbey GEN | 0.1094540357 | $1,363,616 | $1,363,616 | $149.25 | | |
| SCH206BOND | School 206 BOND | 0.3161759235 | $1,363,616 | $1,363,616 | $431.14 | | |
| SCH206MO | School 206 Enrichment | 0.4547169547 | $1,363,616 | $1,363,616 | $620.06 | | |
| ST | State School | 1.3035497053 | $1,363,616 | $1,363,616 | $1,777.54 | | |
| ST2 | State School Part 2 | 0.8169543533 | $1,363,616 | $1,363,616 | $1,114.01 | | |
| SWHIDPRBD | P & R S Whidbey BOND | 0.0152817568 | $1,363,616 | $1,363,616 | $20.84 | | |
| SWHIDPRBD2 | P & R S Whidbey BOND2 | 0.0138911264 | $1,363,616 | $1,363,616 | $18.94 | | |
| SWHIDPRMT | P & R S Whidbey GEN | 0.2053334452 | $1,363,616 | $1,363,616 | $280.00 | | |
| | Total Tax Rate: | 6.6934522006 | | | | | |
| | | | | Taxes w/Current Exemptions: | $9,127.30 | | |
| | | | | Taxes w/o Exemptions: | $9,127.30 | | |
Improvement / Building
| Improvement #1: | RESIDENTIAL | State Code: | Y | 2269.7 sqft | Value: | $409,355 |
| Bathrooms: | 2 | Bedrooms: | 4 | | Ceiling: | DRYWALL PAINTED | Exterior Wall/Cover: | WOOD SIDING | | Floor Covering: | COMPOSITION TILE | Floor Structure: | WOOD W/SUBFLOOR | | Foundation: | CONCRETE | Heating: | WALL HEAT ELECTRIC | | Interior Finish: | DRYWALL PAINT | Plumbing Fixture Cnt: | 8 | | Roof Slope: | 4" IN 12" | Roof Structure/Cover: | CJ ALUMINIUM HEAVY |
|
| | Type | Description | Class CD | Sub Class CD | Year Built | Area |
| | BAS | BASE/MAIN FLOOR | 3 | 0 | 1950 | 2269.7 |
| | OP4 | OPEN PORCH W/CEILING-ROOF | 3 | 0 | 1950 | 44.7 |
| | AGR | ATTACHED GARAGE | 3 | 0 | 1950 | 390.0 |
| | OCP | OPEN CARPORT | 3 | 0 | 1950 | 260.0 |
| | OWP | OPEN WOOD PORCH W/STEPS | 3 | 0 | 1950 | 222.0 |
| | ENP | ENCLOSED PORCH | 3 | 0 | 1950 | 162.4 |
| | DGR | DETACHED GARAGE | 3 | 0 | 1950 | 624.0 |
| | OCP | OPEN CARPORT | 3 | 0 | 1950 | 192.0 |
| Improvement #2: | RESIDENTIAL | State Code: | Y | 1176.0 sqft | Value: | $277,721 |
| Bathrooms: | 1 | Bedrooms: | 2 | | Ceiling: | DRYWALL PAINTED | Exterior Wall/Cover: | SHINGLE | | Floor Covering: | CARPET/VINYL 80-20 | Floor Structure: | WOOD W/SUBFLOOR | | Foundation: | CONCRETE | Heating: | WALL HEAT ELECTRIC | | Interior Finish: | DRYWALL PAINT | Plumbing Fixture Cnt: | 7 | | Roof Slope: | 6" IN 12" | Roof Structure/Cover: | CJ ALUMINIUM HEAVY |
|
| | Type | Description | Class CD | Sub Class CD | Year Built | Area |
| | BAS | BASE/MAIN FLOOR | 3 | 0 | 1996 | 1176.0 |
| | OWP | OPEN WOOD PORCH W/STEPS | 3 | 0 | 1996 | 54.0 |
| | OWP | OPEN WOOD PORCH W/STEPS | 3 | 0 | 1996 | 648.0 |
| | OP1 | OPEN PORCH SLAB | 3 | 0 | 1996 | 569.0 |
| | DGR | DETACHED GARAGE | 3 | 0 | 1996 | 624.0 |
Sketch
Property Image
Land
| 1 | LB | LOW BANK | 1.1500 | 50094.00 | 150.00 | 0.00 | 1.00 | $675,000 | $0 |
| 2 | 55 | TIDES | 0.0000 | 0.00 | 154.00 | 0.00 | 1.00 | $1,540 | $0 |
Roll Value History
| 2026 | N/A | N/A | N/A | N/A | N/A |
| 2025 | $687,076 | $676,540 | $0 | $1,363,616 | $1,363,616 |
| 2024 | $695,107 | $626,540 | $0 | $1,321,647 | $1,321,647 |
| 2023 | $703,132 | $626,540 | $0 | $1,329,672 | $1,329,672 |
| 2022 | $642,903 | $576,540 | $0 | $1,219,443 | $1,219,443 |
| 2021 | $564,621 | $551,540 | $0 | $1,116,161 | $1,116,161 |
| 2020 | $507,435 | $551,540 | $0 | $1,058,975 | $1,058,975 |
| 2019 | $392,142 | $601,540 | $0 | $993,682 | $993,682 |
| 2018 | $393,156 | $601,540 | $0 | $994,696 | $994,696 |
| 2017 | $366,889 | $541,540 | $0 | $908,429 | $908,429 |
| 2016 | $378,502 | $541,540 | $0 | $920,042 | $920,042 |
| 2015 | $382,477 | $541,540 | $0 | $924,017 | $924,017 |
| 2014 | $403,503 | $541,540 | $0 | $945,043 | $945,043 |
| 2013 | $407,577 | $545,920 | $0 | $953,497 | $953,497 |
| 2012 | $411,653 | $545,920 | $0 | $957,573 | $957,573 |
| 2011 | $415,730 | $545,920 | $0 | $961,650 | $961,650 |
| 2010 | $422,241 | $545,920 | $0 | $968,161 | $968,161 |
| 2009 | $438,732 | $545,920 | $0 | $984,652 | $984,652 |
| 2008 | $432,404 | $545,920 | $0 | $978,324 | $978,324 |
| 2007 | $242,601 | $544,842 | $0 | $787,443 | $787,443 |
Deed and Sales History
| 1 | 03/16/2015 | PRD | Personal Representatives Deed | HSIAO, MARTHA Y | HSIAO, MARTHA Y | | | $0.00 | 19781 | 4379370 |
| 2 | 06/02/2015 | TOD | Transfer On Death Deed | HSIAO, DAVID | HSIAO, MARTHA Y | | | | 86171 | |
| 3 | 05/01/1978 | OTHER | Other - Misc. Documents | Unknown | HSIAO, DAVID | | | $115,000.00 | 82386 | 0 |
Payout Agreement
| No payout information available.. |