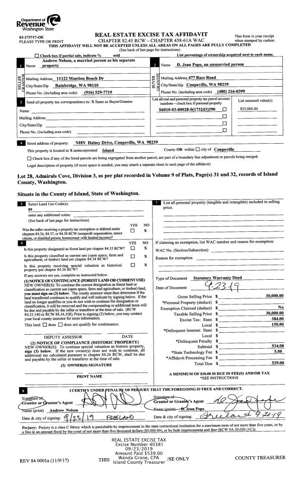
Property
Account |
| Property ID: | 49708 | Abbreviated Legal Description: | 38 - N/2 S/2 SE NW EX MUTINY BAY RD EX PT LY ELY SD RD TGW N/2 S/2 SW NE LY W OF SD RD |
| Geographic ID: | R22909-324-1960 | Agent Code: | |
| Type: | Real | | |
| Tax Area: | 712 - APPRAISER-S Whid Schl Dist, outside Langley, improved, greater than 1 acre | Land Use Code | 11 |
| Open Space: | N | DFL | N |
| Historic Property: | N | Remodel Property: | N |
| Multi-Family Redevelopment: | N | | |
| Township: | 29 | Section: | 09 |
| Range: | R2 |
Location |
| Address: | 5364 MUTINY BAY RD FREELAND, WA 98249 | Mapsco: | |
| Neighborhood: | Cycle 3 | Map ID: | 307 |
| Neighborhood CD: | 3 |
Owner |
| Name: | PETERSON, GARY M | Owner ID: | 69170 |
| Mailing Address: | SONYA A SIMMONS 5364 MUTINY BAY RD FREELAND, WA 98249-9660 | % Ownership: | 100.0000000000% |
| | | Exemptions: | |
Taxes and Assessment Details
Values
| (+) Improvement Homesite Value: | + | $0 | |
| (+) Improvement Non-Homesite Value: | + | $922,090 | |
| (+) Land Homesite Value: | + | $0 | |
| (+) Land Non-Homesite Value: | + | $430,000 | |
| (+) Curr Use (HS): | + | $0 | $0 |
| (+) Curr Use (NHS): | + | $0 | $0 |
| | | -------------------------- | |
| (=) Market Value: | = | $1,352,090 | |
| (–) Productivity Loss: | – | $0 | |
| | | -------------------------- | |
| (=) Subtotal: | = | $1,352,090 | |
| (+) Senior Appraised Value: | + | $0 | |
| (+) Non-Senior Appraised Value: | + | $1,352,090 | |
| | | -------------------------- | |
| (=) Total Appraised Value: | = | $1,352,090 | |
| (–) Senior Exemption Loss: | – | $0 | |
| (–) Exemption Loss: | – | $0 | |
| | | -------------------------- | |
| (=) Taxable Value: | = | $1,352,090 | |
Taxing Jurisdiction
| Owner: | PETERSON, GARY M | | |
| % Ownership: | 100.0000000000% | | |
| Total Value: | $1,352,090 | | |
| Tax Area: | 712 - APPRAISER-S Whid Schl Dist, outside Langley, improved, greater than 1 acre |
| CF | Conservation Futures | 0.0316035091 | $1,352,090 | $1,352,090 | $42.73 | | |
| FIRE3 | Fire & Rescue Dist #3 S Whidbey GEN | 1.2004855531 | $1,352,090 | $1,352,090 | $1,623.16 | | |
| HOBOND | Hospital BOND | 0.1910887512 | $1,352,090 | $1,352,090 | $258.37 | | |
| HOGEN | Hospital GEN | 0.3902502903 | $1,352,090 | $1,352,090 | $527.65 | | |
| CE | County Current Expense | 0.3708482477 | $1,352,090 | $1,352,090 | $501.42 | | |
| CR | County Roads | 0.4584763726 | $1,352,090 | $1,352,090 | $619.90 | | |
| ISLANDEMS | Hospital GEN (EMS) | 0.5000000000 | $1,352,090 | $1,352,090 | $676.05 | | |
| LIB | Library Sno-Isle GEN | 0.3153421757 | $1,352,090 | $1,352,090 | $426.37 | | |
| PORTWHID | Port of S Whidbey GEN | 0.1094540357 | $1,352,090 | $1,352,090 | $147.99 | | |
| SCH206BOND | School 206 BOND | 0.3161759235 | $1,352,090 | $1,352,090 | $427.50 | | |
| SCH206MO | School 206 Enrichment | 0.4547169547 | $1,352,090 | $1,352,090 | $614.82 | | |
| ST | State School | 1.3035497053 | $1,352,090 | $1,352,090 | $1,762.52 | | |
| ST2 | State School Part 2 | 0.8169543533 | $1,352,090 | $1,352,090 | $1,104.60 | | |
| SWHIDPRBD | P & R S Whidbey BOND | 0.0152817568 | $1,352,090 | $1,352,090 | $20.66 | | |
| SWHIDPRBD2 | P & R S Whidbey BOND2 | 0.0138911264 | $1,352,090 | $1,352,090 | $18.78 | | |
| SWHIDPRMT | P & R S Whidbey GEN | 0.2053334452 | $1,352,090 | $1,352,090 | $277.63 | | |
| | Total Tax Rate: | 6.6934522006 | | | | | |
| | | | | Taxes w/Current Exemptions: | $9,050.15 | | |
| | | | | Taxes w/o Exemptions: | $9,050.15 | | |
Improvement / Building
| Improvement #1: | RESIDENTIAL | State Code: | Y | 1040.0 sqft | Value: | $163,410 |
| Bathrooms: | 1 | Bedrooms: | 3 | | Ceiling: | DRYWALL PAINTED | Exterior Wall/Cover: | WOOD SIDING | | Floor Covering: | SOFTWOOD 100% | Floor Structure: | WOOD W/SUBFLOOR | | Foundation: | CONCRETE | Heating: | FHA OIL | | Interior Finish: | DRYWALL PAINT | Plumbing Fixture Cnt: | 6 | | Roof Slope: | 8" IN 12" | Roof Structure/Cover: | CJ ASPHALT |
|
| | Type | Description | Class CD | Sub Class CD | Year Built | Area |
| | BAS | BASE/MAIN FLOOR | 3 | 0 | 1936 | 1040.0 |
| | UB6 | BASEMENT UNFINISHED 6" | 3 | 0 | 1936 | 1040.0 |
| | OP1 | OPEN PORCH SLAB | 3 | 0 | 1936 | 144.0 |
| | OP4 | OPEN PORCH W/CEILING-ROOF | 3 | 0 | 1936 | 48.0 |
| | OWP | OPEN WOOD PORCH W/STEPS | 3 | 0 | 1936 | 218.8 |
| | ENP | ENCLOSED PORCH | 3 | 0 | 1936 | 48.0 |
| | DGR | DETACHED GARAGE | 3 | 0 | 1936 | 240.0 |
| Improvement #2: | RESIDENTIAL | State Code: | Y | 3433.0 sqft | Value: | $758,680 |
| Bathrooms: | 2.5 | Bedrooms: | 3 | | Ceiling: | DRYWALL PAINTED | Exterior Wall/Cover: | WOOD SIDING | | Floor Covering: | CARPET/VINYL 80-20 | Floor Structure: | WOOD W/SUBFLOOR | | Foundation: | CONCRETE | Heating: | FHA GAS | | Interior Finish: | DRYWALL PAINT | Plumbing Fixture Cnt: | 12 | | Roof Slope: | 10" IN 12" | Roof Structure/Cover: | CJ ASPHALT |
|
| | Type | Description | Class CD | Sub Class CD | Year Built | Area |
| | BAS | BASE/MAIN FLOOR | 4 | 0 | 1995 | 2190.0 |
| | UB8 | BASEMENT UNFINISHED 8" | 4 | 0 | 1995 | 813.0 |
| | OP1 | OPEN PORCH SLAB | 4 | 0 | 1995 | 396.6 |
| | AGR | ATTACHED GARAGE | 4 | 0 | 1995 | 768.0 |
| | CPD | OPEN CARPORT DIRT FLOOR | 4 | 0 | 1995 | 576.0 |
| | OWP | OPEN WOOD PORCH W/STEPS | 4 | 0 | 1995 | 476.7 |
| | OWP | OPEN WOOD PORCH W/STEPS | 4 | 0 | 1995 | 150.0 |
| | OWC | OPEN WOOD PORCH W/STEPS/ROOF/C | 4 | 0 | 1995 | 30.0 |
| | OWC | OPEN WOOD PORCH W/STEPS/ROOF/C | 4 | 0 | 1995 | 70.0 |
| | DWN | DOWNSTAIRS LIVING AREA | 4 | 0 | 1995 | 1243.0 |
| | DGR | DETACHED GARAGE | 4 | 0 | 1995 | 2160.0 |
| | CPD | OPEN CARPORT DIRT FLOOR | 4 | 0 | 1995 | 960.0 |
| | CPD | OPEN CARPORT DIRT FLOOR | 4 | 0 | 1995 | 1357.0 |
| | UTY | STORAGE/UTILITY | 4 | 0 | 2022 | 1296.0 |
| | BAW | BALCONY WOOD RAIL | 4 | 0 | 2022 | 72.0 |
| | CPD | OPEN CARPORT DIRT FLOOR | 4 | 0 | 2022 | 1008.0 |
Sketch
Property Image
Land
| 1 | 32 | AC (03.01-09.99) | 9.9000 | 431244.00 | 0.00 | 0.00 | 1.00 | $430,000 | $0 |
Roll Value History
| 2026 | N/A | N/A | N/A | N/A | N/A |
| 2025 | $922,090 | $430,000 | $0 | $1,352,090 | $1,352,090 |
| 2024 | $934,186 | $430,000 | $0 | $1,364,186 | $1,364,186 |
| 2023 | $946,281 | $420,000 | $0 | $1,366,281 | $1,366,281 |
| 2022 | $867,829 | $400,000 | $0 | $1,267,829 | $1,267,829 |
| 2021 | $712,140 | $340,000 | $0 | $1,052,140 | $1,052,140 |
| 2020 | $695,917 | $300,000 | $0 | $995,917 | $995,917 |
| 2019 | $530,810 | $340,000 | $0 | $870,810 | $870,810 |
| 2018 | $532,224 | $280,000 | $0 | $812,224 | $812,224 |
| 2017 | $535,027 | $280,000 | $0 | $815,027 | $815,027 |
| 2016 | $540,681 | $300,000 | $0 | $840,681 | $840,681 |
| 2015 | $546,337 | $297,000 | $0 | $843,337 | $843,337 |
| 2014 | $551,993 | $297,000 | $0 | $848,993 | $848,993 |
| 2013 | $562,692 | $297,000 | $0 | $859,692 | $859,692 |
| 2012 | $568,602 | $297,000 | $0 | $865,602 | $865,602 |
| 2011 | $574,512 | $297,000 | $0 | $871,512 | $871,512 |
| 2010 | $596,912 | $297,000 | $0 | $893,912 | $893,912 |
| 2009 | $614,960 | $346,500 | $0 | $961,460 | $961,460 |
| 2008 | $626,698 | $396,000 | $0 | $1,022,698 | $1,022,698 |
| 2007 | $616,686 | $269,775 | $0 | $886,461 | $886,461 |
Deed and Sales History
| 1 | 08/01/1995 | WD | Warranty Deed | SAMPAIR, PATRICIA I | PETERSON, GARY M | | | $160,000.00 | 52984 | 95013892 |
| 2 | 11/01/1990 | WD | Warranty Deed | SIMMONS, SHIRLEY A | SAMPAIR, PATRICIA I | | | $0.00 | 6392 | 90022130 |
| 3 | 11/01/1990 | WD | Warranty Deed | WOLGAMOTT, DOLORES R | SIMMONS, SHIRLEY A | | | $131,667.00 | 6393 | 90022131 |
| 4 | 05/01/1990 | OTHER | Other - Misc. Documents | NOVARRA, ROSEANNA T | WOLGAMOTT, DOLORES R | | | $0.00 | 63640 | 0 |
| 5 | 06/01/1981 | CD | DNU - Correction Deed | NOVARRA, ROSEANNA | NOVARRA, ROSEANNA T | | | $1.00 | 11722 | 383876 |
| 6 | 01/01/1900 | OTHER | Other - Misc. Documents | Unknown | NOVARRA, ROSEANNA | | | $0.00 | 0 | 0 |
Payout Agreement
| No payout information available.. |