Property
Account |
| Property ID: | 49726 | Abbreviated Legal Description: | 5.0000 Acres ins Section 09s Township 29s Range R2s LOT B BLA 416-17 TL 32 - IN SW NE;s |
| Geographic ID: | R22909-338-3670 | Agent Code: | |
| Type: | Real | | |
| Tax Area: | 712 - APPRAISER-S Whid Schl Dist, outside Langley, improved, greater than 1 acre | Land Use Code | 11 |
| Open Space: | N | DFL | N |
| Historic Property: | N | Remodel Property: | N |
| Multi-Family Redevelopment: | N | | |
| Township: | 29 | Section: | 09 |
| Range: | R2 |
Location |
| Address: | 1069 BUSH POINT RD FREELAND, WA 98249 | Mapsco: | |
| Neighborhood: | Cycle 3 | Map ID: | 308 |
| Neighborhood CD: | 3 |
Owner |
| Name: | LUEKEN, RALPH E | Owner ID: | 295453 |
| Mailing Address: | MARILYN A LUEKEN PO BOX 1333 FREELAND, WA 98249 | % Ownership: | 100.0000000000% |
| | | Exemptions: | |
Taxes and Assessment Details
Values
| (+) Improvement Homesite Value: | + | $0 | |
| (+) Improvement Non-Homesite Value: | + | $600,728 | |
| (+) Land Homesite Value: | + | $0 | |
| (+) Land Non-Homesite Value: | + | $370,000 | |
| (+) Curr Use (HS): | + | $0 | $0 |
| (+) Curr Use (NHS): | + | $0 | $0 |
| | | -------------------------- | |
| (=) Market Value: | = | $970,728 | |
| (–) Productivity Loss: | – | $0 | |
| | | -------------------------- | |
| (=) Subtotal: | = | $970,728 | |
| (+) Senior Appraised Value: | + | $0 | |
| (+) Non-Senior Appraised Value: | + | $970,728 | |
| | | -------------------------- | |
| (=) Total Appraised Value: | = | $970,728 | |
| (–) Senior Exemption Loss: | – | $0 | |
| (–) Exemption Loss: | – | $0 | |
| | | -------------------------- | |
| (=) Taxable Value: | = | $970,728 | |
Taxing Jurisdiction
| Owner: | LUEKEN, RALPH E | | |
| % Ownership: | 100.0000000000% | | |
| Total Value: | $970,728 | | |
| Tax Area: | 712 - APPRAISER-S Whid Schl Dist, outside Langley, improved, greater than 1 acre |
| CF | Conservation Futures | 0.0316035091 | $970,728 | $970,728 | $30.68 | | |
| FIRE3 | Fire & Rescue Dist #3 S Whidbey GEN | 1.2004855531 | $970,728 | $970,728 | $1,165.34 | | |
| HOBOND | Hospital BOND | 0.1910887512 | $970,728 | $970,728 | $185.50 | | |
| HOGEN | Hospital GEN | 0.3902502903 | $970,728 | $970,728 | $378.83 | | |
| CE | County Current Expense | 0.3708482477 | $970,728 | $970,728 | $359.99 | | |
| CR | County Roads | 0.4584763726 | $970,728 | $970,728 | $445.06 | | |
| ISLANDEMS | Hospital GEN (EMS) | 0.5000000000 | $970,728 | $970,728 | $485.36 | | |
| LIB | Library Sno-Isle GEN | 0.3153421757 | $970,728 | $970,728 | $306.11 | | |
| PORTWHID | Port of S Whidbey GEN | 0.1094540357 | $970,728 | $970,728 | $106.25 | | |
| SCH206BOND | School 206 BOND | 0.3161759235 | $970,728 | $970,728 | $306.92 | | |
| SCH206MO | School 206 Enrichment | 0.4547169547 | $970,728 | $970,728 | $441.41 | | |
| ST | State School | 1.3035497053 | $970,728 | $970,728 | $1,265.39 | | |
| ST2 | State School Part 2 | 0.8169543533 | $970,728 | $970,728 | $793.04 | | |
| SWHIDPRBD | P & R S Whidbey BOND | 0.0152817568 | $970,728 | $970,728 | $14.83 | | |
| SWHIDPRBD2 | P & R S Whidbey BOND2 | 0.0138911264 | $970,728 | $970,728 | $13.48 | | |
| SWHIDPRMT | P & R S Whidbey GEN | 0.2053334452 | $970,728 | $970,728 | $199.32 | | |
| | Total Tax Rate: | 6.6934522006 | | | | | |
| | | | | Taxes w/Current Exemptions: | $6,497.51 | | |
| | | | | Taxes w/o Exemptions: | $6,497.51 | | |
Improvement / Building
| Improvement #1: | RESIDENTIAL | State Code: | Y | 2794.1 sqft | Value: | $600,728 |
| Bathrooms: | 3 | Bedrooms: | 4 | | Ceiling: | DRYWALL PAINTED | Cooling: | HEAT PUMP/CONV/V | | Exterior Wall/Cover: | CEMENT FIBER | Floor Covering: | VINYL 100% | | Floor Structure: | WOOD W/SUBFLOOR | Foundation: | CONCRETE | | Interior Finish: | DRYWALL PAINT | Plumbing Fixture Cnt: | 15 | | Roof Slope: | 6" IN 12" | Roof Structure/Cover: | CJ ASPHALT |
|
| | Type | Description | Class CD | Sub Class CD | Year Built | Area |
| | BAS | BASE/MAIN FLOOR | 4 | 0 | 2023 | 2794.1 |
| | OP4 | OPEN PORCH W/CEILING-ROOF | 4 | 0 | 2023 | 26.0 |
| | AGR | ATTACHED GARAGE | 4 | 0 | 2023 | 609.6 |
| | OWC | OPEN WOOD PORCH W/STEPS/ROOF/C | 4 | 0 | 2023 | 87.5 |
Sketch
Property Image
Land
| 1 | 32 | AC (03.01-09.99) | 0.0000 | 0.00 | 0.00 | 0.00 | 1.00 | $370,000 | $0 |
Roll Value History
| 2026 | N/A | N/A | N/A | N/A | N/A |
| 2025 | $600,728 | $370,000 | $0 | $970,728 | $970,728 |
| 2024 | $611,650 | $350,000 | $0 | $961,650 | $961,650 |
| 2023 | $624,133 | $330,000 | $0 | $954,133 | $954,133 |
| 2022 | $0 | $180,000 | $0 | $180,000 | $180,000 |
| 2021 | $0 | $135,000 | $0 | $135,000 | $135,000 |
| 2020 | $0 | $130,000 | $0 | $130,000 | $130,000 |
| 2019 | $0 | $135,000 | $0 | $135,000 | $135,000 |
| 2018 | $0 | $200,000 | $0 | $200,000 | $200,000 |
| 2017 | $0 | $200,000 | $0 | $200,000 | $200,000 |
| 2016 | $0 | $200,000 | $0 | $200,000 | $200,000 |
| 2015 | $0 | $180,800 | $0 | $180,800 | $180,800 |
| 2014 | $0 | $180,800 | $0 | $180,800 | $180,800 |
| 2013 | $0 | $180,800 | $0 | $180,800 | $180,800 |
| 2012 | $0 | $180,800 | $0 | $180,800 | $180,800 |
| 2011 | $0 | $180,800 | $0 | $180,800 | $180,800 |
| 2010 | $0 | $180,800 | $0 | $180,800 | $180,800 |
| 2009 | $0 | $211,960 | $0 | $211,960 | $211,960 |
| 2008 | $0 | $227,780 | $0 | $227,780 | $227,780 |
| 2007 | $0 | $227,780 | $0 | $227,780 | $227,780 |
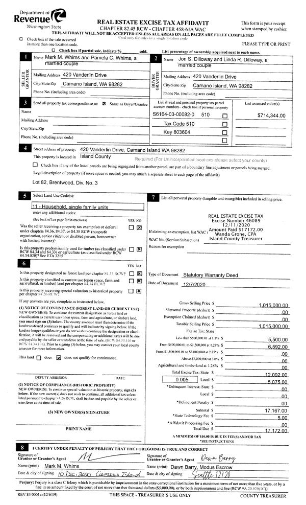
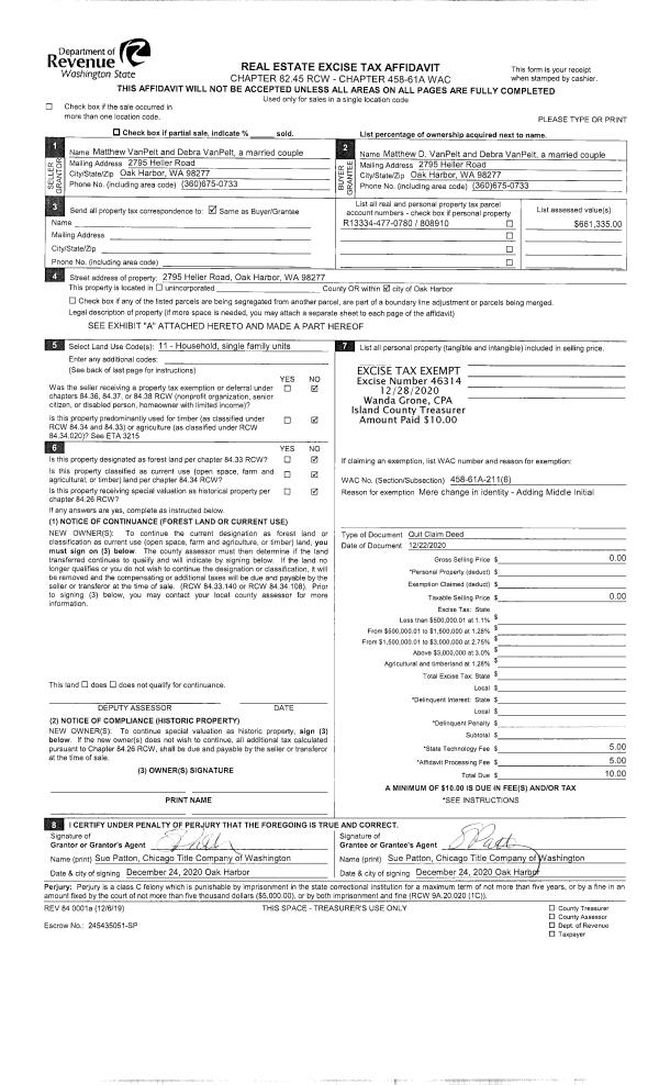
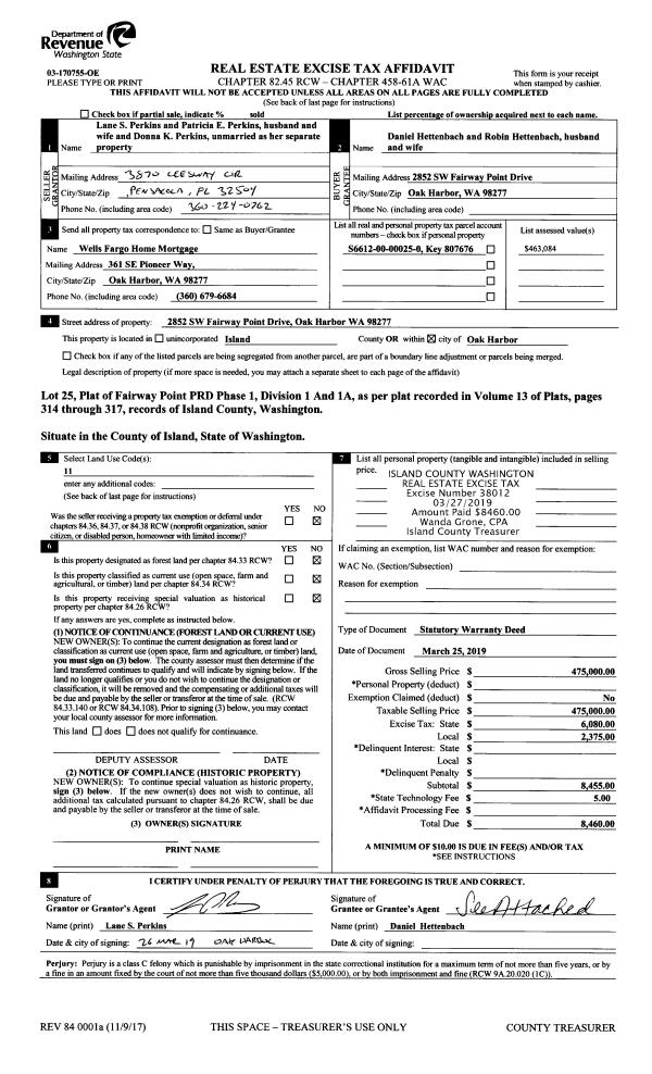
Deed and Sales History
| 1 | 07/30/2020 | WD | Warranty Deed | ANNA CATHERINE GEHRIGER REV TRUST | LUEKEN, RALPH E | | | $170,000.00 | 44071 | 4492885 |
| 2 | 03/13/2020 | QCD | Quit Claim Deed | GEHRIGER, ANNA C | ANNA CATHERINE GEHRIGER REV TRUST | | | $0.00 | 44017 | 4492599 |
| 3 | 03/13/2019 | QCD | Quit Claim Deed | GEHRIGER, ANNA C | ANNA CATHERINE GEHRIGER REV TRUST | | | $0.00 | 37970 | 4460933 |
| 4 | 07/25/2001 | WD | Warranty Deed | MITCHELL, WILLIAM B | GEHRIGER, ANNA C | | | $135,000.00 | 12865 | 20038526 |
| 5 | 03/27/2000 | TRUSTEED | Trustee's Deed | VAN, SPRONSEN, L | MITCHELL, WILLIAM B | | | $0.00 | 1108 | 20005433 |
| 6 | 06/01/1992 | WD | Warranty Deed | MITCHELL, WILLIAM B | VAN, SPRONSEN, L | | | $117,500.00 | 22674 | 92012868 |
| 7 | 10/01/1988 | QCD | Quit Claim Deed | MITCHELL, VANCE F | MITCHELL, WILLIAM B | | | $0.00 | 83640 | 88013609 |
| 8 | 01/01/1900 | OTHER | Other - Misc. Documents | Unknown | MITCHELL, VANCE F | | | $0.00 | 0 | 0 |
Payout Agreement
| No payout information available.. |