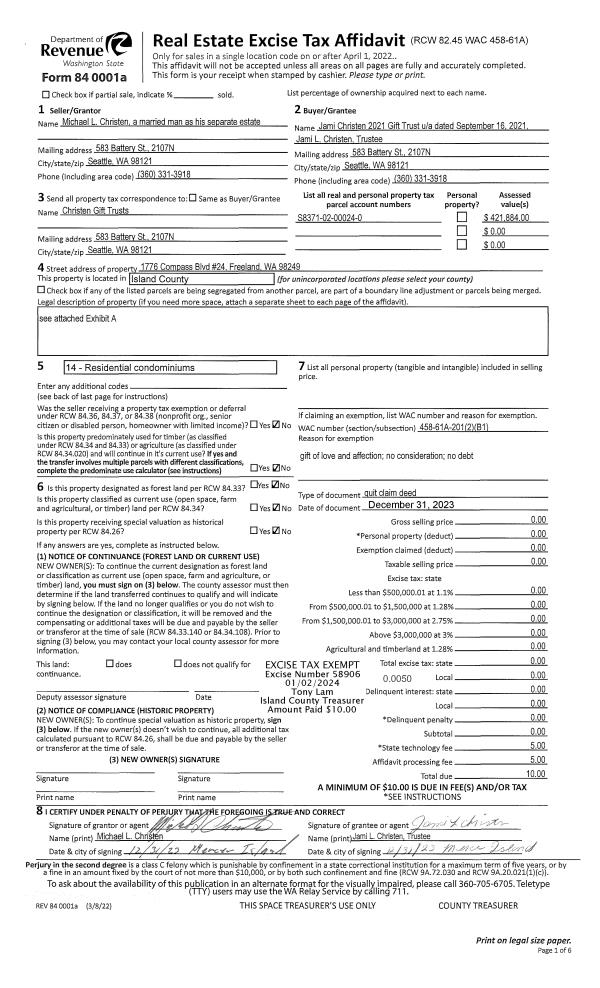
Property
Account |
| Property ID: | 497894 | Abbreviated Legal Description: | IN GL6: BG W/4 CR SEC 6 S82*E1681.80' S2*E24.46' N84*W235.31' TPB N84*W261 .84' S748.75' S67*E148.10' S56*E207.88' N2*W895.49' TPB FR 220-0950 TR 23 UNREC RIDGEVIEW ESTS |
| Geographic ID: | R32906-240-1500 | Agent Code: | |
| Type: | Real | | |
| Tax Area: | 712 - APPRAISER-S Whid Schl Dist, outside Langley, improved, greater than 1 acre | Land Use Code | 11 |
| Open Space: | N | DFL | N |
| Historic Property: | N | Remodel Property: | N |
| Multi-Family Redevelopment: | N | | |
| Township: | 29 | Section: | 06 |
| Range: | R3 |
Location |
| Address: | 2497 GOSS RIDGE RD FREELAND, WA 98249 | Mapsco: | |
| Neighborhood: | Cycle 3 | Map ID: | 737 |
| Neighborhood CD: | 3 |
Owner |
| Name: | BERLANT TTEE, STEVEN H | Owner ID: | 309742 |
| Mailing Address: | 2497 GOSS RIDGE RD FREELAND, WA 98249 | % Ownership: | 100.0000000000% |
| | | Exemptions: | |
Taxes and Assessment Details
Values
| (+) Improvement Homesite Value: | + | $0 | |
| (+) Improvement Non-Homesite Value: | + | $321,017 | |
| (+) Land Homesite Value: | + | $0 | |
| (+) Land Non-Homesite Value: | + | $370,000 | |
| (+) Curr Use (HS): | + | $0 | $0 |
| (+) Curr Use (NHS): | + | $0 | $0 |
| | | -------------------------- | |
| (=) Market Value: | = | $691,017 | |
| (–) Productivity Loss: | – | $0 | |
| | | -------------------------- | |
| (=) Subtotal: | = | $691,017 | |
| (+) Senior Appraised Value: | + | $0 | |
| (+) Non-Senior Appraised Value: | + | $691,017 | |
| | | -------------------------- | |
| (=) Total Appraised Value: | = | $691,017 | |
| (–) Senior Exemption Loss: | – | $0 | |
| (–) Exemption Loss: | – | $0 | |
| | | -------------------------- | |
| (=) Taxable Value: | = | $691,017 | |
Taxing Jurisdiction
| Owner: | BERLANT TTEE, STEVEN H | | |
| % Ownership: | 100.0000000000% | | |
| Total Value: | $691,017 | | |
| Tax Area: | 712 - APPRAISER-S Whid Schl Dist, outside Langley, improved, greater than 1 acre |
| CF | Conservation Futures | 0.0316035091 | $691,017 | $691,017 | $21.84 | | |
| FIRE3 | Fire & Rescue Dist #3 S Whidbey GEN | 1.2004855531 | $691,017 | $691,017 | $829.56 | | |
| HOBOND | Hospital BOND | 0.1910887512 | $691,017 | $691,017 | $132.05 | | |
| HOGEN | Hospital GEN | 0.3902502903 | $691,017 | $691,017 | $269.67 | | |
| CE | County Current Expense | 0.3708482477 | $691,017 | $691,017 | $256.26 | | |
| CR | County Roads | 0.4584763726 | $691,017 | $691,017 | $316.81 | | |
| ISLANDEMS | Hospital GEN (EMS) | 0.5000000000 | $691,017 | $691,017 | $345.51 | | |
| LIB | Library Sno-Isle GEN | 0.3153421757 | $691,017 | $691,017 | $217.91 | | |
| PORTWHID | Port of S Whidbey GEN | 0.1094540357 | $691,017 | $691,017 | $75.63 | | |
| SCH206BOND | School 206 BOND | 0.3161759235 | $691,017 | $691,017 | $218.48 | | |
| SCH206MO | School 206 Enrichment | 0.4547169547 | $691,017 | $691,017 | $314.22 | | |
| ST | State School | 1.3035497053 | $691,017 | $691,017 | $900.78 | | |
| ST2 | State School Part 2 | 0.8169543533 | $691,017 | $691,017 | $564.53 | | |
| SWHIDPRBD | P & R S Whidbey BOND | 0.0152817568 | $691,017 | $691,017 | $10.56 | | |
| SWHIDPRBD2 | P & R S Whidbey BOND2 | 0.0138911264 | $691,017 | $691,017 | $9.60 | | |
| SWHIDPRMT | P & R S Whidbey GEN | 0.2053334452 | $691,017 | $691,017 | $141.89 | | |
| | Total Tax Rate: | 6.6934522006 | | | | | |
| | | | | Taxes w/Current Exemptions: | $4,625.30 | | |
| | | | | Taxes w/o Exemptions: | $4,625.30 | | |
Improvement / Building
| Improvement #1: | RESIDENTIAL | State Code: | Y | 2104.2 sqft | Value: | $321,017 |
| Bathrooms: | 3.5 | Bedrooms: | 4 | | Ceiling: | DRYWALL PAINTED | Cooling: | HEAT PUMP/CONV/V | | Exterior Wall/Cover: | CEMENT FIBER | Floor Covering: | CARPET/VINYL 80-20 | | Floor Structure: | WOOD W/SUBFLOOR | Foundation: | CONCRETE | | Interior Finish: | DRYWALL PAINT | Plumbing Fixture Cnt: | 11 | | Roof Slope: | 6" IN 12" | Roof Structure/Cover: | CJ ASPHALT |
|
| | Type | Description | Class CD | Sub Class CD | Year Built | Area |
| | BAS | BASE/MAIN FLOOR | 3 | 0 | 1998 | 1423.1 |
| | UPS | UPPER STORY | 3 | 0 | 1998 | 681.1 |
| | OWP | OPEN WOOD PORCH W/STEPS | 3 | 0 | 1998 | 504.4 |
| | OWC | OPEN WOOD PORCH W/STEPS/ROOF/C | 3 | 0 | 1998 | 292.2 |
| | UTY | STORAGE/UTILITY | 3 | 0 | 1998 | 384.0 |
Sketch
Property Image
Land
| 1 | 32 | AC (03.01-09.99) | 5.2700 | 0.00 | 0.00 | 0.00 | 1.00 | $370,000 | $0 |
Roll Value History
| 2026 | N/A | N/A | N/A | N/A | N/A |
| 2025 | $321,017 | $370,000 | $0 | $691,017 | $691,017 |
| 2024 | $324,967 | $350,000 | $0 | $674,967 | $674,967 |
| 2023 | $307,585 | $330,000 | $0 | $637,585 | $637,585 |
| 2022 | $282,115 | $280,000 | $0 | $562,115 | $562,115 |
| 2021 | $248,451 | $230,000 | $0 | $478,451 | $478,451 |
| 2020 | $241,823 | $190,000 | $0 | $431,823 | $431,823 |
| 2019 | $192,867 | $230,000 | $0 | $422,867 | $422,867 |
| 2018 | $193,405 | $210,000 | $0 | $403,405 | $403,405 |
| 2017 | $194,461 | $180,000 | $0 | $374,461 | $374,461 |
| 2016 | $196,614 | $165,000 | $0 | $361,614 | $361,614 |
| 2015 | $198,769 | $142,290 | $0 | $341,059 | $341,059 |
| 2014 | $200,922 | $142,290 | $0 | $343,212 | $343,212 |
| 2013 | $204,869 | $142,290 | $0 | $347,159 | $347,159 |
| 2012 | $207,024 | $142,290 | $0 | $349,314 | $349,314 |
| 2011 | $209,178 | $142,290 | $0 | $351,468 | $351,468 |
| 2010 | $219,991 | $142,290 | $0 | $362,281 | $362,281 |
| 2009 | $229,094 | $205,530 | $0 | $434,624 | $434,624 |
| 2008 | $274,188 | $253,096 | $0 | $527,284 | $527,284 |
| 2007 | $227,313 | $167,997 | $0 | $395,310 | $395,310 |
Deed and Sales History
| 1 | 08/16/2023 | WD | Warranty Deed | COOK, JOSEPH A | BERLANT TTEE, STEVEN H | | | $604,000.00 | 57690 | 4563764 |
|   | |
| 2 | 06/17/2003 | WD | Warranty Deed | JOHNSON, JEFFREY | COOK, JOSEPH A | | | $275,000.00 | 32632 | 4063537 |
| 3 | 10/15/1998 | WD | Warranty Deed | NICHOLS, ARCHIE A | JOHNSON, JEFFREY | | | $40,000.00 | 84425 | 98024018 |
| 4 | 08/01/1992 | DECREE | Divorce Decree/Legal Separation | NICHOLS, ARCHIE A | NICHOLS, ARCHIE A | | | $0.00 | 23992 | 92019423 |
| 5 | 08/01/1979 | CD | DNU - Correction Deed | NICHOLS, MATHEW J | NICHOLS, ARCHIE A | | | $0.00 | 94235 | 357919 |
| 6 | 01/01/1900 | OTHER | Other - Misc. Documents | Unknown | NICHOLS, MATHEW J | | | $0.00 | 0 | 0 |
Payout Agreement
| No payout information available.. |