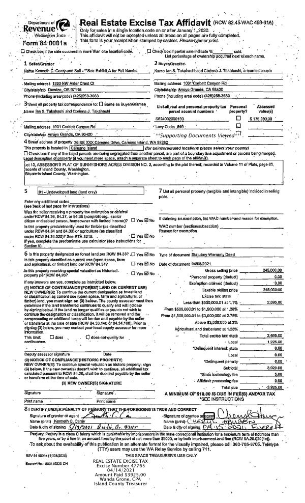
Property
Account |
| Property ID: | 498349 | Abbreviated Legal Description: | REPLACES 4250160 70 - IN GL 3: N45'OF S90'OF FOLL DESC: ALL OF GL 3 EX S210' & EX N797' INCL ADJ TIDES EX CO RD TGW & SUB EZ AF#88004925 |
| Geographic ID: | R32813-155-0160 | Agent Code: | |
| Type: | Real | | |
| Tax Area: | 710 - APPRAISER-S Whid Schl Dist, outside Langley, improved & 1 acre or less | Land Use Code | 11 |
| Open Space: | N | DFL | N |
| Historic Property: | N | Remodel Property: | N |
| Multi-Family Redevelopment: | N | | |
| Township: | 28 | Section: | 13 |
| Range: | R3 |
Location |
| Address: | 8273 S FRANKLIN RD B CLINTON, WA 98236 | Mapsco: | |
| Neighborhood: | Cycle 4 | Map ID: | 707 |
| Neighborhood CD: | 4 |
Owner |
| Name: | LINDAHL, MARTHA ANN | Owner ID: | 304643 |
| Mailing Address: | ALICE MARIE LINDAHL 394 PINTAIL LN MOSCOW, ID 83843 | % Ownership: | 100.0000000000% |
| | | Exemptions: | |
Taxes and Assessment Details
Values
| (+) Improvement Homesite Value: | + | $0 | |
| (+) Improvement Non-Homesite Value: | + | $46,604 | |
| (+) Land Homesite Value: | + | $0 | |
| (+) Land Non-Homesite Value: | + | $400,450 | |
| (+) Curr Use (HS): | + | $0 | $0 |
| (+) Curr Use (NHS): | + | $0 | $0 |
| | | -------------------------- | |
| (=) Market Value: | = | $447,054 | |
| (–) Productivity Loss: | – | $0 | |
| | | -------------------------- | |
| (=) Subtotal: | = | $447,054 | |
| (+) Senior Appraised Value: | + | $0 | |
| (+) Non-Senior Appraised Value: | + | $447,054 | |
| | | -------------------------- | |
| (=) Total Appraised Value: | = | $447,054 | |
| (–) Senior Exemption Loss: | – | $0 | |
| (–) Exemption Loss: | – | $0 | |
| | | -------------------------- | |
| (=) Taxable Value: | = | $447,054 | |
Taxing Jurisdiction
| Owner: | LINDAHL, MARTHA ANN | | |
| % Ownership: | 100.0000000000% | | |
| Total Value: | $447,054 | | |
| Tax Area: | 710 - APPRAISER-S Whid Schl Dist, outside Langley, improved & 1 acre or less |
| CF | Conservation Futures | 0.0316035091 | $447,054 | $447,054 | $14.13 | | |
| FIRE3 | Fire & Rescue Dist #3 S Whidbey GEN | 1.2004855531 | $447,054 | $447,054 | $536.68 | | |
| HOBOND | Hospital BOND | 0.1910887512 | $447,054 | $447,054 | $85.43 | | |
| HOGEN | Hospital GEN | 0.3902502903 | $447,054 | $447,054 | $174.46 | | |
| CE | County Current Expense | 0.3708482477 | $447,054 | $447,054 | $165.79 | | |
| CR | County Roads | 0.4584763726 | $447,054 | $447,054 | $204.96 | | |
| ISLANDEMS | Hospital GEN (EMS) | 0.5000000000 | $447,054 | $447,054 | $223.53 | | |
| LIB | Library Sno-Isle GEN | 0.3153421757 | $447,054 | $447,054 | $140.97 | | |
| PORTWHID | Port of S Whidbey GEN | 0.1094540357 | $447,054 | $447,054 | $48.93 | | |
| SCH206BOND | School 206 BOND | 0.3161759235 | $447,054 | $447,054 | $141.35 | | |
| SCH206MO | School 206 Enrichment | 0.4547169547 | $447,054 | $447,054 | $203.28 | | |
| ST | State School | 1.3035497053 | $447,054 | $447,054 | $582.76 | | |
| ST2 | State School Part 2 | 0.8169543533 | $447,054 | $447,054 | $365.22 | | |
| SWHIDPRBD | P & R S Whidbey BOND | 0.0152817568 | $447,054 | $447,054 | $6.83 | | |
| SWHIDPRBD2 | P & R S Whidbey BOND2 | 0.0138911264 | $447,054 | $447,054 | $6.21 | | |
| SWHIDPRMT | P & R S Whidbey GEN | 0.2053334452 | $447,054 | $447,054 | $91.80 | | |
| | Total Tax Rate: | 6.6934522006 | | | | | |
| | | | | Taxes w/Current Exemptions: | $2,992.33 | | |
| | | | | Taxes w/o Exemptions: | $2,992.33 | | |
Improvement / Building
| Improvement #1: | RESIDENTIAL | State Code: | Y | 600.0 sqft | Value: | $46,604 |
| Bathrooms: | 1 | Bedrooms: | 2 | | Ceiling: | DRYWALL PAINTED | Exterior Wall/Cover: | ASBESTOES/ASPHALT | | Floor Covering: | CARPET/VINYL 80-20 | Floor Structure: | WOOD W/SUBFLOOR | | Foundation: | CONCRETE | Heating: | BASEBOARD ELECTRIC | | Interior Finish: | DRYWALL PAINT | Plumbing Fixture Cnt: | 5 | | Roof Slope: | 4" IN 12" | Roof Structure/Cover: | CJ ASPHALT |
|
| | Type | Description | Class CD | Sub Class CD | Year Built | Area |
| | BAS | BASE/MAIN FLOOR | 1 | 0 | 1950 | 600.0 |
| | DGR | DETACHED GARAGE | 1 | 0 | 1950 | 364.0 |
| | OP1 | OPEN PORCH SLAB | 1 | 0 | 1950 | 400.0 |
Sketch
| No sketches available for this property. |
Property Image
Land
| 1 | LB | LOW BANK | 0.3600 | 15681.60 | 45.00 | 0.00 | 1.00 | $400,000 | $0 |
| 2 | 55 | TIDES | 0.0000 | 0.00 | 45.00 | 0.00 | 1.00 | $450 | $0 |
Roll Value History
| 2026 | N/A | N/A | N/A | N/A | N/A |
| 2025 | $46,604 | $400,450 | $0 | $447,054 | $447,054 |
| 2024 | $47,238 | $350,450 | $0 | $397,688 | $397,688 |
| 2023 | $48,356 | $350,450 | $0 | $398,806 | $398,806 |
| 2022 | $44,799 | $325,450 | $0 | $370,249 | $370,249 |
| 2021 | $39,837 | $300,450 | $0 | $340,287 | $340,287 |
| 2020 | $34,373 | $300,450 | $0 | $334,823 | $334,823 |
| 2019 | $25,674 | $325,450 | $0 | $351,124 | $351,124 |
| 2018 | $25,829 | $250,450 | $0 | $276,279 | $276,279 |
| 2017 | $26,141 | $230,450 | $0 | $256,591 | $256,591 |
| 2016 | $26,763 | $230,450 | $0 | $257,213 | $257,213 |
| 2015 | $27,385 | $230,450 | $0 | $257,835 | $257,835 |
| 2014 | $32,090 | $230,450 | $0 | $262,540 | $262,540 |
| 2013 | $32,619 | $201,308 | $0 | $233,927 | $233,927 |
| 2012 | $33,147 | $201,308 | $0 | $234,455 | $234,455 |
| 2011 | $33,676 | $201,308 | $0 | $234,984 | $234,984 |
| 2010 | $38,639 | $201,308 | $0 | $239,947 | $239,947 |
| 2009 | $40,199 | $201,308 | $0 | $241,507 | $241,507 |
| 2008 | $40,822 | $201,308 | $0 | $242,130 | $242,130 |
| 2007 | $41,556 | $201,004 | $0 | $242,560 | $242,560 |
Deed and Sales History
| 1 | 04/27/2022 | QCD | Quit Claim Deed | WRIGHT, ELEANOR KATHLEEN | LINDAHL, MARTHA ANN | | | $0.00 | 52863 | 4544165 |
| 2 | 01/08/2021 | QCD | Quit Claim Deed | LINDAHL, ROBERTA A | LINDAHL ET AL, ALICE MARIE | | | $0.00 | 46638 | 4508682 |
| 3 | 04/01/1988 | EZ | Easement | LINDAHL, ROBERTA A | LINDAHL, ROBERTA A | | | $0.00 | 81294 | 88004925 |
| 4 | 11/01/1986 | QCD | Quit Claim Deed | LINDAHL, WALLACE W | LINDAHL, ROBERTA A | | | $0.00 | 61944 | 85012457 |
| 5 | 01/01/1900 | OTHER | Other - Misc. Documents | Unknown | LINDAHL, WALLACE W | | | $0.00 | 0 | 0 |
Payout Agreement
| No payout information available.. |