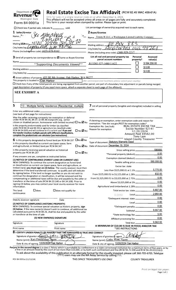
Property
Account |
| Property ID: | 498447 | Abbreviated Legal Description: | MOUNTAINVIEW BEACH W100' OF LOT 35 & W100' OF LOT 36 FR 00035-2 & 00037-0 |
| Geographic ID: | S7525-00-00035-4 | Agent Code: | |
| Type: | Real | | |
| Tax Area: | 540 - APPRAISER-Stan/Cam Schl Dist, Special Dist, improved & less than 1 acre | Land Use Code | 11 |
| Open Space: | N | DFL | N |
| Historic Property: | N | Remodel Property: | N |
| Multi-Family Redevelopment: | N | | |
| Township: | | Section: | |
| Range: | |
Location |
| Address: | | Mapsco: | |
| Neighborhood: | Cycle 5 | Map ID: | 947 |
| Neighborhood CD: | 5 |
Owner |
| Name: | CAMANO ISLAND PROPERTY, LLC | Owner ID: | 280103 |
| Mailing Address: | 510 SOUTH DAKOTA ST DILLON, MT 59725 | % Ownership: | 100.0000000000% |
| | | Exemptions: | |
Taxes and Assessment Details
Values
| (+) Improvement Homesite Value: | + | $0 | |
| (+) Improvement Non-Homesite Value: | + | $23,612 | |
| (+) Land Homesite Value: | + | $0 | |
| (+) Land Non-Homesite Value: | + | $200,000 | |
| (+) Curr Use (HS): | + | $0 | $0 |
| (+) Curr Use (NHS): | + | $0 | $0 |
| | | -------------------------- | |
| (=) Market Value: | = | $223,612 | |
| (–) Productivity Loss: | – | $0 | |
| | | -------------------------- | |
| (=) Subtotal: | = | $223,612 | |
| (+) Senior Appraised Value: | + | $0 | |
| (+) Non-Senior Appraised Value: | + | $223,612 | |
| | | -------------------------- | |
| (=) Total Appraised Value: | = | $223,612 | |
| (–) Senior Exemption Loss: | – | $0 | |
| (–) Exemption Loss: | – | $0 | |
| | | -------------------------- | |
| (=) Taxable Value: | = | $223,612 | |
Taxing Jurisdiction
| Owner: | CAMANO ISLAND PROPERTY, LLC | | |
| % Ownership: | 100.0000000000% | | |
| Total Value: | $223,612 | | |
| Tax Area: | 540 - APPRAISER-Stan/Cam Schl Dist, Special Dist, improved & less than 1 acre |
| CF | Conservation Futures | 0.0316035091 | $223,612 | $223,612 | $7.07 | | |
| EMS1 | Fire & Rescue Dist #1 Camano GEN (EMS) | 0.3677864386 | $223,612 | $223,612 | $82.24 | | |
| FIRE1 | Fire & Rescue Dist #1 Camano GEN | 1.2502910536 | $223,612 | $223,612 | $279.58 | | |
| FIRE1BOND | Fire & Rescue Dist #1 Camano BOND | 0.1570001679 | $223,612 | $223,612 | $35.11 | | |
| CE | County Current Expense | 0.3708482477 | $223,612 | $223,612 | $82.93 | | |
| CR | County Roads | 0.4584763726 | $223,612 | $223,612 | $102.52 | | |
| LCIB | Library Sno-Isle BOND (Camano Island) | 0.0396325772 | $223,612 | $223,612 | $8.86 | | |
| LIB | Library Sno-Isle GEN | 0.3153421757 | $223,612 | $223,612 | $70.51 | | |
| SCH205_401 | School 205-401 Enrichment | 1.2698420524 | $223,612 | $223,612 | $283.95 | | |
| SCH205BOND | School 205-401 BOND | 0.9396497583 | $223,612 | $223,612 | $210.12 | | |
| ST | State School | 1.3035497053 | $223,612 | $223,612 | $291.49 | | |
| ST2 | State School Part 2 | 0.8169543533 | $223,612 | $223,612 | $182.68 | | |
| | Total Tax Rate: | 7.3209764117 | | | | | |
| | | | | Taxes w/Current Exemptions: | $1,637.06 | | |
| | | | | Taxes w/o Exemptions: | $1,637.06 | | |
Improvement / Building
| Improvement #1: | RESIDENTIAL | State Code: | Y | 488.0 sqft | Value: | $23,612 |
| Bathrooms: | 1 | Bedrooms: | 2 | | Ceiling: | BEAM PAINTED | Exterior Wall/Cover: | WOOD SIDING | | Floor Covering: | SOFTWOOD 100% | Floor Structure: | WOOD W/SUBFLOOR | | Foundation: | WOOD BLOCKS | Heating: | WALL HEAT ELECTRIC | | Interior Finish: | DRYWALL PAINT | Plumbing Fixture Cnt: | 3 | | Roof Slope: | 6" IN 12" | Roof Structure/Cover: | BEAM ASPHALT |
|
| | Type | Description | Class CD | Sub Class CD | Year Built | Area |
| | BAS | BASE/MAIN FLOOR | 1 | 0 | 1935 | 488.0 |
| | OWP | OPEN WOOD PORCH W/STEPS | 1 | 0 | 1935 | 88.0 |
| | ATU | ATTIC UNFINISHED | 1 | 0 | 1935 | 360.0 |
Sketch
Property Image
Land
| 1 | 13 | SQ (06001-08000) | 0.1500 | 6534.00 | 0.00 | 0.00 | 1.00 | $200,000 | $0 |
Roll Value History
| 2026 | N/A | N/A | N/A | N/A | N/A |
| 2025 | $23,612 | $200,000 | $0 | $223,612 | $223,612 |
| 2024 | $23,068 | $200,000 | $0 | $223,068 | $223,068 |
| 2023 | $23,068 | $200,000 | $0 | $223,068 | $223,068 |
| 2022 | $20,888 | $200,000 | $0 | $220,888 | $220,888 |
| 2021 | $12,619 | $140,000 | $0 | $152,619 | $152,619 |
| 2020 | $12,204 | $120,000 | $0 | $132,204 | $132,204 |
| 2019 | $8,724 | $160,000 | $0 | $168,724 | $168,724 |
| 2018 | $8,724 | $120,000 | $0 | $128,724 | $128,724 |
| 2017 | $8,724 | $105,000 | $0 | $113,724 | $113,724 |
| 2016 | $8,724 | $65,000 | $0 | $73,724 | $73,724 |
| 2015 | $0 | $65,000 | $0 | $65,000 | $65,000 |
| 2014 | $0 | $65,000 | $0 | $65,000 | $65,000 |
| 2013 | $0 | $65,000 | $0 | $65,000 | $65,000 |
| 2012 | $0 | $65,000 | $0 | $65,000 | $65,000 |
| 2011 | $0 | $65,000 | $0 | $65,000 | $65,000 |
| 2010 | $0 | $65,000 | $0 | $65,000 | $65,000 |
| 2009 | $0 | $70,000 | $0 | $70,000 | $70,000 |
| 2008 | $0 | $75,000 | $0 | $75,000 | $75,000 |
| 2007 | $0 | $8,500 | $0 | $8,500 | $8,500 |
Deed and Sales History
| 1 | 09/06/2023 | WD | Warranty Deed | STEPHENS, STACEY A | CAMANO ISLAND PROPERTY, LLC | | | $210,000.00 | 57988 | 4564750 |
|   | |
| 2 | 12/01/2006 | WD | Warranty Deed | STEPHENS, RANDALL J | STEPHENS, STACEY A | | | $0.00 | 65363 | 4190323 |
| 3 | 03/01/1992 | QCD | Quit Claim Deed | STEPHENS, RANDALL J | STEPHENS, RANDALL J | | | $0.00 | 21503 | 92007240 |
| 4 | 04/01/1980 | EXECUTORD | Executor Deed | STEPHENS, RICHARD K | STEPHENS, ROBERT L | | | $0.00 | 1374 | 0 |
| 5 | 04/01/1980 | CD | DNU - Correction Deed | STEPHENS, ROBERT L | STEPHENS, ROBERT L | | | $0.00 | 2347 | 0 |
| 6 | 12/01/1978 | QCD | Quit Claim Deed | STEPHENS, ROBERT L | STEPHENS, RANDALL J | | | $0.00 | 31712 | 411363 |
| 7 | 12/01/1972 | EXECUTORD | Executor Deed | Unknown | STEPHENS, RICHARD K | | | $4,750.00 | 1054 | 0 |
Payout Agreement
| No payout information available.. |