Property
Account |
| Property ID: | 498544 | Abbreviated Legal Description: | REPLACES 4330160 8 - GL3 EX N847'& EX S300'& EX RD TGW TIDES TGW EZ INCL INT IN WELL |
| Geographic ID: | R32813-162-0160 | Agent Code: | |
| Type: | Real | | |
| Tax Area: | 710 - APPRAISER-S Whid Schl Dist, outside Langley, improved & 1 acre or less | Land Use Code | 11 |
| Open Space: | N | DFL | N |
| Historic Property: | N | Remodel Property: | N |
| Multi-Family Redevelopment: | N | | |
| Township: | 28 | Section: | 13 |
| Range: | R3 |
Location |
| Address: | 8267 FRANKLIN RD CLINTON, WA 98236 | Mapsco: | |
| Neighborhood: | Cycle 4 | Map ID: | 707 |
| Neighborhood CD: | 4 |
Owner |
| Name: | POSCH, DARRELL R | Owner ID: | 16388 |
| Mailing Address: | 8267 FRANKLIN RD CLINTON, WA 98236 | % Ownership: | 100.0000000000% |
| | | Exemptions: | |
Taxes and Assessment Details
Values
| (+) Improvement Homesite Value: | + | $0 | |
| (+) Improvement Non-Homesite Value: | + | $390,362 | |
| (+) Land Homesite Value: | + | $0 | |
| (+) Land Non-Homesite Value: | + | $401,150 | |
| (+) Curr Use (HS): | + | $0 | $0 |
| (+) Curr Use (NHS): | + | $0 | $0 |
| | | -------------------------- | |
| (=) Market Value: | = | $791,512 | |
| (–) Productivity Loss: | – | $0 | |
| | | -------------------------- | |
| (=) Subtotal: | = | $791,512 | |
| (+) Senior Appraised Value: | + | $0 | |
| (+) Non-Senior Appraised Value: | + | $791,512 | |
| | | -------------------------- | |
| (=) Total Appraised Value: | = | $791,512 | |
| (–) Senior Exemption Loss: | – | $0 | |
| (–) Exemption Loss: | – | $0 | |
| | | -------------------------- | |
| (=) Taxable Value: | = | $791,512 | |
Taxing Jurisdiction
| Owner: | POSCH, DARRELL R | | |
| % Ownership: | 100.0000000000% | | |
| Total Value: | $791,512 | | |
| Tax Area: | 710 - APPRAISER-S Whid Schl Dist, outside Langley, improved & 1 acre or less |
| CF | Conservation Futures | 0.0316035091 | $791,512 | $791,512 | $25.01 | | |
| FIRE3 | Fire & Rescue Dist #3 S Whidbey GEN | 1.2004855531 | $791,512 | $791,512 | $950.20 | | |
| HOBOND | Hospital BOND | 0.1910887512 | $791,512 | $791,512 | $151.25 | | |
| HOGEN | Hospital GEN | 0.3902502903 | $791,512 | $791,512 | $308.89 | | |
| CE | County Current Expense | 0.3708482477 | $791,512 | $791,512 | $293.53 | | |
| CR | County Roads | 0.4584763726 | $791,512 | $791,512 | $362.89 | | |
| ISLANDEMS | Hospital GEN (EMS) | 0.5000000000 | $791,512 | $791,512 | $395.76 | | |
| LIB | Library Sno-Isle GEN | 0.3153421757 | $791,512 | $791,512 | $249.60 | | |
| PORTWHID | Port of S Whidbey GEN | 0.1094540357 | $791,512 | $791,512 | $86.63 | | |
| SCH206BOND | School 206 BOND | 0.3161759235 | $791,512 | $791,512 | $250.26 | | |
| SCH206MO | School 206 Enrichment | 0.4547169547 | $791,512 | $791,512 | $359.91 | | |
| ST | State School | 1.3035497053 | $791,512 | $791,512 | $1,031.78 | | |
| ST2 | State School Part 2 | 0.8169543533 | $791,512 | $791,512 | $646.63 | | |
| SWHIDPRBD | P & R S Whidbey BOND | 0.0152817568 | $791,512 | $791,512 | $12.10 | | |
| SWHIDPRBD2 | P & R S Whidbey BOND2 | 0.0138911264 | $791,512 | $791,512 | $10.99 | | |
| SWHIDPRMT | P & R S Whidbey GEN | 0.2053334452 | $791,512 | $791,512 | $162.52 | | |
| | Total Tax Rate: | 6.6934522006 | | | | | |
| | | | | Taxes w/Current Exemptions: | $5,297.95 | | |
| | | | | Taxes w/o Exemptions: | $5,297.95 | | |
Improvement / Building
| Improvement #1: | RESIDENTIAL | State Code: | Y | 2600.0 sqft | Value: | $390,362 |
| Bathrooms: | 2 | Bedrooms: | 3 | | Ceiling: | DRY WALL SPRAYED | Exterior Wall/Cover: | CONCRETE BLOCK | | Floor Covering: | HARDWOOD 100% | Floor Structure: | WOOD W/SUBFLOOR | | Foundation: | CONCRETE | Heating: | WALL HEAT ELECTRIC | | Interior Finish: | DRYWALL PAINT | Plumbing Fixture Cnt: | 9 | | Roof Slope: | 4" IN 12" | Roof Structure/Cover: | STEEL TERNE |
|
| | Type | Description | Class CD | Sub Class CD | Year Built | Area |
| | BAS | BASE/MAIN FLOOR | 3 | 0 | 1910 | 2600.0 |
| | OWP | OPEN WOOD PORCH W/STEPS | 3 | 0 | 1910 | 340.5 |
| | OWP | OPEN WOOD PORCH W/STEPS | 3 | 0 | 1910 | 949.0 |
| | BIG | BUILT IN GARAGE | 3 | 0 | 1910 | 1120.0 |
| | ENP | ENCLOSED PORCH | 3 | 0 | 1910 | 952.0 |
| | OWP | OPEN WOOD PORCH W/STEPS | 3 | 0 | 1910 | 56.0 |
| | CPD | OPEN CARPORT DIRT FLOOR | 3 | 0 | 1910 | 432.0 |
Sketch
| No sketches available for this property. |
Property Image
Land
| 1 | LB | LOW BANK | 0.6600 | 28749.60 | 115.00 | 0.00 | 1.00 | $400,000 | $0 |
| 2 | 55 | TIDES | 0.0000 | 0.00 | 115.00 | 0.00 | 1.00 | $1,150 | $0 |
Roll Value History
| 2026 | N/A | N/A | N/A | N/A | N/A |
| 2025 | $390,362 | $401,150 | $0 | $791,512 | $791,512 |
| 2024 | $396,535 | $351,150 | $0 | $747,685 | $747,685 |
| 2023 | $402,706 | $351,150 | $0 | $753,856 | $753,856 |
| 2022 | $370,263 | $301,150 | $0 | $671,413 | $671,413 |
| 2021 | $326,811 | $276,150 | $0 | $602,961 | $602,961 |
| 2020 | $230,340 | $276,150 | $0 | $506,490 | $506,490 |
| 2019 | $187,803 | $301,150 | $0 | $488,953 | $488,953 |
| 2018 | $188,570 | $251,150 | $0 | $439,720 | $439,720 |
| 2017 | $190,103 | $231,150 | $0 | $421,253 | $421,253 |
| 2016 | $193,170 | $231,150 | $0 | $424,320 | $424,320 |
| 2015 | $196,235 | $231,150 | $0 | $427,385 | $427,385 |
| 2014 | $164,533 | $251,150 | $0 | $415,683 | $415,683 |
| 2013 | $167,204 | $171,973 | $0 | $339,177 | $339,177 |
| 2012 | $169,875 | $171,973 | $0 | $341,848 | $341,848 |
| 2011 | $172,546 | $171,973 | $0 | $344,519 | $344,519 |
| 2010 | $192,540 | $171,973 | $0 | $364,513 | $364,513 |
| 2009 | $197,266 | $219,424 | $0 | $416,690 | $416,690 |
| 2008 | $195,111 | $219,424 | $0 | $414,535 | $414,535 |
| 2007 | $198,295 | $218,619 | $0 | $416,914 | $416,914 |
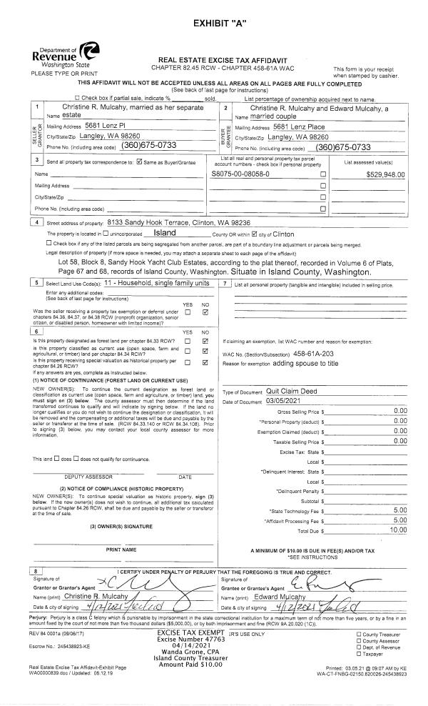
Deed and Sales History
Payout Agreement
| No payout information available.. |