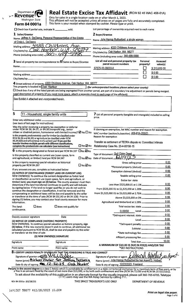
Property
Account |
| Property ID: | 498615 | Abbreviated Legal Description: | W307' E752' NE NW LY NLY RD EX N354.72' TGW SUB EZ SP 79-158 TR B FR 4702100 |
| Geographic ID: | R23202-466-2100 | Agent Code: | |
| Type: | Real | | |
| Tax Area: | 112 - APPRAISER-OH Schl Dist, outside OH, improved, greater than 1 acre | Land Use Code | 11 |
| Open Space: | N | DFL | N |
| Historic Property: | N | Remodel Property: | N |
| Multi-Family Redevelopment: | N | | |
| Township: | 32 | Section: | 02 |
| Range: | R2 |
Location |
| Address: | 2354 STRAWBERRY LN OAK HARBOR, WA 98277 | Mapsco: | |
| Neighborhood: | Cycle 6 | Map ID: | 538 |
| Neighborhood CD: | 6 |
Owner |
| Name: | HUDSON TRUSTEE, JOHN A | Owner ID: | 189149 |
| Mailing Address: | ANITA M COLOMBO TRUSTEE 2354 STRAWBERRY LN OAK HARBOR, WA 98277-8627 | % Ownership: | 100.0000000000% |
| | | Exemptions: | |
Taxes and Assessment Details
Values
| (+) Improvement Homesite Value: | + | $0 | |
| (+) Improvement Non-Homesite Value: | + | $846,463 | |
| (+) Land Homesite Value: | + | $0 | |
| (+) Land Non-Homesite Value: | + | $310,000 | |
| (+) Curr Use (HS): | + | $0 | $0 |
| (+) Curr Use (NHS): | + | $0 | $0 |
| | | -------------------------- | |
| (=) Market Value: | = | $1,156,463 | |
| (–) Productivity Loss: | – | $0 | |
| | | -------------------------- | |
| (=) Subtotal: | = | $1,156,463 | |
| (+) Senior Appraised Value: | + | $0 | |
| (+) Non-Senior Appraised Value: | + | $1,156,463 | |
| | | -------------------------- | |
| (=) Total Appraised Value: | = | $1,156,463 | |
| (–) Senior Exemption Loss: | – | $0 | |
| (–) Exemption Loss: | – | $0 | |
| | | -------------------------- | |
| (=) Taxable Value: | = | $1,156,463 | |
Taxing Jurisdiction
| Owner: | HUDSON TRUSTEE, JOHN A | | |
| % Ownership: | 100.0000000000% | | |
| Total Value: | $1,156,463 | | |
| Tax Area: | 112 - APPRAISER-OH Schl Dist, outside OH, improved, greater than 1 acre |
| CF | Conservation Futures | 0.0316035091 | $1,156,463 | $1,156,463 | $36.55 | | |
| CEM1 | Cemetery #1 | 0.0040320932 | $1,156,463 | $1,156,463 | $4.66 | | |
| FIRE2 | Fire & Rescue Dist #2 N Whidbey GEN | 0.5475949600 | $1,156,463 | $1,156,463 | $633.27 | | |
| HOBOND | Hospital BOND | 0.1910887512 | $1,156,463 | $1,156,463 | $220.99 | | |
| HOGEN | Hospital GEN | 0.3902502903 | $1,156,463 | $1,156,463 | $451.31 | | |
| CE | County Current Expense | 0.3708482477 | $1,156,463 | $1,156,463 | $428.87 | | |
| CR | County Roads | 0.4584763726 | $1,156,463 | $1,156,463 | $530.21 | | |
| ISLANDEMS | Hospital GEN (EMS) | 0.5000000000 | $1,156,463 | $1,156,463 | $578.23 | | |
| LIB | Library Sno-Isle GEN | 0.3153421757 | $1,156,463 | $1,156,463 | $364.68 | | |
| NWHIDPRMT | P & R N Whidbey GEN | 0.2004466701 | $1,156,463 | $1,156,463 | $231.81 | | |
| SCH201MO | School 201 Enrichment | 1.8559231640 | $1,156,463 | $1,156,463 | $2,146.31 | | |
| ST | State School | 1.3035497053 | $1,156,463 | $1,156,463 | $1,507.51 | | |
| ST2 | State School Part 2 | 0.8169543533 | $1,156,463 | $1,156,463 | $944.78 | | |
| | Total Tax Rate: | 6.9861102925 | | | | | |
| | | | | Taxes w/Current Exemptions: | $8,079.18 | | |
| | | | | Taxes w/o Exemptions: | $8,079.18 | | |
Improvement / Building
| Improvement #1: | RESIDENTIAL | State Code: | Y | 2864.6 sqft | Value: | $846,463 |
| Bathrooms: | 3.5 | Bedrooms: | 2 | | Ceiling: | DRYWALL PAINTED | Exterior Wall/Cover: | WOOD SIDING | | Floor Covering: | HARDWOOD/CARP 60-40 | Floor Structure: | WOOD W/SUBFLOOR | | Foundation: | CONCRETE | Heating: | FHA GAS | | Interior Finish: | DRYWALL PAINT | Plumbing Fixture Cnt: | 14 | | Roof Slope: | 5" IN 12" | Roof Structure/Cover: | CJ ASPHALT |
|
| | Type | Description | Class CD | Sub Class CD | Year Built | Area |
| | BAS | BASE/MAIN FLOOR | 5 | 0 | 2004 | 2864.6 |
| | OP4 | OPEN PORCH W/CEILING-ROOF | 5 | 0 | 2004 | 289.5 |
| | AGR | ATTACHED GARAGE | 5 | 0 | 2004 | 1445.9 |
| | OWP | OPEN WOOD PORCH W/STEPS | 5 | 0 | 2004 | 504.8 |
| | OWC | OPEN WOOD PORCH W/STEPS/ROOF/C | 5 | 0 | 2004 | 600.9 |
| | OWC | OPEN WOOD PORCH W/STEPS/ROOF/C | 5 | 0 | 2004 | 239.2 |
Sketch
Property Image
Land
| 1 | 18 | AC (02.01-03.00) | 2.6500 | 115434.00 | 0.00 | 0.00 | 1.00 | $310,000 | $0 |
Roll Value History
| 2026 | N/A | N/A | N/A | N/A | N/A |
| 2025 | $846,463 | $310,000 | $0 | $1,156,463 | $1,156,463 |
| 2024 | $856,277 | $290,000 | $0 | $1,146,277 | $1,146,277 |
| 2023 | $866,092 | $280,000 | $0 | $1,146,092 | $1,146,092 |
| 2022 | $834,759 | $220,000 | $0 | $1,054,759 | $1,054,759 |
| 2021 | $725,809 | $190,000 | $0 | $915,809 | $915,809 |
| 2020 | $706,497 | $160,000 | $0 | $866,497 | $866,497 |
| 2019 | $620,734 | $220,000 | $0 | $840,734 | $840,734 |
| 2018 | $622,473 | $200,000 | $0 | $822,473 | $822,473 |
| 2017 | $625,951 | $165,000 | $0 | $790,951 | $790,951 |
| 2016 | $633,757 | $140,000 | $0 | $773,757 | $773,757 |
| 2015 | $641,042 | $140,000 | $0 | $781,042 | $781,042 |
| 2014 | $648,326 | $167,400 | $0 | $815,726 | $815,726 |
| 2013 | $655,612 | $167,400 | $0 | $823,012 | $823,012 |
| 2012 | $662,896 | $167,400 | $0 | $830,296 | $830,296 |
| 2011 | $670,180 | $186,000 | $0 | $856,180 | $856,180 |
| 2010 | $662,377 | $186,000 | $0 | $848,377 | $848,377 |
| 2009 | $690,236 | $155,000 | $0 | $845,236 | $845,236 |
| 2008 | $705,239 | $155,000 | $0 | $860,239 | $860,239 |
| 2007 | $754,090 | $133,075 | $0 | $887,165 | $887,165 |
Deed and Sales History
| 1 | 02/20/2003 | QCD | Quit Claim Deed | HUDSON, JOHN A | HUDSON TRUSTEE, JOHN A | | | $0.00 | 30910 | 4050090 |
| 2 | 11/12/2002 | WD | Warranty Deed | BRANDT, HELEN | HUDSON, JOHN A | | | $106,500.00 | 24714 | 4038448 |
| 3 | 01/01/1900 | OTHER | Other - Misc. Documents | Unknown | BRANDT, HELEN | | | $0.00 | 0 | 0 |
Payout Agreement
| No payout information available.. |