Property
Account |
| Property ID: | 498624 | Abbreviated Legal Description: | NE SE NE SE EX RD TGW SUB EZ #295316 TGW 1 WATER SHARE SP 77-120 TR H-1 FR 166-5090 & 310-4550 |
| Geographic ID: | R13103-184-5100 | Agent Code: | |
| Type: | Real | | |
| Tax Area: | 312 - APPRAISER-Cpvl Schl Dist, outside Cpvl, improved, greater than 1 acre | Land Use Code | 11 |
| Open Space: | N | DFL | N |
| Historic Property: | N | Remodel Property: | N |
| Multi-Family Redevelopment: | N | | |
| Township: | 31 | Section: | 03 |
| Range: | R1 |
Location |
| Address: | 835 BARRETT RD COUPEVILLE, WA 98239 | Mapsco: | |
| Neighborhood: | Cycle 2 | Map ID: | 26 |
| Neighborhood CD: | 2 |
Owner |
| Name: | WILSON, NICHOLLE | Owner ID: | 283617 |
| Mailing Address: | KELVIN KINSER 835 BARRETT RD COUPEVILLE, WA 98239 | % Ownership: | 100.0000000000% |
| | | Exemptions: | |
Taxes and Assessment Details
Values
| (+) Improvement Homesite Value: | + | $0 | |
| (+) Improvement Non-Homesite Value: | + | $145,522 | |
| (+) Land Homesite Value: | + | $0 | |
| (+) Land Non-Homesite Value: | + | $298,600 | |
| (+) Curr Use (HS): | + | $0 | $0 |
| (+) Curr Use (NHS): | + | $0 | $0 |
| | | -------------------------- | |
| (=) Market Value: | = | $444,122 | |
| (–) Productivity Loss: | – | $0 | |
| | | -------------------------- | |
| (=) Subtotal: | = | $444,122 | |
| (+) Senior Appraised Value: | + | $0 | |
| (+) Non-Senior Appraised Value: | + | $444,122 | |
| | | -------------------------- | |
| (=) Total Appraised Value: | = | $444,122 | |
| (–) Senior Exemption Loss: | – | $0 | |
| (–) Exemption Loss: | – | $0 | |
| | | -------------------------- | |
| (=) Taxable Value: | = | $444,122 | |
Taxing Jurisdiction
| Owner: | WILSON, NICHOLLE | | |
| % Ownership: | 100.0000000000% | | |
| Total Value: | $444,122 | | |
| Tax Area: | 312 - APPRAISER-Cpvl Schl Dist, outside Cpvl, improved, greater than 1 acre |
| CF | Conservation Futures | 0.0316035091 | $444,122 | $444,122 | $14.04 | | |
| CEM2 | Cemetery #2 | 0.0095056933 | $444,122 | $444,122 | $4.22 | | |
| FIRE5 | Fire & Rescue Dist #5 C Whidbey GEN | 1.2008080668 | $444,122 | $444,122 | $533.31 | | |
| FIRE5BOND | Fire & Rescue Dist #5 C Whidbey BOND | 0.1400090713 | $444,122 | $444,122 | $62.18 | | |
| HOBOND | Hospital BOND | 0.1910887512 | $444,122 | $444,122 | $84.87 | | |
| HOGEN | Hospital GEN | 0.3902502903 | $444,122 | $444,122 | $173.32 | | |
| CE | County Current Expense | 0.3708482477 | $444,122 | $444,122 | $164.70 | | |
| CR | County Roads | 0.4584763726 | $444,122 | $444,122 | $203.62 | | |
| ISLANDEMS | Hospital GEN (EMS) | 0.5000000000 | $444,122 | $444,122 | $222.06 | | |
| LIB | Library Sno-Isle GEN | 0.3153421757 | $444,122 | $444,122 | $140.05 | | |
| LIBCAP | Library Sno-Isle BOND (Cap Fac Imp Area) | 0.0543427938 | $444,122 | $444,122 | $24.13 | | |
| POCOUP | Port of Coupeville GEN | 0.1093371703 | $444,122 | $444,122 | $48.56 | | |
| POCOUPIDD | Port of Coupeville IDD | 0.3409740022 | $444,122 | $444,122 | $151.43 | | |
| COUPSDTECH | School 204 CP (TECH) | 0.7545480007 | $444,122 | $444,122 | $335.11 | | |
| SCH204MO | School 204 Enrichment | 0.6716186034 | $444,122 | $444,122 | $298.28 | | |
| ST | State School | 1.3035497053 | $444,122 | $444,122 | $578.94 | | |
| ST2 | State School Part 2 | 0.8169543533 | $444,122 | $444,122 | $362.83 | | |
| | Total Tax Rate: | 7.6592568070 | | | | | |
| | | | | Taxes w/Current Exemptions: | $3,401.65 | | |
| | | | | Taxes w/o Exemptions: | $3,401.65 | | |
Improvement / Building
| Improvement #1: | RESIDENTIAL | State Code: | Y | 1004.0 sqft | Value: | $145,522 |
| Bathrooms: | 1 | Bedrooms: | 2 | | Ceiling: | DRYWALL PAINTED | Exterior Wall/Cover: | PLY/HARDBOARD T-111 | | Floor Covering: | CARPET/VINYL 80-20 | Floor Structure: | WOOD W/SUBFLOOR | | Foundation: | CONCRETE | Heating: | BASEBOARD ELECTRIC | | Interior Finish: | DRYWALL PAINT | Plumbing Fixture Cnt: | 6 | | Roof Slope: | 4" IN 12" | Roof Structure/Cover: | CJ ASPHALT |
|
| | Type | Description | Class CD | Sub Class CD | Year Built | Area |
| | BAS | BASE/MAIN FLOOR | 3 | 0 | 1981 | 1004.0 |
| | AGR | ATTACHED GARAGE | 3 | 0 | 1981 | 520.0 |
| | OWP | OPEN WOOD PORCH W/STEPS | 3 | 0 | 1981 | 264.0 |
| | OWC | OPEN WOOD PORCH W/STEPS/ROOF/C | 3 | 0 | 1981 | 36.0 |
Sketch
Property Image
Land
| 1 | HS | HOMESITE | 1.0000 | 43560.00 | 0.00 | 0.00 | 1.00 | $220,000 | $0 |
| 2 | 91 | UNDEVELOPED LAND-METES AND BOUNDS | 1.2000 | 52272.00 | 0.00 | 0.00 | 1.00 | $78,600 | $0 |
Roll Value History
| 2026 | N/A | N/A | N/A | N/A | N/A |
| 2025 | $145,522 | $298,600 | $0 | $444,122 | $444,122 |
| 2024 | $144,031 | $280,000 | $0 | $424,031 | $424,031 |
| 2023 | $146,345 | $270,000 | $0 | $416,345 | $416,345 |
| 2022 | $134,613 | $250,000 | $0 | $384,613 | $384,613 |
| 2021 | $118,880 | $150,000 | $0 | $268,880 | $268,880 |
| 2020 | $116,177 | $150,000 | $0 | $266,177 | $266,177 |
| 2019 | $82,816 | $180,000 | $0 | $262,816 | $262,816 |
| 2018 | $82,426 | $160,000 | $0 | $242,426 | $242,426 |
| 2017 | $83,055 | $130,000 | $0 | $213,055 | $213,055 |
| 2016 | $84,313 | $120,000 | $0 | $204,313 | $204,313 |
| 2015 | $85,571 | $114,750 | $0 | $200,321 | $200,321 |
| 2014 | $86,829 | $114,750 | $0 | $201,579 | $201,579 |
| 2013 | $88,087 | $114,750 | $0 | $202,837 | $202,837 |
| 2012 | $93,838 | $114,750 | $0 | $208,588 | $208,588 |
| 2011 | $95,135 | $135,000 | $0 | $230,135 | $230,135 |
| 2010 | $99,401 | $135,000 | $0 | $234,401 | $234,401 |
| 2009 | $103,698 | $150,000 | $0 | $253,698 | $253,698 |
| 2008 | $103,739 | $124,000 | $0 | $227,739 | $227,739 |
| 2007 | $105,060 | $124,000 | $0 | $229,060 | $229,060 |
Deed and Sales History
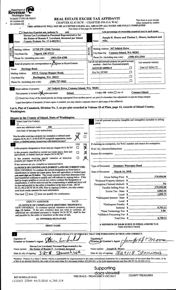
| 1 | 01/16/2018 | WD | Warranty Deed | FORD, MELVIN T | WILSON, NICHOLLE | | | $230,000.00 | 32642 | 4437633 |
| 2 | 09/01/1989 | WD | Warranty Deed | BLOUIN, SCOTT A | FORD, MELVIN T | | | $69,900.00 | 93707 | 89012371 |
| 3 | 06/01/1982 | EXECUTORD | Executor Deed | BAILEY, ROBERT A | BLOUIN, SCOTT A | | | $45,300.00 | 21448 | 397444 |
| 4 | 06/01/1982 | EXECUTORD | Executor Deed | BLOUIN, SCOTT A | BLOUIN, SCOTT A | | | $45,300.00 | 21615 | 398162 |
| 5 | 01/01/1900 | OTHER | Other - Misc. Documents | Unknown | BAILEY, ROBERT A | | | $0.00 | 0 | 0 |
Payout Agreement
| No payout information available.. |