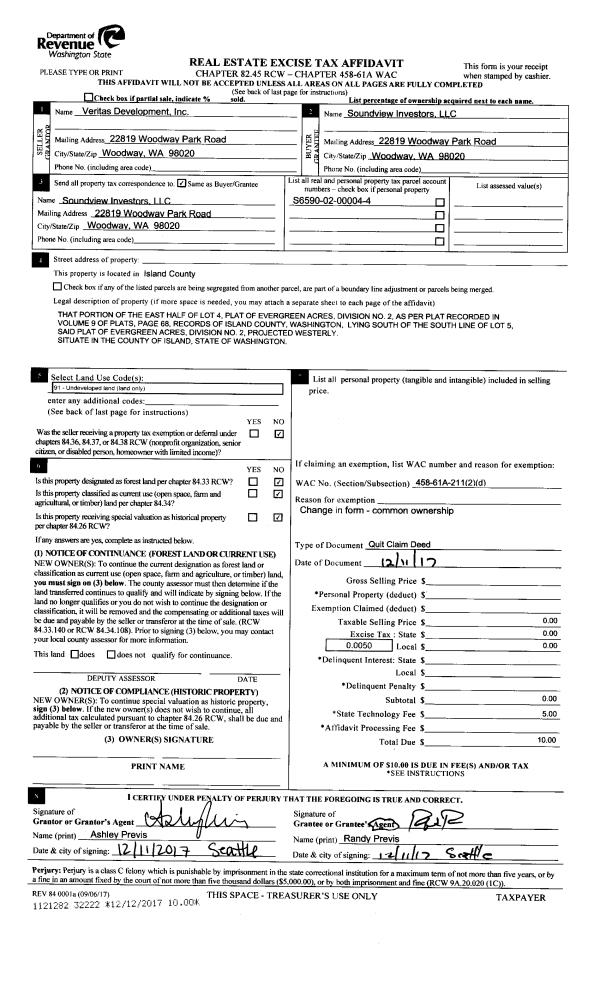
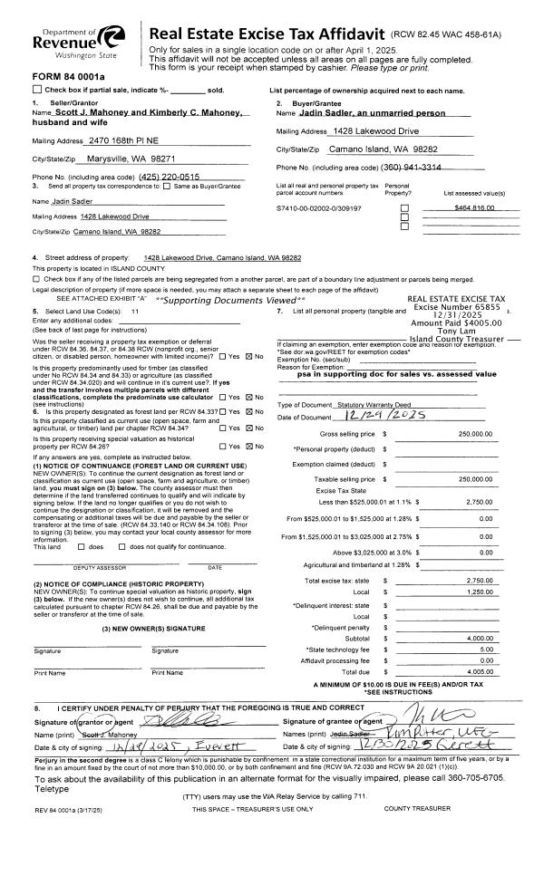
Property
Account |
| Property ID: | 498759 | Abbreviated Legal Description: | 1975 BUDDY 12X40 TPO @18171 VIN# 04940300I FROM K-521153 |
| Geographic ID: | M915000000450 | Agent Code: | |
| Type: | Mobile Home | | |
| Tax Area: | 100 - APPRAISER-OH Schl Dist, in OH | Land Use Code | 11 |
| Open Space: | N | DFL | N |
| Historic Property: | N | Remodel Property: | N |
| Multi-Family Redevelopment: | N | | |
| Township: | | Section: | |
| Range: | |
Location |
| Address: | 820 N OAK HARBOR ST # 24 OAK HARBOR, WA 98277 | Mapsco: | |
| Neighborhood: | Cycle 1 | Map ID: | |
| Neighborhood CD: | 1 |
Owner |
| Name: | SUAREZ, MARGARITO | Owner ID: | 315941 |
| Mailing Address: | 820 N OAK HARBOR ST#24 OAK HARBOR, WA 98277 | % Ownership: | 100.0000000000% |
| | | Exemptions: | |
Taxes and Assessment Details
Values
| (+) Improvement Homesite Value: | + | $0 | |
| (+) Improvement Non-Homesite Value: | + | $4,437 | |
| (+) Land Homesite Value: | + | $0 | |
| (+) Land Non-Homesite Value: | + | $0 | |
| (+) Curr Use (HS): | + | $0 | $0 |
| (+) Curr Use (NHS): | + | $0 | $0 |
| | | -------------------------- | |
| (=) Market Value: | = | $4,437 | |
| (–) Productivity Loss: | – | $0 | |
| | | -------------------------- | |
| (=) Subtotal: | = | $4,437 | |
| (+) Senior Appraised Value: | + | $0 | |
| (+) Non-Senior Appraised Value: | + | $4,437 | |
| | | -------------------------- | |
| (=) Total Appraised Value: | = | $4,437 | |
| (–) Senior Exemption Loss: | – | $0 | |
| (–) Exemption Loss: | – | $0 | |
| | | -------------------------- | |
| (=) Taxable Value: | = | $4,437 | |
Taxing Jurisdiction
| Owner: | SUAREZ, MARGARITO | | |
| % Ownership: | 100.0000000000% | | |
| Total Value: | $4,437 | | |
| Tax Area: | 100 - APPRAISER-OH Schl Dist, in OH |
| CF | Conservation Futures | 0.0316035091 | $4,437 | $4,437 | $0.14 | | |
| CEM1 | Cemetery #1 | 0.0040320932 | $4,437 | $4,437 | $0.02 | | |
| COH | City of Oak Harbor | 2.3001546061 | $4,437 | $4,437 | $10.21 | | |
| OAKBOND | City of Oak Harbor BOND | 0.1926904192 | $4,437 | $4,437 | $0.85 | | |
| HOBOND | Hospital BOND | 0.1910887512 | $4,437 | $4,437 | $0.85 | | |
| HOGEN | Hospital GEN | 0.3902502903 | $4,437 | $4,437 | $1.73 | | |
| CE | County Current Expense | 0.3708482477 | $4,437 | $4,437 | $1.65 | | |
| ISLANDEMS | Hospital GEN (EMS) | 0.5000000000 | $4,437 | $4,437 | $2.22 | | |
| LIB | Library Sno-Isle GEN | 0.3153421757 | $4,437 | $4,437 | $1.40 | | |
| NWHIDPRMT | P & R N Whidbey GEN | 0.2004466701 | $4,437 | $4,437 | $0.89 | | |
| SCH201MO | School 201 Enrichment | 1.8559231640 | $4,437 | $4,437 | $8.23 | | |
| ST | State School | 1.3035497053 | $4,437 | $4,437 | $5.78 | | |
| ST2 | State School Part 2 | 0.8169543533 | $4,437 | $4,437 | $3.62 | | |
| | Total Tax Rate: | 8.4728839852 | | | | | |
| | | | | Taxes w/Current Exemptions: | $37.59 | | |
| | | | | Taxes w/o Exemptions: | $37.59 | | |
Improvement / Building
| Improvement #1: | MANUFACTURED HOME | State Code: | Y | 455.0 sqft | Value: | $4,437 |
| Bathrooms: | 0 | Bedrooms: | 0 | | Ceiling: | PLASTER PAINTED | Cooling: | EVAP NO DUCT | | Exterior Wall/Cover: | VINYL | Floor Covering: | CARPET 100% | | Floor Structure: | SLAB ON GRADE | Foundation: | SLAB | | Heating: | FHA ELECTRIC | Interior Finish: | PLASTER | | Plumbing Fixture Cnt: | 1 | Roof Slope: | FLAT | | Roof Structure/Cover: | CJ ALUMINIUM HEAVY |   |   |
|
| | Type | Description | Class CD | Sub Class CD | Year Built | Area |
| | BAS | BASE/MAIN FLOOR | 2 | 0 | 1975 | 455.0 |
| | OWR | OPEN WOOD PORCH W/STEPS/ROOF | 2 | 0 | 1975 | 25.0 |
Sketch
Property Image
Land
No land segments exist for this property.
Roll Value History
| 2026 | N/A | N/A | N/A | N/A | N/A |
| 2025 | $4,437 | $0 | $0 | $4,437 | $4,437 |
| 2024 | $4,437 | $0 | $0 | $4,437 | $4,437 |
| 2023 | $3,385 | $0 | $0 | $3,385 | $3,385 |
| 2022 | $3,065 | $0 | $0 | $3,065 | $3,065 |
| 2021 | $2,665 | $0 | $0 | $2,665 | $2,665 |
| 2020 | $2,588 | $0 | $0 | $2,588 | $2,588 |
| 2019 | $2,242 | $0 | $0 | $2,242 | $2,242 |
| 2018 | $2,446 | $0 | $0 | $2,446 | $2,446 |
| 2017 | $2,548 | $0 | $0 | $2,548 | $2,548 |
| 2016 | $2,752 | $0 | $0 | $2,752 | $2,752 |
| 2015 | $2,854 | $0 | $0 | $2,854 | $2,854 |
| 2014 | $3,057 | $0 | $0 | $3,057 | $3,057 |
| 2013 | $3,159 | $0 | $0 | $3,159 | $3,159 |
| 2012 | $3,363 | $0 | $0 | $3,363 | $3,363 |
| 2011 | $6,855 | $0 | $0 | $6,855 | $6,855 |
| 2010 | $4,016 | $0 | $0 | $4,016 | $4,016 |
| 2009 | $4,217 | $0 | $0 | $4,217 | $4,217 |
| 2008 | $4,223 | $0 | $0 | $4,223 | $4,223 |
| 2007 | $4,230 | $0 | $0 | $4,230 | $4,230 |
Deed and Sales History
| 1 | 03/27/2025 | MANHOME | Manufactured Home | SANCHEZ, VERONICA DE JESUS | SUAREZ, MARGARITO | | | $5,000.00 | 62943 | |
| 2 | 10/05/2017 | MANHOME | Manufactured Home | LEO RANDHAWA FAMILY, LLC | SANCHEZ, VERONICA DE JESUS | | | $500.00 | 35977 | |
| 3 | 10/03/2017 | MANHOME | Manufactured Home | DAVIS, JONATHAN | LEO RANDHAWA FAMILY, LLC | | | $0.00 | 31376 | |
| 4 | 03/31/2009 | OTHER | Other - Misc. Documents | WILLIAMS, DEAN A | DAVIS, JONATHAN | | | $0.00 | 90718 | 0 |
| 5 | 11/02/2005 | OTHER | Other - Misc. Documents | WILLIAMS, GARY V | WILLIAMS, DEAN A | | | $0.00 | 55591 | 0 |
| 6 | 10/05/2004 | OTHER | Other - Misc. Documents | HARDCASTLE, SCOTT | HOFFELT, JOHN | | | $0.00 | 45799 | 0 |
| 7 | 05/10/2004 | OTHER | Other - Misc. Documents | HOFFELT, JOHN | WILLIAMS, GARY V | | | $4,500.00 | 45800 | 0 |
| 8 | 10/25/2000 | OTHER | Other - Misc. Documents | Unknown | ELLINGSON, BARRY D | | | $5,000.00 | 4059 | 0 |
| 9 | 10/01/1995 | OTHER | Other - Misc. Documents | BENTZ, ANNMARIE | HARDCASTLE, SCOTT | | | $6,000.00 | 53614 | 0 |
| 10 | 04/01/1993 | OTHER | Other - Misc. Documents | ANDREWS, MELISSA | BENTZ, ANNMARIE | | | $2,000.00 | 31304 | 0 |
| 11 | 07/01/1992 | OTHER | Other - Misc. Documents | BOLTER, HOWARD C | ANDREWS, MELISSA | | | $2,500.00 | 2500 | 0 |
| 12 | 02/01/1991 | OTHER | Other - Misc. Documents | CHRISTENSEN, CANDICE E | BOLTER, HOWARD C | | | $1,200.00 | 10356 | 0 |
| 13 | 12/01/1988 | OTHER | Other - Misc. Documents | DOLQUIST, JENNY R | CHRISTENSEN, CANDICE E | | | $3,500.00 | 84325 | 0 |
| 14 | 07/01/1987 | OTHER | Other - Misc. Documents | GILBERT, STEVEN C | DOLQUIST, JENNY R | | | $3,800.00 | 72117 | 0 |
| 15 | 07/01/1984 | OTHER | Other - Misc. Documents | SMITH, GARY R | GILBERT, STEVEN C | | | $6,500.00 | 41820 | 0 |
| 16 | 05/01/1983 | OTHER | Other - Misc. Documents | SCHNIDER, RICHARD | SMITH, GARY R | | | $4,500.00 | 31153 | 0 |
| 17 | 02/01/1980 | OTHER | Other - Misc. Documents | GAUL, MICHAEL R | SCHNIDER, RICHARD | | | $5,256.00 | 710 | 0 |
| 18 | 01/01/1900 | OTHER | Other - Misc. Documents | ELLINGSON, BARRY D | GAUL, MICHAEL R | | | $0.00 | 0 | 0 |
Payout Agreement
| 559 | Defaulted | MONTHLY PAYMENT PLAN | | 7/25/2016 2:17:38 PM | Monthly | 19 | $0 |