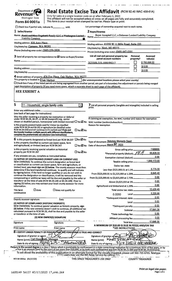
Property
Account |
| Property ID: | 499419 | Abbreviated Legal Description: | E330' NE SE SE EX N330' SP 79-173 TR 3 FR 0834970 |
| Geographic ID: | R13327-083-5110 | Agent Code: | |
| Type: | Real | | |
| Tax Area: | 112 - APPRAISER-OH Schl Dist, outside OH, improved, greater than 1 acre | Land Use Code | 11 |
| Open Space: | N | DFL | N |
| Historic Property: | N | Remodel Property: | N |
| Multi-Family Redevelopment: | N | | |
| Township: | 33 | Section: | 27 |
| Range: | R1 |
Location |
| Address: | 811 RED ROBIN LN OAK HARBOR, WA 98277 | Mapsco: | |
| Neighborhood: | Cycle 6 | Map ID: | 235 |
| Neighborhood CD: | 6 |
Owner |
| Name: | BENNETT, KRISTOPHER S | Owner ID: | 302425 |
| Mailing Address: | RACHEL BENNETT 811 RED ROBIN LN OAK HARBOR, WA 98277 | % Ownership: | 100.0000000000% |
| | | Exemptions: | |
Taxes and Assessment Details
Values
| (+) Improvement Homesite Value: | + | $0 | |
| (+) Improvement Non-Homesite Value: | + | $468,267 | |
| (+) Land Homesite Value: | + | $0 | |
| (+) Land Non-Homesite Value: | + | $250,000 | |
| (+) Curr Use (HS): | + | $0 | $0 |
| (+) Curr Use (NHS): | + | $0 | $0 |
| | | -------------------------- | |
| (=) Market Value: | = | $718,267 | |
| (–) Productivity Loss: | – | $0 | |
| | | -------------------------- | |
| (=) Subtotal: | = | $718,267 | |
| (+) Senior Appraised Value: | + | $0 | |
| (+) Non-Senior Appraised Value: | + | $718,267 | |
| | | -------------------------- | |
| (=) Total Appraised Value: | = | $718,267 | |
| (–) Senior Exemption Loss: | – | $0 | |
| (–) Exemption Loss: | – | $0 | |
| | | -------------------------- | |
| (=) Taxable Value: | = | $718,267 | |
Taxing Jurisdiction
| Owner: | BENNETT, KRISTOPHER S | | |
| % Ownership: | 100.0000000000% | | |
| Total Value: | $718,267 | | |
| Tax Area: | 112 - APPRAISER-OH Schl Dist, outside OH, improved, greater than 1 acre |
| CF | Conservation Futures | 0.0316035091 | $718,267 | $718,267 | $22.70 | | |
| CEM1 | Cemetery #1 | 0.0040320932 | $718,267 | $718,267 | $2.90 | | |
| FIRE2 | Fire & Rescue Dist #2 N Whidbey GEN | 0.5475949600 | $718,267 | $718,267 | $393.32 | | |
| HOBOND | Hospital BOND | 0.1910887512 | $718,267 | $718,267 | $137.25 | | |
| HOGEN | Hospital GEN | 0.3902502903 | $718,267 | $718,267 | $280.30 | | |
| CE | County Current Expense | 0.3708482477 | $718,267 | $718,267 | $266.37 | | |
| CR | County Roads | 0.4584763726 | $718,267 | $718,267 | $329.31 | | |
| ISLANDEMS | Hospital GEN (EMS) | 0.5000000000 | $718,267 | $718,267 | $359.13 | | |
| LIB | Library Sno-Isle GEN | 0.3153421757 | $718,267 | $718,267 | $226.50 | | |
| NWHIDPRMT | P & R N Whidbey GEN | 0.2004466701 | $718,267 | $718,267 | $143.97 | | |
| SCH201MO | School 201 Enrichment | 1.8559231640 | $718,267 | $718,267 | $1,333.05 | | |
| ST | State School | 1.3035497053 | $718,267 | $718,267 | $936.30 | | |
| ST2 | State School Part 2 | 0.8169543533 | $718,267 | $718,267 | $586.79 | | |
| | Total Tax Rate: | 6.9861102925 | | | | | |
| | | | | Taxes w/Current Exemptions: | $5,017.89 | | |
| | | | | Taxes w/o Exemptions: | $5,017.89 | | |
Improvement / Building
| Improvement #1: | RESIDENTIAL | State Code: | Y | 2551.5 sqft | Value: | $468,267 |
| Bathrooms: | 2 | Bedrooms: | 3 | | Ceiling: | DRYWALL PAINTED | Exterior Wall/Cover: | PLY/HARDBOARD T-111 | | Floor Covering: | CERAMIC TILE/CPT 40-60 | Floor Structure: | WOOD W/SUBFLOOR | | Foundation: | CONCRETE | Heating: | FHA GAS | | Interior Finish: | DRYWALL PAINT | Plumbing Fixture Cnt: | 10 | | Roof Slope: | 5" IN 12" | Roof Structure/Cover: | CJ ASPHALT |
|
| | Type | Description | Class CD | Sub Class CD | Year Built | Area |
| | BAS | BASE/MAIN FLOOR | 4 | 0 | 1990 | 2200.0 |
| | OP4 | OPEN PORCH W/CEILING-ROOF | 4 | 0 | 1990 | 48.0 |
| | AGR | ATTACHED GARAGE | 4 | 0 | 1990 | 600.2 |
| | OWP | OPEN WOOD PORCH W/STEPS | 4 | 0 | 1990 | 257.8 |
| | OWC | OPEN WOOD PORCH W/STEPS/ROOF/C | 4 | 0 | 1990 | 47.5 |
| | LOF | LOFT | 4 | 0 | 1990 | 351.5 |
| | ENP | ENCLOSED PORCH | 4 | 0 | 1990 | 504.0 |
| | UTY | STORAGE/UTILITY | 4 | 0 | 1990 | 384.0 |
Sketch
Property Image
Land
| 1 | 18 | AC (02.01-03.00) | 2.5000 | 108900.00 | 0.00 | 0.00 | 1.00 | $250,000 | $0 |
Roll Value History
| 2026 | N/A | N/A | N/A | N/A | N/A |
| 2025 | $468,267 | $250,000 | $0 | $718,267 | $718,267 |
| 2024 | $474,176 | $230,000 | $0 | $704,176 | $704,176 |
| 2023 | $480,087 | $220,000 | $0 | $700,087 | $700,087 |
| 2022 | $401,674 | $210,000 | $0 | $611,674 | $611,674 |
| 2021 | $353,528 | $160,000 | $0 | $513,528 | $513,528 |
| 2020 | $345,307 | $130,000 | $0 | $475,307 | $475,307 |
| 2019 | $262,032 | $180,000 | $0 | $442,032 | $442,032 |
| 2018 | $262,800 | $170,000 | $0 | $432,800 | $432,800 |
| 2017 | $264,336 | $150,000 | $0 | $414,336 | $414,336 |
| 2016 | $224,828 | $120,000 | $0 | $344,828 | $344,828 |
| 2015 | $227,748 | $100,000 | $0 | $327,748 | $327,748 |
| 2014 | $230,668 | $106,250 | $0 | $336,918 | $336,918 |
| 2013 | $233,588 | $106,250 | $0 | $339,838 | $339,838 |
| 2012 | $236,507 | $106,250 | $0 | $342,757 | $342,757 |
| 2011 | $239,427 | $125,000 | $0 | $364,427 | $364,427 |
| 2010 | $239,988 | $125,000 | $0 | $364,988 | $364,988 |
| 2009 | $250,175 | $135,000 | $0 | $385,175 | $385,175 |
| 2008 | $259,141 | $155,000 | $0 | $414,141 | $414,141 |
| 2007 | $262,438 | $110,000 | $0 | $372,438 | $372,438 |
Deed and Sales History
| 1 | 12/13/2021 | WD | Warranty Deed | WEDEKIND, JACOB LEE | BENNETT, KRISTOPHER S | | | $675,000.00 | 51420 | 4536377 |
| 2 | 10/15/2018 | WD | Warranty Deed | GREEN, ADAM B | WEDEKIND, JACOB LEE | | | $440,000.00 | 36337 | 4453596 |
| 3 | 04/01/2009 | WD | Warranty Deed | POWERS, TERRY E | GREEN, ADAM B | | | $350,000.00 | 90754 | 4248149 |
| 4 | 01/10/2003 | WD | Warranty Deed | BAILEY, JACK A | POWERS, TERRY E | | | $255,000.00 | 30181 | 4044394 |
| 5 | 10/01/1986 | PACD | Purchaser's Assignment | THOMPSON, PATRICK L | BAILEY, JACK A | | | $0.00 | 63317 | 86014973 |
| 6 | 05/01/1982 | REC | Real Estate Contract | NYE, STANLEY E | THOMPSON, PATRICK L | | | $22,000.00 | 21034 | 395867 |
| 7 | 04/01/1979 | OTHER | Other - Misc. Documents | Unknown | NYE, STANLEY E | | | $0.00 | 91602 | 350510 |
Payout Agreement
| No payout information available.. |