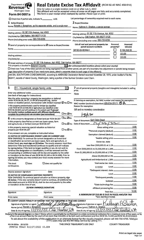
Property
Account |
| Property ID: | 499446 | Abbreviated Legal Description: | E330' OF NW SE SE EX N330' TGW SUB EZ FR 083-4310 (TR 13 SP 79-168 AF#359015) |
| Geographic ID: | R13327-083-4460 | Agent Code: | |
| Type: | Real | | |
| Tax Area: | 112 - APPRAISER-OH Schl Dist, outside OH, improved, greater than 1 acre | Land Use Code | 11 |
| Open Space: | N | DFL | N |
| Historic Property: | N | Remodel Property: | N |
| Multi-Family Redevelopment: | N | | |
| Township: | 33 | Section: | 27 |
| Range: | R1 |
Location |
| Address: | 2869 RIFLE RD OAK HARBOR, WA 98277 | Mapsco: | |
| Neighborhood: | Cycle 6 | Map ID: | 235 |
| Neighborhood CD: | 6 |
Owner |
| Name: | SHOCKLEY JTWROS, JERRY W | Owner ID: | 309797 |
| Mailing Address: | AMY L SHOCKLEY JTWROS PO BOX 688 OAK HARBOR, WA 98277 | % Ownership: | 100.0000000000% |
| | | Exemptions: | |
Taxes and Assessment Details
Values
| (+) Improvement Homesite Value: | + | $0 | |
| (+) Improvement Non-Homesite Value: | + | $202,454 | |
| (+) Land Homesite Value: | + | $0 | |
| (+) Land Non-Homesite Value: | + | $250,000 | |
| (+) Curr Use (HS): | + | $0 | $0 |
| (+) Curr Use (NHS): | + | $0 | $0 |
| | | -------------------------- | |
| (=) Market Value: | = | $452,454 | |
| (–) Productivity Loss: | – | $0 | |
| | | -------------------------- | |
| (=) Subtotal: | = | $452,454 | |
| (+) Senior Appraised Value: | + | $0 | |
| (+) Non-Senior Appraised Value: | + | $452,454 | |
| | | -------------------------- | |
| (=) Total Appraised Value: | = | $452,454 | |
| (–) Senior Exemption Loss: | – | $0 | |
| (–) Exemption Loss: | – | $0 | |
| | | -------------------------- | |
| (=) Taxable Value: | = | $452,454 | |
Taxing Jurisdiction
| Owner: | SHOCKLEY JTWROS, JERRY W | | |
| % Ownership: | 100.0000000000% | | |
| Total Value: | $452,454 | | |
| Tax Area: | 112 - APPRAISER-OH Schl Dist, outside OH, improved, greater than 1 acre |
| CF | Conservation Futures | 0.0316035091 | $452,454 | $452,454 | $14.30 | | |
| CEM1 | Cemetery #1 | 0.0040320932 | $452,454 | $452,454 | $1.82 | | |
| FIRE2 | Fire & Rescue Dist #2 N Whidbey GEN | 0.5475949600 | $452,454 | $452,454 | $247.76 | | |
| HOBOND | Hospital BOND | 0.1910887512 | $452,454 | $452,454 | $86.46 | | |
| HOGEN | Hospital GEN | 0.3902502903 | $452,454 | $452,454 | $176.57 | | |
| CE | County Current Expense | 0.3708482477 | $452,454 | $452,454 | $167.79 | | |
| CR | County Roads | 0.4584763726 | $452,454 | $452,454 | $207.44 | | |
| ISLANDEMS | Hospital GEN (EMS) | 0.5000000000 | $452,454 | $452,454 | $226.23 | | |
| LIB | Library Sno-Isle GEN | 0.3153421757 | $452,454 | $452,454 | $142.68 | | |
| NWHIDPRMT | P & R N Whidbey GEN | 0.2004466701 | $452,454 | $452,454 | $90.69 | | |
| SCH201MO | School 201 Enrichment | 1.8559231640 | $452,454 | $452,454 | $839.72 | | |
| ST | State School | 1.3035497053 | $452,454 | $452,454 | $589.80 | | |
| ST2 | State School Part 2 | 0.8169543533 | $452,454 | $452,454 | $369.63 | | |
| | Total Tax Rate: | 6.9861102925 | | | | | |
| | | | | Taxes w/Current Exemptions: | $3,160.89 | | |
| | | | | Taxes w/o Exemptions: | $3,160.89 | | |
Improvement / Building
| Improvement #1: | RESIDENTIAL | State Code: | Y | 1260.0 sqft | Value: | $202,454 |
| Bathrooms: | 2 | Bedrooms: | 2 | | Ceiling: | DRY WALL SPRAYED | Exterior Wall/Cover: | PLY/HARDBOARD T-111 | | Floor Covering: | HARDWOOD/CARP 20-80 | Floor Structure: | WOOD W/SUBFLOOR | | Foundation: | CONCRETE | Heating: | HEAT PUMP | | Interior Finish: | DRYWALL PAINT | Plumbing Fixture Cnt: | 9 | | Roof Slope: | 4" IN 12" | Roof Structure/Cover: | CJ ASPHALT |
|
| | Type | Description | Class CD | Sub Class CD | Year Built | Area |
| | BAS | BASE/MAIN FLOOR | 3 | 0 | 1980 | 1260.0 |
| | AGR | ATTACHED GARAGE | 3 | 0 | 1980 | 420.0 |
| | OWC | OPEN WOOD PORCH W/STEPS/ROOF/C | 3 | 0 | 1980 | 100.0 |
Sketch
Property Image
Land
| 1 | 18 | AC (02.01-03.00) | 2.5000 | 108900.00 | 0.00 | 0.00 | 1.00 | $250,000 | $0 |
Roll Value History
| 2026 | N/A | N/A | N/A | N/A | N/A |
| 2025 | $202,454 | $250,000 | $0 | $452,454 | $452,454 |
| 2024 | $201,830 | $230,000 | $0 | $431,830 | $431,830 |
| 2023 | $204,623 | $220,000 | $0 | $424,623 | $424,623 |
| 2022 | $182,762 | $210,000 | $0 | $392,762 | $392,762 |
| 2021 | $161,120 | $160,000 | $0 | $321,120 | $321,120 |
| 2020 | $156,990 | $130,000 | $0 | $286,990 | $286,990 |
| 2019 | $110,982 | $180,000 | $0 | $290,982 | $290,982 |
| 2018 | $111,351 | $170,000 | $0 | $281,351 | $281,351 |
| 2017 | $112,087 | $150,000 | $0 | $262,087 | $262,087 |
| 2016 | $102,092 | $120,000 | $0 | $222,092 | $222,092 |
| 2015 | $103,593 | $100,000 | $0 | $203,593 | $203,593 |
| 2014 | $105,095 | $106,250 | $0 | $211,345 | $211,345 |
| 2013 | $106,596 | $106,250 | $0 | $212,846 | $212,846 |
| 2012 | $108,098 | $106,250 | $0 | $214,348 | $214,348 |
| 2011 | $109,599 | $125,000 | $0 | $234,599 | $234,599 |
| 2010 | $111,869 | $125,000 | $0 | $236,869 | $236,869 |
| 2009 | $117,006 | $135,000 | $0 | $252,006 | $252,006 |
| 2008 | $123,673 | $155,000 | $0 | $278,673 | $278,673 |
| 2007 | $125,817 | $110,000 | $0 | $235,817 | $235,817 |
Deed and Sales History
| 1 | 06/30/2023 | QCD | Quit Claim Deed | SHOCKLEY, JERRY W | SHOCKLEY JTWROS, JERRY W | | | $0.00 | 57747 | 4563933 |
| 2 | 07/12/2022 | WD | Warranty Deed | CLARK, JAMES G | SHOCKLEY, JERRY W | | | $360,000.00 | 53848 | 4548495 |
| 3 | 03/18/2003 | WD | Warranty Deed | AVALLONE, MICHAEL A | CLARK, JAMES G | | | $146,000.00 | 31152 | 4051936 |
| 4 | 01/01/1995 | WD | Warranty Deed | MATTSON, RICK E | AVALLONE, MICHAEL A | | | $129,000.00 | 50369 | 95001684 |
| 5 | 11/01/1983 | WD | Warranty Deed | HAMNER, DANIEL A | MATTSON, RICK E | | | $71,500.00 | 33529 | 418236 |
| 6 | 07/01/1980 | WD | Warranty Deed | BODIN, LEROY | HAMNER, DANIEL A | | | $17,500.00 | 2545 | 371787 |
| 7 | 04/01/1979 | OTHER | Other - Misc. Documents | Unknown | BODIN, LEROY | | | $0.00 | 91598 | 350506 |
Payout Agreement
| No payout information available.. |