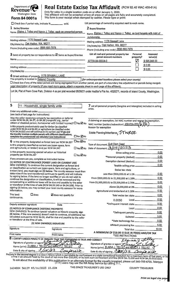
Property
Account |
| Property ID: | 499543 | Abbreviated Legal Description: | N330' OF SE SE SE EX E330' TGW SUB EZ SP 79-172 TR 5 (TR 5 UNREC SUBURBAN HILLS) FR 0504970 A#3147 |
| Geographic ID: | R13327-050-4800 | Agent Code: | |
| Type: | Real | | |
| Tax Area: | 112 - APPRAISER-OH Schl Dist, outside OH, improved, greater than 1 acre | Land Use Code | 11 |
| Open Space: | N | DFL | N |
| Historic Property: | N | Remodel Property: | N |
| Multi-Family Redevelopment: | N | | |
| Township: | 33 | Section: | 27 |
| Range: | R1 |
Location |
| Address: | 840 QUAIL LN OAK HARBOR, WA 98277 | Mapsco: | |
| Neighborhood: | Cycle 6 | Map ID: | 235 |
| Neighborhood CD: | 6 |
Owner |
| Name: | MAHONEY, MARY K | Owner ID: | 305099 |
| Mailing Address: | 840 QUAIL LANE OAK HARBOR, WA 98277 | % Ownership: | 100.0000000000% |
| | | Exemptions: | |
Taxes and Assessment Details
Values
| (+) Improvement Homesite Value: | + | $0 | |
| (+) Improvement Non-Homesite Value: | + | $366,540 | |
| (+) Land Homesite Value: | + | $0 | |
| (+) Land Non-Homesite Value: | + | $250,000 | |
| (+) Curr Use (HS): | + | $0 | $0 |
| (+) Curr Use (NHS): | + | $0 | $0 |
| | | -------------------------- | |
| (=) Market Value: | = | $616,540 | |
| (–) Productivity Loss: | – | $0 | |
| | | -------------------------- | |
| (=) Subtotal: | = | $616,540 | |
| (+) Senior Appraised Value: | + | $0 | |
| (+) Non-Senior Appraised Value: | + | $616,540 | |
| | | -------------------------- | |
| (=) Total Appraised Value: | = | $616,540 | |
| (–) Senior Exemption Loss: | – | $0 | |
| (–) Exemption Loss: | – | $0 | |
| | | -------------------------- | |
| (=) Taxable Value: | = | $616,540 | |
Taxing Jurisdiction
| Owner: | MAHONEY, MARY K | | |
| % Ownership: | 100.0000000000% | | |
| Total Value: | $616,540 | | |
| Tax Area: | 112 - APPRAISER-OH Schl Dist, outside OH, improved, greater than 1 acre |
| CF | Conservation Futures | 0.0316035091 | $616,540 | $616,540 | $19.48 | | |
| CEM1 | Cemetery #1 | 0.0040320932 | $616,540 | $616,540 | $2.49 | | |
| FIRE2 | Fire & Rescue Dist #2 N Whidbey GEN | 0.5475949600 | $616,540 | $616,540 | $337.61 | | |
| HOBOND | Hospital BOND | 0.1910887512 | $616,540 | $616,540 | $117.81 | | |
| HOGEN | Hospital GEN | 0.3902502903 | $616,540 | $616,540 | $240.60 | | |
| CE | County Current Expense | 0.3708482477 | $616,540 | $616,540 | $228.64 | | |
| CR | County Roads | 0.4584763726 | $616,540 | $616,540 | $282.67 | | |
| ISLANDEMS | Hospital GEN (EMS) | 0.5000000000 | $616,540 | $616,540 | $308.27 | | |
| LIB | Library Sno-Isle GEN | 0.3153421757 | $616,540 | $616,540 | $194.42 | | |
| NWHIDPRMT | P & R N Whidbey GEN | 0.2004466701 | $616,540 | $616,540 | $123.58 | | |
| SCH201MO | School 201 Enrichment | 1.8559231640 | $616,540 | $616,540 | $1,144.25 | | |
| ST | State School | 1.3035497053 | $616,540 | $616,540 | $803.69 | | |
| ST2 | State School Part 2 | 0.8169543533 | $616,540 | $616,540 | $503.69 | | |
| | Total Tax Rate: | 6.9861102925 | | | | | |
| | | | | Taxes w/Current Exemptions: | $4,307.20 | | |
| | | | | Taxes w/o Exemptions: | $4,307.20 | | |
Improvement / Building
| Improvement #1: | RESIDENTIAL | State Code: | Y | 1470.0 sqft | Value: | $366,540 |
| Bathrooms: | 1.75 | Bedrooms: | 2 | | Ceiling: | DRY WALL SPRAYED | Exterior Wall/Cover: | WOOD SIDING | | Floor Covering: | HARDWOOD/CARP 80-20 | Floor Structure: | WOOD W/SUBFLOOR | | Foundation: | CONCRETE | Heating: | FHA GAS | | Interior Finish: | DRYWALL PAINT | Plumbing Fixture Cnt: | 9 | | Roof Slope: | 4" IN 12" | Roof Structure/Cover: | CJ ALUMINIUM HEAVY |
|
| | Type | Description | Class CD | Sub Class CD | Year Built | Area |
| | BAS | BASE/MAIN FLOOR | 3 | 0 | 1980 | 1470.0 |
| | OP4 | OPEN PORCH W/CEILING-ROOF | 3 | 0 | 1980 | 264.0 |
| | AGR | ATTACHED GARAGE | 3 | 0 | 1980 | 480.0 |
| | UTY | STORAGE/UTILITY | 3 | 0 | 1980 | 72.0 |
| | DGR | DETACHED GARAGE | 3 | 0 | 1980 | 1008.0 |
Sketch
Property Image
Land
| 1 | 18 | AC (02.01-03.00) | 2.5000 | 108900.00 | 0.00 | 0.00 | 1.00 | $250,000 | $0 |
Roll Value History
| 2026 | N/A | N/A | N/A | N/A | N/A |
| 2025 | $366,540 | $250,000 | $0 | $616,540 | $616,540 |
| 2024 | $371,052 | $230,000 | $0 | $601,052 | $601,052 |
| 2023 | $375,562 | $220,000 | $0 | $595,562 | $595,562 |
| 2022 | $311,486 | $210,000 | $0 | $521,486 | $521,486 |
| 2021 | $274,402 | $160,000 | $0 | $434,402 | $434,402 |
| 2020 | $267,783 | $130,000 | $0 | $397,783 | $397,783 |
| 2019 | $195,566 | $180,000 | $0 | $375,566 | $375,566 |
| 2018 | $196,184 | $170,000 | $0 | $366,184 | $366,184 |
| 2017 | $197,418 | $120,000 | $0 | $317,418 | $317,418 |
| 2016 | $157,456 | $120,000 | $0 | $277,456 | $277,456 |
| 2015 | $159,332 | $106,250 | $0 | $265,582 | $265,582 |
| 2014 | $161,205 | $106,250 | $0 | $267,455 | $267,455 |
| 2013 | $163,080 | $106,250 | $0 | $269,330 | $269,330 |
| 2012 | $164,955 | $106,250 | $0 | $271,205 | $271,205 |
| 2011 | $166,829 | $125,000 | $0 | $291,829 | $291,829 |
| 2010 | $183,353 | $125,000 | $0 | $308,353 | $308,353 |
| 2009 | $191,421 | $135,000 | $0 | $326,421 | $326,421 |
| 2008 | $198,476 | $155,000 | $0 | $353,476 | $353,476 |
| 2007 | $201,773 | $110,000 | $0 | $311,773 | $311,773 |
Deed and Sales History
| 1 | 06/22/2022 | QCD | Quit Claim Deed | MAHONEY, LAWRENCE B | MAHONEY, MARY K | | | $0.00 | 53866 | 4548577 |
| 2 | 03/01/1988 | WD | Warranty Deed | VAN, WINGERDEN, H | MAHONEY, LAWRENCE B | | | $76,800.00 | 80744 | 88002976 |
| 3 | 02/01/1984 | WD | Warranty Deed | LOVE, H M | VAN, WINGERDEN, H | | | $85,000.00 | 40423 | 421143 |
| 4 | 09/01/1980 | WD | Warranty Deed | VANDERSTOEP, EDWARD | LOVE, H M | | | $71,658.00 | 3145 | 373995 |
| 5 | 04/01/1979 | OTHER | Other - Misc. Documents | Unknown | VANDERSTOEP, EDWARD | | | $0.00 | 91603 | 350511 |
Payout Agreement
| No payout information available.. |