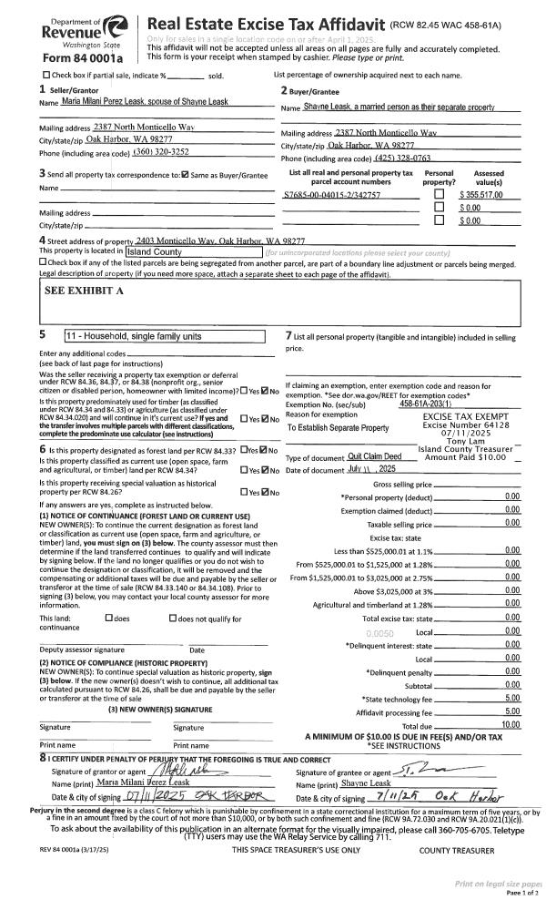
Property
Account |
| Property ID: | 499856 | Abbreviated Legal Description: | LEDGEWOOD BEACH LOTS 7 & 8 BLK 3 FR 03007-0 & 03008-0 DRAINFIELD EZ AF#341632 |
| Geographic ID: | S7355-00-03007-1 | Agent Code: | |
| Type: | Real | | |
| Tax Area: | 370 - APPRAISER-Cpvl Schl Dist, Special Dist, improved & less than 1 acre | Land Use Code | 11 |
| Open Space: | N | DFL | N |
| Historic Property: | N | Remodel Property: | N |
| Multi-Family Redevelopment: | N | | |
| Township: | | Section: | |
| Range: | |
Location |
| Address: | 1869 FIRCREST AVE COUPEVILLE, WA 98239 | Mapsco: | |
| Neighborhood: | Cycle 2 | Map ID: | 520 |
| Neighborhood CD: | 2 |
Owner |
| Name: | BRADKIN, WILLIAM E / CHERYL G | Owner ID: | 54738 |
| Mailing Address: | 1869 FIRCREST AVE COUPEVILLE, WA 98239-9646 | % Ownership: | 100.0000000000% |
| | | Exemptions: | |
Taxes and Assessment Details
Values
| (+) Improvement Homesite Value: | + | $0 | |
| (+) Improvement Non-Homesite Value: | + | $279,435 | |
| (+) Land Homesite Value: | + | $0 | |
| (+) Land Non-Homesite Value: | + | $280,000 | |
| (+) Curr Use (HS): | + | $0 | $0 |
| (+) Curr Use (NHS): | + | $0 | $0 |
| | | -------------------------- | |
| (=) Market Value: | = | $559,435 | |
| (–) Productivity Loss: | – | $0 | |
| | | -------------------------- | |
| (=) Subtotal: | = | $559,435 | |
| (+) Senior Appraised Value: | + | $0 | |
| (+) Non-Senior Appraised Value: | + | $559,435 | |
| | | -------------------------- | |
| (=) Total Appraised Value: | = | $559,435 | |
| (–) Senior Exemption Loss: | – | $0 | |
| (–) Exemption Loss: | – | $0 | |
| | | -------------------------- | |
| (=) Taxable Value: | = | $559,435 | |
Taxing Jurisdiction
| Owner: | BRADKIN, WILLIAM E / CHERYL G | | |
| % Ownership: | 100.0000000000% | | |
| Total Value: | $559,435 | | |
| Tax Area: | 370 - APPRAISER-Cpvl Schl Dist, Special Dist, improved & less than 1 acre |
| CF | Conservation Futures | 0.0316035091 | $559,435 | $559,435 | $17.68 | | |
| CEM2 | Cemetery #2 | 0.0095056933 | $559,435 | $559,435 | $5.32 | | |
| FIRE5 | Fire & Rescue Dist #5 C Whidbey GEN | 1.2008080668 | $559,435 | $559,435 | $671.77 | | |
| FIRE5BOND | Fire & Rescue Dist #5 C Whidbey BOND | 0.1400090713 | $559,435 | $559,435 | $78.33 | | |
| HOBOND | Hospital BOND | 0.1910887512 | $559,435 | $559,435 | $106.90 | | |
| HOGEN | Hospital GEN | 0.3902502903 | $559,435 | $559,435 | $218.32 | | |
| CE | County Current Expense | 0.3708482477 | $559,435 | $559,435 | $207.47 | | |
| CR | County Roads | 0.4584763726 | $559,435 | $559,435 | $256.49 | | |
| ISLANDEMS | Hospital GEN (EMS) | 0.5000000000 | $559,435 | $559,435 | $279.72 | | |
| LIB | Library Sno-Isle GEN | 0.3153421757 | $559,435 | $559,435 | $176.41 | | |
| LIBCAP | Library Sno-Isle BOND (Cap Fac Imp Area) | 0.0543427938 | $559,435 | $559,435 | $30.40 | | |
| POCOUP | Port of Coupeville GEN | 0.1093371703 | $559,435 | $559,435 | $61.17 | | |
| POCOUPIDD | Port of Coupeville IDD | 0.3409740022 | $559,435 | $559,435 | $190.75 | | |
| COUPSDTECH | School 204 CP (TECH) | 0.7545480007 | $559,435 | $559,435 | $422.12 | | |
| SCH204MO | School 204 Enrichment | 0.6716186034 | $559,435 | $559,435 | $375.73 | | |
| ST | State School | 1.3035497053 | $559,435 | $559,435 | $729.25 | | |
| ST2 | State School Part 2 | 0.8169543533 | $559,435 | $559,435 | $457.03 | | |
| | Total Tax Rate: | 7.6592568070 | | | | | |
| | | | | Taxes w/Current Exemptions: | $4,284.86 | | |
| | | | | Taxes w/o Exemptions: | $4,284.86 | | |
Improvement / Building
| Improvement #1: | RESIDENTIAL | State Code: | Y | 1878.5 sqft | Value: | $279,435 |
| Bathrooms: | 2 | Bedrooms: | 3 | | Ceiling: | DRYWALL PAINTED | Exterior Wall/Cover: | WOOD SIDING | | Floor Covering: | CARPET/VINYL 80-20 | Floor Structure: | WOOD W/SUBFLOOR | | Foundation: | CONCRETE | Heating: | BASEBOARD ELECTRIC | | Interior Finish: | DRYWALL PAINT | Plumbing Fixture Cnt: | 9 | | Roof Slope: | 5" IN 12" | Roof Structure/Cover: | CJ ASPHALT |
|
| | Type | Description | Class CD | Sub Class CD | Year Built | Area |
| | BAS | BASE/MAIN FLOOR | 3 | 0 | 1979 | 1878.5 |
| | AGR | ATTACHED GARAGE | 3 | 0 | 1979 | 550.0 |
| | OWP | OPEN WOOD PORCH W/STEPS | 3 | 0 | 1979 | 210.5 |
| | OWP | OPEN WOOD PORCH W/STEPS | 3 | 0 | 1979 | 456.0 |
| | OWR | OPEN WOOD PORCH W/STEPS/ROOF | 3 | 0 | 1979 | 20.0 |
Sketch
Property Image
Land
| 1 | 16 | AC (00.51-01.00) | 0.6500 | 28314.00 | 0.00 | 0.00 | 1.00 | $280,000 | $0 |
Roll Value History
| 2026 | N/A | N/A | N/A | N/A | N/A |
| 2025 | $279,435 | $280,000 | $0 | $559,435 | $559,435 |
| 2024 | $281,740 | $250,000 | $0 | $531,740 | $531,740 |
| 2023 | $285,534 | $230,000 | $0 | $515,534 | $515,534 |
| 2022 | $261,994 | $220,000 | $0 | $481,994 | $481,994 |
| 2021 | $230,817 | $130,000 | $0 | $360,817 | $360,817 |
| 2020 | $225,440 | $110,000 | $0 | $335,440 | $335,440 |
| 2019 | $170,152 | $180,000 | $0 | $350,152 | $350,152 |
| 2018 | $168,889 | $160,000 | $0 | $328,889 | $328,889 |
| 2017 | $169,963 | $160,000 | $0 | $329,963 | $329,963 |
| 2016 | $172,170 | $150,000 | $0 | $322,170 | $322,170 |
| 2015 | $174,377 | $150,000 | $0 | $324,377 | $324,377 |
| 2014 | $176,585 | $150,000 | $0 | $326,585 | $326,585 |
| 2013 | $178,793 | $150,000 | $0 | $328,793 | $328,793 |
| 2012 | $177,993 | $170,000 | $0 | $347,993 | $347,993 |
| 2011 | $180,305 | $200,000 | $0 | $380,305 | $380,305 |
| 2010 | $187,864 | $200,000 | $0 | $387,864 | $387,864 |
| 2009 | $195,904 | $200,000 | $0 | $395,904 | $395,904 |
| 2008 | $198,229 | $200,000 | $0 | $398,229 | $398,229 |
| 2007 | $200,555 | $200,000 | $0 | $400,555 | $400,555 |
Deed and Sales History
| 1 | 04/01/1993 | WD | Warranty Deed | DUBPERNELL, DANIEL | BRADKIN, WILLIAM E | | | $220,000.00 | 31168 | 93006047 |
| 2 | 04/01/1988 | WD | Warranty Deed | BARBER, DONALD C | DUBPERNELL, DANIEL | | | $119,500.00 | 81335 | 88005024 |
| 3 | 10/01/1978 | OTHER | Other - Misc. Documents | Unknown | BARBER, DONALD C | | | $28,013.00 | 85430 | 342463 |
Payout Agreement
| No payout information available.. |