Property
Account |
| Property ID: | 499981 | Abbreviated Legal Description: | S250' OF NE SW NW EX E40' FR 3641030 & 3421210 TGW EZ |
| Geographic ID: | R23203-344-1030 | Agent Code: | |
| Type: | Real | | |
| Tax Area: | 112 - APPRAISER-OH Schl Dist, outside OH, improved, greater than 1 acre | Land Use Code | 11 |
| Open Space: | N | DFL | N |
| Historic Property: | N | Remodel Property: | N |
| Multi-Family Redevelopment: | N | | |
| Township: | 32 | Section: | 03 |
| Range: | R2 |
Location |
| Address: | 2259 HAPPY VALLEY RD OAK HARBOR, WA 98277 | Mapsco: | |
| Neighborhood: | Cycle 6 | Map ID: | 542 |
| Neighborhood CD: | 6 |
Owner |
| Name: | MALONEY, PARKER | Owner ID: | 315116 |
| Mailing Address: | WHITNEY MALONEY 2259 HAPPY VALLEY RD OAK HARBOR, WA 98277 | % Ownership: | 100.0000000000% |
| | | Exemptions: | |
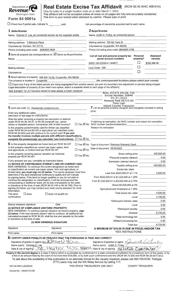
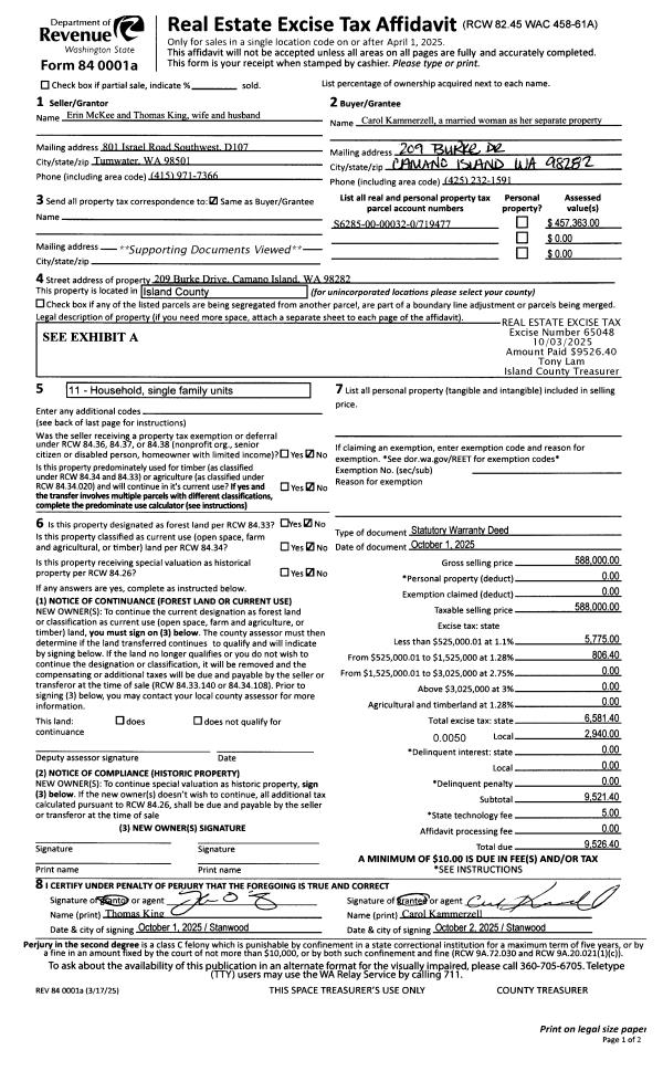
Taxes and Assessment Details
Values
| (+) Improvement Homesite Value: | + | $0 | |
| (+) Improvement Non-Homesite Value: | + | $522,808 | |
| (+) Land Homesite Value: | + | $0 | |
| (+) Land Non-Homesite Value: | + | $300,000 | |
| (+) Curr Use (HS): | + | $0 | $0 |
| (+) Curr Use (NHS): | + | $0 | $0 |
| | | -------------------------- | |
| (=) Market Value: | = | $822,808 | |
| (–) Productivity Loss: | – | $0 | |
| | | -------------------------- | |
| (=) Subtotal: | = | $822,808 | |
| (+) Senior Appraised Value: | + | $0 | |
| (+) Non-Senior Appraised Value: | + | $822,808 | |
| | | -------------------------- | |
| (=) Total Appraised Value: | = | $822,808 | |
| (–) Senior Exemption Loss: | – | $0 | |
| (–) Exemption Loss: | – | $0 | |
| | | -------------------------- | |
| (=) Taxable Value: | = | $822,808 | |
Taxing Jurisdiction
| Owner: | MALONEY, PARKER | | |
| % Ownership: | 100.0000000000% | | |
| Total Value: | $822,808 | | |
| Tax Area: | 112 - APPRAISER-OH Schl Dist, outside OH, improved, greater than 1 acre |
| CF | Conservation Futures | 0.0316035091 | $822,808 | $822,808 | $26.00 | | |
| CEM1 | Cemetery #1 | 0.0040320932 | $822,808 | $822,808 | $3.32 | | |
| FIRE2 | Fire & Rescue Dist #2 N Whidbey GEN | 0.5475949600 | $822,808 | $822,808 | $450.57 | | |
| HOBOND | Hospital BOND | 0.1910887512 | $822,808 | $822,808 | $157.23 | | |
| HOGEN | Hospital GEN | 0.3902502903 | $822,808 | $822,808 | $321.10 | | |
| CE | County Current Expense | 0.3708482477 | $822,808 | $822,808 | $305.14 | | |
| CR | County Roads | 0.4584763726 | $822,808 | $822,808 | $377.24 | | |
| ISLANDEMS | Hospital GEN (EMS) | 0.5000000000 | $822,808 | $822,808 | $411.40 | | |
| LIB | Library Sno-Isle GEN | 0.3153421757 | $822,808 | $822,808 | $259.47 | | |
| NWHIDPRMT | P & R N Whidbey GEN | 0.2004466701 | $822,808 | $822,808 | $164.93 | | |
| SCH201MO | School 201 Enrichment | 1.8559231640 | $822,808 | $822,808 | $1,527.07 | | |
| ST | State School | 1.3035497053 | $822,808 | $822,808 | $1,072.57 | | |
| ST2 | State School Part 2 | 0.8169543533 | $822,808 | $822,808 | $672.20 | | |
| | Total Tax Rate: | 6.9861102925 | | | | | |
| | | | | Taxes w/Current Exemptions: | $5,748.24 | | |
| | | | | Taxes w/o Exemptions: | $5,748.24 | | |
Improvement / Building
| Improvement #1: | RESIDENTIAL | State Code: | Y | 4632.0 sqft | Value: | $522,808 |
| Bathrooms: | 3 | Bedrooms: | 3 | | Ceiling: | BEAM PAINTED | Cooling: | HEAT PUMP/CONV/V | | Exterior Wall/Cover: | PLY/HARDBOARD T-111 | Floor Covering: | CARPET/VINYL 60-40 | | Floor Structure: | WOOD W/SUBFLOOR | Foundation: | CONCRETE | | Interior Finish: | DRYWALL PAINT | Plumbing Fixture Cnt: | 15 | | Roof Slope: | 4" IN 12" | Roof Structure/Cover: | BEAM ASPHALT |
|
| | Type | Description | Class CD | Sub Class CD | Year Built | Area |
| | BAS | BASE/MAIN FLOOR | 3 | 0 | 1986 | 2315.2 |
| | OP3 | OPEN PORCH W/ROOF | 3 | 0 | 1986 | 85.0 |
| | OP2 | OPEN PORCH W/STEPS | 3 | 0 | 1986 | 58.3 |
| | OWP | OPEN WOOD PORCH W/STEPS | 3 | 0 | 1986 | 39.2 |
| | DWN | DOWNSTAIRS LIVING AREA | 3 | 0 | 1986 | 2316.8 |
| | oPOL | POLE BARN | 3 | 0 | 1986 | 1120.0 |
| | oUTI | UTILITY | 3 | 0 | 1986 | 1092.0 |
| | oCAR | CARPORT | 3 | 0 | 1986 | 624.0 |
Sketch
| No sketches available for this property. |
Property Image
Land
| 1 | 32 | AC (03.01-09.99) | 3.5600 | 0.00 | 0.00 | 0.00 | 1.00 | $300,000 | $0 |
Roll Value History
| 2026 | N/A | N/A | N/A | N/A | N/A |
| 2025 | $522,808 | $300,000 | $0 | $822,808 | $822,808 |
| 2024 | $448,925 | $280,000 | $0 | $728,925 | $728,925 |
| 2023 | $454,760 | $270,000 | $0 | $724,760 | $724,760 |
| 2022 | $401,493 | $240,000 | $0 | $641,493 | $641,493 |
| 2021 | $354,211 | $160,000 | $0 | $514,211 | $514,211 |
| 2020 | $347,122 | $140,000 | $0 | $487,122 | $487,122 |
| 2019 | $303,687 | $200,000 | $0 | $503,687 | $503,687 |
| 2018 | $304,633 | $170,000 | $0 | $474,633 | $474,633 |
| 2017 | $304,913 | $150,000 | $0 | $454,913 | $454,913 |
| 2016 | $321,666 | $140,000 | $0 | $461,666 | $461,666 |
| 2015 | $325,574 | $120,000 | $0 | $445,574 | $445,574 |
| 2014 | $291,151 | $100,000 | $0 | $391,151 | $391,151 |
| 2013 | $295,102 | $70,488 | $0 | $365,590 | $365,590 |
| 2012 | $299,053 | $70,488 | $0 | $369,541 | $369,541 |
| 2011 | $303,004 | $78,320 | $0 | $381,324 | $381,324 |
| 2010 | $313,314 | $78,320 | $0 | $391,634 | $391,634 |
| 2009 | $326,488 | $103,240 | $0 | $429,728 | $429,728 |
| 2008 | $338,536 | $103,240 | $0 | $441,776 | $441,776 |
| 2007 | $342,552 | $107,654 | $0 | $450,206 | $450,206 |
Deed and Sales History
| 1 | 01/07/2025 | WD | Warranty Deed | TAYLOR, SCOTT A | MALONEY, PARKER | | | $795,000.00 | 62305 | 4581235 |
| 2 | 09/11/2014 | WD | Warranty Deed | LANG, PATRICK J | TAYLOR, SCOTT A | | | $425,000.00 | 16872 | 4365782 |
| 3 | 11/01/1987 | EZ | Easement | LANG, PATRICK J | LANG, PATRICK J | | | $0.00 | 62437 | 86000935 |
| 4 | 01/01/1900 | OTHER | Other - Misc. Documents | Unknown | LANG, PATRICK J | | | $0.00 | 1 | 0 |
Payout Agreement
| No payout information available.. |