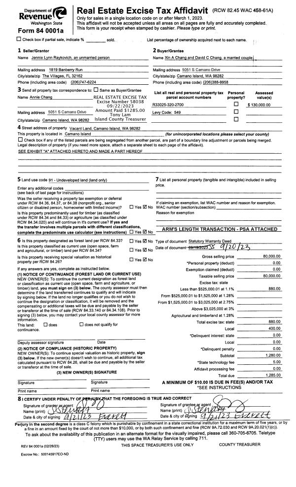
Property
Account |
| Property ID: | 500229 | Abbreviated Legal Description: | NORTHGATE TERRACE LOT 13 EX SELY 5.5' & SELY 5.5' OF LOT 14 BLK 1 FR 01012-0 01013-0 |
| Geographic ID: | S7575-00-01013-1 | Agent Code: | |
| Type: | Real | | |
| Tax Area: | 110 - APPRAISER-OH Schl Dist, outside OH, improved & 1 acre or less | Land Use Code | 11 |
| Open Space: | N | DFL | N |
| Historic Property: | N | Remodel Property: | N |
| Multi-Family Redevelopment: | N | | |
| Township: | | Section: | |
| Range: | |
Location |
| Address: | 4313 NORTHGATE DR OAK HARBOR, WA 98277 | Mapsco: | |
| Neighborhood: | Cycle 6 | Map ID: | 202 |
| Neighborhood CD: | 6 |
Owner |
| Name: | CANTU, GEORGE | Owner ID: | 277454 |
| Mailing Address: | BONNIE RAE CANTU 1507 ALLEN COURT ANACORTES, WA 98221 | % Ownership: | 100.0000000000% |
| | | Exemptions: | |
Taxes and Assessment Details
Values
| (+) Improvement Homesite Value: | + | $0 | |
| (+) Improvement Non-Homesite Value: | + | $143,418 | |
| (+) Land Homesite Value: | + | $0 | |
| (+) Land Non-Homesite Value: | + | $210,000 | |
| (+) Curr Use (HS): | + | $0 | $0 |
| (+) Curr Use (NHS): | + | $0 | $0 |
| | | -------------------------- | |
| (=) Market Value: | = | $353,418 | |
| (–) Productivity Loss: | – | $0 | |
| | | -------------------------- | |
| (=) Subtotal: | = | $353,418 | |
| (+) Senior Appraised Value: | + | $0 | |
| (+) Non-Senior Appraised Value: | + | $353,418 | |
| | | -------------------------- | |
| (=) Total Appraised Value: | = | $353,418 | |
| (–) Senior Exemption Loss: | – | $0 | |
| (–) Exemption Loss: | – | $0 | |
| | | -------------------------- | |
| (=) Taxable Value: | = | $353,418 | |
Taxing Jurisdiction
| Owner: | CANTU, GEORGE | | |
| % Ownership: | 100.0000000000% | | |
| Total Value: | $353,418 | | |
| Tax Area: | 110 - APPRAISER-OH Schl Dist, outside OH, improved & 1 acre or less |
| CF | Conservation Futures | 0.0316035091 | $353,418 | $353,418 | $11.17 | | |
| CEM1 | Cemetery #1 | 0.0040320932 | $353,418 | $353,418 | $1.43 | | |
| FIRE2 | Fire & Rescue Dist #2 N Whidbey GEN | 0.5475949600 | $353,418 | $353,418 | $193.53 | | |
| HOBOND | Hospital BOND | 0.1910887512 | $353,418 | $353,418 | $67.53 | | |
| HOGEN | Hospital GEN | 0.3902502903 | $353,418 | $353,418 | $137.92 | | |
| CE | County Current Expense | 0.3708482477 | $353,418 | $353,418 | $131.06 | | |
| CR | County Roads | 0.4584763726 | $353,418 | $353,418 | $162.03 | | |
| ISLANDEMS | Hospital GEN (EMS) | 0.5000000000 | $353,418 | $353,418 | $176.71 | | |
| LIB | Library Sno-Isle GEN | 0.3153421757 | $353,418 | $353,418 | $111.45 | | |
| NWHIDPRMT | P & R N Whidbey GEN | 0.2004466701 | $353,418 | $353,418 | $70.84 | | |
| SCH201MO | School 201 Enrichment | 1.8559231640 | $353,418 | $353,418 | $655.92 | | |
| ST | State School | 1.3035497053 | $353,418 | $353,418 | $460.70 | | |
| ST2 | State School Part 2 | 0.8169543533 | $353,418 | $353,418 | $288.73 | | |
| | Total Tax Rate: | 6.9861102925 | | | | | |
| | | | | Taxes w/Current Exemptions: | $2,469.02 | | |
| | | | | Taxes w/o Exemptions: | $2,469.02 | | |
Improvement / Building
| Improvement #1: | RESIDENTIAL | State Code: | Y | 1000.0 sqft | Value: | $143,418 |
| Bathrooms: | 1 | Bedrooms: | 3 | | Ceiling: | DRY WALL SPRAYED | Exterior Wall/Cover: | PLY/HARDBOARD T-111 | | Floor Covering: | CARPET/VINYL 60-40 | Floor Structure: | WOOD W/SUBFLOOR | | Foundation: | CONCRETE | Heating: | HEAT PUMP | | Interior Finish: | DRYWALL PAINT | Plumbing Fixture Cnt: | 6 | | Roof Slope: | 5" IN 12" | Roof Structure/Cover: | CJ ASPHALT |
|
| | Type | Description | Class CD | Sub Class CD | Year Built | Area |
| | BAS | BASE/MAIN FLOOR | 3 | 0 | 1978 | 1000.0 |
| | OP3 | OPEN PORCH W/ROOF | 3 | 0 | 1978 | 48.0 |
| | AGR | ATTACHED GARAGE | 3 | 0 | 1978 | 312.0 |
Sketch
Property Image
Land
| 1 | 14 | SQ (08001-12000) | 0.0000 | 0.00 | 0.00 | 0.00 | 1.00 | $210,000 | $0 |
Roll Value History
| 2026 | N/A | N/A | N/A | N/A | N/A |
| 2025 | $143,418 | $210,000 | $0 | $353,418 | $353,418 |
| 2024 | $143,097 | $190,000 | $0 | $333,097 | $333,097 |
| 2023 | $145,291 | $190,000 | $0 | $335,291 | $335,291 |
| 2022 | $127,585 | $180,000 | $0 | $307,585 | $307,585 |
| 2021 | $112,670 | $130,000 | $0 | $242,670 | $242,670 |
| 2020 | $110,108 | $110,000 | $0 | $220,108 | $220,108 |
| 2019 | $78,507 | $140,000 | $0 | $218,507 | $218,507 |
| 2018 | $78,799 | $120,000 | $0 | $198,799 | $198,799 |
| 2017 | $79,383 | $90,000 | $0 | $169,383 | $169,383 |
| 2016 | $77,217 | $70,000 | $0 | $147,217 | $147,217 |
| 2015 | $78,388 | $50,000 | $0 | $128,388 | $128,388 |
| 2014 | $79,557 | $45,000 | $0 | $124,557 | $124,557 |
| 2013 | $80,727 | $45,000 | $0 | $125,727 | $125,727 |
| 2012 | $81,897 | $59,500 | $0 | $141,397 | $141,397 |
| 2011 | $83,067 | $70,000 | $0 | $153,067 | $153,067 |
| 2010 | $90,954 | $70,000 | $0 | $160,954 | $160,954 |
| 2009 | $94,893 | $77,500 | $0 | $172,393 | $172,393 |
| 2008 | $96,132 | $94,500 | $0 | $190,632 | $190,632 |
| 2007 | $96,180 | $90,000 | $0 | $186,180 | $186,180 |
Deed and Sales History
| 1 | 11/03/2016 | WD | Warranty Deed | SMIT, THEO F | CANTU, GEORGE | | | $125,000.00 | 26845 | 4411138 |
| 2 | 05/04/2004 | WD | Warranty Deed | LEDUC, JAMES | SMIT, THEO F | | | $68,000.00 | 41875 | 4099604 |
| 3 | 12/30/1999 | WD | Warranty Deed | AYER, C JASON & ADA A | LEDUC, JAMES | | | $96,000.00 | 38 | 20000153 |
| 4 | 06/01/1993 | WD | Warranty Deed | JEFFREY, JOHN K | AYER, C J | | | $87,000.00 | 32478 | 93012782 |
| 5 | 04/01/1993 | QCD | Quit Claim Deed | JEFFREY, JOHN K | JEFFREY, JOHN K | | | $0.00 | 31278 | 93006786 |
| 6 | 06/01/1991 | WD | Warranty Deed | GRIMES, ROGER C | JEFFREY, JOHN K | | | $75,000.00 | 12311 | 91009873 |
| 7 | 06/01/1985 | PACD | Purchaser's Assignment | Unknown | GRIMES, ROGER C | | | $0.00 | 51692 | 85006755 |
Payout Agreement
| No payout information available.. |