Property
Account |
| Property ID: | 500559 | Abbreviated Legal Description: | IN GL1: BG CLN RACE RD & NLN PLAT OF SHANGRI-LA- SHORES N11*W250.36' ALG CUR/R 283.17' TPB ALG CUR/R 120.81' S88*E259.87' S163 .60' ALG CUR/L 42.83' N49*W 116.23' S86*W133.14' TPB EX RD FR 137-0870 145-0840 SP 78-107 TR 2-A TGW TR LAND & ADJ TIDES DES |
| Geographic ID: | R23108-140-0550 | Agent Code: | |
| Type: | Real | | |
| Tax Area: | 310 - APPRAISER-Cpvl Schl Dist, outside Cpvl, improved & 1 acre or less | Land Use Code | 11 |
| Open Space: | N | DFL | N |
| Historic Property: | N | Remodel Property: | N |
| Multi-Family Redevelopment: | N | | |
| Township: | 31 | Section: | 08 |
| Range: | R2 |
Location |
| Address: | 445 BELVEDERE PLACE COUPEVILLE, WA 98239 | Mapsco: | |
| Neighborhood: | Cycle 2 | Map ID: | 466 |
| Neighborhood CD: | 2 |
Owner |
| Name: | OETKEN, ROBERT EDWARD | Owner ID: | 307480 |
| Mailing Address: | 445 BELVEDERE PL COUPEVILLE, WA 98239 | % Ownership: | 100.0000000000% |
| | | Exemptions: | |
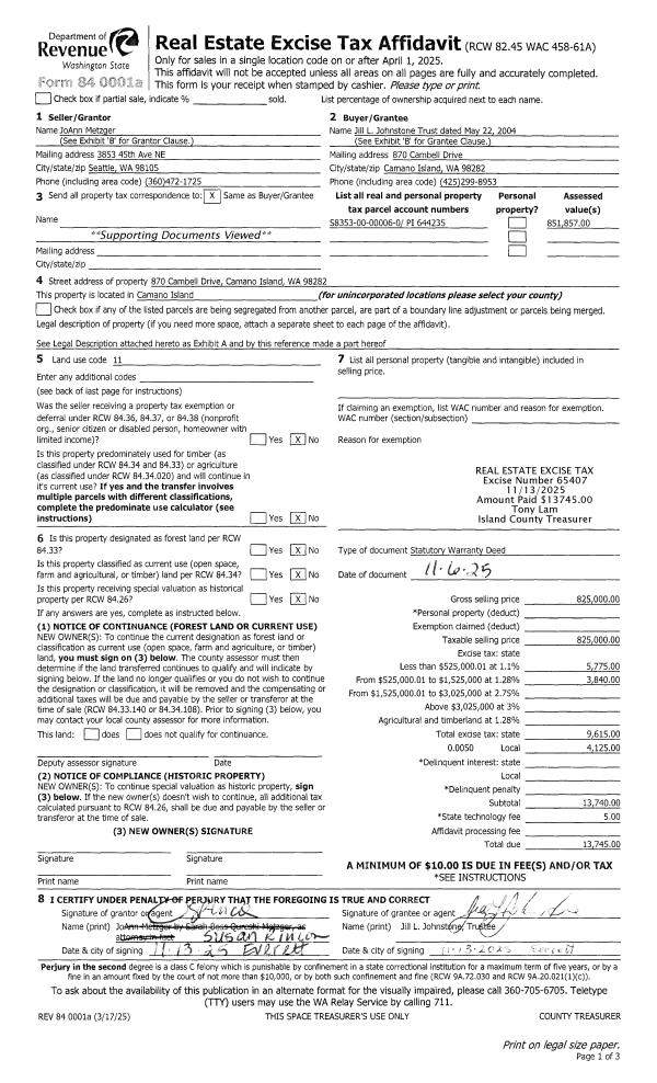
Taxes and Assessment Details
Values
| (+) Improvement Homesite Value: | + | $0 | |
| (+) Improvement Non-Homesite Value: | + | $552,529 | |
| (+) Land Homesite Value: | + | $0 | |
| (+) Land Non-Homesite Value: | + | $220,000 | |
| (+) Curr Use (HS): | + | $0 | $0 |
| (+) Curr Use (NHS): | + | $0 | $0 |
| | | -------------------------- | |
| (=) Market Value: | = | $772,529 | |
| (–) Productivity Loss: | – | $0 | |
| | | -------------------------- | |
| (=) Subtotal: | = | $772,529 | |
| (+) Senior Appraised Value: | + | $0 | |
| (+) Non-Senior Appraised Value: | + | $772,529 | |
| | | -------------------------- | |
| (=) Total Appraised Value: | = | $772,529 | |
| (–) Senior Exemption Loss: | – | $0 | |
| (–) Exemption Loss: | – | $0 | |
| | | -------------------------- | |
| (=) Taxable Value: | = | $772,529 | |
Taxing Jurisdiction
| Owner: | OETKEN, ROBERT EDWARD | | |
| % Ownership: | 100.0000000000% | | |
| Total Value: | $772,529 | | |
| Tax Area: | 310 - APPRAISER-Cpvl Schl Dist, outside Cpvl, improved & 1 acre or less |
| CF | Conservation Futures | 0.0316035091 | $772,529 | $772,529 | $24.41 | | |
| CEM2 | Cemetery #2 | 0.0095056933 | $772,529 | $772,529 | $7.34 | | |
| FIRE5 | Fire & Rescue Dist #5 C Whidbey GEN | 1.2008080668 | $772,529 | $772,529 | $927.66 | | |
| FIRE5BOND | Fire & Rescue Dist #5 C Whidbey BOND | 0.1400090713 | $772,529 | $772,529 | $108.16 | | |
| HOBOND | Hospital BOND | 0.1910887512 | $772,529 | $772,529 | $147.62 | | |
| HOGEN | Hospital GEN | 0.3902502903 | $772,529 | $772,529 | $301.48 | | |
| CE | County Current Expense | 0.3708482477 | $772,529 | $772,529 | $286.49 | | |
| CR | County Roads | 0.4584763726 | $772,529 | $772,529 | $354.19 | | |
| ISLANDEMS | Hospital GEN (EMS) | 0.5000000000 | $772,529 | $772,529 | $386.26 | | |
| LIB | Library Sno-Isle GEN | 0.3153421757 | $772,529 | $772,529 | $243.61 | | |
| LIBCAP | Library Sno-Isle BOND (Cap Fac Imp Area) | 0.0543427938 | $772,529 | $772,529 | $41.98 | | |
| POCOUP | Port of Coupeville GEN | 0.1093371703 | $772,529 | $772,529 | $84.47 | | |
| POCOUPIDD | Port of Coupeville IDD | 0.3409740022 | $772,529 | $772,529 | $263.41 | | |
| COUPSDTECH | School 204 CP (TECH) | 0.7545480007 | $772,529 | $772,529 | $582.91 | | |
| SCH204MO | School 204 Enrichment | 0.6716186034 | $772,529 | $772,529 | $518.84 | | |
| ST | State School | 1.3035497053 | $772,529 | $772,529 | $1,007.03 | | |
| ST2 | State School Part 2 | 0.8169543533 | $772,529 | $772,529 | $631.12 | | |
| | Total Tax Rate: | 7.6592568070 | | | | | |
| | | | | Taxes w/Current Exemptions: | $5,916.98 | | |
| | | | | Taxes w/o Exemptions: | $5,916.98 | | |
Improvement / Building
| Improvement #1: | RESIDENTIAL | State Code: | Y | 3390.0 sqft | Value: | $552,529 |
| Bathrooms: | 3.5 | Bedrooms: | 4 | | Ceiling: | DRYWALL PAINTED | Exterior Wall/Cover: | SHINGLE | | Floor Covering: | CERAMIC TILE/HWD 40/60 | Floor Structure: | WOOD W/SUBFLOOR | | Foundation: | CONCRETE | Heating: | FHA GAS | | Interior Finish: | DRYWALL PAINT | Plumbing Fixture Cnt: | 16 | | Roof Slope: | 4" IN 12" | Roof Structure/Cover: | CJ ASPHALT |
|
| | Type | Description | Class CD | Sub Class CD | Year Built | Area |
| | BAS | BASE/MAIN FLOOR | 4 | 0 | 1993 | 1425.0 |
| | OP1 | OPEN PORCH SLAB | 4 | 0 | 1993 | 96.0 |
| | OP1 | OPEN PORCH SLAB | 4 | 0 | 1993 | 318.0 |
| | OP4 | OPEN PORCH W/CEILING-ROOF | 4 | 0 | 1993 | 12.0 |
| | DGR | DETACHED GARAGE | 4 | 0 | 1993 | 384.0 |
| | AGR | ATTACHED GARAGE | 4 | 0 | 1993 | 615.0 |
| | UPS | UPPER STORY | 4 | 0 | 1993 | 540.0 |
| | BAI | BALCONY IRON RAIL | 4 | 0 | 1993 | 50.0 |
| | OWP | OPEN WOOD PORCH W/STEPS | 4 | 0 | 1993 | 162.0 |
| | CPD | OPEN CARPORT DIRT FLOOR | 4 | 0 | 1993 | 96.0 |
| | DWN | DOWNSTAIRS LIVING AREA | 4 | 0 | 1993 | 1425.0 |
| | oCAR | CARPORT | 2 | 0 | 2025 | 319.0 |
Sketch
| No sketches available for this property. |
Property Image
Land
| 1 | HS | HOMESITE | 0.8600 | 37461.60 | 0.00 | 0.00 | 1.00 | $220,000 | $0 |
Roll Value History
| 2026 | N/A | N/A | N/A | N/A | N/A |
| 2025 | $552,529 | $220,000 | $0 | $772,529 | $772,529 |
| 2024 | $514,311 | $200,000 | $0 | $714,311 | $714,311 |
| 2023 | $521,146 | $200,000 | $0 | $721,146 | $721,146 |
| 2022 | $478,115 | $200,000 | $0 | $678,115 | $678,115 |
| 2021 | $421,136 | $150,000 | $0 | $571,136 | $571,136 |
| 2020 | $411,347 | $120,000 | $0 | $531,347 | $531,347 |
| 2019 | $326,690 | $155,000 | $0 | $481,690 | $481,690 |
| 2018 | $313,680 | $135,000 | $0 | $448,680 | $448,680 |
| 2017 | $315,734 | $150,000 | $0 | $465,734 | $465,734 |
| 2016 | $319,834 | $135,000 | $0 | $454,834 | $454,834 |
| 2015 | $323,933 | $100,000 | $0 | $423,933 | $423,933 |
| 2014 | $328,035 | $100,000 | $0 | $428,035 | $428,035 |
| 2013 | $332,135 | $100,000 | $0 | $432,135 | $432,135 |
| 2012 | $330,672 | $100,000 | $0 | $430,672 | $430,672 |
| 2011 | $354,852 | $100,000 | $0 | $454,852 | $454,852 |
| 2010 | $370,223 | $100,000 | $0 | $470,223 | $470,223 |
| 2009 | $386,026 | $100,000 | $0 | $486,026 | $486,026 |
| 2008 | $390,787 | $105,000 | $0 | $495,787 | $495,787 |
| 2007 | $395,549 | $105,000 | $0 | $500,549 | $500,549 |
Deed and Sales History
| 1 | 01/20/2023 | PRD | Personal Representatives Deed | OETKEN, EDWARD R | OETKEN, ROBERT EDWARD | | | $0.00 | 55768 | 4556400 |
| 2 | 12/11/2012 | TOD | Transfer On Death Deed | OETKEN JTWROS, EDWARD R | OETKEN, EDWARD R | | | | 82555 | |
| 3 | 03/21/2006 | 5 | DNU - Marriage License/Name Change | OETKEN, EDWARD R | OETKEN JTWROS, EDWARD R | | | $0.00 | 61188 | 4165384 |
| 4 | 07/01/1992 | WD | Warranty Deed | WASHINGTON, LAND C | OETKEN, EDWARD R | | | $21,500.00 | 22921 | 92014142 |
| 5 | 01/01/1900 | OTHER | Other - Misc. Documents | Unknown | WASHINGTON, LAND C | | | $0.00 | 0 | 0 |
Payout Agreement
| No payout information available.. |