Property
Account |
| Property ID: | 500577 | Abbreviated Legal Description: | IN GL1: BG CLN RACE RD & NLN PLAT OF SHANGRI-LA SH N11*W250.36' ALG CUR/R 403 .98' S88*E259.87' TPB S88*E 176.15' S156.26' S89*W176' N163.60' TPB TGW SUB EZ TGW TR LAND & ADJ TIDES DESC AF#375388 TGW EZ FR 145-0840 & 137-8700 (TR 3A REV SP 78-107 AF#369 |
| Geographic ID: | R23108-140-0700 | Agent Code: | |
| Type: | Real | | |
| Tax Area: | 310 - APPRAISER-Cpvl Schl Dist, outside Cpvl, improved & 1 acre or less | Land Use Code | 11 |
| Open Space: | N | DFL | N |
| Historic Property: | N | Remodel Property: | N |
| Multi-Family Redevelopment: | N | | |
| Township: | 31 | Section: | 08 |
| Range: | R2 |
Location |
| Address: | 451 BELVEDERE PLACE COUPEVILLE, WA 98239 | Mapsco: | |
| Neighborhood: | Cycle 2 | Map ID: | 466 |
| Neighborhood CD: | 2 |
Owner |
| Name: | STOBAUGH, DAWNMARYE D | Owner ID: | 292048 |
| Mailing Address: | CHELSEA J STOBAUGH 451 BELVEDERE PL COUPEVILLE, WA 98239 | % Ownership: | 100.0000000000% |
| | | Exemptions: | |
Taxes and Assessment Details
Values
| (+) Improvement Homesite Value: | + | $0 | |
| (+) Improvement Non-Homesite Value: | + | $365,787 | |
| (+) Land Homesite Value: | + | $0 | |
| (+) Land Non-Homesite Value: | + | $220,000 | |
| (+) Curr Use (HS): | + | $0 | $0 |
| (+) Curr Use (NHS): | + | $0 | $0 |
| | | -------------------------- | |
| (=) Market Value: | = | $585,787 | |
| (–) Productivity Loss: | – | $0 | |
| | | -------------------------- | |
| (=) Subtotal: | = | $585,787 | |
| (+) Senior Appraised Value: | + | $0 | |
| (+) Non-Senior Appraised Value: | + | $585,787 | |
| | | -------------------------- | |
| (=) Total Appraised Value: | = | $585,787 | |
| (–) Senior Exemption Loss: | – | $0 | |
| (–) Exemption Loss: | – | $0 | |
| | | -------------------------- | |
| (=) Taxable Value: | = | $585,787 | |
Taxing Jurisdiction
| Owner: | STOBAUGH, DAWNMARYE D | | |
| % Ownership: | 100.0000000000% | | |
| Total Value: | $585,787 | | |
| Tax Area: | 310 - APPRAISER-Cpvl Schl Dist, outside Cpvl, improved & 1 acre or less |
| CF | Conservation Futures | 0.0316035091 | $585,787 | $585,787 | $18.51 | | |
| CEM2 | Cemetery #2 | 0.0095056933 | $585,787 | $585,787 | $5.57 | | |
| FIRE5 | Fire & Rescue Dist #5 C Whidbey GEN | 1.2008080668 | $585,787 | $585,787 | $703.42 | | |
| FIRE5BOND | Fire & Rescue Dist #5 C Whidbey BOND | 0.1400090713 | $585,787 | $585,787 | $82.02 | | |
| HOBOND | Hospital BOND | 0.1910887512 | $585,787 | $585,787 | $111.94 | | |
| HOGEN | Hospital GEN | 0.3902502903 | $585,787 | $585,787 | $228.60 | | |
| CE | County Current Expense | 0.3708482477 | $585,787 | $585,787 | $217.24 | | |
| CR | County Roads | 0.4584763726 | $585,787 | $585,787 | $268.57 | | |
| ISLANDEMS | Hospital GEN (EMS) | 0.5000000000 | $585,787 | $585,787 | $292.89 | | |
| LIB | Library Sno-Isle GEN | 0.3153421757 | $585,787 | $585,787 | $184.72 | | |
| LIBCAP | Library Sno-Isle BOND (Cap Fac Imp Area) | 0.0543427938 | $585,787 | $585,787 | $31.83 | | |
| POCOUP | Port of Coupeville GEN | 0.1093371703 | $585,787 | $585,787 | $64.05 | | |
| POCOUPIDD | Port of Coupeville IDD | 0.3409740022 | $585,787 | $585,787 | $199.74 | | |
| COUPSDTECH | School 204 CP (TECH) | 0.7545480007 | $585,787 | $585,787 | $442.00 | | |
| SCH204MO | School 204 Enrichment | 0.6716186034 | $585,787 | $585,787 | $393.43 | | |
| ST | State School | 1.3035497053 | $585,787 | $585,787 | $763.60 | | |
| ST2 | State School Part 2 | 0.8169543533 | $585,787 | $585,787 | $478.56 | | |
| | Total Tax Rate: | 7.6592568070 | | | | | |
| | | | | Taxes w/Current Exemptions: | $4,486.69 | | |
| | | | | Taxes w/o Exemptions: | $4,486.69 | | |
Improvement / Building
| Improvement #1: | RESIDENTIAL | State Code: | Y | 2212.1 sqft | Value: | $365,787 |
| Bathrooms: | 3 | Bedrooms: | 3 | | Ceiling: | DRYWALL PAINTED | Cooling: | HEAT PUMP/CONV/V | | Exterior Wall/Cover: | WOOD SIDING | Floor Covering: | HARDWOOD/CARP 20-80 | | Floor Structure: | WOOD W/SUBFLOOR | Foundation: | CONCRETE | | Interior Finish: | DRYWALL PAINT | Plumbing Fixture Cnt: | 13 | | Roof Slope: | 5" IN 12" | Roof Structure/Cover: | CJ ASPHALT |
|
| | Type | Description | Class CD | Sub Class CD | Year Built | Area |
| | BAS | BASE/MAIN FLOOR | 3 | 0 | 1981 | 1260.1 |
| | AGR | ATTACHED GARAGE | 3 | 0 | 1981 | 428.0 |
| | UPS | UPPER STORY | 3 | 0 | 1981 | 952.0 |
| | OWP | OPEN WOOD PORCH W/STEPS | 3 | 0 | 1981 | 819.0 |
| | OWR | OPEN WOOD PORCH W/STEPS/ROOF | 3 | 0 | 1981 | 67.5 |
| | OWC | OPEN WOOD PORCH W/STEPS/ROOF/C | 3 | 0 | 1981 | 92.4 |
Sketch
| No sketches available for this property. |
Property Image
Land
| 1 | HS | HOMESITE | 0.6400 | 27878.40 | 0.00 | 0.00 | 1.00 | $220,000 | $0 |
Roll Value History
| 2026 | N/A | N/A | N/A | N/A | N/A |
| 2025 | $365,787 | $220,000 | $0 | $585,787 | $585,787 |
| 2024 | $339,158 | $200,000 | $0 | $539,158 | $539,158 |
| 2023 | $343,492 | $200,000 | $0 | $543,492 | $543,492 |
| 2022 | $314,957 | $200,000 | $0 | $514,957 | $514,957 |
| 2021 | $277,298 | $150,000 | $0 | $427,298 | $427,298 |
| 2020 | $270,277 | $120,000 | $0 | $390,277 | $390,277 |
| 2019 | $206,214 | $155,000 | $0 | $361,214 | $361,214 |
| 2018 | $189,833 | $135,000 | $0 | $324,833 | $324,833 |
| 2017 | $191,057 | $150,000 | $0 | $341,057 | $341,057 |
| 2016 | $193,509 | $115,000 | $0 | $308,509 | $308,509 |
| 2015 | $195,957 | $90,000 | $0 | $285,957 | $285,957 |
| 2014 | $198,407 | $85,000 | $0 | $283,407 | $283,407 |
| 2013 | $200,856 | $100,000 | $0 | $300,856 | $300,856 |
| 2012 | $206,443 | $100,000 | $0 | $306,443 | $306,443 |
| 2011 | $229,946 | $125,000 | $0 | $354,946 | $354,946 |
| 2010 | $240,287 | $125,000 | $0 | $365,287 | $142,632 |
| 2009 | $250,496 | $150,000 | $0 | $400,496 | $142,632 |
| 2008 | $253,535 | $105,000 | $0 | $358,535 | $146,340 |
| 2007 | $242,367 | $105,000 | $0 | $347,367 | $83,570 |
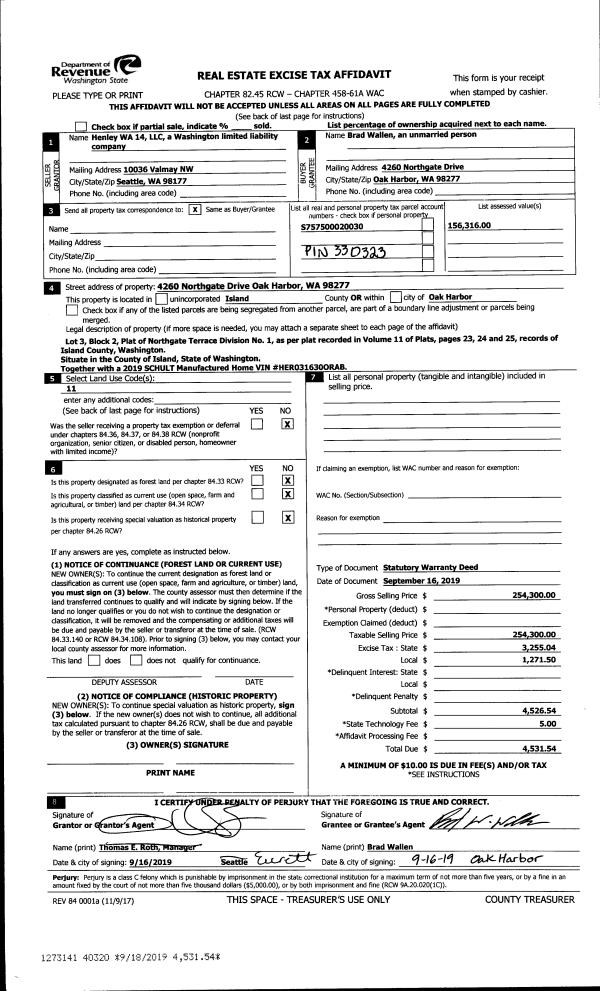
Deed and Sales History
| 1 | 09/27/2019 | WD | Warranty Deed | ALCARAZ, TONY | STOBAUGH, DAWNMARYE D | | | $467,000.00 | 40503 | 4472487 |
|   | |
| 2 | 06/01/1992 | WD | Warranty Deed | RICHARDS, LARRY A | ALCARAZ, TONY | | | $154,700.00 | 22588 | 92012508 |
| 3 | 06/01/1992 | QCD | Quit Claim Deed | ALCARAZ, TONY | ALCARAZ, TONY | | | $0.00 | 22589 | 92012509 |
| 4 | 11/01/1989 | WD | Warranty Deed | KERNS, DENNIS R | RICHARDS, LARRY A | | | $102,685.00 | 95237 | 89016853 |
| 5 | 11/01/1989 | WD | Warranty Deed | RICHARDS, LARRY A | RICHARDS, LARRY A | | | $0.00 | 850 | 90002767 |
| 6 | 11/01/1980 | REC | Real Estate Contract | WASHINGTON, LAND C | KERNS, DENNIS R | | | $11,100.00 | 3933 | 376684 |
| 7 | 01/01/1900 | OTHER | Other - Misc. Documents | Unknown | WASHINGTON, LAND C | | | $0.00 | 0 | 0 |
Payout Agreement
| No payout information available.. |