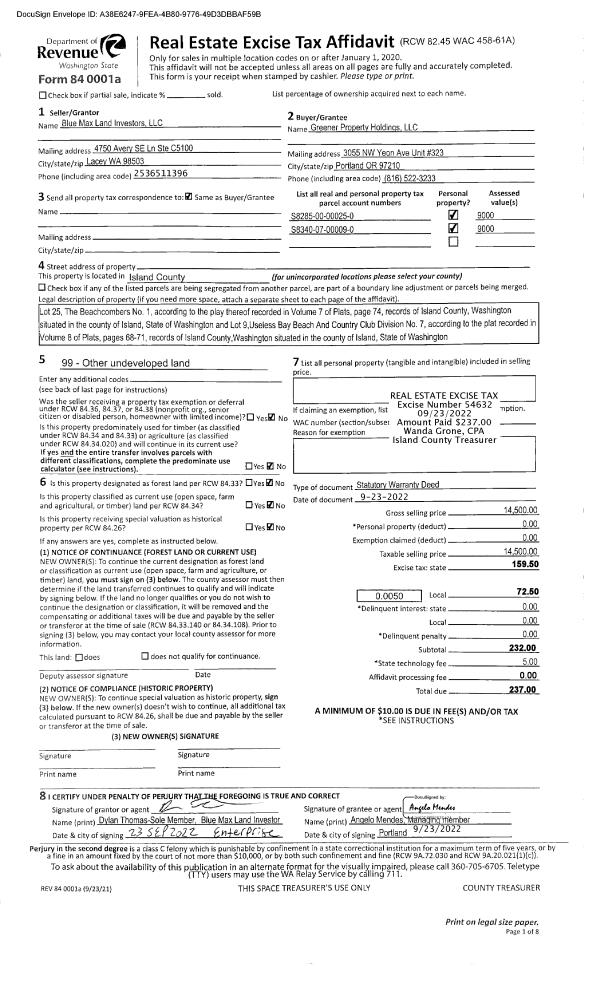
Property
Account |
| Property ID: | 500924 | Abbreviated Legal Description: | IN GL1 BG SW CR SEC 6 N330' S89*E1025.07' S330.02' N89* W1020.9' TPB FR 048-0520 EX PT TO IS CO AF#96003571 |
| Geographic ID: | R33106-025-0550 | Agent Code: | |
| Type: | Real | | |
| Tax Area: | 592 - APPRAISER-Stan/Cam Schl Dist, Special Dist, improved, greater than 1 acre | Land Use Code | 11 |
| Open Space: | N | DFL | N |
| Historic Property: | N | Remodel Property: | N |
| Multi-Family Redevelopment: | N | | |
| Township: | 31 | Section: | 06 |
| Range: | R3 |
Location |
| Address: | 380 S EAST CAMANO DR CAMANO ISLAND, WA 98282 | Mapsco: | |
| Neighborhood: | Cycle 5 | Map ID: | 918 |
| Neighborhood CD: | 5 |
Owner |
| Name: | QUADE, JOHN R | Owner ID: | 60056 |
| Mailing Address: | LOREE B QUADE 380 S EAST CAMANO DR CAMANO ISLAND, WA 98282-8738 | % Ownership: | 100.0000000000% |
| | | Exemptions: | |
Taxes and Assessment Details
Values
| (+) Improvement Homesite Value: | + | $0 | |
| (+) Improvement Non-Homesite Value: | + | $658,209 | |
| (+) Land Homesite Value: | + | $0 | |
| (+) Land Non-Homesite Value: | + | $440,000 | |
| (+) Curr Use (HS): | + | $0 | $0 |
| (+) Curr Use (NHS): | + | $0 | $0 |
| | | -------------------------- | |
| (=) Market Value: | = | $1,098,209 | |
| (–) Productivity Loss: | – | $0 | |
| | | -------------------------- | |
| (=) Subtotal: | = | $1,098,209 | |
| (+) Senior Appraised Value: | + | $0 | |
| (+) Non-Senior Appraised Value: | + | $1,098,209 | |
| | | -------------------------- | |
| (=) Total Appraised Value: | = | $1,098,209 | |
| (–) Senior Exemption Loss: | – | $0 | |
| (–) Exemption Loss: | – | $0 | |
| | | -------------------------- | |
| (=) Taxable Value: | = | $1,098,209 | |
Taxing Jurisdiction
| Owner: | QUADE, JOHN R | | |
| % Ownership: | 100.0000000000% | | |
| Total Value: | $1,098,209 | | |
| Tax Area: | 592 - APPRAISER-Stan/Cam Schl Dist, Special Dist, improved, greater than 1 acre |
| CF | Conservation Futures | 0.0316035091 | $1,098,209 | $1,098,209 | $34.71 | | |
| EMS1 | Fire & Rescue Dist #1 Camano GEN (EMS) | 0.3677864386 | $1,098,209 | $1,098,209 | $403.91 | | |
| FIRE1 | Fire & Rescue Dist #1 Camano GEN | 1.2502910536 | $1,098,209 | $1,098,209 | $1,373.08 | | |
| FIRE1BOND | Fire & Rescue Dist #1 Camano BOND | 0.1570001679 | $1,098,209 | $1,098,209 | $172.42 | | |
| CE | County Current Expense | 0.3708482477 | $1,098,209 | $1,098,209 | $407.27 | | |
| CR | County Roads | 0.4584763726 | $1,098,209 | $1,098,209 | $503.50 | | |
| LCIB | Library Sno-Isle BOND (Camano Island) | 0.0396325772 | $1,098,209 | $1,098,209 | $43.52 | | |
| LIB | Library Sno-Isle GEN | 0.3153421757 | $1,098,209 | $1,098,209 | $346.31 | | |
| SCH205_401 | School 205-401 Enrichment | 1.2698420524 | $1,098,209 | $1,098,209 | $1,394.55 | | |
| SCH205BOND | School 205-401 BOND | 0.9396497583 | $1,098,209 | $1,098,209 | $1,031.93 | | |
| ST | State School | 1.3035497053 | $1,098,209 | $1,098,209 | $1,431.57 | | |
| ST2 | State School Part 2 | 0.8169543533 | $1,098,209 | $1,098,209 | $897.19 | | |
| | Total Tax Rate: | 7.3209764117 | | | | | |
| | | | | Taxes w/Current Exemptions: | $8,039.96 | | |
| | | | | Taxes w/o Exemptions: | $8,039.96 | | |
Improvement / Building
| Improvement #1: | RESIDENTIAL | State Code: | Y | 2865.2 sqft | Value: | $658,209 |
| Bathrooms: | 3 | Bedrooms: | 3 | | Ceiling: | TONGUE & GROOVE | Cooling: | HEAT PUMP/CONV/V | | Exterior Wall/Cover: | WOOD SIDING | Floor Covering: | CERAMIC TILE/CPT 40-60 | | Floor Structure: | WOOD W/SUBFLOOR | Foundation: | CONCRETE | | Interior Finish: | DRYWALL PAINT | Plumbing Fixture Cnt: | 16 | | Roof Slope: | 12" IN 12" | Roof Structure/Cover: | BEAM CONCRETE TILE |
|
| | Type | Description | Class CD | Sub Class CD | Year Built | Area |
| | BAS | BASE/MAIN FLOOR | 4 | 0 | 2004 | 1350.0 |
| | UB8 | BASEMENT UNFINISHED 8" | 4 | 0 | 2004 | 453.0 |
| | UPS | UPPER STORY | 4 | 0 | 2004 | 600.0 |
| | LOF | LOFT | 4 | 0 | 2004 | 135.2 |
| | DWN | DOWNSTAIRS LIVING AREA | 4 | 0 | 2004 | 780.0 |
| | OWC | OPEN WOOD PORCH W/STEPS/ROOF/C | 4 | 0 | 2004 | 48.0 |
| | oOBD | Out Buildings | 4 | 0 | 2004 | 2160.0 |
| | OWP | OPEN WOOD PORCH W/STEPS | 4 | 0 | 2004 | 759.3 |
| | OWC | OPEN WOOD PORCH W/STEPS/ROOF/C | 4 | 0 | 2004 | 24.0 |
| | OP1 | OPEN PORCH SLAB | 4 | 0 | 2004 | 548.0 |
Sketch
Property Image
Land
| 1 | 32 | AC (03.01-09.99) | 7.6800 | 0.00 | 0.00 | 0.00 | 1.00 | $440,000 | $0 |
Roll Value History
| 2026 | N/A | N/A | N/A | N/A | N/A |
| 2025 | $658,209 | $440,000 | $0 | $1,098,209 | $1,098,209 |
| 2024 | $663,012 | $420,000 | $0 | $1,083,012 | $1,083,012 |
| 2023 | $668,161 | $400,000 | $0 | $1,068,161 | $1,068,161 |
| 2022 | $612,999 | $380,000 | $0 | $992,999 | $992,999 |
| 2021 | $519,523 | $280,000 | $0 | $799,523 | $799,523 |
| 2020 | $505,946 | $220,000 | $0 | $725,946 | $725,946 |
| 2019 | $402,610 | $260,000 | $0 | $662,610 | $662,610 |
| 2018 | $403,620 | $230,000 | $0 | $633,620 | $633,620 |
| 2017 | $405,645 | $200,000 | $0 | $605,645 | $605,645 |
| 2016 | $409,674 | $200,000 | $0 | $609,674 | $609,674 |
| 2015 | $332,982 | $172,032 | $0 | $505,014 | $505,014 |
| 2014 | $336,074 | $172,032 | $0 | $508,106 | $508,106 |
| 2013 | $339,167 | $172,032 | $0 | $511,199 | $511,199 |
| 2012 | $342,259 | $172,032 | $0 | $514,291 | $514,291 |
| 2011 | $345,350 | $215,040 | $0 | $560,390 | $560,390 |
| 2010 | $354,564 | $215,040 | $0 | $569,604 | $569,604 |
| 2009 | $371,966 | $245,760 | $0 | $617,726 | $617,726 |
| 2008 | $374,410 | $330,240 | $0 | $704,650 | $704,650 |
| 2007 | $432,773 | $254,169 | $0 | $686,942 | $686,942 |
Deed and Sales History
| 1 | 05/07/2004 | OTHER | Other - Misc. Documents | QUADE, JOHN R | QUADE, JOHN R | | | $0.00 | 41862 | 4099460 |
| 2 | 02/12/2004 | QCD | Quit Claim Deed | QUADE, JOHN R | QUADE, JOHN R | | | $0.00 | 40538 | 4091129 |
| 3 | 02/04/2004 | QCD | Quit Claim Deed | ROBINSON TRUSTEE, BRYANT E | QUADE, JOHN R | | | $60,000.00 | 40456 | 4090594 |
| 4 | 07/17/2002 | QCD | Quit Claim Deed | ROBINSON, BRYANT E | ROBINSON TRUSTEE, BRYANT E | | | $0.00 | 22854 | 4026474 |
| 5 | 03/01/1996 | QCD | Quit Claim Deed | ROBINSON, BRYANT E | ROBINSON, BRYANT E | | | $700.00 | 66836 | 96003571 |
| 6 | 09/01/1985 | OTHER | Other - Misc. Documents | ROBINSON, DAVID E | ROBINSON, BRYANT E | | | $0.00 | 60730 | 0 |
| 7 | 04/01/1981 | EXECUTORD | Executor Deed | WASHINGTON, LAND C | ROBINSON, DAVID E | | | $39,950.00 | 11319 | 382482 |
| 8 | 08/01/1980 | TRUSTEED | Trustee's Deed | WASHINGTON, LAND C | WASHINGTON, LAND C | | | $0.00 | 2856 | 372959 |
| 9 | 01/01/1900 | OTHER | Other - Misc. Documents | Unknown | WASHINGTON, LAND C | | | $0.00 | 0 | 0 |
Payout Agreement
| No payout information available.. |