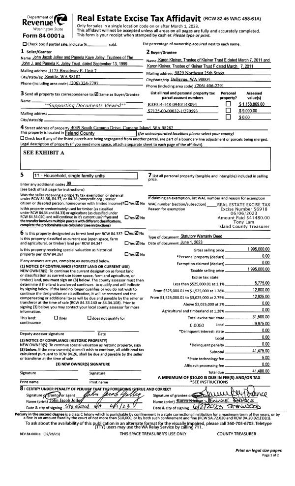
Property
Account |
| Property ID: | 501022 | Abbreviated Legal Description: | BG SECR SE NE N89*W877.47' N31*E432.14' N9*E325.79' N15*E230.42' N89*W103.95' TPB N50' N7*W355.78' N89*W 275' S402.77' S89*E318' TPB TGW SUB EZ FR 374-4720 TR D-1 SP 79-66 |
| Geographic ID: | R23327-375-4500 | Agent Code: | |
| Type: | Real | | |
| Tax Area: | 112 - APPRAISER-OH Schl Dist, outside OH, improved, greater than 1 acre | Land Use Code | 11 |
| Open Space: | N | DFL | N |
| Historic Property: | N | Remodel Property: | N |
| Multi-Family Redevelopment: | N | | |
| Township: | 33 | Section: | 27 |
| Range: | R2 |
Location |
| Address: | 3084 AUTUMN LN OAK HARBOR, WA 98277 | Mapsco: | |
| Neighborhood: | Cycle 6 | Map ID: | 630 |
| Neighborhood CD: | 6 |
Owner |
| Name: | TAYLOR, GARY ALAN | Owner ID: | 153040 |
| Mailing Address: | 3084 AUTUMN LN OAK HARBOR, WA 98277-9012 | % Ownership: | 100.0000000000% |
| | | Exemptions: | |
Taxes and Assessment Details
Values
| (+) Improvement Homesite Value: | + | $0 | |
| (+) Improvement Non-Homesite Value: | + | $58,233 | |
| (+) Land Homesite Value: | + | $0 | |
| (+) Land Non-Homesite Value: | + | $290,000 | |
| (+) Curr Use (HS): | + | $0 | $0 |
| (+) Curr Use (NHS): | + | $0 | $0 |
| | | -------------------------- | |
| (=) Market Value: | = | $348,233 | |
| (–) Productivity Loss: | – | $0 | |
| | | -------------------------- | |
| (=) Subtotal: | = | $348,233 | |
| (+) Senior Appraised Value: | + | $0 | |
| (+) Non-Senior Appraised Value: | + | $348,233 | |
| | | -------------------------- | |
| (=) Total Appraised Value: | = | $348,233 | |
| (–) Senior Exemption Loss: | – | $0 | |
| (–) Exemption Loss: | – | $0 | |
| | | -------------------------- | |
| (=) Taxable Value: | = | $348,233 | |
Taxing Jurisdiction
| Owner: | TAYLOR, GARY ALAN | | |
| % Ownership: | 100.0000000000% | | |
| Total Value: | $348,233 | | |
| Tax Area: | 112 - APPRAISER-OH Schl Dist, outside OH, improved, greater than 1 acre |
| CF | Conservation Futures | 0.0316035091 | $348,233 | $348,233 | $11.01 | | |
| CEM1 | Cemetery #1 | 0.0040320932 | $348,233 | $348,233 | $1.40 | | |
| FIRE2 | Fire & Rescue Dist #2 N Whidbey GEN | 0.5475949600 | $348,233 | $348,233 | $190.69 | | |
| HOBOND | Hospital BOND | 0.1910887512 | $348,233 | $348,233 | $66.54 | | |
| HOGEN | Hospital GEN | 0.3902502903 | $348,233 | $348,233 | $135.90 | | |
| CE | County Current Expense | 0.3708482477 | $348,233 | $348,233 | $129.14 | | |
| CR | County Roads | 0.4584763726 | $348,233 | $348,233 | $159.66 | | |
| ISLANDEMS | Hospital GEN (EMS) | 0.5000000000 | $348,233 | $348,233 | $174.12 | | |
| LIB | Library Sno-Isle GEN | 0.3153421757 | $348,233 | $348,233 | $109.81 | | |
| NWHIDPRMT | P & R N Whidbey GEN | 0.2004466701 | $348,233 | $348,233 | $69.80 | | |
| SCH201MO | School 201 Enrichment | 1.8559231640 | $348,233 | $348,233 | $646.29 | | |
| ST | State School | 1.3035497053 | $348,233 | $348,233 | $453.94 | | |
| ST2 | State School Part 2 | 0.8169543533 | $348,233 | $348,233 | $284.49 | | |
| | Total Tax Rate: | 6.9861102925 | | | | | |
| | | | | Taxes w/Current Exemptions: | $2,432.79 | | |
| | | | | Taxes w/o Exemptions: | $2,432.79 | | |
Improvement / Building
| Improvement #1: | MANUFACTURED HOME | State Code: | Y | 1536.0 sqft | Value: | $58,233 |
| Bathrooms: | 0 | Bedrooms: | 0 | | Ceiling: | PLASTER PAINTED | Cooling: | EVAP NO DUCT | | Exterior Wall/Cover: | VINYL | Floor Covering: | CARPET 100% | | Floor Structure: | SLAB ON GRADE | Foundation: | SLAB | | Heating: | FHA ELECTRIC | Interior Finish: | PLASTER | | Plumbing Fixture Cnt: | 1 | Roof Slope: | FLAT | | Roof Structure/Cover: | CJ ALUMINIUM HEAVY |   |   |
|
| | Type | Description | Class CD | Sub Class CD | Year Built | Area |
| | BAS | BASE/MAIN FLOOR | 3 | 0 | 1974 | 1536.0 |
| | UTY | STORAGE/UTILITY | 3 | 0 | 1974 | 100.0 |
| | DGR | DETACHED GARAGE | 3 | 0 | 1974 | 768.0 |
| | OWP | OPEN WOOD PORCH W/STEPS | 3 | 0 | 1974 | 280.0 |
Sketch
Property Image
Land
| 1 | 18 | AC (02.01-03.00) | 2.7500 | 119790.00 | 0.00 | 0.00 | 1.00 | $290,000 | $0 |
Roll Value History
| 2026 | N/A | N/A | N/A | N/A | N/A |
| 2025 | $58,233 | $290,000 | $0 | $348,233 | $348,233 |
| 2024 | $61,298 | $280,000 | $0 | $341,298 | $341,298 |
| 2023 | $64,363 | $280,000 | $0 | $344,363 | $344,363 |
| 2022 | $55,500 | $210,000 | $0 | $265,500 | $265,500 |
| 2021 | $51,498 | $160,000 | $0 | $211,498 | $211,498 |
| 2020 | $52,216 | $140,000 | $0 | $192,216 | $192,216 |
| 2019 | $44,674 | $200,000 | $0 | $244,674 | $244,674 |
| 2018 | $46,203 | $170,000 | $0 | $216,203 | $216,203 |
| 2017 | $48,497 | $150,000 | $0 | $198,497 | $198,497 |
| 2016 | $35,015 | $120,000 | $0 | $155,015 | $155,015 |
| 2015 | $36,626 | $90,000 | $0 | $126,626 | $126,626 |
| 2014 | $37,432 | $80,000 | $0 | $117,432 | $117,432 |
| 2013 | $39,044 | $108,000 | $0 | $147,044 | $147,044 |
| 2012 | $39,849 | $108,000 | $0 | $147,849 | $147,849 |
| 2011 | $41,461 | $120,000 | $0 | $161,461 | $161,461 |
| 2010 | $65,058 | $120,000 | $0 | $185,058 | $185,058 |
| 2009 | $67,537 | $145,000 | $0 | $212,537 | $212,537 |
| 2008 | $68,744 | $145,000 | $0 | $213,744 | $213,744 |
| 2007 | $70,805 | $203,000 | $0 | $273,805 | $273,805 |
Deed and Sales History
| 1 | 06/21/2005 | DECREE | Divorce Decree/Legal Separation | TAYLOR, GARY A | TAYLOR, GARY ALAN | | | $0.00 | 52923 | 4138512 |
| 2 | 08/01/1990 | OTHER | Other - Misc. Documents | LONG, WILLIAM T | TAYLOR, GARY A | | | $29,798.00 | 4874 | 0 |
| 3 | 08/01/1990 | WD | Warranty Deed | TAYLOR, GARY A | TAYLOR, GARY A | | | $56,202.00 | 4875 | 90016145 |
| 4 | 04/01/1980 | CD | DNU - Correction Deed | LONG, WILLIAM T | LONG, WILLIAM T | | | $0.00 | 1327 | 367810 |
| 5 | 01/01/1900 | OTHER | Other - Misc. Documents | Unknown | LONG, WILLIAM T | | | $0.00 | 0 | 0 |
Payout Agreement
| No payout information available.. |