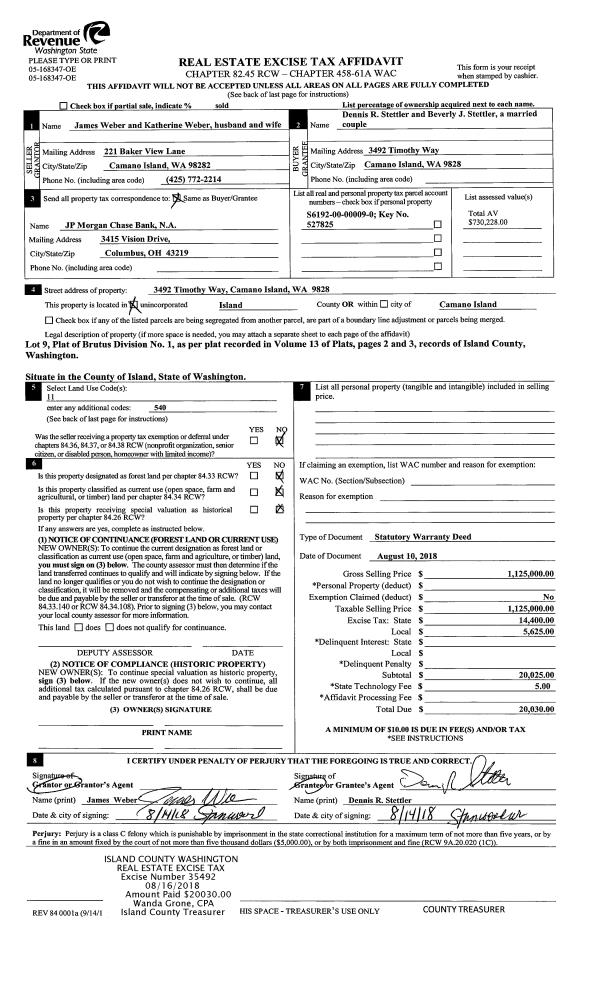
Property
Account |
| Property ID: | 501059 | Abbreviated Legal Description: | W/2 NW NE NW TGW SUB EZ FR 517-1860 |
| Geographic ID: | R23118-517-1670 | Agent Code: | |
| Type: | Real | | |
| Tax Area: | 312 - APPRAISER-Cpvl Schl Dist, outside Cpvl, improved, greater than 1 acre | Land Use Code | 11 |
| Open Space: | N | DFL | N |
| Historic Property: | N | Remodel Property: | N |
| Multi-Family Redevelopment: | N | | |
| Township: | 31 | Section: | 18 |
| Range: | R2 |
Location |
| Address: | 105 E SQUIRE RD COUPEVILLE, WA 98239 | Mapsco: | |
| Neighborhood: | Cycle 2 | Map ID: | 491 |
| Neighborhood CD: | 2 |
Owner |
| Name: | MORRELL, JENNIFER | Owner ID: | 292880 |
| Mailing Address: | FRANK MORRELL 105 E SQUIRE RD COUPEVILLE, WA 98239 | % Ownership: | 100.0000000000% |
| | | Exemptions: | |
Taxes and Assessment Details
Values
| (+) Improvement Homesite Value: | + | $0 | |
| (+) Improvement Non-Homesite Value: | + | $323,905 | |
| (+) Land Homesite Value: | + | $0 | |
| (+) Land Non-Homesite Value: | + | $340,327 | |
| (+) Curr Use (HS): | + | $0 | $0 |
| (+) Curr Use (NHS): | + | $0 | $0 |
| | | -------------------------- | |
| (=) Market Value: | = | $664,232 | |
| (–) Productivity Loss: | – | $0 | |
| | | -------------------------- | |
| (=) Subtotal: | = | $664,232 | |
| (+) Senior Appraised Value: | + | $0 | |
| (+) Non-Senior Appraised Value: | + | $664,232 | |
| | | -------------------------- | |
| (=) Total Appraised Value: | = | $664,232 | |
| (–) Senior Exemption Loss: | – | $0 | |
| (–) Exemption Loss: | – | $0 | |
| | | -------------------------- | |
| (=) Taxable Value: | = | $664,232 | |
Taxing Jurisdiction
| Owner: | MORRELL, JENNIFER | | |
| % Ownership: | 100.0000000000% | | |
| Total Value: | $664,232 | | |
| Tax Area: | 312 - APPRAISER-Cpvl Schl Dist, outside Cpvl, improved, greater than 1 acre |
| CF | Conservation Futures | 0.0316035091 | $664,232 | $664,232 | $20.99 | | |
| CEM2 | Cemetery #2 | 0.0095056933 | $664,232 | $664,232 | $6.31 | | |
| FIRE5 | Fire & Rescue Dist #5 C Whidbey GEN | 1.2008080668 | $664,232 | $664,232 | $797.62 | | |
| FIRE5BOND | Fire & Rescue Dist #5 C Whidbey BOND | 0.1400090713 | $664,232 | $664,232 | $93.00 | | |
| HOBOND | Hospital BOND | 0.1910887512 | $664,232 | $664,232 | $126.93 | | |
| HOGEN | Hospital GEN | 0.3902502903 | $664,232 | $664,232 | $259.22 | | |
| CE | County Current Expense | 0.3708482477 | $664,232 | $664,232 | $246.33 | | |
| CR | County Roads | 0.4584763726 | $664,232 | $664,232 | $304.53 | | |
| ISLANDEMS | Hospital GEN (EMS) | 0.5000000000 | $664,232 | $664,232 | $332.12 | | |
| LIB | Library Sno-Isle GEN | 0.3153421757 | $664,232 | $664,232 | $209.46 | | |
| LIBCAP | Library Sno-Isle BOND (Cap Fac Imp Area) | 0.0543427938 | $664,232 | $664,232 | $36.10 | | |
| POCOUP | Port of Coupeville GEN | 0.1093371703 | $664,232 | $664,232 | $72.63 | | |
| POCOUPIDD | Port of Coupeville IDD | 0.3409740022 | $664,232 | $664,232 | $226.49 | | |
| COUPSDTECH | School 204 CP (TECH) | 0.7545480007 | $664,232 | $664,232 | $501.19 | | |
| SCH204MO | School 204 Enrichment | 0.6716186034 | $664,232 | $664,232 | $446.11 | | |
| ST | State School | 1.3035497053 | $664,232 | $664,232 | $865.86 | | |
| ST2 | State School Part 2 | 0.8169543533 | $664,232 | $664,232 | $542.65 | | |
| | Total Tax Rate: | 7.6592568070 | | | | | |
| | | | | Taxes w/Current Exemptions: | $5,087.54 | | |
| | | | | Taxes w/o Exemptions: | $5,087.54 | | |
Improvement / Building
| Improvement #1: | RESIDENTIAL | State Code: | Y | 1704.0 sqft | Value: | $323,905 |
| Bathrooms: | 2 | Bedrooms: | 3 | | Ceiling: | DRYWALL PAINTED | Cooling: | HEAT PUMP/CONV/V | | Exterior Wall/Cover: | PLY/HARDBOARD T-111 | Floor Covering: | CARPET 100% | | Floor Structure: | WOOD W/SUBFLOOR | Foundation: | CONCRETE | | Interior Finish: | DRYWALL PAINT | Plumbing Fixture Cnt: | 9 | | Roof Slope: | 6" IN 12" | Roof Structure/Cover: | CJ ASPHALT |
|
| | Type | Description | Class CD | Sub Class CD | Year Built | Area |
| | AGR | ATTACHED GARAGE | 3 | 0 | 2022 | 400.0 |
| | BAS | BASE/MAIN FLOOR | 3 | 0 | 2022 | 1704.0 |
Sketch
Property Image
Land
| 1 | HS | HOMESITE | 1.0000 | 43560.00 | 0.00 | 0.00 | 1.00 | $220,000 | $0 |
| 2 | 91 | UNDEVELOPED LAND-METES AND BOUNDS | 4.0700 | 177289.20 | 0.00 | 0.00 | 1.00 | $120,327 | $0 |
Roll Value History
| 2026 | N/A | N/A | N/A | N/A | N/A |
| 2025 | $323,905 | $340,327 | $0 | $664,232 | $664,232 |
| 2024 | $327,306 | $300,000 | $0 | $627,306 | $627,306 |
| 2023 | $333,257 | $280,000 | $0 | $613,257 | $613,257 |
| 2022 | $99,787 | $130,000 | $0 | $229,787 | $229,787 |
| 2021 | $4,000 | $100,000 | $0 | $104,000 | $104,000 |
| 2020 | $4,000 | $100,000 | $0 | $104,000 | $104,000 |
| 2019 | $4,000 | $100,000 | $0 | $104,000 | $104,000 |
| 2018 | $4,000 | $135,000 | $0 | $139,000 | $139,000 |
| 2017 | $4,000 | $135,000 | $0 | $139,000 | $139,000 |
| 2016 | $4,000 | $140,000 | $0 | $144,000 | $144,000 |
| 2015 | $1 | $123,201 | $0 | $123,202 | $123,202 |
| 2014 | $1 | $123,201 | $0 | $123,202 | $123,202 |
| 2013 | $8,833 | $123,201 | $0 | $132,034 | $132,034 |
| 2012 | $8,926 | $123,201 | $0 | $132,127 | $132,127 |
| 2011 | $9,019 | $136,890 | $0 | $145,909 | $145,909 |
| 2010 | $8,000 | $136,890 | $0 | $144,890 | $144,890 |
| 2009 | $4,000 | $152,100 | $0 | $156,100 | $156,100 |
| 2008 | $4,000 | $169,845 | $0 | $173,845 | $173,845 |
| 2007 | $4,000 | $116,610 | $0 | $120,610 | $120,610 |
Deed and Sales History
| 1 | 07/13/2021 | WD | Warranty Deed | PICKETT, SHAWNNA | MORRELL, JENNIFER | | | $128,000.00 | 49514 | 4526222 |
| 2 | 08/14/2018 | QCD | Quit Claim Deed | PICKETT, JONATHAN E | PICKETT, SHAWNNA | | | $0.00 | 36275 | 4453348 |
| 3 | 06/01/1995 | WD | Warranty Deed | HISLOP, J S | PICKETT, JONATHAN E | | | $19,000.00 | 52192 | 95010113 |
| 4 | 06/01/1981 | EXECUTORD | Executor Deed | BROWN, ARTHUR | HISLOP, J S | | | $16,500.00 | 11905 | 384546 |
| 5 | 12/01/1979 | CD | DNU - Correction Deed | PICKETT, JON | BROWN, ARTHUR | | | $0.00 | 95895 | 363173 |
| 6 | 01/01/1900 | OTHER | Other - Misc. Documents | Unknown | PICKETT, JON | | | $0.00 | 0 | 0 |
Payout Agreement
| No payout information available.. |