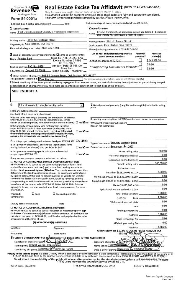
Property
Account |
| Property ID: | 501718 | Abbreviated Legal Description: | TR 6-A - SP 79-265 IN N/2 N/2 SW BG W/4 CR OF SEC 30 S670.65' N89*E1211. 45' TPB N304.89' N89*E357. 37' S304.89' S89*W357.37' TPB FR 250-2000 |
| Geographic ID: | R33230-225-1350 | Agent Code: | |
| Type: | Real | | |
| Tax Area: | 592 - APPRAISER-Stan/Cam Schl Dist, Special Dist, improved, greater than 1 acre | Land Use Code | 11 |
| Open Space: | N | DFL | N |
| Historic Property: | N | Remodel Property: | N |
| Multi-Family Redevelopment: | N | | |
| Township: | 32 | Section: | 30 |
| Range: | R3 |
Location |
| Address: | 96 E CROSS ISLAND RD CAMANO ISLAND, WA 98282 | Mapsco: | |
| Neighborhood: | North Camano | Map ID: | 988 |
| Neighborhood CD: | 06-C |
Owner |
| Name: | UHRICH, ROBERT | Owner ID: | 285540 |
| Mailing Address: | 96 E CROSS ISLAND RD CAMANO ISLAND, WA 98282 | % Ownership: | 100.0000000000% |
| | | Exemptions: | |
Taxes and Assessment Details
Values
| (+) Improvement Homesite Value: | + | $0 | |
| (+) Improvement Non-Homesite Value: | + | $73,619 | |
| (+) Land Homesite Value: | + | $0 | |
| (+) Land Non-Homesite Value: | + | $310,000 | |
| (+) Curr Use (HS): | + | $0 | $0 |
| (+) Curr Use (NHS): | + | $0 | $0 |
| | | -------------------------- | |
| (=) Market Value: | = | $383,619 | |
| (–) Productivity Loss: | – | $0 | |
| | | -------------------------- | |
| (=) Subtotal: | = | $383,619 | |
| (+) Senior Appraised Value: | + | $0 | |
| (+) Non-Senior Appraised Value: | + | $383,619 | |
| | | -------------------------- | |
| (=) Total Appraised Value: | = | $383,619 | |
| (–) Senior Exemption Loss: | – | $0 | |
| (–) Exemption Loss: | – | $0 | |
| | | -------------------------- | |
| (=) Taxable Value: | = | $383,619 | |
Taxing Jurisdiction
| Owner: | UHRICH, ROBERT | | |
| % Ownership: | 100.0000000000% | | |
| Total Value: | $383,619 | | |
| Tax Area: | 592 - APPRAISER-Stan/Cam Schl Dist, Special Dist, improved, greater than 1 acre |
| CF | Conservation Futures | 0.0316035091 | $383,619 | $383,619 | $12.12 | | |
| EMS1 | Fire & Rescue Dist #1 Camano GEN (EMS) | 0.3677864386 | $383,619 | $383,619 | $141.09 | | |
| FIRE1 | Fire & Rescue Dist #1 Camano GEN | 1.2502910536 | $383,619 | $383,619 | $479.64 | | |
| FIRE1BOND | Fire & Rescue Dist #1 Camano BOND | 0.1570001679 | $383,619 | $383,619 | $60.23 | | |
| CE | County Current Expense | 0.3708482477 | $383,619 | $383,619 | $142.26 | | |
| CR | County Roads | 0.4584763726 | $383,619 | $383,619 | $175.88 | | |
| LCIB | Library Sno-Isle BOND (Camano Island) | 0.0396325772 | $383,619 | $383,619 | $15.20 | | |
| LIB | Library Sno-Isle GEN | 0.3153421757 | $383,619 | $383,619 | $120.97 | | |
| SCH205_401 | School 205-401 Enrichment | 1.2698420524 | $383,619 | $383,619 | $487.14 | | |
| SCH205BOND | School 205-401 BOND | 0.9396497583 | $383,619 | $383,619 | $360.47 | | |
| ST | State School | 1.3035497053 | $383,619 | $383,619 | $500.07 | | |
| ST2 | State School Part 2 | 0.8169543533 | $383,619 | $383,619 | $313.40 | | |
| | Total Tax Rate: | 7.3209764117 | | | | | |
| | | | | Taxes w/Current Exemptions: | $2,808.47 | | |
| | | | | Taxes w/o Exemptions: | $2,808.47 | | |
Improvement / Building
| Improvement #1: | MANUFACTURED HOME | State Code: | Y | 1536.0 sqft | Value: | $73,619 |
| Bathrooms: | 0 | Bedrooms: | 0 | | Ceiling: | PLASTER PAINTED | Cooling: | EVAP NO DUCT | | Exterior Wall/Cover: | VINYL | Floor Covering: | CARPET 100% | | Floor Structure: | SLAB ON GRADE | Foundation: | SLAB | | Heating: | FHA ELECTRIC | Interior Finish: | PLASTER | | Plumbing Fixture Cnt: | 1 | Roof Slope: | FLAT | | Roof Structure/Cover: | CJ ALUMINIUM HEAVY |   |   |
|
| | Type | Description | Class CD | Sub Class CD | Year Built | Area |
| | BAS | BASE/MAIN FLOOR | 4 | 0 | 1985 | 1536.0 |
| | OWP | OPEN WOOD PORCH W/STEPS | 4 | 0 | 1985 | 538.0 |
| | oPOL | POLE BARN | 4 | 0 | 1985 | 0.0 |
Sketch
Property Image
Land
| 1 | 18 | AC (02.01-03.00) | 0.0000 | 0.00 | 0.00 | 0.00 | 1.00 | $310,000 | $0 |
Roll Value History
| 2026 | N/A | N/A | N/A | N/A | N/A |
| 2025 | $73,619 | $310,000 | $0 | $383,619 | $383,619 |
| 2024 | $76,967 | $300,000 | $0 | $376,967 | $376,967 |
| 2023 | $71,148 | $300,000 | $0 | $371,148 | $371,148 |
| 2022 | $58,907 | $260,000 | $0 | $318,907 | $318,907 |
| 2021 | $54,656 | $230,000 | $0 | $284,656 | $284,656 |
| 2020 | $55,417 | $150,000 | $0 | $205,417 | $205,417 |
| 2019 | $47,403 | $190,000 | $0 | $237,403 | $237,403 |
| 2018 | $49,029 | $180,000 | $0 | $229,029 | $229,029 |
| 2017 | $51,469 | $120,000 | $0 | $171,469 | $171,469 |
| 2016 | $43,170 | $120,000 | $0 | $163,170 | $163,170 |
| 2015 | $44,612 | $100,000 | $0 | $144,612 | $144,612 |
| 2014 | $46,775 | $100,000 | $0 | $146,775 | $146,775 |
| 2013 | $48,217 | $100,000 | $0 | $148,217 | $148,217 |
| 2012 | $49,659 | $100,000 | $0 | $149,659 | $149,659 |
| 2011 | $51,101 | $125,000 | $0 | $176,101 | $176,101 |
| 2010 | $59,048 | $125,000 | $0 | $184,048 | $184,048 |
| 2009 | $62,877 | $150,000 | $0 | $212,877 | $212,877 |
| 2008 | $65,406 | $150,000 | $0 | $215,406 | $215,406 |
| 2007 | $67,291 | $150,000 | $0 | $217,291 | $217,291 |
Deed and Sales History
| 1 | 06/16/2018 | WD | Warranty Deed | REMINGTON, CHARLES E | UHRICH, ROBERT | | | $208,971.00 | 34647 | 4446685 |
| 2 | 05/01/1986 | WD | Warranty Deed | REMINGTON, CHARLES E | REMINGTON, CHARLES E | | | $18,000.00 | 61294 | 86006111 |
| 3 | 04/01/1986 | OTHER | Other - Misc. Documents | GARRISON, COMPANY | REMINGTON, CHARLES E | | | $25,999.00 | 11111111 | 0 |
| 4 | 09/01/1985 | TRUSTEED | Trustee's Deed | CASSELLA, CHARLES Q | GARRISON, COMPANY | | | $0.00 | 52800 | 85011076 |
| 5 | 08/01/1983 | WD | Warranty Deed | GARRISON, CO | CASSELLA, CHARLES Q | | | $22,500.00 | 32304 | 413617 |
| 6 | 01/01/1900 | OTHER | Other - Misc. Documents | Unknown | GARRISON, CO | | | $0.00 | 0 | 0 |
Payout Agreement
| No payout information available.. |