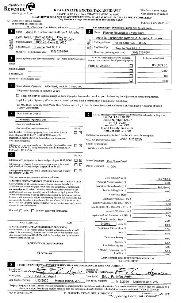
Property
Account |
| Property ID: | 502316 | Abbreviated Legal Description: | REPLACES 2610850 68 BRUNN DC - LOT 0 & 1/16 INT IN COMM LOT, WATER SYSTEM, TIDES & EZ UNREC PLAT OF MENLO BEACH # 2 TGW EZ TGW & SUB EZ AF#96011184 |
| Geographic ID: | R22915-268-0870 | Agent Code: | |
| Type: | Real | | |
| Tax Area: | 710 - APPRAISER-S Whid Schl Dist, outside Langley, improved & 1 acre or less | Land Use Code | 11 |
| Open Space: | N | DFL | N |
| Historic Property: | N | Remodel Property: | N |
| Multi-Family Redevelopment: | N | | |
| Township: | 29 | Section: | 15 |
| Range: | R2 |
Location |
| Address: | 5788 MENLO BEACH LN FREELAND, WA 98249 | Mapsco: | |
| Neighborhood: | Cycle 3 | Map ID: | 331 |
| Neighborhood CD: | 3 |
Owner |
| Name: | ATWOOD, JULIA | Owner ID: | 292081 |
| Mailing Address: | ANDREA SUNDBERG 25400 SE 248TH ST RAVENSDALE, WA 98051 | % Ownership: | 100.0000000000% |
| | | Exemptions: | |
Taxes and Assessment Details
Values
| (+) Improvement Homesite Value: | + | $0 | |
| (+) Improvement Non-Homesite Value: | + | $254,842 | |
| (+) Land Homesite Value: | + | $0 | |
| (+) Land Non-Homesite Value: | + | $500,000 | |
| (+) Curr Use (HS): | + | $0 | $0 |
| (+) Curr Use (NHS): | + | $0 | $0 |
| | | -------------------------- | |
| (=) Market Value: | = | $754,842 | |
| (–) Productivity Loss: | – | $0 | |
| | | -------------------------- | |
| (=) Subtotal: | = | $754,842 | |
| (+) Senior Appraised Value: | + | $0 | |
| (+) Non-Senior Appraised Value: | + | $754,842 | |
| | | -------------------------- | |
| (=) Total Appraised Value: | = | $754,842 | |
| (–) Senior Exemption Loss: | – | $0 | |
| (–) Exemption Loss: | – | $0 | |
| | | -------------------------- | |
| (=) Taxable Value: | = | $754,842 | |
Taxing Jurisdiction
| Owner: | ATWOOD, JULIA | | |
| % Ownership: | 100.0000000000% | | |
| Total Value: | $754,842 | | |
| Tax Area: | 710 - APPRAISER-S Whid Schl Dist, outside Langley, improved & 1 acre or less |
| CF | Conservation Futures | 0.0316035091 | $754,842 | $754,842 | $23.86 | | |
| FIRE3 | Fire & Rescue Dist #3 S Whidbey GEN | 1.2004855531 | $754,842 | $754,842 | $906.18 | | |
| HOBOND | Hospital BOND | 0.1910887512 | $754,842 | $754,842 | $144.24 | | |
| HOGEN | Hospital GEN | 0.3902502903 | $754,842 | $754,842 | $294.58 | | |
| CE | County Current Expense | 0.3708482477 | $754,842 | $754,842 | $279.93 | | |
| CR | County Roads | 0.4584763726 | $754,842 | $754,842 | $346.08 | | |
| ISLANDEMS | Hospital GEN (EMS) | 0.5000000000 | $754,842 | $754,842 | $377.42 | | |
| LIB | Library Sno-Isle GEN | 0.3153421757 | $754,842 | $754,842 | $238.03 | | |
| PORTWHID | Port of S Whidbey GEN | 0.1094540357 | $754,842 | $754,842 | $82.62 | | |
| SCH206BOND | School 206 BOND | 0.3161759235 | $754,842 | $754,842 | $238.66 | | |
| SCH206MO | School 206 Enrichment | 0.4547169547 | $754,842 | $754,842 | $343.24 | | |
| ST | State School | 1.3035497053 | $754,842 | $754,842 | $983.97 | | |
| ST2 | State School Part 2 | 0.8169543533 | $754,842 | $754,842 | $616.67 | | |
| SWHIDPRBD | P & R S Whidbey BOND | 0.0152817568 | $754,842 | $754,842 | $11.54 | | |
| SWHIDPRBD2 | P & R S Whidbey BOND2 | 0.0138911264 | $754,842 | $754,842 | $10.49 | | |
| SWHIDPRMT | P & R S Whidbey GEN | 0.2053334452 | $754,842 | $754,842 | $154.99 | | |
| | Total Tax Rate: | 6.6934522006 | | | | | |
| | | | | Taxes w/Current Exemptions: | $5,052.50 | | |
| | | | | Taxes w/o Exemptions: | $5,052.50 | | |
Improvement / Building
| Improvement #1: | RESIDENTIAL | State Code: | Y | 1720.0 sqft | Value: | $254,842 |
| Bathrooms: | 1.5 | Bedrooms: | 3 | | Ceiling: | BEAM PAINTED | Exterior Wall/Cover: | WOOD SIDING | | Floor Covering: | CARPET/VINYL 60-40 | Floor Structure: | WOOD W/SUBFLOOR | | Foundation: | CONCRETE | Heating: | BASEBOARD ELECTRIC | | Interior Finish: | DRYWALL PAINT | Plumbing Fixture Cnt: | 8 | | Roof Slope: | 3" IN 12" | Roof Structure/Cover: | BEAM ALUMINUM HEAVY |
|
| | Type | Description | Class CD | Sub Class CD | Year Built | Area |
| | BAS | BASE/MAIN FLOOR | 3 | 0 | 1972 | 1720.0 |
| | OP3 | OPEN PORCH W/ROOF | 3 | 0 | 1972 | 48.0 |
| | UTY | STORAGE/UTILITY | 3 | 0 | 1972 | 32.0 |
| | OWP | OPEN WOOD PORCH W/STEPS | 3 | 0 | 1972 | 392.0 |
| | DGR | DETACHED GARAGE | 3 | 0 | 1972 | 624.0 |
| | OCP | OPEN CARPORT | 3 | 0 | 1972 | 308.0 |
Sketch
Property Image
Land
| 1 | LB | LOW BANK | 0.0000 | 0.00 | 25.00 | 0.00 | 1.00 | $500,000 | $0 |
Roll Value History
| 2026 | N/A | N/A | N/A | N/A | N/A |
| 2025 | $254,842 | $500,000 | $0 | $754,842 | $754,842 |
| 2024 | $259,424 | $500,000 | $0 | $759,424 | $759,424 |
| 2023 | $263,339 | $500,000 | $0 | $763,339 | $763,339 |
| 2022 | $242,008 | $450,000 | $0 | $692,008 | $692,008 |
| 2021 | $213,528 | $400,000 | $0 | $613,528 | $613,528 |
| 2020 | $208,920 | $300,000 | $0 | $508,920 | $508,920 |
| 2019 | $151,400 | $300,000 | $0 | $451,400 | $451,400 |
| 2018 | $151,946 | $250,000 | $0 | $401,946 | $401,946 |
| 2017 | $153,039 | $250,000 | $0 | $403,039 | $403,039 |
| 2016 | $155,225 | $250,000 | $0 | $405,225 | $405,225 |
| 2015 | $157,412 | $250,000 | $0 | $407,412 | $407,412 |
| 2014 | $159,598 | $250,000 | $0 | $409,598 | $409,598 |
| 2013 | $161,719 | $206,490 | $0 | $368,209 | $368,209 |
| 2012 | $163,712 | $206,490 | $0 | $370,202 | $370,202 |
| 2011 | $165,705 | $206,490 | $0 | $372,195 | $372,195 |
| 2010 | $172,872 | $206,490 | $0 | $379,362 | $379,362 |
| 2009 | $180,168 | $246,853 | $0 | $427,021 | $427,021 |
| 2008 | $164,914 | $282,542 | $0 | $447,456 | $447,456 |
| 2007 | $119,252 | $322,421 | $0 | $441,673 | $441,673 |
Deed and Sales History
| 1 | 10/01/2019 | QCD | Quit Claim Deed | FULLER, FLOYD | ATWOOD, JULIA | | | $0.00 | 40540 | 4472598 |
| 2 | 10/11/2001 | ESTSEPPROP | Establish Separate Property | FULLER, FLOYD L | FULLER, FLOYD L | | | $0.00 | 14088 | 4000733 |
| 3 | 06/01/1984 | EZ | Easement | FULLER, FLOYD L | FULLER, FLOYD L | | | $0.00 | 60685 | 415182 |
| 4 | 06/01/1984 | EZ | Easement | FULLER, FLOYD L | FULLER, FLOYD L | | | $0.00 | 60685 | 415182 |
| 5 | 01/01/1900 | OTHER | Other - Misc. Documents | Unknown | FULLER, FLOYD L | | | $0.00 | 0 | 0 |
Payout Agreement
| No payout information available.. |