Property
Account |
| Property ID: | 502566 | Abbreviated Legal Description: | LOST MEADOWS LOT 8 |
| Geographic ID: | S7412-00-00008-0 | Agent Code: | |
| Type: | Real | | |
| Tax Area: | 510 - APPRAISER-Stan/Cam Schl Dist, improved & 1 acre or less | Land Use Code | 11 |
| Open Space: | N | DFL | N |
| Historic Property: | N | Remodel Property: | N |
| Multi-Family Redevelopment: | N | | |
| Township: | | Section: | |
| Range: | |
Location |
| Address: | 988 GARY LN CAMANO ISLAND, WA 98282 | Mapsco: | |
| Neighborhood: | Cycle 5 | Map ID: | 483 |
| Neighborhood CD: | 5 |
Owner |
| Name: | RUPIK, MATTHEW | Owner ID: | 294346 |
| Mailing Address: | BRITTANY RUPIK 988 GARY LN CAMANO ISLAND, WA 98282 | % Ownership: | 100.0000000000% |
| | | Exemptions: | |
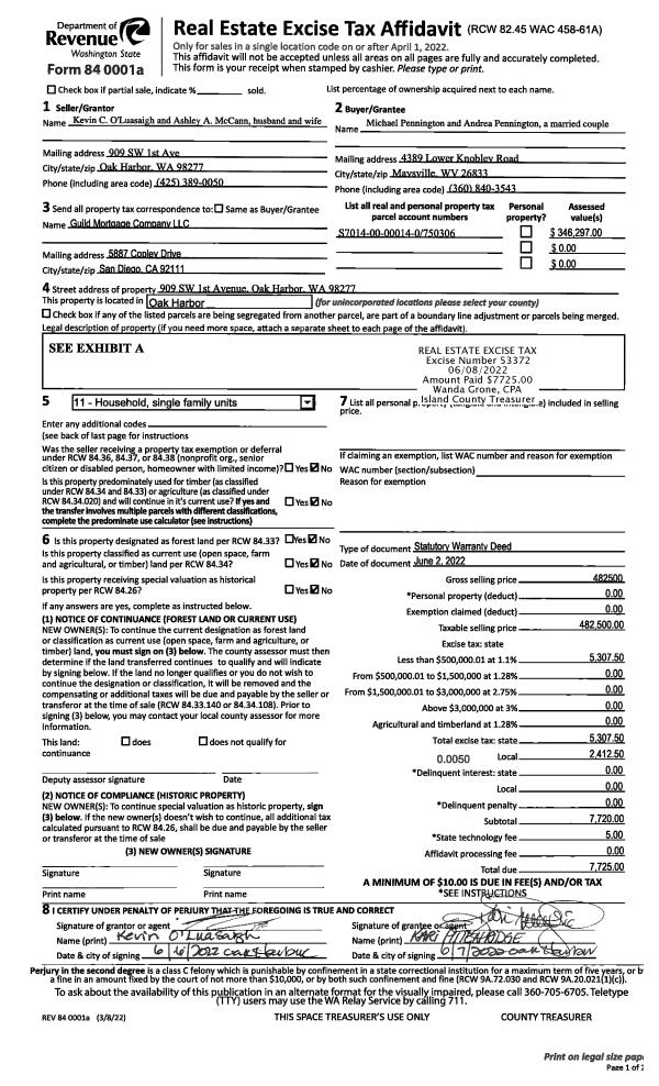
Taxes and Assessment Details
Values
| (+) Improvement Homesite Value: | + | $0 | |
| (+) Improvement Non-Homesite Value: | + | $111,737 | |
| (+) Land Homesite Value: | + | $0 | |
| (+) Land Non-Homesite Value: | + | $210,000 | |
| (+) Curr Use (HS): | + | $0 | $0 |
| (+) Curr Use (NHS): | + | $0 | $0 |
| | | -------------------------- | |
| (=) Market Value: | = | $321,737 | |
| (–) Productivity Loss: | – | $0 | |
| | | -------------------------- | |
| (=) Subtotal: | = | $321,737 | |
| (+) Senior Appraised Value: | + | $0 | |
| (+) Non-Senior Appraised Value: | + | $321,737 | |
| | | -------------------------- | |
| (=) Total Appraised Value: | = | $321,737 | |
| (–) Senior Exemption Loss: | – | $0 | |
| (–) Exemption Loss: | – | $0 | |
| | | -------------------------- | |
| (=) Taxable Value: | = | $321,737 | |
Taxing Jurisdiction
| Owner: | RUPIK, MATTHEW | | |
| % Ownership: | 100.0000000000% | | |
| Total Value: | $321,737 | | |
| Tax Area: | 510 - APPRAISER-Stan/Cam Schl Dist, improved & 1 acre or less |
| CF | Conservation Futures | 0.0316035091 | $321,737 | $321,737 | $10.17 | | |
| EMS1 | Fire & Rescue Dist #1 Camano GEN (EMS) | 0.3677864386 | $321,737 | $321,737 | $118.33 | | |
| FIRE1 | Fire & Rescue Dist #1 Camano GEN | 1.2502910536 | $321,737 | $321,737 | $402.26 | | |
| FIRE1BOND | Fire & Rescue Dist #1 Camano BOND | 0.1570001679 | $321,737 | $321,737 | $50.51 | | |
| CE | County Current Expense | 0.3708482477 | $321,737 | $321,737 | $119.32 | | |
| CR | County Roads | 0.4584763726 | $321,737 | $321,737 | $147.51 | | |
| LCIB | Library Sno-Isle BOND (Camano Island) | 0.0396325772 | $321,737 | $321,737 | $12.75 | | |
| LIB | Library Sno-Isle GEN | 0.3153421757 | $321,737 | $321,737 | $101.46 | | |
| SCH205_401 | School 205-401 Enrichment | 1.2698420524 | $321,737 | $321,737 | $408.56 | | |
| SCH205BOND | School 205-401 BOND | 0.9396497583 | $321,737 | $321,737 | $302.32 | | |
| ST | State School | 1.3035497053 | $321,737 | $321,737 | $419.40 | | |
| ST2 | State School Part 2 | 0.8169543533 | $321,737 | $321,737 | $262.84 | | |
| | Total Tax Rate: | 7.3209764117 | | | | | |
| | | | | Taxes w/Current Exemptions: | $2,355.43 | | |
| | | | | Taxes w/o Exemptions: | $2,355.43 | | |
Improvement / Building
| Improvement #1: | MANUFACTURED HOME | State Code: | Y | 1296.0 sqft | Value: | $111,737 |
| Bathrooms: | 2 | Bedrooms: | 3 | | Ceiling: | PLASTER PAINTED | Cooling: | EVAP NO DUCT | | Exterior Wall/Cover: | VINYL | Floor Covering: | CARPET 100% | | Floor Structure: | SLAB ON GRADE | Foundation: | SLAB | | Heating: | FHA ELECTRIC | Interior Finish: | PLASTER | | Plumbing Fixture Cnt: | 1 | Roof Slope: | FLAT | | Roof Structure/Cover: | CJ ALUMINIUM HEAVY |   |   |
|
| | Type | Description | Class CD | Sub Class CD | Year Built | Area |
| | BAS | BASE/MAIN FLOOR | 4 | 0 | 1992 | 1296.0 |
| | DGR | DETACHED GARAGE | 4 | 0 | 1992 | 576.0 |
| | OWP | OPEN WOOD PORCH W/STEPS | 4 | 0 | 1992 | 242.0 |
| | OWC | OPEN WOOD PORCH W/STEPS/ROOF/C | 4 | 0 | 1992 | 40.0 |
Sketch
Property Image
Land
| 1 | 14 | SQ (08001-12000) | 0.0000 | 0.00 | 0.00 | 0.00 | 1.00 | $210,000 | $0 |
Roll Value History
| 2026 | N/A | N/A | N/A | N/A | N/A |
| 2025 | $111,737 | $210,000 | $0 | $321,737 | $321,737 |
| 2024 | $115,460 | $210,000 | $0 | $325,460 | $325,460 |
| 2023 | $103,637 | $210,000 | $0 | $313,637 | $313,637 |
| 2022 | $96,773 | $210,000 | $0 | $306,773 | $306,773 |
| 2021 | $86,698 | $170,000 | $0 | $256,698 | $256,698 |
| 2020 | $75,812 | $150,000 | $0 | $225,812 | $225,812 |
| 2019 | $61,435 | $170,000 | $0 | $231,435 | $231,435 |
| 2018 | $62,289 | $120,000 | $0 | $182,289 | $52,720 |
| 2017 | $63,995 | $120,000 | $0 | $183,995 | $52,720 |
| 2016 | $65,702 | $90,000 | $0 | $155,702 | $52,720 |
| 2015 | $52,165 | $65,000 | $0 | $117,165 | $46,866 |
| 2014 | $53,323 | $65,000 | $0 | $118,323 | $47,329 |
| 2013 | $54,482 | $65,000 | $0 | $119,482 | $47,793 |
| 2012 | $55,641 | $60,000 | $0 | $115,641 | $46,256 |
| 2011 | $56,799 | $75,000 | $0 | $131,799 | $52,720 |
| 2010 | $53,886 | $75,000 | $0 | $128,886 | $128,886 |
| 2009 | $56,169 | $100,000 | $0 | $156,169 | $156,169 |
| 2008 | $57,973 | $113,000 | $0 | $170,973 | $170,973 |
| 2007 | $59,292 | $88,000 | $0 | $147,292 | $147,292 |
Deed and Sales History
| 1 | 05/14/2020 | WD | Warranty Deed | FLYGARE, DAVID C | RUPIK, MATTHEW | | | $286,000.00 | 43160 | 4487662 |
| 2 | 10/26/2006 | WD | Warranty Deed | KINBERG, BOBBIE J | FLYGARE, DAVID C | | | $173,000.00 | 64684 | 4185833 |
| 3 | 08/08/2005 | ESTSEPPROP | Establish Separate Property | DIEL, BOBBIE J | KINBERG, BOBBIE J | | | $0.00 | 53942 | 4143862 |
| 4 | 10/01/1997 | OTHER | Other - Misc. Documents | DIEL, BOBBIE J | DIEL, BOBBIE J | | | $34,153.00 | 73767 | 0 |
| 5 | 10/01/1997 | WD | Warranty Deed | EGAAS, GAIL E | DIEL, BOBBIE J | | | $64,847.00 | 73766 | 97018005 |
| 6 | 09/01/1993 | OTHER | Other - Misc. Documents | EGAAS, GAIL E | EGAAS, GAIL E | | | $76,000.00 | 33753 | 0 |
| 7 | 09/01/1993 | WD | Warranty Deed | NETTEN, CORRY/MARGUERITE | EGAAS, GAIL E | | | $4,000.00 | 33752 | 93019501 |
| 8 | 12/01/1991 | WD | Warranty Deed | REYNOLDS, MERVIN A | NETTEN, CORRY/MARGUERITE | | | $22,000.00 | 14580 | 91020056 |
| 9 | 01/01/1987 | WD | Warranty Deed | HOME, SAVINGS & | REYNOLDS, MERVIN A | | | $7,500.00 | 70253 | 87001641 |
| 10 | 06/01/1983 | TRUSTEED | Trustee's Deed | BRUTUS, INVESTMENTS | HOME, SAVINGS & | | | $0.00 | 31682 | 0 |
| 11 | 10/01/1980 | CD | DNU - Correction Deed | THE, HELM C | BRUTUS, INVESTMENTS | | | $0.00 | 3552 | 375447 |
| 12 | 06/01/1979 | EZ | Easement | Unknown | THE, HELM C | | | $34,500.00 | 92767 | 353572 |
Payout Agreement
| No payout information available.. |