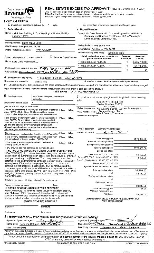
Property
Account |
| Property ID: | 502584 | Abbreviated Legal Description: | LOST MEADOWS LOT 10 EX PT DESC: BG SWCR LOT 10 N23*W114.28' TO NWCR LOT 10 ALG NLN LOT 10 ALG CUR/L 14' S16*E110.63' TPB |
| Geographic ID: | S7412-00-00010-0 | Agent Code: | |
| Type: | Real | | |
| Tax Area: | 510 - APPRAISER-Stan/Cam Schl Dist, improved & 1 acre or less | Land Use Code | 11 |
| Open Space: | N | DFL | N |
| Historic Property: | N | Remodel Property: | N |
| Multi-Family Redevelopment: | N | | |
| Township: | | Section: | |
| Range: | |
Location |
| Address: | 992 GARY LN CAMANO ISLAND, WA 98282 | Mapsco: | |
| Neighborhood: | Cycle 5 | Map ID: | 483 |
| Neighborhood CD: | 5 |
Owner |
| Name: | ALDAPA, SANTO MARIO | Owner ID: | 292163 |
| Mailing Address: | JANELLE TAYLOR ALDAPA 992 GARY LN CAMANO ISLAND, WA 98282 | % Ownership: | 100.0000000000% |
| | | Exemptions: | |
Taxes and Assessment Details
Values
| (+) Improvement Homesite Value: | + | $0 | |
| (+) Improvement Non-Homesite Value: | + | $114,404 | |
| (+) Land Homesite Value: | + | $0 | |
| (+) Land Non-Homesite Value: | + | $210,000 | |
| (+) Curr Use (HS): | + | $0 | $0 |
| (+) Curr Use (NHS): | + | $0 | $0 |
| | | -------------------------- | |
| (=) Market Value: | = | $324,404 | |
| (–) Productivity Loss: | – | $0 | |
| | | -------------------------- | |
| (=) Subtotal: | = | $324,404 | |
| (+) Senior Appraised Value: | + | $0 | |
| (+) Non-Senior Appraised Value: | + | $324,404 | |
| | | -------------------------- | |
| (=) Total Appraised Value: | = | $324,404 | |
| (–) Senior Exemption Loss: | – | $0 | |
| (–) Exemption Loss: | – | $0 | |
| | | -------------------------- | |
| (=) Taxable Value: | = | $324,404 | |
Taxing Jurisdiction
| Owner: | ALDAPA, SANTO MARIO | | |
| % Ownership: | 100.0000000000% | | |
| Total Value: | $324,404 | | |
| Tax Area: | 510 - APPRAISER-Stan/Cam Schl Dist, improved & 1 acre or less |
| CF | Conservation Futures | 0.0316035091 | $324,404 | $324,404 | $10.25 | | |
| EMS1 | Fire & Rescue Dist #1 Camano GEN (EMS) | 0.3677864386 | $324,404 | $324,404 | $119.31 | | |
| FIRE1 | Fire & Rescue Dist #1 Camano GEN | 1.2502910536 | $324,404 | $324,404 | $405.60 | | |
| FIRE1BOND | Fire & Rescue Dist #1 Camano BOND | 0.1570001679 | $324,404 | $324,404 | $50.93 | | |
| CE | County Current Expense | 0.3708482477 | $324,404 | $324,404 | $120.30 | | |
| CR | County Roads | 0.4584763726 | $324,404 | $324,404 | $148.73 | | |
| LCIB | Library Sno-Isle BOND (Camano Island) | 0.0396325772 | $324,404 | $324,404 | $12.86 | | |
| LIB | Library Sno-Isle GEN | 0.3153421757 | $324,404 | $324,404 | $102.30 | | |
| SCH205_401 | School 205-401 Enrichment | 1.2698420524 | $324,404 | $324,404 | $411.94 | | |
| SCH205BOND | School 205-401 BOND | 0.9396497583 | $324,404 | $324,404 | $304.83 | | |
| ST | State School | 1.3035497053 | $324,404 | $324,404 | $422.88 | | |
| ST2 | State School Part 2 | 0.8169543533 | $324,404 | $324,404 | $265.02 | | |
| | Total Tax Rate: | 7.3209764117 | | | | | |
| | | | | Taxes w/Current Exemptions: | $2,374.95 | | |
| | | | | Taxes w/o Exemptions: | $2,374.95 | | |
Improvement / Building
| Improvement #1: | MANUFACTURED HOME | State Code: | Y | 1512.0 sqft | Value: | $114,404 |
| Bathrooms: | 2 | Bedrooms: | 3 | | Ceiling: | PLASTER PAINTED | Cooling: | EVAP NO DUCT | | Exterior Wall/Cover: | VINYL | Floor Covering: | VINYL 100% | | Floor Structure: | SLAB ON GRADE | Foundation: | SLAB | | Heating: | FHA GAS | Interior Finish: | PLASTER | | Plumbing Fixture Cnt: | 1 | Roof Slope: | FLAT | | Roof Structure/Cover: | CJ ALUMINIUM HEAVY |   |   |
|
| | Type | Description | Class CD | Sub Class CD | Year Built | Area |
| | BAS | BASE/MAIN FLOOR | 4 | 0 | 1989 | 1512.0 |
| | OWP | OPEN WOOD PORCH W/STEPS | 4 | 0 | 1989 | 96.0 |
| | OWP | OPEN WOOD PORCH W/STEPS | 4 | 0 | 1989 | 71.7 |
| | UTY | STORAGE/UTILITY | 4 | 0 | 1989 | 144.0 |
Sketch
Property Image
Land
| 1 | 14 | SQ (08001-12000) | 0.0000 | 0.00 | 0.00 | 0.00 | 1.00 | $210,000 | $0 |
Roll Value History
| 2026 | N/A | N/A | N/A | N/A | N/A |
| 2025 | $114,404 | $210,000 | $0 | $324,404 | $324,404 |
| 2024 | $117,769 | $210,000 | $0 | $327,769 | $327,769 |
| 2023 | $105,327 | $210,000 | $0 | $315,327 | $315,327 |
| 2022 | $96,703 | $210,000 | $0 | $306,703 | $306,703 |
| 2021 | $81,941 | $170,000 | $0 | $251,941 | $251,941 |
| 2020 | $81,671 | $150,000 | $0 | $231,671 | $231,671 |
| 2019 | $20,000 | $170,000 | $0 | $190,000 | $190,000 |
| 2018 | $54,612 | $120,000 | $0 | $174,612 | $174,612 |
| 2017 | $56,172 | $120,000 | $0 | $176,172 | $176,172 |
| 2016 | $56,952 | $90,000 | $0 | $146,952 | $146,952 |
| 2015 | $49,411 | $65,000 | $0 | $114,411 | $114,411 |
| 2014 | $51,567 | $65,000 | $0 | $116,567 | $116,567 |
| 2013 | $53,005 | $65,000 | $0 | $118,005 | $118,005 |
| 2012 | $54,442 | $60,000 | $0 | $114,442 | $114,442 |
| 2011 | $55,880 | $75,000 | $0 | $130,880 | $130,880 |
| 2010 | $52,369 | $75,000 | $0 | $127,369 | $127,369 |
| 2009 | $54,604 | $100,000 | $0 | $154,604 | $154,604 |
| 2008 | $56,343 | $113,000 | $0 | $169,343 | $169,343 |
| 2007 | $58,084 | $88,000 | $0 | $146,084 | $146,084 |
Deed and Sales History
| 1 | 09/27/2019 | WD | Warranty Deed | 201902WY, LLC | ALDAPA, SANTO MARIO | | | $285,000.00 | 40640 | 4473129 |
| 2 | 03/14/2019 | WD | Warranty Deed | SCOTT, MICHAEL T / SHIRLEY A | 201902WY, LLC | | | $150,500.00 | 37906 | 4460656 |
| 3 | 11/01/1996 | WD | Warranty Deed | GUEST, RICHARD A | SCOTT, MICHAEL T | | | $102,000.00 | 64028 | 96019613 |
| 4 | 10/01/1992 | OTHER | Other - Misc. Documents | PEARSON, DONALD V | PEARSON, DONALD V | | | $0.00 | 24242 | 0 |
| 5 | 10/01/1992 | WD | Warranty Deed | PEARSON, DONALD V | GUEST, RICHARD A | | | $52,000.00 | 24243 | 92020729 |
| 6 | 06/01/1989 | WD | Warranty Deed | PORTER, CARL H | PEARSON, DONALD V | | | $19,170.00 | 92458 | 89008397 |
| 7 | 05/01/1988 | WD | Warranty Deed | PORTER, CARL H | PORTER, CARL H | | | $4,500.00 | 81625 | 88006139 |
| 8 | 05/01/1988 | WD | Warranty Deed | HOME, SAVINGS & | PORTER, CARL H | | | $0.00 | 81652 | 88006221 |
| 9 | 02/01/1987 | OTHER | Other - Misc. Documents | HOME, SAVINGS & | HOME, SAVINGS & | | | $0.00 | 62024 | 87001768 |
| 10 | 07/01/1983 | OTHER | Other - Misc. Documents | HOME, SAVINGS & | HOME, SAVINGS & | | | $0.00 | 60645 | 415661 |
| 11 | 06/01/1983 | TRUSTEED | Trustee's Deed | BRUTUS, INVESTMENTS | HOME, SAVINGS & | | | $0.00 | 31682 | 0 |
| 12 | 10/01/1980 | CD | DNU - Correction Deed | THE, HELM C | BRUTUS, INVESTMENTS | | | $0.00 | 3552 | 375447 |
| 13 | 06/01/1979 | EZ | Easement | Unknown | THE, HELM C | | | $34,500.00 | 92767 | 353572 |
Payout Agreement
| No payout information available.. |