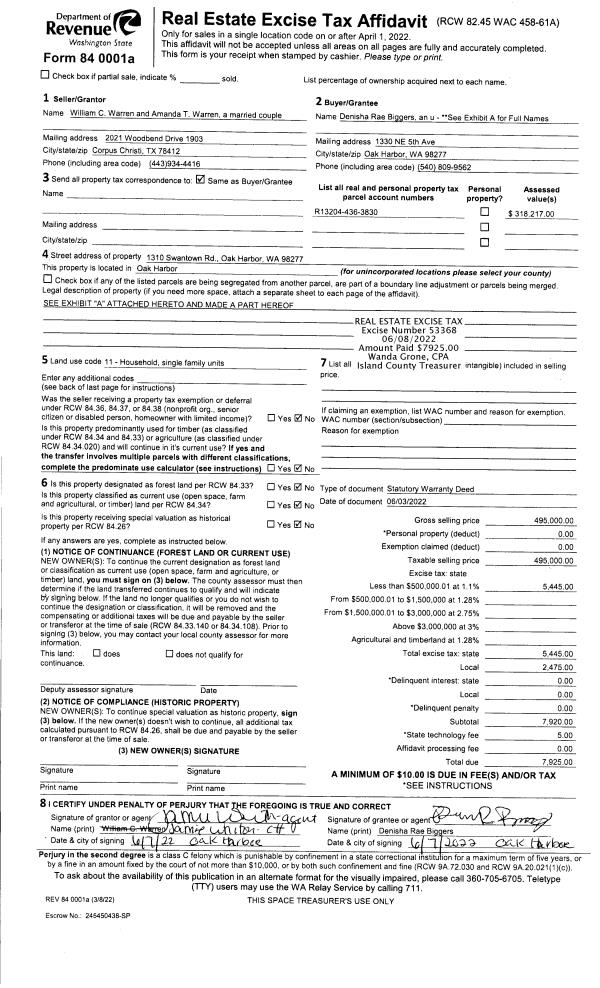
Property
Account |
| Property ID: | 502771 | Abbreviated Legal Description: | LOST MEADOWS LOT 29 |
| Geographic ID: | S7412-00-00029-0 | Agent Code: | |
| Type: | Real | | |
| Tax Area: | 510 - APPRAISER-Stan/Cam Schl Dist, improved & 1 acre or less | Land Use Code | 11 |
| Open Space: | N | DFL | N |
| Historic Property: | N | Remodel Property: | N |
| Multi-Family Redevelopment: | N | | |
| Township: | | Section: | |
| Range: | |
Location |
| Address: | 960 FALCON RD CAMANO ISLAND, WA 98282 | Mapsco: | |
| Neighborhood: | Cycle 5 | Map ID: | 483 |
| Neighborhood CD: | 5 |
Owner |
| Name: | STIMATZ, KATHRYN C | Owner ID: | 178423 |
| Mailing Address: | 960 FALCON RD CAMANO ISLAND, WA 98282-8411 | % Ownership: | 100.0000000000% |
| | | Exemptions: | |
Taxes and Assessment Details
Values
| (+) Improvement Homesite Value: | + | $0 | |
| (+) Improvement Non-Homesite Value: | + | $98,502 | |
| (+) Land Homesite Value: | + | $0 | |
| (+) Land Non-Homesite Value: | + | $210,000 | |
| (+) Curr Use (HS): | + | $0 | $0 |
| (+) Curr Use (NHS): | + | $0 | $0 |
| | | -------------------------- | |
| (=) Market Value: | = | $308,502 | |
| (–) Productivity Loss: | – | $0 | |
| | | -------------------------- | |
| (=) Subtotal: | = | $308,502 | |
| (+) Senior Appraised Value: | + | $0 | |
| (+) Non-Senior Appraised Value: | + | $308,502 | |
| | | -------------------------- | |
| (=) Total Appraised Value: | = | $308,502 | |
| (–) Senior Exemption Loss: | – | $0 | |
| (–) Exemption Loss: | – | $0 | |
| | | -------------------------- | |
| (=) Taxable Value: | = | $308,502 | |
Taxing Jurisdiction
| Owner: | STIMATZ, KATHRYN C | | |
| % Ownership: | 100.0000000000% | | |
| Total Value: | $308,502 | | |
| Tax Area: | 510 - APPRAISER-Stan/Cam Schl Dist, improved & 1 acre or less |
| CF | Conservation Futures | 0.0316035091 | $308,502 | $308,502 | $9.75 | | |
| EMS1 | Fire & Rescue Dist #1 Camano GEN (EMS) | 0.3677864386 | $308,502 | $308,502 | $113.46 | | |
| FIRE1 | Fire & Rescue Dist #1 Camano GEN | 1.2502910536 | $308,502 | $308,502 | $385.72 | | |
| FIRE1BOND | Fire & Rescue Dist #1 Camano BOND | 0.1570001679 | $308,502 | $308,502 | $48.43 | | |
| CE | County Current Expense | 0.3708482477 | $308,502 | $308,502 | $114.41 | | |
| CR | County Roads | 0.4584763726 | $308,502 | $308,502 | $141.44 | | |
| LCIB | Library Sno-Isle BOND (Camano Island) | 0.0396325772 | $308,502 | $308,502 | $12.23 | | |
| LIB | Library Sno-Isle GEN | 0.3153421757 | $308,502 | $308,502 | $97.28 | | |
| SCH205_401 | School 205-401 Enrichment | 1.2698420524 | $308,502 | $308,502 | $391.75 | | |
| SCH205BOND | School 205-401 BOND | 0.9396497583 | $308,502 | $308,502 | $289.88 | | |
| ST | State School | 1.3035497053 | $308,502 | $308,502 | $402.15 | | |
| ST2 | State School Part 2 | 0.8169543533 | $308,502 | $308,502 | $252.03 | | |
| | Total Tax Rate: | 7.3209764117 | | | | | |
| | | | | Taxes w/Current Exemptions: | $2,258.53 | | |
| | | | | Taxes w/o Exemptions: | $2,258.53 | | |
Improvement / Building
| Improvement #1: | MANUFACTURED HOME | State Code: | Y | 1774.4 sqft | Value: | $98,502 |
| Bathrooms: | 0 | Bedrooms: | 0 | | Ceiling: | PLASTER PAINTED | Cooling: | EVAP NO DUCT | | Exterior Wall/Cover: | VINYL | Floor Covering: | CARPET 100% | | Floor Structure: | SLAB ON GRADE | Foundation: | SLAB | | Heating: | FHA ELECTRIC | Interior Finish: | PLASTER | | Plumbing Fixture Cnt: | 1 | Roof Slope: | FLAT | | Roof Structure/Cover: | CJ ALUMINIUM HEAVY |   |   |
|
| | Type | Description | Class CD | Sub Class CD | Year Built | Area |
| | BAS | BASE/MAIN FLOOR | 4 | 0 | 1988 | 1774.4 |
| | OWP | OPEN WOOD PORCH W/STEPS | 4 | 0 | 1988 | 64.0 |
| | OWP | OPEN WOOD PORCH W/STEPS | 4 | 0 | 1988 | 176.0 |
Sketch
Property Image
Land
| 1 | 14 | SQ (08001-12000) | 0.0000 | 0.00 | 0.00 | 0.00 | 1.00 | $210,000 | $0 |
Roll Value History
| 2026 | N/A | N/A | N/A | N/A | N/A |
| 2025 | $98,502 | $210,000 | $0 | $308,502 | $308,502 |
| 2024 | $102,084 | $210,000 | $0 | $312,084 | $312,084 |
| 2023 | $93,434 | $210,000 | $0 | $303,434 | $303,434 |
| 2022 | $87,426 | $210,000 | $0 | $297,426 | $297,426 |
| 2021 | $76,906 | $170,000 | $0 | $246,906 | $246,906 |
| 2020 | $77,001 | $150,000 | $0 | $227,001 | $227,001 |
| 2019 | $62,663 | $170,000 | $0 | $232,663 | $232,663 |
| 2018 | $64,507 | $120,000 | $0 | $184,507 | $184,507 |
| 2017 | $66,350 | $120,000 | $0 | $186,350 | $186,350 |
| 2016 | $67,271 | $90,000 | $0 | $157,271 | $157,271 |
| 2015 | $54,352 | $65,000 | $0 | $119,352 | $119,352 |
| 2014 | $55,950 | $65,000 | $0 | $120,950 | $120,950 |
| 2013 | $57,548 | $65,000 | $0 | $122,548 | $122,548 |
| 2012 | $59,145 | $60,000 | $0 | $119,145 | $119,145 |
| 2011 | $60,743 | $75,000 | $0 | $135,743 | $135,743 |
| 2010 | $53,778 | $75,000 | $0 | $128,778 | $128,778 |
| 2009 | $56,970 | $100,000 | $0 | $156,970 | $156,970 |
| 2008 | $58,736 | $113,000 | $0 | $171,736 | $171,736 |
| 2007 | $60,475 | $88,000 | $0 | $148,475 | $148,475 |
Deed and Sales History
| 1 | 10/09/1998 | OTHER | Other - Misc. Documents | STIMATZ, KATHRYN C | STIMATZ, KATHRYN C | | | $40,000.00 | 84091 | 0 |
| 2 | 10/09/1998 | WD | Warranty Deed | MORGAN, PATRICIA J | STIMATZ, KATHRYN C | | | $72,750.00 | 84090 | 98022180 |
| 3 | 10/01/1988 | WD | Warranty Deed | MORGAN, PATRICIA J | MORGAN, PATRICIA J | | | $12,800.00 | 83497 | 88013023 |
| 4 | 08/01/1988 | OTHER | Other - Misc. Documents | O'BRYAN, EARL H | MORGAN, PATRICIA J | | | $36,800.00 | 11111111 | 0 |
| 5 | 05/01/1988 | WD | Warranty Deed | HOME, SAVINGS & | O'BRYAN, EARL H | | | $4,500.00 | 81624 | 88006138 |
| 6 | 06/01/1983 | TRUSTEED | Trustee's Deed | BRUTUS, INVESTMENTS | HOME, SAVINGS & | | | $0.00 | 31682 | 0 |
| 7 | 10/01/1980 | CD | DNU - Correction Deed | THE, HELM C | BRUTUS, INVESTMENTS | | | $0.00 | 3552 | 375447 |
| 8 | 06/01/1979 | EZ | Easement | Unknown | THE, HELM C | | | $34,500.00 | 92767 | 353572 |
Payout Agreement
| No payout information available.. |