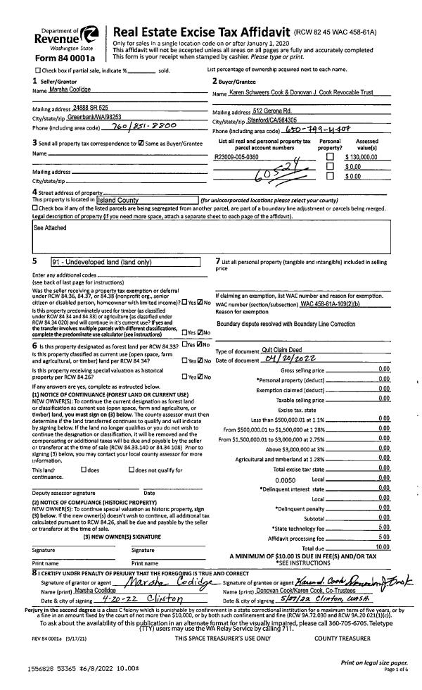
Property
Account |
| Property ID: | 502806 | Abbreviated Legal Description: | LOST MEADOWS LOT 32 |
| Geographic ID: | S7412-00-00032-0 | Agent Code: | |
| Type: | Real | | |
| Tax Area: | 510 - APPRAISER-Stan/Cam Schl Dist, improved & 1 acre or less | Land Use Code | 11 |
| Open Space: | N | DFL | N |
| Historic Property: | N | Remodel Property: | N |
| Multi-Family Redevelopment: | N | | |
| Township: | | Section: | |
| Range: | |
Location |
| Address: | 934 FALCON RD CAMANO ISLAND, WA 98282 | Mapsco: | |
| Neighborhood: | Cycle 5 | Map ID: | 483 |
| Neighborhood CD: | 5 |
Owner |
| Name: | FORTNER, JOHN | Owner ID: | 272297 |
| Mailing Address: | TAYLOR BRYANT 934 FALCON RD CAMANO ISLAND, WA 98282 | % Ownership: | 100.0000000000% |
| | | Exemptions: | |
Taxes and Assessment Details
Values
| (+) Improvement Homesite Value: | + | $0 | |
| (+) Improvement Non-Homesite Value: | + | $234,012 | |
| (+) Land Homesite Value: | + | $0 | |
| (+) Land Non-Homesite Value: | + | $210,000 | |
| (+) Curr Use (HS): | + | $0 | $0 |
| (+) Curr Use (NHS): | + | $0 | $0 |
| | | -------------------------- | |
| (=) Market Value: | = | $444,012 | |
| (–) Productivity Loss: | – | $0 | |
| | | -------------------------- | |
| (=) Subtotal: | = | $444,012 | |
| (+) Senior Appraised Value: | + | $0 | |
| (+) Non-Senior Appraised Value: | + | $444,012 | |
| | | -------------------------- | |
| (=) Total Appraised Value: | = | $444,012 | |
| (–) Senior Exemption Loss: | – | $0 | |
| (–) Exemption Loss: | – | $0 | |
| | | -------------------------- | |
| (=) Taxable Value: | = | $444,012 | |
Taxing Jurisdiction
| Owner: | FORTNER, JOHN | | |
| % Ownership: | 100.0000000000% | | |
| Total Value: | $444,012 | | |
| Tax Area: | 510 - APPRAISER-Stan/Cam Schl Dist, improved & 1 acre or less |
| CF | Conservation Futures | 0.0316035091 | $444,012 | $444,012 | $14.03 | | |
| EMS1 | Fire & Rescue Dist #1 Camano GEN (EMS) | 0.3677864386 | $444,012 | $444,012 | $163.30 | | |
| FIRE1 | Fire & Rescue Dist #1 Camano GEN | 1.2502910536 | $444,012 | $444,012 | $555.14 | | |
| FIRE1BOND | Fire & Rescue Dist #1 Camano BOND | 0.1570001679 | $444,012 | $444,012 | $69.71 | | |
| CE | County Current Expense | 0.3708482477 | $444,012 | $444,012 | $164.66 | | |
| CR | County Roads | 0.4584763726 | $444,012 | $444,012 | $203.57 | | |
| LCIB | Library Sno-Isle BOND (Camano Island) | 0.0396325772 | $444,012 | $444,012 | $17.60 | | |
| LIB | Library Sno-Isle GEN | 0.3153421757 | $444,012 | $444,012 | $140.02 | | |
| SCH205_401 | School 205-401 Enrichment | 1.2698420524 | $444,012 | $444,012 | $563.83 | | |
| SCH205BOND | School 205-401 BOND | 0.9396497583 | $444,012 | $444,012 | $417.22 | | |
| ST | State School | 1.3035497053 | $444,012 | $444,012 | $578.79 | | |
| ST2 | State School Part 2 | 0.8169543533 | $444,012 | $444,012 | $362.74 | | |
| | Total Tax Rate: | 7.3209764117 | | | | | |
| | | | | Taxes w/Current Exemptions: | $3,250.61 | | |
| | | | | Taxes w/o Exemptions: | $3,250.61 | | |
Improvement / Building
| Improvement #1: | RESIDENTIAL | State Code: | Y | 1146.0 sqft | Value: | $234,012 |
| Bathrooms: | 1.75 | Bedrooms: | 2 | | Ceiling: | DRYWALL PAINTED | Exterior Wall/Cover: | PLY/HARDBOARD T-111 | | Floor Covering: | SOFTWOOD/VINYL 60-40 | Floor Structure: | WOOD W/SUBFLOOR | | Foundation: | CONCRETE | Heating: | FHA GAS | | Interior Finish: | DRYWALL PAINT | Plumbing Fixture Cnt: | 9 | | Roof Slope: | 4" IN 12" | Roof Structure/Cover: | CJ ASPHALT |
|
| | Type | Description | Class CD | Sub Class CD | Year Built | Area |
| | BAS | BASE/MAIN FLOOR | 3 | 0 | 1989 | 1146.0 |
| | OP1 | OPEN PORCH SLAB | 3 | 0 | 1989 | 312.0 |
| | OP4 | OPEN PORCH W/CEILING-ROOF | 3 | 0 | 1989 | 54.0 |
| | AGR | ATTACHED GARAGE | 3 | 0 | 1989 | 528.0 |
Sketch
Property Image
Land
| 1 | 14 | SQ (08001-12000) | 0.0000 | 0.00 | 0.00 | 0.00 | 1.00 | $210,000 | $0 |
Roll Value History
| 2026 | N/A | N/A | N/A | N/A | N/A |
| 2025 | $234,012 | $210,000 | $0 | $444,012 | $444,012 |
| 2024 | $236,966 | $210,000 | $0 | $446,966 | $446,966 |
| 2023 | $239,919 | $210,000 | $0 | $449,919 | $449,919 |
| 2022 | $219,910 | $210,000 | $0 | $429,910 | $429,910 |
| 2021 | $184,269 | $170,000 | $0 | $354,269 | $354,269 |
| 2020 | $179,162 | $150,000 | $0 | $329,162 | $329,162 |
| 2019 | $126,712 | $170,000 | $0 | $296,712 | $296,712 |
| 2018 | $127,093 | $120,000 | $0 | $247,093 | $247,093 |
| 2017 | $127,854 | $120,000 | $0 | $247,854 | $247,854 |
| 2016 | $129,377 | $90,000 | $0 | $219,377 | $219,377 |
| 2015 | $106,618 | $65,000 | $0 | $171,618 | $171,618 |
| 2014 | $108,019 | $65,000 | $0 | $173,019 | $173,019 |
| 2013 | $109,417 | $65,000 | $0 | $174,417 | $174,417 |
| 2012 | $110,819 | $60,000 | $0 | $170,819 | $170,819 |
| 2011 | $112,218 | $75,000 | $0 | $187,218 | $187,218 |
| 2010 | $119,308 | $75,000 | $0 | $194,308 | $194,308 |
| 2009 | $121,590 | $100,000 | $0 | $221,590 | $221,590 |
| 2008 | $123,239 | $113,000 | $0 | $236,239 | $236,239 |
| 2007 | $124,926 | $88,000 | $0 | $212,926 | $212,926 |
Deed and Sales History
| 1 | 09/24/2015 | WD | Warranty Deed | NEKUDA, ADAM J | FORTNER, JOHN | | | $215,000.00 | 21560 | 4386863 |
| 2 | 12/27/2004 | WD | Warranty Deed | HARTLEY, JAMES L | NEKUDA, ADAM J | | | $155,000.00 | 46064 | 4122060 |
| 3 | 06/01/1989 | WD | Warranty Deed | KLETT, HENRY R | HARTLEY, JAMES L | | | $58,500.00 | 92533 | 89008640 |
| 4 | 05/01/1988 | WD | Warranty Deed | HOME, SAVINGS & | KLETT, HENRY R | | | $5,500.00 | 81653 | 88006222 |
| 5 | 06/01/1983 | TRUSTEED | Trustee's Deed | BRUTUS, INVESTMENTS | HOME, SAVINGS & | | | $0.00 | 31682 | 0 |
| 6 | 10/01/1980 | CD | DNU - Correction Deed | THE, HELM C | BRUTUS, INVESTMENTS | | | $0.00 | 3552 | 375447 |
| 7 | 06/01/1979 | EZ | Easement | Unknown | THE, HELM C | | | $34,500.00 | 92767 | 353572 |
Payout Agreement
| No payout information available.. |