Property
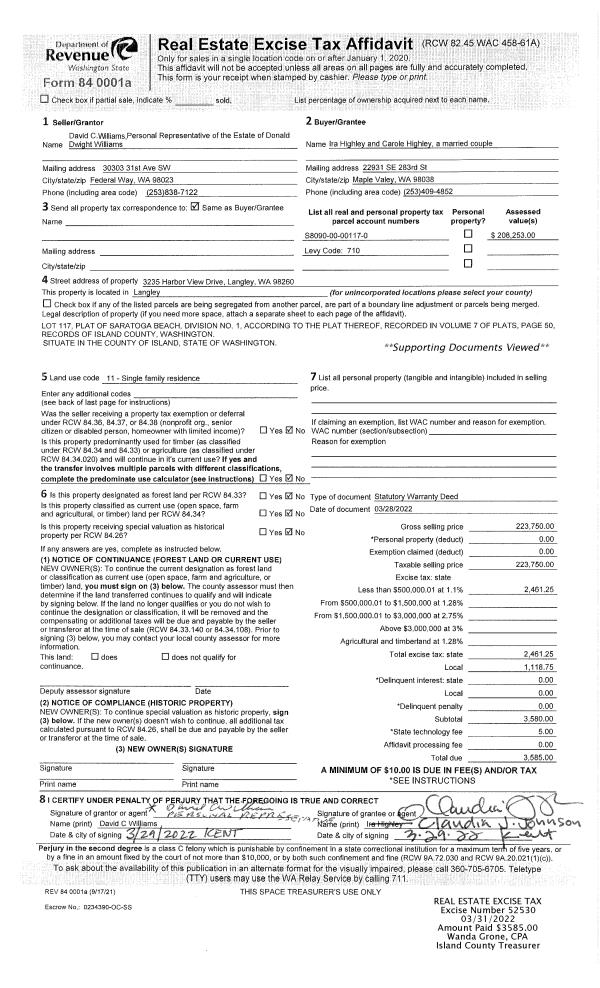
Account |
| Property ID: | 502833 | Abbreviated Legal Description: | LOST MEADOWS LOT 35 Well Site AF# 353569 VALUED WITH PARCELS SERVED |
| Geographic ID: | S7412-00-00035-0 | Agent Code: | |
| Type: | Real | | |
| Tax Area: | 510 - APPRAISER-Stan/Cam Schl Dist, improved & 1 acre or less | Land Use Code | 48 |
| Open Space: | N | DFL | N |
| Historic Property: | N | Remodel Property: | N |
| Multi-Family Redevelopment: | N | | |
| Township: | | Section: | |
| Range: | |
Location |
| Address: | | Mapsco: | |
| Neighborhood: | Cycle 5 | Map ID: | 483 |
| Neighborhood CD: | 5 |
Owner |
| Name: | CAMANO COOPERATIVE WATER | Owner ID: | 65834 |
| Mailing Address: | & POWER ASSOCIATION 994 GARY LN CAMANO ISLAND, WA 98282-6535 | % Ownership: | 100.0000000000% |
| | | Exemptions: | EX |
Taxes and Assessment Details
Values
| (+) Improvement Homesite Value: | + | $0 | |
| (+) Improvement Non-Homesite Value: | + | $103,061 | |
| (+) Land Homesite Value: | + | $0 | |
| (+) Land Non-Homesite Value: | + | $12,000 | |
| (+) Curr Use (HS): | + | $0 | $0 |
| (+) Curr Use (NHS): | + | $0 | $0 |
| | | -------------------------- | |
| (=) Market Value: | = | $115,061 | |
| (–) Productivity Loss: | – | $0 | |
| | | -------------------------- | |
| (=) Subtotal: | = | $115,061 | |
| (+) Senior Appraised Value: | + | $0 | |
| (+) Non-Senior Appraised Value: | + | $115,061 | |
| | | -------------------------- | |
| (=) Total Appraised Value: | = | $115,061 | |
| (–) Senior Exemption Loss: | – | $0 | |
| (–) Exemption Loss: | – | $115,061 | |
| | | -------------------------- | |
| (=) Taxable Value: | = | $0 | |
Taxing Jurisdiction
| Owner: | CAMANO COOPERATIVE WATER | | |
| % Ownership: | 100.0000000000% | | |
| Total Value: | $115,061 | | |
| Tax Area: | 510 - APPRAISER-Stan/Cam Schl Dist, improved & 1 acre or less |
| CF | Conservation Futures | 0.0316035091 | $115,061 | $0 | $0.00 | | |
| EMS1 | Fire & Rescue Dist #1 Camano GEN (EMS) | 0.3677864386 | $115,061 | $0 | $0.00 | | |
| FIRE1 | Fire & Rescue Dist #1 Camano GEN | 1.2502910536 | $115,061 | $0 | $0.00 | | |
| FIRE1BOND | Fire & Rescue Dist #1 Camano BOND | 0.1570001679 | $115,061 | $0 | $0.00 | | |
| CE | County Current Expense | 0.3708482477 | $115,061 | $0 | $0.00 | | |
| CR | County Roads | 0.4584763726 | $115,061 | $0 | $0.00 | | |
| LCIB | Library Sno-Isle BOND (Camano Island) | 0.0396325772 | $115,061 | $0 | $0.00 | | |
| LIB | Library Sno-Isle GEN | 0.3153421757 | $115,061 | $0 | $0.00 | | |
| SCH205_401 | School 205-401 Enrichment | 1.2698420524 | $115,061 | $0 | $0.00 | | |
| SCH205BOND | School 205-401 BOND | 0.9396497583 | $115,061 | $0 | $0.00 | | |
| ST | State School | 1.3035497053 | $115,061 | $0 | $0.00 | | |
| ST2 | State School Part 2 | 0.8169543533 | $115,061 | $0 | $0.00 | | |
| | Total Tax Rate: | 7.3209764117 | | | | | |
| | | | | Taxes w/Current Exemptions: | $0.00 | | |
| | | | | Taxes w/o Exemptions: | $842.36 | | |
Improvement / Building
| Improvement #1: | COMMERCIAL | State Code: | Y | 0.0 sqft | Value: | $103,061 |
| | Type | Description | Class CD | Sub Class CD | Year Built | Area |
| | oWT3 | 30K GALLON TANK | 3 | 0 | 1900 | 391.1 |
| | oPUM | PUMP HOUSE | 3 | 0 | 1900 | 80.0 |
| | UTY | STORAGE/UTILITY | 3 | 0 | 1900 | 240.0 |
| | oPOL | POLE BARN | 3 | 0 | 1900 | 1020.0 |
Sketch
Property Image
Land
| 1 | 16 | AC (00.51-01.00) | 0.0000 | 0.00 | 0.00 | 0.00 | 1.00 | $12,000 | $0 |
Roll Value History
| 2026 | N/A | N/A | N/A | N/A | N/A |
| 2025 | $103,061 | $12,000 | $0 | $115,061 | $0 |
| 2024 | $110,200 | $12,000 | $0 | $122,200 | $0 |
| 2023 | $110,200 | $9,000 | $0 | $119,200 | $0 |
| 2022 | $110,200 | $9,000 | $0 | $119,200 | $0 |
| 2021 | $64,200 | $80,000 | $0 | $144,200 | $0 |
| 2020 | $0 | $80,000 | $0 | $80,000 | $0 |
| 2019 | $0 | $80,000 | $0 | $80,000 | $0 |
| 2018 | $0 | $75,000 | $0 | $75,000 | $0 |
| 2017 | $0 | $75,000 | $0 | $75,000 | $0 |
| 2016 | $0 | $75,000 | $0 | $75,000 | $0 |
| 2015 | $0 | $24,750 | $0 | $24,750 | $0 |
| 2014 | $0 | $24,750 | $0 | $24,750 | $0 |
| 2013 | $0 | $24,750 | $0 | $24,750 | $0 |
| 2012 | $0 | $24,750 | $0 | $24,750 | $0 |
| 2011 | $0 | $24,750 | $0 | $24,750 | $0 |
| 2010 | $0 | $24,750 | $0 | $24,750 | $0 |
| 2009 | $0 | $26,730 | $0 | $26,730 | $0 |
| 2008 | $0 | $26,730 | $0 | $26,730 | $0 |
| 2007 | $0 | $29,040 | $0 | $29,040 | $0 |
Deed and Sales History
| 1 | 05/01/1988 | QCD | Quit Claim Deed | CAMANO, COOPERATIVE W | CAMANO, COOPERATIVE W | | | $0.00 | 81354 | 88005087 |
| 2 | 04/01/1987 | QCD | Quit Claim Deed | LOST, MEADOWS | CAMANO, COOPERATIVE W | | | $0.00 | 71133 | 87005675 |
| 3 | 12/01/1983 | WD | Warranty Deed | BRUTUS, INVESTMENTS | LOST, MEADOWS | | | $0.00 | 33729 | 419109 |
| 4 | 10/01/1980 | CD | DNU - Correction Deed | THE, HELM C | BRUTUS, INVESTMENTS | | | $0.00 | 3552 | 375447 |
| 5 | 06/01/1979 | EZ | Easement | Unknown | THE, HELM C | | | $34,500.00 | 92767 | 353572 |
Payout Agreement
| No payout information available.. |