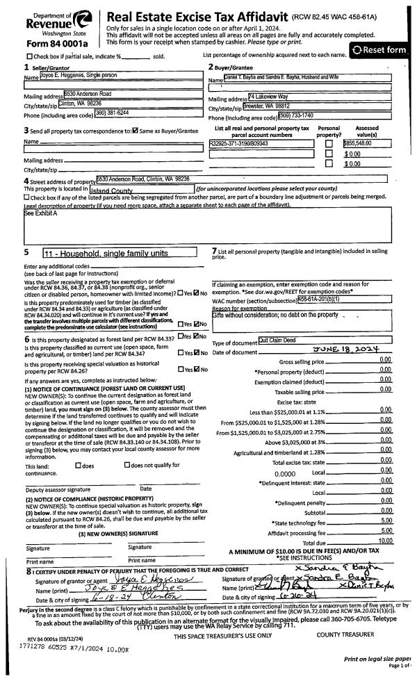
Property
Account |
| Property ID: | 503011 | Abbreviated Legal Description: | BG NW CR SEC 25 N88*E1310. .55' S1*E35' S54*E805.24' S1*E949.04' ALG CUR/L 342. 08' S34*E252.92' ALG CUR/ R 180.06' (PT Y) ALG CUR/R 74.9' NLY ALG CUR/L 74.9' TO PT Y N79*W333.06' TPB N79*W343.28' S8*W300.15' S72*E339.15' TP S9*W FR TPB N9*E341.45' TPB S |
| Geographic ID: | R33025-300-1700 | Agent Code: | |
| Type: | Real | | |
| Tax Area: | 542 - APPRAISER-Stan/Cam Schl Dist, Special Dist, improved, greater than 1 acre | Land Use Code | 11 |
| Open Space: | N | DFL | N |
| Historic Property: | N | Remodel Property: | N |
| Multi-Family Redevelopment: | N | | |
| Township: | 30 | Section: | 25 |
| Range: | R3 |
Location |
| Address: | 4965 SOUTH CAMANO DR CAMANO ISLAND, WA 98282 | Mapsco: | |
| Neighborhood: | 58SofTamarackS | Map ID: | 888 |
| Neighborhood CD: | 58RstamS |
Owner |
| Name: | ZIMBEROFF, ANYA K. | Owner ID: | 310892 |
| Mailing Address: | 1386 BONNIE LN CAMANO ISLAND, WA 98282 | % Ownership: | 100.0000000000% |
| | | Exemptions: | |
Taxes and Assessment Details
Values
| (+) Improvement Homesite Value: | + | $0 | |
| (+) Improvement Non-Homesite Value: | + | $236,347 | |
| (+) Land Homesite Value: | + | $0 | |
| (+) Land Non-Homesite Value: | + | $330,000 | |
| (+) Curr Use (HS): | + | $0 | $0 |
| (+) Curr Use (NHS): | + | $0 | $0 |
| | | -------------------------- | |
| (=) Market Value: | = | $566,347 | |
| (–) Productivity Loss: | – | $0 | |
| | | -------------------------- | |
| (=) Subtotal: | = | $566,347 | |
| (+) Senior Appraised Value: | + | $0 | |
| (+) Non-Senior Appraised Value: | + | $566,347 | |
| | | -------------------------- | |
| (=) Total Appraised Value: | = | $566,347 | |
| (–) Senior Exemption Loss: | – | $0 | |
| (–) Exemption Loss: | – | $0 | |
| | | -------------------------- | |
| (=) Taxable Value: | = | $566,347 | |
Taxing Jurisdiction
| Owner: | ZIMBEROFF, ANYA K. | | |
| % Ownership: | 100.0000000000% | | |
| Total Value: | $566,347 | | |
| Tax Area: | 542 - APPRAISER-Stan/Cam Schl Dist, Special Dist, improved, greater than 1 acre |
| CF | Conservation Futures | 0.0316035091 | $566,347 | $566,347 | $17.90 | | |
| EMS1 | Fire & Rescue Dist #1 Camano GEN (EMS) | 0.3677864386 | $566,347 | $566,347 | $208.29 | | |
| FIRE1 | Fire & Rescue Dist #1 Camano GEN | 1.2502910536 | $566,347 | $566,347 | $708.10 | | |
| FIRE1BOND | Fire & Rescue Dist #1 Camano BOND | 0.1570001679 | $566,347 | $566,347 | $88.92 | | |
| CE | County Current Expense | 0.3708482477 | $566,347 | $566,347 | $210.03 | | |
| CR | County Roads | 0.4584763726 | $566,347 | $566,347 | $259.66 | | |
| LCIB | Library Sno-Isle BOND (Camano Island) | 0.0396325772 | $566,347 | $566,347 | $22.45 | | |
| LIB | Library Sno-Isle GEN | 0.3153421757 | $566,347 | $566,347 | $178.59 | | |
| SCH205_401 | School 205-401 Enrichment | 1.2698420524 | $566,347 | $566,347 | $719.17 | | |
| SCH205BOND | School 205-401 BOND | 0.9396497583 | $566,347 | $566,347 | $532.17 | | |
| ST | State School | 1.3035497053 | $566,347 | $566,347 | $738.26 | | |
| ST2 | State School Part 2 | 0.8169543533 | $566,347 | $566,347 | $462.68 | | |
| | Total Tax Rate: | 7.3209764117 | | | | | |
| | | | | Taxes w/Current Exemptions: | $4,146.22 | | |
| | | | | Taxes w/o Exemptions: | $4,146.22 | | |
Improvement / Building
| Improvement #1: | RESIDENTIAL | State Code: | Y | 1048.0 sqft | Value: | $236,347 |
| Bathrooms: | 1.5 | Bedrooms: | 1 | | Ceiling: | DRYWALL PAINTED | Exterior Wall/Cover: | PLY/HARDBOARD T-111 | | Floor Covering: | CARPET/VINYL 20-80 | Floor Structure: | WOOD W/SUBFLOOR | | Foundation: | CONCRETE | Heating: | WALL HEAT ELECTRIC | | Interior Finish: | DRYWALL PAINT | Plumbing Fixture Cnt: | 8 | | Roof Slope: | 3" IN 12" | Roof Structure/Cover: | CJ ALUMINIUM HEAVY |
|
| | Type | Description | Class CD | Sub Class CD | Year Built | Area |
| | BAS | BASE/MAIN FLOOR | 3 | 0 | 2004 | 1048.0 |
| | OWP | OPEN WOOD PORCH W/STEPS | 3 | 0 | 2004 | 256.0 |
| | OWR | OPEN WOOD PORCH W/STEPS/ROOF | 3 | 0 | 2004 | 128.0 |
| | ENP | ENCLOSED PORCH | 3 | 0 | 2004 | 186.0 |
| | OCP | OPEN CARPORT | 3 | 0 | 2004 | 376.6 |
| | OWC | OPEN WOOD PORCH W/STEPS/ROOF/C | 3 | 0 | 2004 | 54.0 |
Sketch
Property Image
Land
| 1 | 18 | AC (02.01-03.00) | 2.5000 | 108900.00 | 0.00 | 0.00 | 1.00 | $330,000 | $0 |
Roll Value History
| 2026 | N/A | N/A | N/A | N/A | N/A |
| 2025 | $236,347 | $330,000 | $0 | $566,347 | $566,347 |
| 2024 | $239,152 | $290,000 | $0 | $529,152 | $529,152 |
| 2023 | $241,960 | $280,000 | $0 | $521,960 | $521,960 |
| 2022 | $221,643 | $240,000 | $0 | $461,643 | $92,748 |
| 2021 | $164,524 | $160,000 | $0 | $324,524 | $92,748 |
| 2020 | $159,884 | $150,000 | $0 | $309,884 | $92,748 |
| 2019 | $111,979 | $200,000 | $0 | $311,979 | $92,748 |
| 2018 | $112,299 | $175,000 | $0 | $287,299 | $92,748 |
| 2017 | $112,940 | $135,000 | $0 | $247,940 | $92,748 |
| 2016 | $114,224 | $100,000 | $0 | $214,224 | $85,690 |
| 2015 | $123,842 | $75,000 | $0 | $198,842 | $79,537 |
| 2014 | $125,183 | $75,000 | $0 | $200,183 | $80,073 |
| 2013 | $126,527 | $75,000 | $0 | $201,527 | $80,611 |
| 2012 | $127,869 | $104,000 | $0 | $231,869 | $92,748 |
| 2011 | $129,213 | $130,000 | $0 | $259,213 | $259,213 |
| 2010 | $134,255 | $130,000 | $0 | $264,255 | $264,255 |
| 2009 | $135,927 | $150,000 | $0 | $285,927 | $285,927 |
| 2008 | $131,361 | $155,000 | $0 | $286,361 | $72,182 |
| 2007 | $132,884 | $125,000 | $0 | $257,884 | $72,182 |
Deed and Sales History
| 1 | 12/07/2023 | WD | Warranty Deed | GOLDEN, ESTER | ZIMBEROFF, ANYA K. | | | $445,000.00 | 58715 | 4567469 |
| 2 | 05/18/2003 | WD | Warranty Deed | WINESTOCK, DENISE | GOLDEN, ESTER | | | $70,000.00 | 32177 | 4060051 |
| 3 | 08/14/2000 | QCD | Quit Claim Deed | WINESTOCK, DENISE | WINESTOCK, DENISE | | | $0.00 | 3156 | 20014803 |
| 4 | 08/14/2000 | 5 | DNU - Marriage License/Name Change | NEGLER, DENISE J | WINESTOCK, DENISE | | | $0.00 | 3123 | 20014669 |
| 5 | 02/01/1998 | DECREE | Divorce Decree/Legal Separation | SALIBA, DENISE J | NEGLER, DENISE J | | | $0.00 | 67770 | 0 |
| 6 | 01/01/1997 | WD | Warranty Deed | RODRIGUEZ, LEONEL M | SALIBA, DENISE J | | | $48,000.00 | 70332 | 97001407 |
| 7 | 01/01/1997 | ESTSEPPROP | Establish Separate Property | SALIBA, DENISE J | SALIBA, DENISE J | | | $0.00 | 70333 | 97001408 |
| 8 | 11/01/1987 | WD | Warranty Deed | GARRISON, J B | RODRIGUEZ, LEONEL M | | | $23,500.00 | 73719 | 87016204 |
| 9 | 07/01/1987 | WD | Warranty Deed | ATKINS, GEORGE T | GARRISON, J B | | | $12,500.00 | 72455 | 87011245 |
| 10 | 02/01/1978 | OTHER | Other - Misc. Documents | Unknown | ATKINS, GEORGE T | | | $17,000.00 | 91555 | 3503500 |
Payout Agreement
| No payout information available.. |