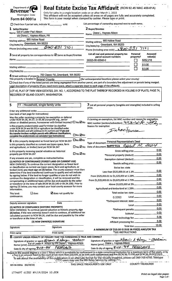
Property
Account |
| Property ID: | 503333 | Abbreviated Legal Description: | SHILLELAGH ESTATES LOT 10 |
| Geographic ID: | S8158-00-00010-0 | Agent Code: | |
| Type: | Real | | |
| Tax Area: | 152 - APPRAISER-OH Schl Dist, Special Dist, improved, greater than 1 acre | Land Use Code | 11 |
| Open Space: | N | DFL | N |
| Historic Property: | N | Remodel Property: | N |
| Multi-Family Redevelopment: | N | | |
| Township: | | Section: | |
| Range: | |
Location |
| Address: | 475 QUINN DR OAK HARBOR, WA 98277 | Mapsco: | |
| Neighborhood: | Cycle 6 | Map ID: | 274 |
| Neighborhood CD: | 6 |
Owner |
| Name: | WEBER, THOMAS STEFAN | Owner ID: | 311131 |
| Mailing Address: | BRENNA A WEBER 475 QUINN DR OAK HARBOR, WA 98277 | % Ownership: | 100.0000000000% |
| | | Exemptions: | |
Taxes and Assessment Details
Values
| (+) Improvement Homesite Value: | + | $0 | |
| (+) Improvement Non-Homesite Value: | + | $362,674 | |
| (+) Land Homesite Value: | + | $0 | |
| (+) Land Non-Homesite Value: | + | $200,000 | |
| (+) Curr Use (HS): | + | $0 | $0 |
| (+) Curr Use (NHS): | + | $0 | $0 |
| | | -------------------------- | |
| (=) Market Value: | = | $562,674 | |
| (–) Productivity Loss: | – | $0 | |
| | | -------------------------- | |
| (=) Subtotal: | = | $562,674 | |
| (+) Senior Appraised Value: | + | $0 | |
| (+) Non-Senior Appraised Value: | + | $562,674 | |
| | | -------------------------- | |
| (=) Total Appraised Value: | = | $562,674 | |
| (–) Senior Exemption Loss: | – | $0 | |
| (–) Exemption Loss: | – | $0 | |
| | | -------------------------- | |
| (=) Taxable Value: | = | $562,674 | |
Taxing Jurisdiction
| Owner: | WEBER, THOMAS STEFAN | | |
| % Ownership: | 100.0000000000% | | |
| Total Value: | $562,674 | | |
| Tax Area: | 152 - APPRAISER-OH Schl Dist, Special Dist, improved, greater than 1 acre |
| CF | Conservation Futures | 0.0316035091 | $562,674 | $562,674 | $17.78 | | |
| CEM1 | Cemetery #1 | 0.0040320932 | $562,674 | $562,674 | $2.27 | | |
| FIRE2 | Fire & Rescue Dist #2 N Whidbey GEN | 0.5475949600 | $562,674 | $562,674 | $308.12 | | |
| HOBOND | Hospital BOND | 0.1910887512 | $562,674 | $562,674 | $107.52 | | |
| HOGEN | Hospital GEN | 0.3902502903 | $562,674 | $562,674 | $219.58 | | |
| CE | County Current Expense | 0.3708482477 | $562,674 | $562,674 | $208.67 | | |
| CR | County Roads | 0.4584763726 | $562,674 | $562,674 | $257.97 | | |
| ISLANDEMS | Hospital GEN (EMS) | 0.5000000000 | $562,674 | $562,674 | $281.34 | | |
| LIB | Library Sno-Isle GEN | 0.3153421757 | $562,674 | $562,674 | $177.43 | | |
| NWHIDPRMT | P & R N Whidbey GEN | 0.2004466701 | $562,674 | $562,674 | $112.79 | | |
| SCH201MO | School 201 Enrichment | 1.8559231640 | $562,674 | $562,674 | $1,044.28 | | |
| ST | State School | 1.3035497053 | $562,674 | $562,674 | $733.47 | | |
| ST2 | State School Part 2 | 0.8169543533 | $562,674 | $562,674 | $459.68 | | |
| | Total Tax Rate: | 6.9861102925 | | | | | |
| | | | | Taxes w/Current Exemptions: | $3,930.90 | | |
| | | | | Taxes w/o Exemptions: | $3,930.90 | | |
Improvement / Building
| Improvement #1: | RESIDENTIAL | State Code: | Y | 2114.0 sqft | Value: | $362,674 |
| Bathrooms: | 2.5 | Bedrooms: | 3 | | Ceiling: | DRYWALL PAINTED | Exterior Wall/Cover: | PLY/HARDBOARD T-111 | | Floor Covering: | CARPET/VINYL 80-20 | Floor Structure: | WOOD W/SUBFLOOR | | Foundation: | CONCRETE | Heating: | FHA GAS | | Interior Finish: | DRYWALL PAINT | Plumbing Fixture Cnt: | 13 | | Roof Slope: | 6" IN 12" | Roof Structure/Cover: | CJ ASPHALT |
|
| | Type | Description | Class CD | Sub Class CD | Year Built | Area |
| | BAS | BASE/MAIN FLOOR | 4 | 0 | 1994 | 1136.0 |
| | OP4 | OPEN PORCH W/CEILING-ROOF | 4 | 0 | 1994 | 397.2 |
| | AGR | ATTACHED GARAGE | 4 | 0 | 1994 | 462.0 |
| | UPS | UPPER STORY | 4 | 0 | 1994 | 978.0 |
| | OWR | OPEN WOOD PORCH W/STEPS/ROOF | 4 | 0 | 1994 | 36.0 |
Sketch
Property Image
Land
| 1 | 18 | AC (02.01-03.00) | 2.3600 | 102801.60 | 0.00 | 0.00 | 1.00 | $200,000 | $0 |
Roll Value History
| 2026 | N/A | N/A | N/A | N/A | N/A |
| 2025 | $362,674 | $200,000 | $0 | $562,674 | $562,674 |
| 2024 | $367,432 | $180,000 | $0 | $547,432 | $547,432 |
| 2023 | $320,751 | $180,000 | $0 | $500,751 | $500,751 |
| 2022 | $286,647 | $160,000 | $0 | $446,647 | $446,647 |
| 2021 | $252,563 | $160,000 | $0 | $412,563 | $412,563 |
| 2020 | $246,288 | $130,000 | $0 | $376,288 | $376,288 |
| 2019 | $187,255 | $180,000 | $0 | $367,255 | $367,255 |
| 2018 | $187,855 | $150,000 | $0 | $337,855 | $337,855 |
| 2017 | $189,051 | $150,000 | $0 | $339,051 | $339,051 |
| 2016 | $153,821 | $120,000 | $0 | $273,821 | $273,821 |
| 2015 | $155,818 | $100,000 | $0 | $255,818 | $255,818 |
| 2014 | $157,815 | $75,000 | $0 | $232,815 | $232,815 |
| 2013 | $159,814 | $75,000 | $0 | $234,814 | $234,814 |
| 2012 | $161,811 | $65,875 | $0 | $227,686 | $227,686 |
| 2011 | $163,808 | $77,500 | $0 | $241,308 | $241,308 |
| 2010 | $215,520 | $77,500 | $0 | $293,020 | $293,020 |
| 2009 | $224,953 | $77,500 | $0 | $302,453 | $302,453 |
| 2008 | $233,143 | $118,000 | $0 | $351,143 | $351,143 |
| 2007 | $236,161 | $118,000 | $0 | $354,161 | $354,161 |
Deed and Sales History
| 1 | 01/04/2024 | WD | Warranty Deed | ROMMANN TTEE, GREGORY R | WEBER, THOMAS STEFAN | | | $685,000.00 | 58944 | 4568316 |
| 2 | 05/29/2020 | QCD | Quit Claim Deed | ROMMANN, GREGORY R / LESLIE D | ROMMANN TTEE, GREGORY R | | | $0.00 | 43368 | 4488900 |
| 3 | 11/01/1993 | WD | Warranty Deed | COFFEY, JEFFREY G | ROMMANN, GREGORY R | | | $40,000.00 | 34564 | 93023906 |
| 4 | 09/01/1979 | REC | Real Estate Contract | QUINN, KENNETH J | COFFEY, JEFFREY G | | | $26,550.00 | 94543 | 358728 |
| 5 | 02/01/1978 | OTHER | Other - Misc. Documents | Unknown | QUINN, KENNETH J | | | $169,725.00 | 80625 | 3274710 |
Payout Agreement
| No payout information available.. |