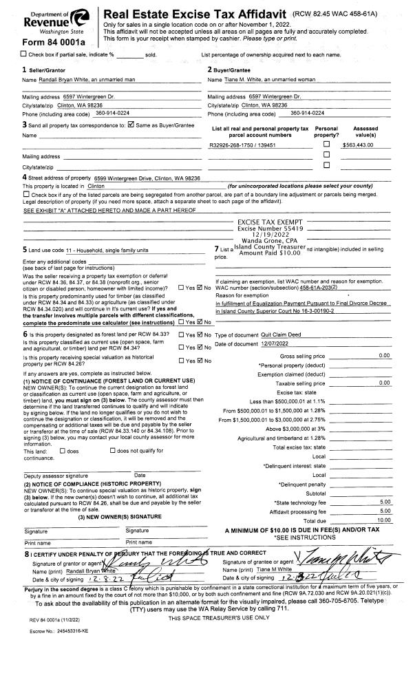
Property
Account |
| Property ID: | 503360 | Abbreviated Legal Description: | SHILLELAGH ESTATES LOT 13 |
| Geographic ID: | S8158-00-00013-0 | Agent Code: | |
| Type: | Real | | |
| Tax Area: | 152 - APPRAISER-OH Schl Dist, Special Dist, improved, greater than 1 acre | Land Use Code | 11 |
| Open Space: | N | DFL | N |
| Historic Property: | N | Remodel Property: | N |
| Multi-Family Redevelopment: | N | | |
| Township: | | Section: | |
| Range: | |
Location |
| Address: | 4962 OLD CORNET BAY RD OAK HARBOR, WA 98277 | Mapsco: | |
| Neighborhood: | Cycle 6 | Map ID: | 274 |
| Neighborhood CD: | 6 |
Owner |
| Name: | BYLINKIN, IVAN | Owner ID: | 305416 |
| Mailing Address: | LYNDA BYLINKIN 4962 OLD CORNET BAY RD OAK HARBOR, WA 98277 | % Ownership: | 100.0000000000% |
| | | Exemptions: | |
Taxes and Assessment Details
Values
| (+) Improvement Homesite Value: | + | $0 | |
| (+) Improvement Non-Homesite Value: | + | $309,963 | |
| (+) Land Homesite Value: | + | $0 | |
| (+) Land Non-Homesite Value: | + | $200,000 | |
| (+) Curr Use (HS): | + | $0 | $0 |
| (+) Curr Use (NHS): | + | $0 | $0 |
| | | -------------------------- | |
| (=) Market Value: | = | $509,963 | |
| (–) Productivity Loss: | – | $0 | |
| | | -------------------------- | |
| (=) Subtotal: | = | $509,963 | |
| (+) Senior Appraised Value: | + | $0 | |
| (+) Non-Senior Appraised Value: | + | $509,963 | |
| | | -------------------------- | |
| (=) Total Appraised Value: | = | $509,963 | |
| (–) Senior Exemption Loss: | – | $0 | |
| (–) Exemption Loss: | – | $0 | |
| | | -------------------------- | |
| (=) Taxable Value: | = | $509,963 | |
Taxing Jurisdiction
| Owner: | BYLINKIN, IVAN | | |
| % Ownership: | 100.0000000000% | | |
| Total Value: | $509,963 | | |
| Tax Area: | 152 - APPRAISER-OH Schl Dist, Special Dist, improved, greater than 1 acre |
| CF | Conservation Futures | 0.0316035091 | $509,963 | $509,963 | $16.12 | | |
| CEM1 | Cemetery #1 | 0.0040320932 | $509,963 | $509,963 | $2.06 | | |
| FIRE2 | Fire & Rescue Dist #2 N Whidbey GEN | 0.5475949600 | $509,963 | $509,963 | $279.25 | | |
| HOBOND | Hospital BOND | 0.1910887512 | $509,963 | $509,963 | $97.45 | | |
| HOGEN | Hospital GEN | 0.3902502903 | $509,963 | $509,963 | $199.01 | | |
| CE | County Current Expense | 0.3708482477 | $509,963 | $509,963 | $189.12 | | |
| CR | County Roads | 0.4584763726 | $509,963 | $509,963 | $233.81 | | |
| ISLANDEMS | Hospital GEN (EMS) | 0.5000000000 | $509,963 | $509,963 | $254.98 | | |
| LIB | Library Sno-Isle GEN | 0.3153421757 | $509,963 | $509,963 | $160.81 | | |
| NWHIDPRMT | P & R N Whidbey GEN | 0.2004466701 | $509,963 | $509,963 | $102.22 | | |
| SCH201MO | School 201 Enrichment | 1.8559231640 | $509,963 | $509,963 | $946.45 | | |
| ST | State School | 1.3035497053 | $509,963 | $509,963 | $664.76 | | |
| ST2 | State School Part 2 | 0.8169543533 | $509,963 | $509,963 | $416.62 | | |
| | Total Tax Rate: | 6.9861102925 | | | | | |
| | | | | Taxes w/Current Exemptions: | $3,562.66 | | |
| | | | | Taxes w/o Exemptions: | $3,562.66 | | |
Improvement / Building
| Improvement #1: | RESIDENTIAL | State Code: | Y | 2384.0 sqft | Value: | $309,963 |
| Bathrooms: | 3 | Bedrooms: | 3 | | Ceiling: | DRYWALL PAINTED | Exterior Wall/Cover: | PLY/HARDBOARD T-111 | | Floor Covering: | CARPET/VINYL 80-20 | Floor Structure: | WOOD W/SUBFLOOR | | Foundation: | CONCRETE | Heating: | FHA GAS | | Interior Finish: | DRYWALL PAINT | Plumbing Fixture Cnt: | 12 | | Roof Slope: | 6" IN 12" | Roof Structure/Cover: | CJ ASPHALT |
|
| | Type | Description | Class CD | Sub Class CD | Year Built | Area |
| | BAS | BASE/MAIN FLOOR | 3 | 0 | 1994 | 1664.0 |
| | OP2 | OPEN PORCH W/STEPS | 3 | 0 | 1994 | 96.0 |
| | UPS | UPPER STORY | 3 | 0 | 1994 | 720.0 |
| | OWP | OPEN WOOD PORCH W/STEPS | 3 | 0 | 1994 | 40.0 |
| | OWC | OPEN WOOD PORCH W/STEPS/ROOF/C | 3 | 0 | 1994 | 72.0 |
| | oBAR | BARN | 3 | 0 | 1994 | 0.0 |
Sketch
Property Image
Land
| 1 | 18 | AC (02.01-03.00) | 2.2100 | 96267.60 | 0.00 | 0.00 | 1.00 | $200,000 | $0 |
Roll Value History
| 2026 | N/A | N/A | N/A | N/A | N/A |
| 2025 | $309,963 | $200,000 | $0 | $509,963 | $509,963 |
| 2024 | $313,933 | $180,000 | $0 | $493,933 | $493,933 |
| 2023 | $317,905 | $180,000 | $0 | $497,905 | $497,905 |
| 2022 | $285,685 | $160,000 | $0 | $445,685 | $445,685 |
| 2021 | $253,524 | $160,000 | $0 | $413,524 | $413,524 |
| 2020 | $247,926 | $130,000 | $0 | $377,926 | $377,926 |
| 2019 | $194,766 | $180,000 | $0 | $374,766 | $374,766 |
| 2018 | $195,340 | $150,000 | $0 | $345,340 | $345,340 |
| 2017 | $196,487 | $150,000 | $0 | $346,487 | $346,487 |
| 2016 | $248,755 | $120,000 | $0 | $368,755 | $368,755 |
| 2015 | $251,711 | $100,000 | $0 | $351,711 | $351,711 |
| 2014 | $254,669 | $75,000 | $0 | $329,669 | $329,669 |
| 2013 | $257,626 | $75,000 | $0 | $332,626 | $332,626 |
| 2012 | $260,584 | $65,875 | $0 | $326,459 | $326,459 |
| 2011 | $263,541 | $77,500 | $0 | $341,041 | $341,041 |
| 2010 | $282,399 | $77,500 | $0 | $359,899 | $359,899 |
| 2009 | $294,361 | $77,500 | $0 | $371,861 | $371,861 |
| 2008 | $305,292 | $118,000 | $0 | $423,292 | $423,292 |
| 2007 | $309,901 | $118,000 | $0 | $427,901 | $427,901 |
Deed and Sales History
| 1 | 08/04/2022 | WD | Warranty Deed | HEETER, SKIP | BYLINKIN, IVAN | | | $589,900.00 | 54100 | 4549427 |
| 2 | 12/28/2010 | WD | Warranty Deed | SASTE TRUSTEE, JUAN J | HEETER, SKIP | | | $325,000.00 | 3266 | 4287916 |
| 3 | 05/06/2010 | OTHER | Other - Misc. Documents | SASTE, JUAN J | SASTE, JUAN J | | | $0.00 | 81645 | 0 |
| 4 | 04/28/2010 | QCD | Quit Claim Deed | SASTE, JUAN J | SASTE TRUSTEE, JUAN J | | | $0.00 | 1137 | 4273602 |
| 5 | 09/22/2006 | WD | Warranty Deed | CARGILL, JAMES H | SASTE, JUAN J | | | $435,000.00 | 64264 | 4183376 |
| 6 | 07/01/1993 | WD | Warranty Deed | QUINN, RANDY L | CARGILL, JAMES H | | | $31,250.00 | 32698 | 93013929 |
| 7 | 11/01/1981 | REC | Real Estate Contract | QUINN, KENNETH J | QUINN, RANDY L | | | $15,400.00 | 13450 | 389886 |
| 8 | 02/01/1978 | OTHER | Other - Misc. Documents | Unknown | QUINN, KENNETH J | | | $169,725.00 | 80625 | 3274710 |
Payout Agreement
| No payout information available.. |