Property
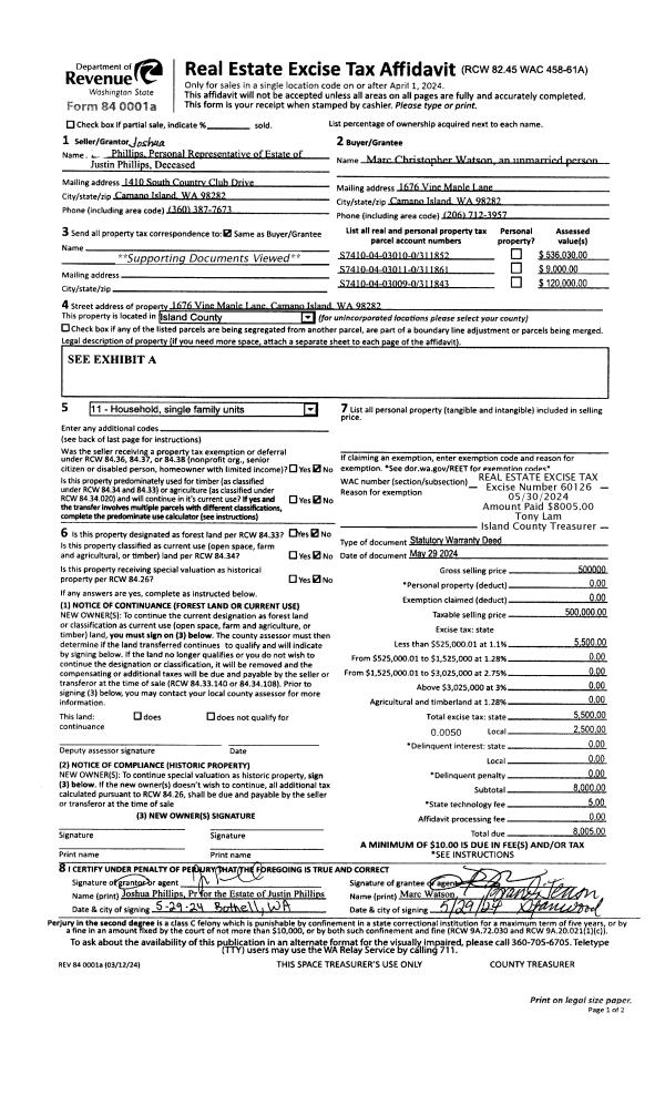
Account |
| Property ID: | 503486 | Abbreviated Legal Description: | SHIRONA #1 LOT 3 |
| Geographic ID: | S8159-00-00003-0 | Agent Code: | |
| Type: | Real | | |
| Tax Area: | 110 - APPRAISER-OH Schl Dist, outside OH, improved & 1 acre or less | Land Use Code | 11 |
| Open Space: | N | DFL | N |
| Historic Property: | N | Remodel Property: | N |
| Multi-Family Redevelopment: | N | | |
| Township: | | Section: | |
| Range: | |
Location |
| Address: | 1485 SHIRONA LN OAK HARBOR, WA 98277 | Mapsco: | |
| Neighborhood: | Cycle 1 | Map ID: | 139 |
| Neighborhood CD: | 1 |
Owner |
| Name: | WINDSOR, ALAN E & DENISE E | Owner ID: | 80359 |
| Mailing Address: | 1485 SHIRONA LN OAK HARBOR, WA 98277-8564 | % Ownership: | 100.0000000000% |
| | | Exemptions: | |
Taxes and Assessment Details
Values
| (+) Improvement Homesite Value: | + | $0 | |
| (+) Improvement Non-Homesite Value: | + | $318,576 | |
| (+) Land Homesite Value: | + | $0 | |
| (+) Land Non-Homesite Value: | + | $180,000 | |
| (+) Curr Use (HS): | + | $0 | $0 |
| (+) Curr Use (NHS): | + | $0 | $0 |
| | | -------------------------- | |
| (=) Market Value: | = | $498,576 | |
| (–) Productivity Loss: | – | $0 | |
| | | -------------------------- | |
| (=) Subtotal: | = | $498,576 | |
| (+) Senior Appraised Value: | + | $0 | |
| (+) Non-Senior Appraised Value: | + | $498,576 | |
| | | -------------------------- | |
| (=) Total Appraised Value: | = | $498,576 | |
| (–) Senior Exemption Loss: | – | $0 | |
| (–) Exemption Loss: | – | $0 | |
| | | -------------------------- | |
| (=) Taxable Value: | = | $498,576 | |
Taxing Jurisdiction
| Owner: | WINDSOR, ALAN E & DENISE E | | |
| % Ownership: | 100.0000000000% | | |
| Total Value: | $498,576 | | |
| Tax Area: | 110 - APPRAISER-OH Schl Dist, outside OH, improved & 1 acre or less |
| CF | Conservation Futures | 0.0316035091 | $498,576 | $498,576 | $15.76 | | |
| CEM1 | Cemetery #1 | 0.0040320932 | $498,576 | $498,576 | $2.01 | | |
| FIRE2 | Fire & Rescue Dist #2 N Whidbey GEN | 0.5475949600 | $498,576 | $498,576 | $273.02 | | |
| HOBOND | Hospital BOND | 0.1910887512 | $498,576 | $498,576 | $95.27 | | |
| HOGEN | Hospital GEN | 0.3902502903 | $498,576 | $498,576 | $194.57 | | |
| CE | County Current Expense | 0.3708482477 | $498,576 | $498,576 | $184.90 | | |
| CR | County Roads | 0.4584763726 | $498,576 | $498,576 | $228.59 | | |
| ISLANDEMS | Hospital GEN (EMS) | 0.5000000000 | $498,576 | $498,576 | $249.29 | | |
| LIB | Library Sno-Isle GEN | 0.3153421757 | $498,576 | $498,576 | $157.22 | | |
| NWHIDPRMT | P & R N Whidbey GEN | 0.2004466701 | $498,576 | $498,576 | $99.94 | | |
| SCH201MO | School 201 Enrichment | 1.8559231640 | $498,576 | $498,576 | $925.32 | | |
| ST | State School | 1.3035497053 | $498,576 | $498,576 | $649.92 | | |
| ST2 | State School Part 2 | 0.8169543533 | $498,576 | $498,576 | $407.31 | | |
| | Total Tax Rate: | 6.9861102925 | | | | | |
| | | | | Taxes w/Current Exemptions: | $3,483.12 | | |
| | | | | Taxes w/o Exemptions: | $3,483.12 | | |
Improvement / Building
| Improvement #1: | RESIDENTIAL | State Code: | Y | 1950.9 sqft | Value: | $318,576 |
| Bathrooms: | 2.75 | Bedrooms: | 3 | | Ceiling: | DRY WALL SPRAYED | Cooling: | FHA AND AC | | Exterior Wall/Cover: | WOOD SIDING | Floor Covering: | CARPET/VINYL 80-20 | | Floor Structure: | WOOD W/SUBFLOOR | Foundation: | CONCRETE | | Interior Finish: | DRYWALL PAINT | Plumbing Fixture Cnt: | 13 | | Roof Slope: | 4" IN 12" | Roof Structure/Cover: | CJ ASPHALT |
|
| | Type | Description | Class CD | Sub Class CD | Year Built | Area |
| | BAS | BASE/MAIN FLOOR | 3 | 0 | 1983 | 1950.9 |
| | OP4 | OPEN PORCH W/CEILING-ROOF | 3 | 0 | 1983 | 76.0 |
| | AGR | ATTACHED GARAGE | 3 | 0 | 1983 | 943.6 |
| | OWP | OPEN WOOD PORCH W/STEPS | 3 | 0 | 1983 | 464.0 |
Sketch
Property Image
Land
| 1 | 15 | SQ (12001-21780) | 0.0000 | 0.00 | 0.00 | 0.00 | 1.00 | $180,000 | $0 |
Roll Value History
| 2026 | N/A | N/A | N/A | N/A | N/A |
| 2025 | $318,576 | $180,000 | $0 | $498,576 | $498,576 |
| 2024 | $323,111 | $180,000 | $0 | $503,111 | $503,111 |
| 2023 | $326,749 | $180,000 | $0 | $506,749 | $506,749 |
| 2022 | $299,987 | $180,000 | $0 | $479,987 | $479,987 |
| 2021 | $264,417 | $120,000 | $0 | $384,417 | $384,417 |
| 2020 | $257,799 | $80,000 | $0 | $337,799 | $337,799 |
| 2019 | $193,515 | $160,000 | $0 | $353,515 | $353,515 |
| 2018 | $194,150 | $140,000 | $0 | $334,150 | $334,150 |
| 2017 | $188,996 | $120,000 | $0 | $308,996 | $308,996 |
| 2016 | $191,658 | $100,000 | $0 | $291,658 | $291,658 |
| 2015 | $194,320 | $65,000 | $0 | $259,320 | $259,320 |
| 2014 | $196,982 | $46,750 | $0 | $243,732 | $243,732 |
| 2013 | $199,644 | $46,750 | $0 | $246,394 | $246,394 |
| 2012 | $202,306 | $46,750 | $0 | $249,056 | $249,056 |
| 2011 | $209,991 | $55,000 | $0 | $264,991 | $264,991 |
| 2010 | $218,046 | $55,000 | $0 | $273,046 | $273,046 |
| 2009 | $227,510 | $67,000 | $0 | $294,510 | $294,510 |
| 2008 | $230,524 | $67,000 | $0 | $297,524 | $297,524 |
| 2007 | $233,540 | $55,000 | $0 | $288,540 | $288,540 |
Deed and Sales History
| 1 | 05/01/1991 | WD | Warranty Deed | , | WINDSOR, ALAN E | | | $120,000.00 | 11782 | 91007635 |
| 2 | 01/01/1900 | OTHER | Other - Misc. Documents | Unknown | , | | | $0.00 | 0 | 0 |
Payout Agreement
| No payout information available.. |