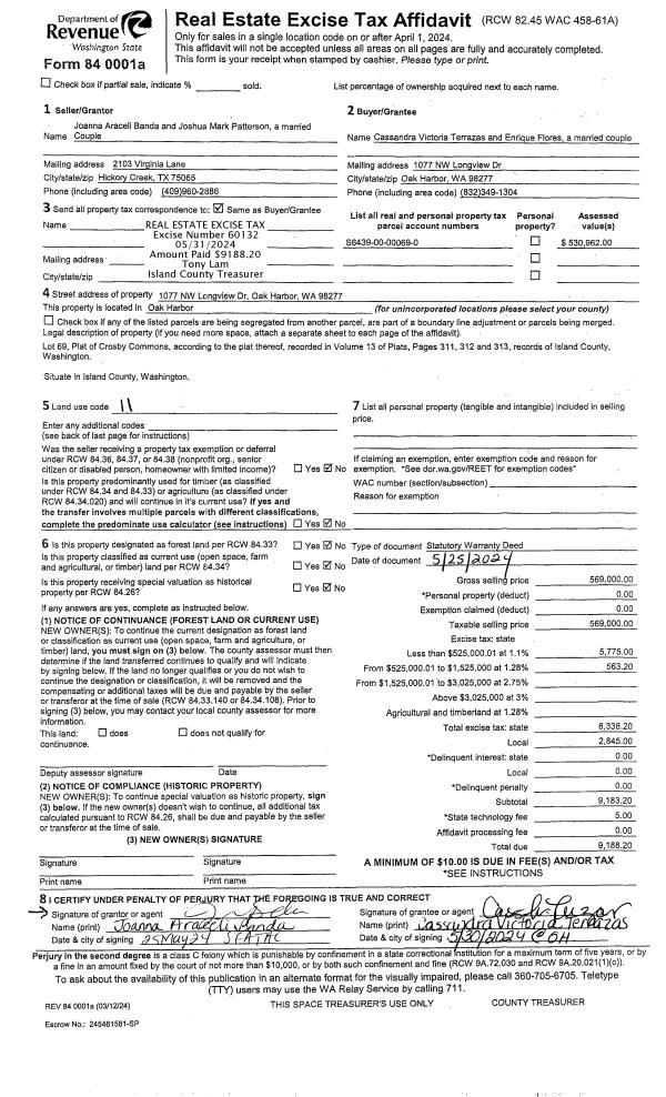
Property
Account |
| Property ID: | 503556 | Abbreviated Legal Description: | SHIRONA #1 LOT 10 |
| Geographic ID: | S8159-00-00010-0 | Agent Code: | |
| Type: | Real | | |
| Tax Area: | 110 - APPRAISER-OH Schl Dist, outside OH, improved & 1 acre or less | Land Use Code | 11 |
| Open Space: | N | DFL | N |
| Historic Property: | N | Remodel Property: | N |
| Multi-Family Redevelopment: | N | | |
| Township: | | Section: | |
| Range: | |
Location |
| Address: | 2248 DARVIC PLACE OAK HARBOR, WA 98277 | Mapsco: | |
| Neighborhood: | Cycle 1 | Map ID: | 139 |
| Neighborhood CD: | 1 |
Owner |
| Name: | HUNT, JAMES R | Owner ID: | 80366 |
| Mailing Address: | 1725 SE 6TH AVE OAK HARBOR, WA 98277-3997 | % Ownership: | 100.0000000000% |
| | | Exemptions: | |
Taxes and Assessment Details
Values
| (+) Improvement Homesite Value: | + | $0 | |
| (+) Improvement Non-Homesite Value: | + | $303,482 | |
| (+) Land Homesite Value: | + | $0 | |
| (+) Land Non-Homesite Value: | + | $180,000 | |
| (+) Curr Use (HS): | + | $0 | $0 |
| (+) Curr Use (NHS): | + | $0 | $0 |
| | | -------------------------- | |
| (=) Market Value: | = | $483,482 | |
| (–) Productivity Loss: | – | $0 | |
| | | -------------------------- | |
| (=) Subtotal: | = | $483,482 | |
| (+) Senior Appraised Value: | + | $0 | |
| (+) Non-Senior Appraised Value: | + | $483,482 | |
| | | -------------------------- | |
| (=) Total Appraised Value: | = | $483,482 | |
| (–) Senior Exemption Loss: | – | $0 | |
| (–) Exemption Loss: | – | $0 | |
| | | -------------------------- | |
| (=) Taxable Value: | = | $483,482 | |
Taxing Jurisdiction
| Owner: | HUNT, JAMES R | | |
| % Ownership: | 100.0000000000% | | |
| Total Value: | $483,482 | | |
| Tax Area: | 110 - APPRAISER-OH Schl Dist, outside OH, improved & 1 acre or less |
| CF | Conservation Futures | 0.0316035091 | $483,482 | $483,482 | $15.28 | | |
| CEM1 | Cemetery #1 | 0.0040320932 | $483,482 | $483,482 | $1.95 | | |
| FIRE2 | Fire & Rescue Dist #2 N Whidbey GEN | 0.5475949600 | $483,482 | $483,482 | $264.75 | | |
| HOBOND | Hospital BOND | 0.1910887512 | $483,482 | $483,482 | $92.39 | | |
| HOGEN | Hospital GEN | 0.3902502903 | $483,482 | $483,482 | $188.68 | | |
| CE | County Current Expense | 0.3708482477 | $483,482 | $483,482 | $179.30 | | |
| CR | County Roads | 0.4584763726 | $483,482 | $483,482 | $221.67 | | |
| ISLANDEMS | Hospital GEN (EMS) | 0.5000000000 | $483,482 | $483,482 | $241.74 | | |
| LIB | Library Sno-Isle GEN | 0.3153421757 | $483,482 | $483,482 | $152.46 | | |
| NWHIDPRMT | P & R N Whidbey GEN | 0.2004466701 | $483,482 | $483,482 | $96.91 | | |
| SCH201MO | School 201 Enrichment | 1.8559231640 | $483,482 | $483,482 | $897.31 | | |
| ST | State School | 1.3035497053 | $483,482 | $483,482 | $630.24 | | |
| ST2 | State School Part 2 | 0.8169543533 | $483,482 | $483,482 | $394.98 | | |
| | Total Tax Rate: | 6.9861102925 | | | | | |
| | | | | Taxes w/Current Exemptions: | $3,377.66 | | |
| | | | | Taxes w/o Exemptions: | $3,377.66 | | |
Improvement / Building
| Improvement #1: | RESIDENTIAL | State Code: | Y | 1994.4 sqft | Value: | $303,482 |
| Bathrooms: | 2.5 | Bedrooms: | 3 | | Ceiling: | DRYWALL PAINTED | Exterior Wall/Cover: | WOOD SIDING | | Floor Covering: | CARPET/VINYL 80-20 | Floor Structure: | WOOD W/SUBFLOOR | | Foundation: | CONCRETE | Heating: | FHA ELECTRIC | | Interior Finish: | DRYWALL PAINT | Plumbing Fixture Cnt: | 11 | | Roof Slope: | 6" IN 12" | Roof Structure/Cover: | CJ ASPHALT |
|
| | Type | Description | Class CD | Sub Class CD | Year Built | Area |
| | BAS | BASE/MAIN FLOOR | 3 | 0 | 1987 | 1187.8 |
| | AGR | ATTACHED GARAGE | 3 | 0 | 1987 | 443.9 |
| | UPS | UPPER STORY | 3 | 0 | 1987 | 806.6 |
| | OWP | OPEN WOOD PORCH W/STEPS | 3 | 0 | 1987 | 526.2 |
| | OWC | OPEN WOOD PORCH W/STEPS/ROOF/C | 3 | 0 | 1987 | 47.4 |
Sketch
Property Image
Land
| 1 | 15 | SQ (12001-21780) | 0.0000 | 0.00 | 0.00 | 0.00 | 1.00 | $180,000 | $0 |
Roll Value History
| 2026 | N/A | N/A | N/A | N/A | N/A |
| 2025 | $303,482 | $180,000 | $0 | $483,482 | $483,482 |
| 2024 | $307,514 | $180,000 | $0 | $487,514 | $487,514 |
| 2023 | $302,886 | $180,000 | $0 | $482,886 | $482,886 |
| 2022 | $277,971 | $180,000 | $0 | $457,971 | $457,971 |
| 2021 | $244,919 | $120,000 | $0 | $364,919 | $364,919 |
| 2020 | $239,084 | $80,000 | $0 | $319,084 | $319,084 |
| 2019 | $182,182 | $160,000 | $0 | $342,182 | $342,182 |
| 2018 | $182,765 | $140,000 | $0 | $322,765 | $322,765 |
| 2017 | $159,863 | $120,000 | $0 | $279,863 | $279,863 |
| 2016 | $162,180 | $100,000 | $0 | $262,180 | $262,180 |
| 2015 | $164,496 | $65,000 | $0 | $229,496 | $229,496 |
| 2014 | $166,812 | $46,750 | $0 | $213,562 | $213,562 |
| 2013 | $169,129 | $46,750 | $0 | $215,879 | $215,879 |
| 2012 | $171,447 | $46,750 | $0 | $218,197 | $218,197 |
| 2011 | $176,321 | $55,000 | $0 | $231,321 | $231,321 |
| 2010 | $185,996 | $55,000 | $0 | $240,996 | $240,996 |
| 2009 | $194,173 | $67,000 | $0 | $261,173 | $261,173 |
| 2008 | $196,685 | $67,000 | $0 | $263,685 | $263,685 |
| 2007 | $199,242 | $55,000 | $0 | $254,242 | $254,242 |
Deed and Sales History
| 1 | 09/01/1990 | WD | Warranty Deed | VICENTE, PETER A | HUNT, JAMES R | | | $135,000.00 | 5459 | 90018248 |
| 2 | 09/01/1986 | WD | Warranty Deed | DOLQUIST, JOHN D | VICENTE, PETER A | | | $16,000.00 | 62586 | 86011739 |
| 3 | 10/01/1981 | WD | Warranty Deed | BEARDSLEE, DANIEL E | DOLQUIST, JOHN D | | | $13,000.00 | 13452 | 389890 |
| 4 | 06/01/1978 | OTHER | Other - Misc. Documents | Unknown | BEARDSLEE, DANIEL E | | | $25,000.00 | 83226 | 335854 |
Payout Agreement
| No payout information available.. |