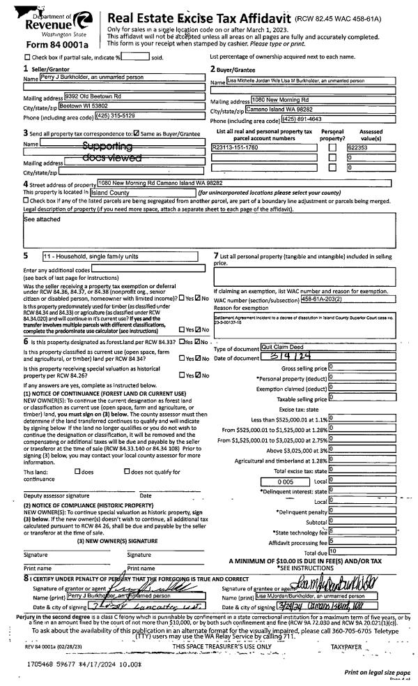
Property
Account |
| Property ID: | 503645 | Abbreviated Legal Description: | SHIRONA #1 LOT 20 EX: BG NECR LOT 20 S38*W63.36' N34*E59.78' TO NLN LOT 20 S89*E6' TPB TGW PT LOT 7: BG SWCR LOT 7 N38*E140.55' S34*W76.78' S38*W64' TO SWLN LOT 7 NWLY ALG SD LN TPB |
| Geographic ID: | S8159-00-00020-0 | Agent Code: | |
| Type: | Real | | |
| Tax Area: | 110 - APPRAISER-OH Schl Dist, outside OH, improved & 1 acre or less | Land Use Code | 11 |
| Open Space: | N | DFL | N |
| Historic Property: | N | Remodel Property: | N |
| Multi-Family Redevelopment: | N | | |
| Township: | | Section: | |
| Range: | |
Location |
| Address: | 2264 DARVIC PLACE OAK HARBOR, WA 98277 | Mapsco: | |
| Neighborhood: | Cycle 1 | Map ID: | 139 |
| Neighborhood CD: | 1 |
Owner |
| Name: | BAILEY, HERSCHELL E | Owner ID: | 80377 |
| Mailing Address: | 2264 DARVIC PLACE OAK HARBOR, WA 98277-8505 | % Ownership: | 100.0000000000% |
| | | Exemptions: | |
Taxes and Assessment Details
Values
| (+) Improvement Homesite Value: | + | $0 | |
| (+) Improvement Non-Homesite Value: | + | $301,992 | |
| (+) Land Homesite Value: | + | $0 | |
| (+) Land Non-Homesite Value: | + | $180,000 | |
| (+) Curr Use (HS): | + | $0 | $0 |
| (+) Curr Use (NHS): | + | $0 | $0 |
| | | -------------------------- | |
| (=) Market Value: | = | $481,992 | |
| (–) Productivity Loss: | – | $0 | |
| | | -------------------------- | |
| (=) Subtotal: | = | $481,992 | |
| (+) Senior Appraised Value: | + | $0 | |
| (+) Non-Senior Appraised Value: | + | $481,992 | |
| | | -------------------------- | |
| (=) Total Appraised Value: | = | $481,992 | |
| (–) Senior Exemption Loss: | – | $0 | |
| (–) Exemption Loss: | – | $0 | |
| | | -------------------------- | |
| (=) Taxable Value: | = | $481,992 | |
Taxing Jurisdiction
| Owner: | BAILEY, HERSCHELL E | | |
| % Ownership: | 100.0000000000% | | |
| Total Value: | $481,992 | | |
| Tax Area: | 110 - APPRAISER-OH Schl Dist, outside OH, improved & 1 acre or less |
| CF | Conservation Futures | 0.0316035091 | $481,992 | $481,992 | $15.23 | | |
| CEM1 | Cemetery #1 | 0.0040320932 | $481,992 | $481,992 | $1.94 | | |
| FIRE2 | Fire & Rescue Dist #2 N Whidbey GEN | 0.5475949600 | $481,992 | $481,992 | $263.94 | | |
| HOBOND | Hospital BOND | 0.1910887512 | $481,992 | $481,992 | $92.10 | | |
| HOGEN | Hospital GEN | 0.3902502903 | $481,992 | $481,992 | $188.10 | | |
| CE | County Current Expense | 0.3708482477 | $481,992 | $481,992 | $178.75 | | |
| CR | County Roads | 0.4584763726 | $481,992 | $481,992 | $220.98 | | |
| ISLANDEMS | Hospital GEN (EMS) | 0.5000000000 | $481,992 | $481,992 | $241.00 | | |
| LIB | Library Sno-Isle GEN | 0.3153421757 | $481,992 | $481,992 | $151.99 | | |
| NWHIDPRMT | P & R N Whidbey GEN | 0.2004466701 | $481,992 | $481,992 | $96.61 | | |
| SCH201MO | School 201 Enrichment | 1.8559231640 | $481,992 | $481,992 | $894.54 | | |
| ST | State School | 1.3035497053 | $481,992 | $481,992 | $628.30 | | |
| ST2 | State School Part 2 | 0.8169543533 | $481,992 | $481,992 | $393.77 | | |
| | Total Tax Rate: | 6.9861102925 | | | | | |
| | | | | Taxes w/Current Exemptions: | $3,367.25 | | |
| | | | | Taxes w/o Exemptions: | $3,367.25 | | |
Improvement / Building
| Improvement #1: | RESIDENTIAL | State Code: | Y | 1894.3 sqft | Value: | $301,992 |
| Bathrooms: | 2.5 | Bedrooms: | 3 | | Ceiling: | DRYWALL PAINTED | Exterior Wall/Cover: | WOOD SIDING | | Floor Covering: | CARPET/VINYL 80-20 | Floor Structure: | WOOD W/SUBFLOOR | | Foundation: | CONCRETE | Heating: | BASEBOARD ELECTRIC | | Interior Finish: | DRYWALL PAINT | Plumbing Fixture Cnt: | 11 | | Roof Slope: | 4" IN 12" | Roof Structure/Cover: | CJ ALUMINIUM HEAVY |
|
| | Type | Description | Class CD | Sub Class CD | Year Built | Area |
| | BAS | BASE/MAIN FLOOR | 3 | 0 | 1983 | 1174.3 |
| | AGR | ATTACHED GARAGE | 3 | 0 | 1983 | 480.0 |
| | UPS | UPPER STORY | 3 | 0 | 1983 | 720.0 |
| | OWP | OPEN WOOD PORCH W/STEPS | 3 | 0 | 1983 | 54.9 |
| | OWP | OPEN WOOD PORCH W/STEPS | 3 | 0 | 1983 | 336.0 |
Sketch
Property Image
Land
| 1 | 15 | SQ (12001-21780) | 0.0000 | 0.00 | 0.00 | 0.00 | 1.00 | $180,000 | $0 |
Roll Value History
| 2026 | N/A | N/A | N/A | N/A | N/A |
| 2025 | $301,992 | $180,000 | $0 | $481,992 | $481,992 |
| 2024 | $312,155 | $180,000 | $0 | $492,155 | $492,155 |
| 2023 | $300,187 | $180,000 | $0 | $480,187 | $480,187 |
| 2022 | $275,422 | $180,000 | $0 | $455,422 | $455,422 |
| 2021 | $242,644 | $120,000 | $0 | $362,644 | $362,644 |
| 2020 | $236,776 | $80,000 | $0 | $316,776 | $316,776 |
| 2019 | $178,003 | $160,000 | $0 | $338,003 | $338,003 |
| 2018 | $178,565 | $140,000 | $0 | $318,565 | $318,565 |
| 2017 | $151,913 | $120,000 | $0 | $271,913 | $271,913 |
| 2016 | $154,023 | $100,000 | $0 | $254,023 | $254,023 |
| 2015 | $156,135 | $65,000 | $0 | $221,135 | $221,135 |
| 2014 | $158,245 | $46,750 | $0 | $204,995 | $204,995 |
| 2013 | $160,355 | $46,750 | $0 | $207,105 | $207,105 |
| 2012 | $162,464 | $46,750 | $0 | $209,214 | $209,214 |
| 2011 | $166,910 | $55,000 | $0 | $221,910 | $221,910 |
| 2010 | $170,562 | $55,000 | $0 | $225,562 | $225,562 |
| 2009 | $178,025 | $67,000 | $0 | $245,025 | $245,025 |
| 2008 | $180,418 | $67,000 | $0 | $247,418 | $247,418 |
| 2007 | $160,487 | $55,000 | $0 | $215,487 | $215,487 |
Deed and Sales History
| 1 | 08/01/1989 | WD | Warranty Deed | HOSTENG, CRAIG A | BAILEY, HERSCHELL E | | | $94,800.00 | 93284 | 89011025 |
| 2 | 09/01/1985 | WD | Warranty Deed | LOWRY, JACKIE W | HOSTENG, CRAIG A | | | $79,500.00 | 52659 | 85010538 |
| 3 | 08/01/1983 | WD | Warranty Deed | LOWRY, JACKIE W | LOWRY, JACKIE W | | | $0.00 | 32487 | 414433 |
| 4 | 07/01/1983 | WD | Warranty Deed | BEARDSLEE, DANIEL E | LOWRY, JACKIE W | | | $15,000.00 | 32185 | 413067 |
| 5 | 06/01/1978 | OTHER | Other - Misc. Documents | Unknown | BEARDSLEE, DANIEL E | | | $25,000.00 | 83226 | 335854 |
Payout Agreement
| No payout information available.. |