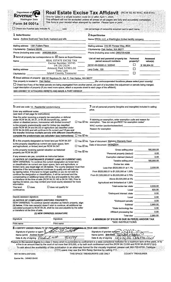
Property
Account |
| Property ID: | 503663 | Abbreviated Legal Description: | SHIRONA #1 LOT 22 |
| Geographic ID: | S8159-00-00022-0 | Agent Code: | |
| Type: | Real | | |
| Tax Area: | 110 - APPRAISER-OH Schl Dist, outside OH, improved & 1 acre or less | Land Use Code | 11 |
| Open Space: | N | DFL | N |
| Historic Property: | N | Remodel Property: | N |
| Multi-Family Redevelopment: | N | | |
| Township: | | Section: | |
| Range: | |
Location |
| Address: | 2283 DARVIC PLACE OAK HARBOR, WA 98277 | Mapsco: | |
| Neighborhood: | Cycle 1 | Map ID: | 139 |
| Neighborhood CD: | 1 |
Owner |
| Name: | BATES, KENNETH W / HELEN L | Owner ID: | 80379 |
| Mailing Address: | 2283 DARVIC PLACE OAK HARBOR, WA 98277-8505 | % Ownership: | 100.0000000000% |
| | | Exemptions: | |
Taxes and Assessment Details
Values
| (+) Improvement Homesite Value: | + | $0 | |
| (+) Improvement Non-Homesite Value: | + | $264,851 | |
| (+) Land Homesite Value: | + | $0 | |
| (+) Land Non-Homesite Value: | + | $180,000 | |
| (+) Curr Use (HS): | + | $0 | $0 |
| (+) Curr Use (NHS): | + | $0 | $0 |
| | | -------------------------- | |
| (=) Market Value: | = | $444,851 | |
| (–) Productivity Loss: | – | $0 | |
| | | -------------------------- | |
| (=) Subtotal: | = | $444,851 | |
| (+) Senior Appraised Value: | + | $0 | |
| (+) Non-Senior Appraised Value: | + | $444,851 | |
| | | -------------------------- | |
| (=) Total Appraised Value: | = | $444,851 | |
| (–) Senior Exemption Loss: | – | $0 | |
| (–) Exemption Loss: | – | $0 | |
| | | -------------------------- | |
| (=) Taxable Value: | = | $444,851 | |
Taxing Jurisdiction
| Owner: | BATES, KENNETH W / HELEN L | | |
| % Ownership: | 100.0000000000% | | |
| Total Value: | $444,851 | | |
| Tax Area: | 110 - APPRAISER-OH Schl Dist, outside OH, improved & 1 acre or less |
| CF | Conservation Futures | 0.0316035091 | $444,851 | $444,851 | $14.06 | | |
| CEM1 | Cemetery #1 | 0.0040320932 | $444,851 | $444,851 | $1.79 | | |
| FIRE2 | Fire & Rescue Dist #2 N Whidbey GEN | 0.5475949600 | $444,851 | $444,851 | $243.60 | | |
| HOBOND | Hospital BOND | 0.1910887512 | $444,851 | $444,851 | $85.01 | | |
| HOGEN | Hospital GEN | 0.3902502903 | $444,851 | $444,851 | $173.60 | | |
| CE | County Current Expense | 0.3708482477 | $444,851 | $444,851 | $164.97 | | |
| CR | County Roads | 0.4584763726 | $444,851 | $444,851 | $203.95 | | |
| ISLANDEMS | Hospital GEN (EMS) | 0.5000000000 | $444,851 | $444,851 | $222.43 | | |
| LIB | Library Sno-Isle GEN | 0.3153421757 | $444,851 | $444,851 | $140.28 | | |
| NWHIDPRMT | P & R N Whidbey GEN | 0.2004466701 | $444,851 | $444,851 | $89.17 | | |
| SCH201MO | School 201 Enrichment | 1.8559231640 | $444,851 | $444,851 | $825.61 | | |
| ST | State School | 1.3035497053 | $444,851 | $444,851 | $579.89 | | |
| ST2 | State School Part 2 | 0.8169543533 | $444,851 | $444,851 | $363.42 | | |
| | Total Tax Rate: | 6.9861102925 | | | | | |
| | | | | Taxes w/Current Exemptions: | $3,107.78 | | |
| | | | | Taxes w/o Exemptions: | $3,107.78 | | |
Improvement / Building
| Improvement #1: | RESIDENTIAL | State Code: | Y | 2014.0 sqft | Value: | $264,851 |
| Bathrooms: | 2.5 | Bedrooms: | 3 | | Ceiling: | DRY WALL SPRAYED | Exterior Wall/Cover: | PLY/HARDBOARD T-111 | | Floor Covering: | CARPET/VINYL 80-20 | Floor Structure: | WOOD W/SUBFLOOR | | Foundation: | CONCRETE | Heating: | FHA ELECTRIC | | Interior Finish: | DRYWALL PAINT | Plumbing Fixture Cnt: | 11 | | Roof Slope: | 4" IN 12" | Roof Structure/Cover: | CJ ASPHALT |
|
| | Type | Description | Class CD | Sub Class CD | Year Built | Area |
| | BAS | BASE/MAIN FLOOR | 3 | 0 | 1979 | 1068.0 |
| | AGR | ATTACHED GARAGE | 3 | 0 | 1979 | 484.0 |
| | UPS | UPPER STORY | 3 | 0 | 1979 | 946.0 |
| | OWP | OPEN WOOD PORCH W/STEPS | 3 | 0 | 1979 | 165.0 |
| | OWC | OPEN WOOD PORCH W/STEPS/ROOF/C | 3 | 0 | 1979 | 78.0 |
Sketch
Property Image
Land
| 1 | 15 | SQ (12001-21780) | 0.0000 | 0.00 | 0.00 | 0.00 | 1.00 | $180,000 | $0 |
Roll Value History
| 2026 | N/A | N/A | N/A | N/A | N/A |
| 2025 | $264,851 | $180,000 | $0 | $444,851 | $444,851 |
| 2024 | $268,676 | $180,000 | $0 | $448,676 | $448,676 |
| 2023 | $264,851 | $180,000 | $0 | $444,851 | $444,851 |
| 2022 | $243,280 | $180,000 | $0 | $423,280 | $423,280 |
| 2021 | $214,559 | $120,000 | $0 | $334,559 | $334,559 |
| 2020 | $209,569 | $80,000 | $0 | $289,569 | $289,569 |
| 2019 | $159,800 | $160,000 | $0 | $319,800 | $319,800 |
| 2018 | $160,345 | $140,000 | $0 | $300,345 | $300,345 |
| 2017 | $155,002 | $120,000 | $0 | $275,002 | $275,002 |
| 2016 | $157,463 | $100,000 | $0 | $257,463 | $257,463 |
| 2015 | $159,923 | $65,000 | $0 | $224,923 | $224,923 |
| 2014 | $162,386 | $46,750 | $0 | $209,136 | $209,136 |
| 2013 | $164,844 | $46,750 | $0 | $211,594 | $211,594 |
| 2012 | $167,305 | $46,750 | $0 | $214,055 | $214,055 |
| 2011 | $173,030 | $55,000 | $0 | $228,030 | $228,030 |
| 2010 | $186,480 | $55,000 | $0 | $241,480 | $241,480 |
| 2009 | $194,549 | $67,000 | $0 | $261,549 | $261,549 |
| 2008 | $197,087 | $67,000 | $0 | $264,087 | $264,087 |
| 2007 | $199,619 | $55,000 | $0 | $254,619 | $254,619 |
Deed and Sales History
| 1 | 05/01/1994 | WD | Warranty Deed | JOHNSON, DONALD F | BATES, KENNETH W | | | $148,000.00 | 42103 | 94012194 |
| 2 | 06/01/1986 | WD | Warranty Deed | DAVIS, WALTER J | JOHNSON, DONALD F | | | $99,000.00 | 61484 | 86006963 |
| 3 | 05/01/1981 | REC | Real Estate Contract | R, BODIN & | DAVIS, WALTER J | | | $105,000.00 | 11321 | 382485 |
| 4 | 11/01/1979 | QCD | Quit Claim Deed | BODIN, ROBERT C | R, BODIN & | | | $0.00 | 95811 | 362823 |
| 5 | 07/01/1979 | QCD | Quit Claim Deed | BEARDSLEE, DANIEL E | BODIN, ROBERT C | | | $0.00 | 95486 | 361786 |
| 6 | 06/01/1978 | OTHER | Other - Misc. Documents | Unknown | BEARDSLEE, DANIEL E | | | $25,000.00 | 83226 | 335854 |
Payout Agreement
| No payout information available.. |