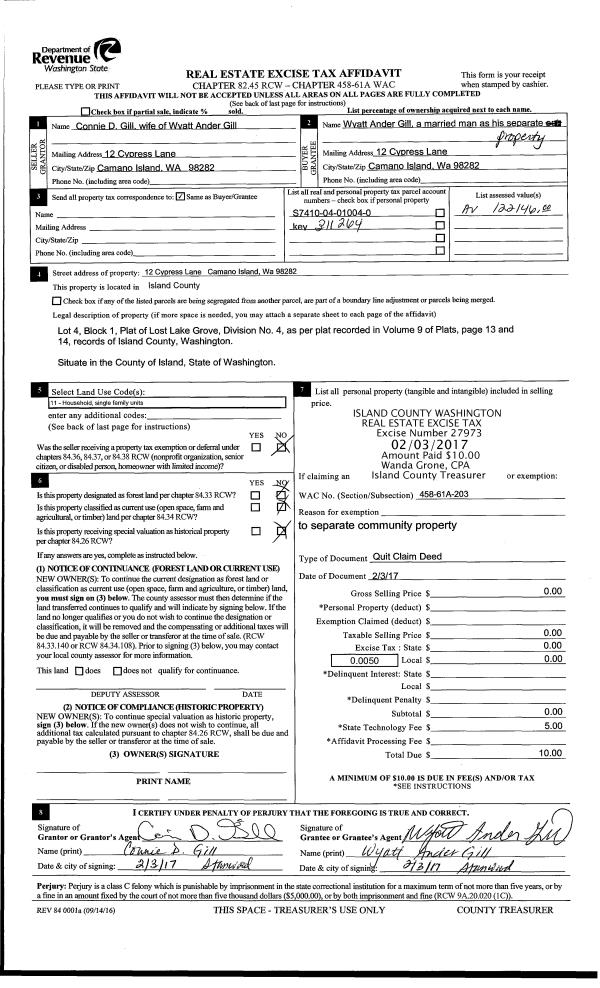
Property
Account |
| Property ID: | 503752 | Abbreviated Legal Description: | SEA CLIFF CONDO APT F 16.81% INT IN BLDG |
| Geographic ID: | S8122-00-0000F-0 | Agent Code: | |
| Type: | Real | | |
| Tax Area: | 110 - APPRAISER-OH Schl Dist, outside OH, improved & 1 acre or less | Land Use Code | 14 |
| Open Space: | N | DFL | N |
| Historic Property: | N | Remodel Property: | N |
| Multi-Family Redevelopment: | N | | |
| Township: | | Section: | |
| Range: | |
Location |
| Address: | 2285 WEST BEACH RD APT F OAK HARBOR, WA 98277 | Mapsco: | |
| Neighborhood: | 18*OH-seacliff | Map ID: | 103 |
| Neighborhood CD: | 18*OHseacf |
Owner |
| Name: | RITCHIE, EILEEN R | Owner ID: | 278770 |
| Mailing Address: | 2285 WEST BEACH RD #F OAK HARBOR, WA 98277 | % Ownership: | 100.0000000000% |
| | | Exemptions: | |
Taxes and Assessment Details
Values
| (+) Improvement Homesite Value: | + | $0 | |
| (+) Improvement Non-Homesite Value: | + | $418,063 | |
| (+) Land Homesite Value: | + | $0 | |
| (+) Land Non-Homesite Value: | + | $120,000 | |
| (+) Curr Use (HS): | + | $0 | $0 |
| (+) Curr Use (NHS): | + | $0 | $0 |
| | | -------------------------- | |
| (=) Market Value: | = | $538,063 | |
| (–) Productivity Loss: | – | $0 | |
| | | -------------------------- | |
| (=) Subtotal: | = | $538,063 | |
| (+) Senior Appraised Value: | + | $0 | |
| (+) Non-Senior Appraised Value: | + | $538,063 | |
| | | -------------------------- | |
| (=) Total Appraised Value: | = | $538,063 | |
| (–) Senior Exemption Loss: | – | $0 | |
| (–) Exemption Loss: | – | $0 | |
| | | -------------------------- | |
| (=) Taxable Value: | = | $538,063 | |
Taxing Jurisdiction
| Owner: | RITCHIE, EILEEN R | | |
| % Ownership: | 100.0000000000% | | |
| Total Value: | $538,063 | | |
| Tax Area: | 110 - APPRAISER-OH Schl Dist, outside OH, improved & 1 acre or less |
| CF | Conservation Futures | 0.0316035091 | $538,063 | $538,063 | $17.00 | | |
| CEM1 | Cemetery #1 | 0.0040320932 | $538,063 | $538,063 | $2.17 | | |
| FIRE2 | Fire & Rescue Dist #2 N Whidbey GEN | 0.5475949600 | $538,063 | $538,063 | $294.64 | | |
| HOBOND | Hospital BOND | 0.1910887512 | $538,063 | $538,063 | $102.82 | | |
| HOGEN | Hospital GEN | 0.3902502903 | $538,063 | $538,063 | $209.98 | | |
| CE | County Current Expense | 0.3708482477 | $538,063 | $538,063 | $199.54 | | |
| CR | County Roads | 0.4584763726 | $538,063 | $538,063 | $246.69 | | |
| ISLANDEMS | Hospital GEN (EMS) | 0.5000000000 | $538,063 | $538,063 | $269.03 | | |
| LIB | Library Sno-Isle GEN | 0.3153421757 | $538,063 | $538,063 | $169.67 | | |
| NWHIDPRMT | P & R N Whidbey GEN | 0.2004466701 | $538,063 | $538,063 | $107.85 | | |
| SCH201MO | School 201 Enrichment | 1.8559231640 | $538,063 | $538,063 | $998.60 | | |
| ST | State School | 1.3035497053 | $538,063 | $538,063 | $701.39 | | |
| ST2 | State School Part 2 | 0.8169543533 | $538,063 | $538,063 | $439.57 | | |
| | Total Tax Rate: | 6.9861102925 | | | | | |
| | | | | Taxes w/Current Exemptions: | $3,758.95 | | |
| | | | | Taxes w/o Exemptions: | $3,758.95 | | |
Improvement / Building
| Improvement #1: | RESIDENTIAL | State Code: | Y | 2210.8 sqft | Value: | $418,063 |
| Bathrooms: | 3 | Bedrooms: | 3 | | Ceiling: | DRYWALL PAINTED | Exterior Wall/Cover: | WOOD SIDING | | Floor Covering: | VINYL/HARDWOOD 20-80 | Floor Structure: | WOOD W/SUBFLOOR | | Foundation: | CONCRETE | Heating: | BASEBOARD ELECTRIC | | Interior Finish: | DRYWALL PAINT | Plumbing Fixture Cnt: | 11 | | Roof Slope: | 4" IN 12" | Roof Structure/Cover: | CJ ALUMINIUM HEAVY |
|
| | Type | Description | Class CD | Sub Class CD | Year Built | Area |
| | BAS | BASE/MAIN FLOOR | 4 | 0 | 1978 | 1003.0 |
| | BIG | BUILT IN GARAGE | 4 | 0 | 1978 | 528.8 |
| | UPS | UPPER STORY | 4 | 0 | 1978 | 1207.8 |
| | BAW | BALCONY WOOD RAIL | 4 | 0 | 1978 | 96.0 |
| | ENP | ENCLOSED PORCH | 4 | 0 | 1978 | 128.0 |
| | OWP | OPEN WOOD PORCH W/STEPS | 4 | 0 | 1978 | 272.0 |
Sketch
Property Image
Land
| 1 | HB | HIGH BLUFF | 0.3500 | 15246.00 | 44.00 | 0.00 | 1.00 | $120,000 | $0 |
Roll Value History
| 2026 | N/A | N/A | N/A | N/A | N/A |
| 2025 | $418,063 | $120,000 | $0 | $538,063 | $538,063 |
| 2024 | $431,781 | $120,000 | $0 | $551,781 | $551,781 |
| 2023 | $410,585 | $120,000 | $0 | $530,585 | $530,585 |
| 2022 | $377,158 | $120,000 | $0 | $497,158 | $497,158 |
| 2021 | $332,629 | $100,000 | $0 | $432,629 | $432,629 |
| 2020 | $325,205 | $100,000 | $0 | $425,205 | $425,205 |
| 2019 | $246,403 | $100,000 | $0 | $346,403 | $346,403 |
| 2018 | $215,455 | $61,526 | $0 | $276,981 | $276,981 |
| 2017 | $215,934 | $61,526 | $0 | $277,460 | $277,460 |
| 2016 | $219,207 | $61,526 | $0 | $280,733 | $280,733 |
| 2015 | $222,478 | $61,526 | $0 | $284,004 | $284,004 |
| 2014 | $225,751 | $61,526 | $0 | $287,277 | $287,277 |
| 2013 | $229,022 | $61,526 | $0 | $290,548 | $290,548 |
| 2012 | $229,300 | $61,526 | $0 | $290,826 | $290,826 |
| 2011 | $229,300 | $61,526 | $0 | $290,826 | $290,826 |
| 2010 | $238,178 | $61,526 | $0 | $299,704 | $299,704 |
| 2009 | $248,588 | $61,526 | $0 | $310,114 | $310,114 |
| 2008 | $248,588 | $61,526 | $0 | $310,114 | $310,114 |
| 2007 | $251,734 | $61,526 | $0 | $313,260 | $313,260 |
Deed and Sales History
| 1 | 05/03/2019 | EZ | Easement | RITCHIE, EILEEN R | PUGET SOUND ENERGY | | | $3,000.00 | 38397 | 4462862 |
|   | |
| 2 | 03/02/2017 | QCD | Quit Claim Deed | RITCHIE, DIANE L | RITCHIE, EILEEN R | | | $0.00 | 28306 | 4418239 |
| 3 | 10/29/2004 | 5 | DNU - Marriage License/Name Change | RITCHIE, JOHN E | RITCHIE, DIANE L | | | $0.00 | 70383 | 0 |
| 4 | 02/01/1980 | TRUSTEED | Trustee's Deed | MATHESON, R G | RITCHIE, JOHN E | | | $58,000.00 | 521 | 365208 |
| 5 | 01/01/1900 | OTHER | Other - Misc. Documents | Unknown | MATHESON, R G | | | $0.00 | 0 | 0 |
Payout Agreement
| No payout information available.. |