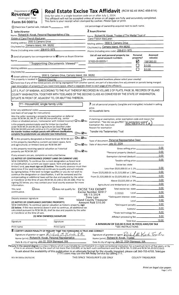
Property
Account |
| Property ID: | 503878 | Abbreviated Legal Description: | REPLACES 2711640 57 BRUNN DC - N81' OF S243 .48' OF FOLL DESC: BG NWCR GL2 ELN SD DC N1*E1031.96' N88*W267.4' TO NECR LOT 1 WHERE SHIPS PASS S1*W748.15 TO NLN LOTS 1,2,3,4&5 S33*E 379.34' TO WCR LOT 7 1ST ADD WHERE SHIPS PASS N83*E 52.86' TO ELN SD DC N1* |
| Geographic ID: | R22915-280-1650 | Agent Code: | |
| Type: | Real | | |
| Tax Area: | 710 - APPRAISER-S Whid Schl Dist, outside Langley, improved & 1 acre or less | Land Use Code | 11 |
| Open Space: | N | DFL | N |
| Historic Property: | N | Remodel Property: | N |
| Multi-Family Redevelopment: | N | | |
| Township: | 29 | Section: | 15 |
| Range: | R2 |
Location |
| Address: | 5782 PIRATE LN FREELAND, WA 98249 | Mapsco: | |
| Neighborhood: | Cycle 3 | Map ID: | 331 |
| Neighborhood CD: | 3 |
Owner |
| Name: | RANKIN, MARGARET | Owner ID: | 311343 |
| Mailing Address: | JOHN RANKIN 4808 POINTES DR MUKILTEO, WA 98275 | % Ownership: | 100.0000000000% |
| | | Exemptions: | |
Taxes and Assessment Details
Values
| (+) Improvement Homesite Value: | + | $0 | |
| (+) Improvement Non-Homesite Value: | + | $252,635 | |
| (+) Land Homesite Value: | + | $0 | |
| (+) Land Non-Homesite Value: | + | $330,000 | |
| (+) Curr Use (HS): | + | $0 | $0 |
| (+) Curr Use (NHS): | + | $0 | $0 |
| | | -------------------------- | |
| (=) Market Value: | = | $582,635 | |
| (–) Productivity Loss: | – | $0 | |
| | | -------------------------- | |
| (=) Subtotal: | = | $582,635 | |
| (+) Senior Appraised Value: | + | $0 | |
| (+) Non-Senior Appraised Value: | + | $582,635 | |
| | | -------------------------- | |
| (=) Total Appraised Value: | = | $582,635 | |
| (–) Senior Exemption Loss: | – | $0 | |
| (–) Exemption Loss: | – | $0 | |
| | | -------------------------- | |
| (=) Taxable Value: | = | $582,635 | |
Taxing Jurisdiction
| Owner: | RANKIN, MARGARET | | |
| % Ownership: | 100.0000000000% | | |
| Total Value: | $582,635 | | |
| Tax Area: | 710 - APPRAISER-S Whid Schl Dist, outside Langley, improved & 1 acre or less |
| CF | Conservation Futures | 0.0316035091 | $582,635 | $582,635 | $18.41 | | |
| FIRE3 | Fire & Rescue Dist #3 S Whidbey GEN | 1.2004855531 | $582,635 | $582,635 | $699.44 | | |
| HOBOND | Hospital BOND | 0.1910887512 | $582,635 | $582,635 | $111.33 | | |
| HOGEN | Hospital GEN | 0.3902502903 | $582,635 | $582,635 | $227.37 | | |
| CE | County Current Expense | 0.3708482477 | $582,635 | $582,635 | $216.07 | | |
| CR | County Roads | 0.4584763726 | $582,635 | $582,635 | $267.12 | | |
| ISLANDEMS | Hospital GEN (EMS) | 0.5000000000 | $582,635 | $582,635 | $291.32 | | |
| LIB | Library Sno-Isle GEN | 0.3153421757 | $582,635 | $582,635 | $183.73 | | |
| PORTWHID | Port of S Whidbey GEN | 0.1094540357 | $582,635 | $582,635 | $63.77 | | |
| SCH206BOND | School 206 BOND | 0.3161759235 | $582,635 | $582,635 | $184.22 | | |
| SCH206MO | School 206 Enrichment | 0.4547169547 | $582,635 | $582,635 | $264.93 | | |
| ST | State School | 1.3035497053 | $582,635 | $582,635 | $759.49 | | |
| ST2 | State School Part 2 | 0.8169543533 | $582,635 | $582,635 | $475.99 | | |
| SWHIDPRBD | P & R S Whidbey BOND | 0.0152817568 | $582,635 | $582,635 | $8.90 | | |
| SWHIDPRBD2 | P & R S Whidbey BOND2 | 0.0138911264 | $582,635 | $582,635 | $8.09 | | |
| SWHIDPRMT | P & R S Whidbey GEN | 0.2053334452 | $582,635 | $582,635 | $119.63 | | |
| | Total Tax Rate: | 6.6934522006 | | | | | |
| | | | | Taxes w/Current Exemptions: | $3,899.81 | | |
| | | | | Taxes w/o Exemptions: | $3,899.81 | | |
Improvement / Building
| Improvement #1: | RESIDENTIAL | State Code: | Y | 1876.0 sqft | Value: | $252,635 |
| Bathrooms: | 2 | Bedrooms: | 3 | | Ceiling: | TONGUE & GROOVE | Exterior Wall/Cover: | LOG TO 10" | | Floor Covering: | CARPET/VINYL 20-80 | Floor Structure: | WOOD W/SUBFLOOR | | Foundation: | CONCRETE | Heating: | FHA GAS | | Interior Finish: | PLASTER | Plumbing Fixture Cnt: | 9 | | Roof Slope: | 5" IN 12" | Roof Structure/Cover: | BEAM ASPHALT |
|
| | Type | Description | Class CD | Sub Class CD | Year Built | Area |
| | BAS | BASE/MAIN FLOOR | 3 | 0 | 1965 | 1236.0 |
| | UB8 | BASEMENT UNFINISHED 8" | 3 | 0 | 1965 | 306.0 |
| | OWP | OPEN WOOD PORCH W/STEPS | 3 | 0 | 1965 | 240.0 |
| | DWN | DOWNSTAIRS LIVING AREA | 3 | 0 | 1965 | 640.0 |
| | UTY | STORAGE/UTILITY | 3 | 0 | 1965 | 192.0 |
| | OWP | OPEN WOOD PORCH W/STEPS | 3 | 0 | 1965 | 240.0 |
Sketch
| No sketches available for this property. |
Property Image
Land
| 1 | 15 | SQ (12001-21780) | 0.5000 | 21780.00 | 0.00 | 0.00 | 1.00 | $330,000 | $0 |
Roll Value History
| 2026 | N/A | N/A | N/A | N/A | N/A |
| 2025 | $252,635 | $330,000 | $0 | $582,635 | $582,635 |
| 2024 | $226,050 | $320,000 | $0 | $546,050 | $546,050 |
| 2023 | $270,507 | $300,000 | $0 | $570,507 | $570,507 |
| 2022 | $249,077 | $270,000 | $0 | $519,077 | $519,077 |
| 2021 | $220,185 | $190,000 | $0 | $410,185 | $410,185 |
| 2020 | $216,165 | $160,000 | $0 | $376,165 | $376,165 |
| 2019 | $98,552 | $190,000 | $0 | $288,552 | $288,552 |
| 2018 | $99,010 | $160,000 | $0 | $259,010 | $259,010 |
| 2017 | $99,927 | $110,000 | $0 | $209,927 | $209,927 |
| 2016 | $101,758 | $100,000 | $0 | $201,758 | $201,758 |
| 2015 | $103,591 | $100,000 | $0 | $203,591 | $203,591 |
| 2014 | $105,423 | $100,000 | $0 | $205,423 | $205,423 |
| 2013 | $100,415 | $100,000 | $0 | $200,415 | $200,415 |
| 2012 | $102,246 | $106,250 | $0 | $208,496 | $208,496 |
| 2011 | $104,079 | $125,000 | $0 | $229,079 | $229,079 |
| 2010 | $115,675 | $125,000 | $0 | $240,675 | $240,675 |
| 2009 | $120,923 | $150,000 | $0 | $270,923 | $270,923 |
| 2008 | $122,903 | $146,000 | $0 | $268,903 | $268,903 |
| 2007 | $124,276 | $105,000 | $0 | $229,276 | $229,276 |
Deed and Sales History
| 1 | 01/30/2024 | WD | Warranty Deed | SANDBERG, JOANNE | RANKIN, MARGARET | | | $525,000.00 | 59138 | 4569110 |
| 2 | 08/01/1991 | DECREE | Divorce Decree/Legal Separation | SANDBERG, LOUIS R | SANDBERG, JOANNE | | | $0.00 | 13175 | 91013458 |
| 3 | 06/01/1987 | WD | Warranty Deed | SANDBERG, LOUIS R | SANDBERG, LOUIS R | | | $0.00 | 71778 | 87008293 |
| 4 | 01/01/1900 | OTHER | Other - Misc. Documents | Unknown | SANDBERG, LOUIS R | | | $0.00 | 0 | 0 |
Payout Agreement
| No payout information available.. |